방통공사 측면완충재 시공 및 온수분배기 위치

설계/시공관련 질문

질문 전에 먼저 검색을 해주세요.

 

방통공사 측면완충재 시공 및 온수분배기 위치

G 집쟁이 1 2,937 2022.03.04 08:41

안녕하세요?

 

겨울공사에 고민이 많은 집쟁이입니다.

 

곧 방통공사를 시행할 예정입니다.

 

1. 거실 창틀 및 발코니 터닝도어 하부에 측면완충재를 시공해야하는지 여부

-  창틀 및 터닝도어 하부가 30~40mm정도 묻혀야 하는데 이곳도 완충재를 설치해야하는지 궁금합니다.

-  예전 올려주신 자료 댓글에는 바닥마감재(강마루)는 완충재 전까지만 시공하고 걸레받이로 마감하는것이 좋다고 나와있던데 창틀 하부는 걸레받이가 들어가지 않아 완충재가 노출되는것이 아닌지요

방통완충재.jpg

 

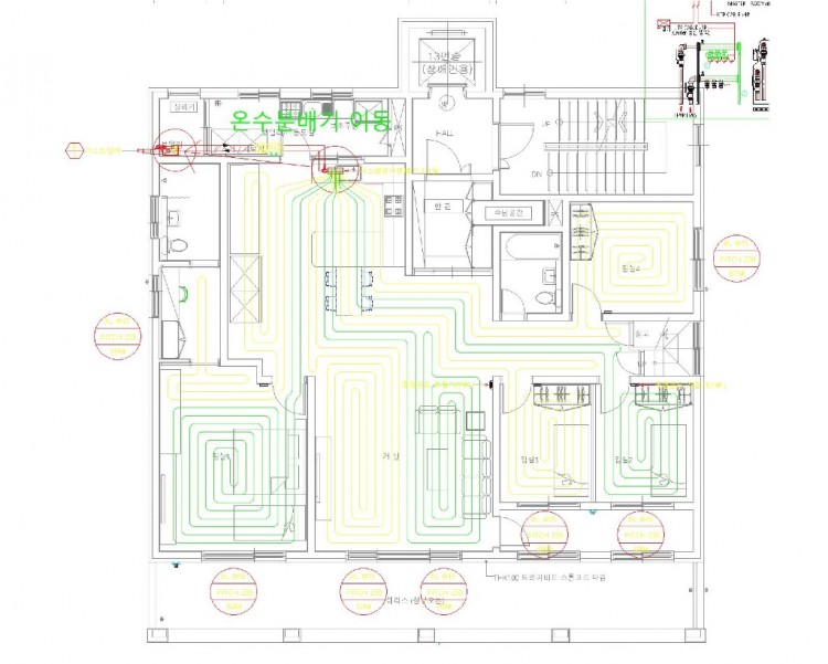
2. 온수분배기를 뒷베란다에 설치시 동파의 위험은 없는지요?

- 싱크대 하부에 분배기 설치시 복잡한면이 있어서 보일러실 보일러 하부에 온수분배기 설치하고자 합니다.

- 외단열이 되어있긴 하지만 900*2300의 루버창이 설치되어 단열에 취약할 듯 한데 동파의 위험이 없는지 걱정이 됩니다.

분배기이동.jpg

 

두서없는 글 읽어주셔서 감사합니다.

 

 

Comments

M 관리자 2022.03.04 16:57
안녕하세요.
1. 그 경우는, 마감재가 측면완충제를 덮게 됩니다. 즉 측면완충제를 넣고 난방용몰탈을 타설한 다음, 양생 후 몰탈위로 돌출된 완충제를 칼로 잘라내고, 마루 시공을 하시면 되세요.
2. 동파의 위험은 없어 보이는데, 모든 배관이 발코니를 통해서 실내로 들어와야 하는데, 그 경로가 그리 합리적으로 보이지 않습니다. 번잡하더라도 싱크대 하부가 더 나을 것 같습니다.
Category