아파트 단열재 누락에 따른 설계상 하자인지 문의 드립니다.

설계/시공관련 질문

질문 전에 먼저 검색을 해주세요.

 

아파트 단열재 누락에 따른 설계상 하자인지 문의 드립니다.

G 김보형 2 8,899 2022.02.23 13:48

강변해링턴플레이스 B-Type.jpg

 

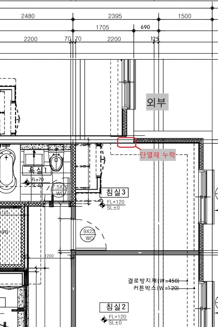
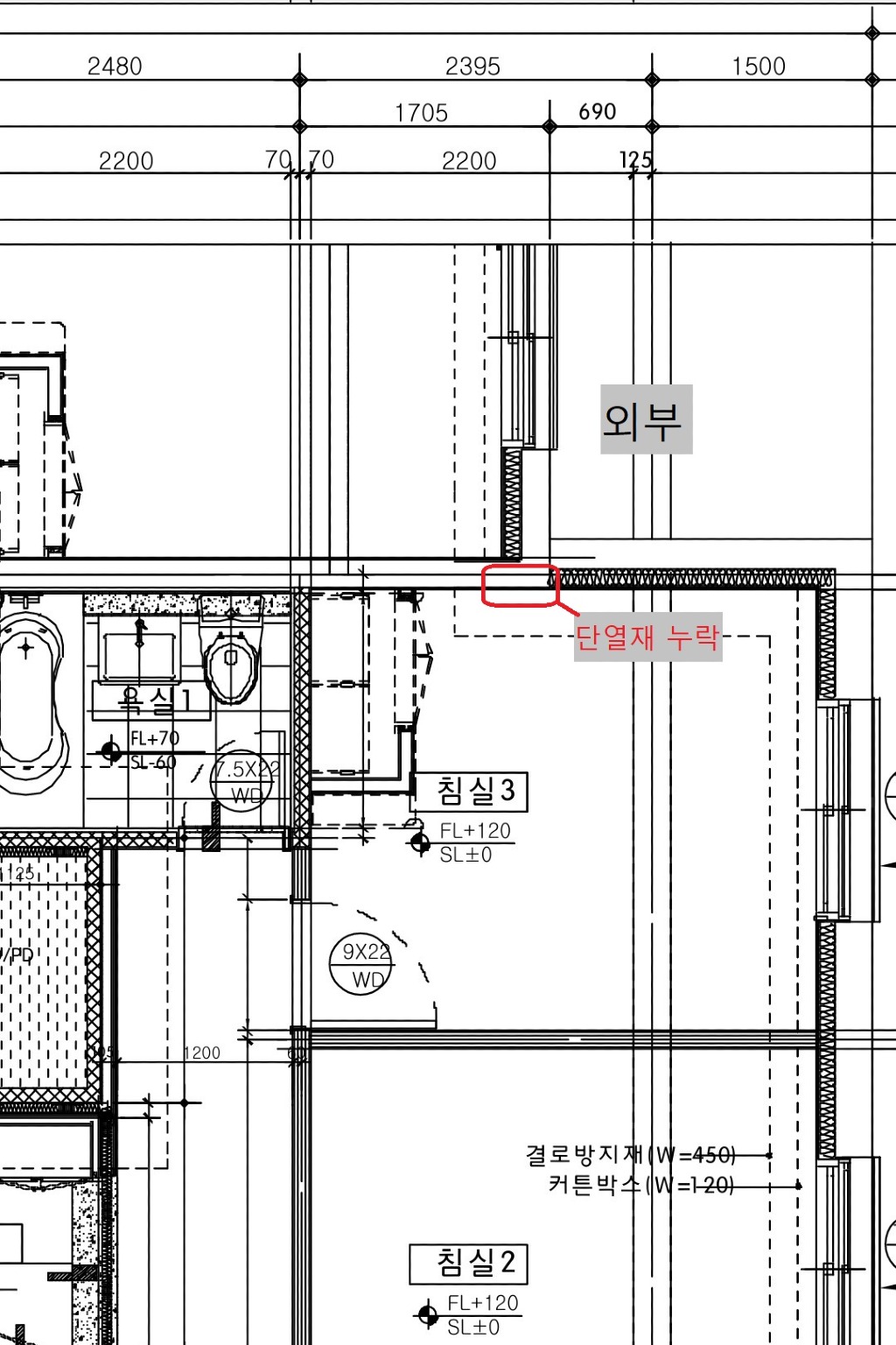
아파트 단열재 누락에 따른 설계상 하자인지 문의 드립니다.

 

위 그림과 같이 붉은 상자 부분에 겨울철 곰팡이가 발생하는 부위 입니다.

외부의 찬온도가 콘크리트 벽을타고 직접 방으로 들어옵니다.

도면을 확인해 보니 단열제가 없습니다.

 

단열제가 적용되어야 하는 부위라 생각되는데

누락이 된것은 설계상의 하자가 아닌지 의견 부탁드립니다.

 

Comments

M 관리자 2022.02.23 14:01
네 설계하자 입니다.
G 김보형 2022.03.08 18:09
답변 감사합니다.
Category