단열재 문의드립니다.

설계/시공관련 질문

질문 전에 먼저 검색을 해주세요.

 

단열재 문의드립니다.

G 황로만 2 4,806 2022.01.16 23:59
많은 도움 받고있습니다. 소규모 건축물 자료 잘 보았습니다.

 

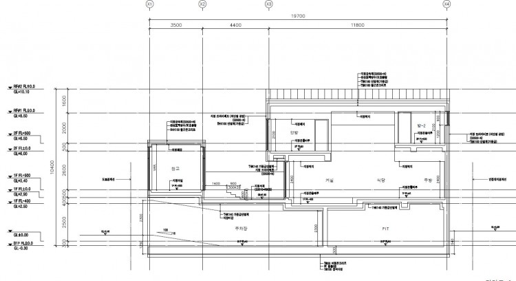
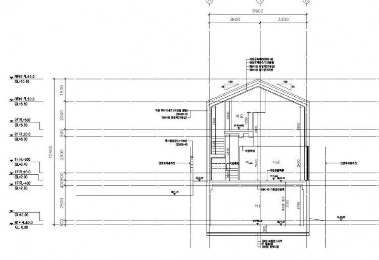
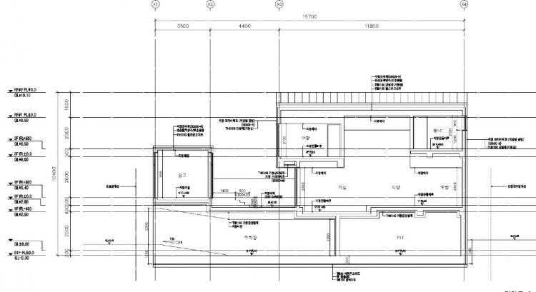
위치는 울산이고, 허가도면으로 건축허가 승인받았으며, 실시도면 진행중입니다.

 

건축사님과 아직 미팅은하지 않았지만, 미리 공부좀해서 가려고합니다

 

단열재 선택에 있어 문의 좀 드릴려고합니다.

 

따로 단열재 어떤걸 써야한다 규격은 없는것 같더라구요

 

하부 기초 시 단열에 대해 궁금한데요..

 

예시가 바닥위에 바로 집을 짓는경우하고, 저 같이 반지하? 주차장을만들고

그 위로 집을 짓는경우에도 바닥에 단열재를 똑같이 써야하는지 궁금합니다.

 

만약 그렇게해야된다면, 주차장과 1층사이에는 어느정도의 단열재를 써야하는가요?

 

벽채 및 지붕도 얼마이상 쓰는게 좋다가 있을까요? 무지합니다.

 

답변 미리 감사합니다.

 

허가도면 파일 첨부하겠습니다.

 

단열2.JPG

 

단열1.JPG


Comments

1 김국환 2022.01.17 08:50
모든 건축물은 '건축물의 에너지절약설계기준'에 따른 단열계획이 되어야 합니다.
(https://www.law.go.kr/행정규칙/건축물의에너지절약설계기준)
위 기준 [별표1]에 부위별 단열재 최소 두께 혹은 열관류율을 확인하시면 되고,
이는 건축사가 반드시 확인하여, 반영할 사항입니다.
도면상에 단열재 등급만 표기되어 있고, 단열재에 종류는 표기가 안되어있네요.
실시설계 진행중이라고 하니, 실시설계 단계에서 정해질 수도 있을 것 같습니다.
M 관리자 2022.01.17 09:36
김국환소장님 감사합니다.
--------
김소장님 글처럼 단열재의 종류가 적혀야 하는데요.
그림에 적어 드려야 하는데, 제가 오늘 외근이라서, 저녁에 답변드리겠습니다.
Category