구축 주택 옥상 방수 관련하여 문의 드립니다.

설계/시공관련 질문

질문 전에 먼저 검색을 해주세요.

 

구축 주택 옥상 방수 관련하여 문의 드립니다.

G 윤성진 14 3,751 2022.01.18 09:28

 

안녕하세요, 직접 설계나 건축을 하지는 않지만 시공현장관리를 담당 중인 직장인입니다.

문의에 앞서, 매번 많은 도움을 얻고 있어 진심어린 감사의 말씀을 드립니다.

 

현재 담당 중인 현장인데요, 83년도 사용승인 받은 시멘벽돌/슬래브 구조의 회사 사택입니다.

최초 지붕은 아래와 같이 슬래브 바닥에 콘크리트 마감이 되어 있었습니다.

 

지붕(최초).png

 

이후 02년도에 리모델링을 통해 각관으로 구조 형성 후 아스팔트슁글을 설치한 상황입니다.

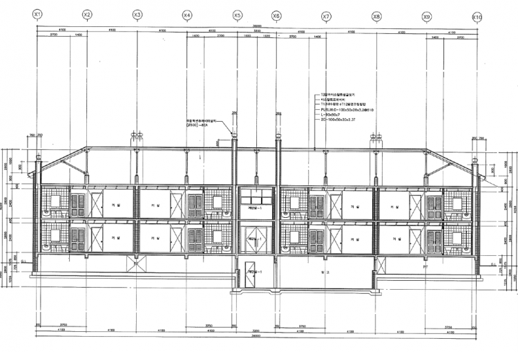
(이해를 돕기 위해 평면도/정면도/입면도를 아래와 같이 첨부합니다)

 

지붕(리모델링)_단면.png

 

지붕(리모델링)_정면.png

 

지붕(리모델링)_평면.png

 

 

작년 여름 우천 간 누수가 크게 발생하여 보수가 필요한데, 어떻게 방수조치를 해야하나 고민입니다.

비가 많이 새는것을 보아 상부 아스팔트슁글과 하부 Con'c 모두 크랙이 발생한 것 같은데

 

1) 일반적인 콘크리트 지붕 방수처럼, 면갈이하고 상도/중도/하도 우레탄 방수를 진행하고 싶은데

    상부 아스팔트슁글(구조물 포함)이 있는 상태에서 진행이 가능할지 의문이고

 

2) 그렇다고 아스팔트슁글 균열부만 보수하던가, 프라이머같은 방수제만 재도포 하자니

    콘크리트 균열을 잡지 않는 이상 의미가 있을지 의문입니다.

 

공사하는 동안 슁글/합판을 연결한 형강 구조물을 떼는 것은 더더욱 어려울 것 같구요.

 

이러다 보니 짧은 식견으로는 방법 마련이 어려워 부득이하게 도움을 요청 드립니다.

어떻게 방수처리를 해야 효과/효율적으로 누수를 잡을 수 있을까요?

 

Comments

M 관리자 2022.01.18 16:29
안녕하세요.
이 부분은 슁글만 보수하는 것이 최선입니다. 그래도 되고요.
예측컨데, 누수의 지점은 슁글과 각종 지붕 관통배관, 굴뚝이 만나는 지점의 처리가 제대로 되지 않아 생겼을 것으로 판단됩니다. 사실 다른 부위에서 누수가 되기 어려운 구조이기도 하고요.
그러므로 해당 부위를 중심으로 일부 슁글을 뜯어 낸 후, 금속시트로 방수턱을 만들고, 다시 슁글을 덮으면 될 것 같습니다.
나중에 해당 부위의 사진 몇장 올려 주시면, 공사 디테일을 그려 드리도록 하겠습니다.
G 윤성진 2022.01.19 08:57
안녕하세요, 관리자님. 회신 정말 감사드립니다.

말씀해주신 내용으로 보아,
1) 누수 지점을 찾아 일부 슁글 철거 후
2) 방수턱을 만들라는 것으로 이해 했는데 맞을까요?

답변 주신 내용에 포함이 되어 있는 내용이겠지만, 2층 지붕에서 누수가 심하게 발생 중이라
콘크리트 옥상에 방수처리를 할 필요는 없을까 계속 불안감이 드네요.

업체에 어떻게 공사해야 할지 정확하게 전달할 필요가 있을 듯 한데,
사진 첨부에 앞서, 도면 자료를 먼저 한 부 송부드리며 공사과업을 어떻게 잡을지
간략하게나마 도움을 부탁드릴 수 있을까요?
M 관리자 2022.01.19 10:04
1. 누수 지점이라기 보다는.. 지붕을 관통한 모든 부위를 재 시공하시는 것이 맞습니다.
지금 새고 있지 않아도 잠재적 하자의 원인이니까요.

2. 돌출 자재가 벽돌일 경우, 방수턱의 개념은 아래와 같습니다.
https://youtu.be/9K80rj_iZWM

다만, 도면을 보니 (다운받고 삭제하였습니다.) 상세도가 없기에.. 그 것이 철재인지 아닌지 등의 정보가 필요하게 되었습니다. 예를 들어 얇은 함석판으로 만들어진 굴뚝 같은 거라면, 방수 자체가 안되기에...
혹시 지붕 속으로 진입은 가능한 상태인가요?
G 윤성진 2022.01.19 11:27
빠른 회신 감사 드립니다. 지붕을 관통하는 부위라면 앞서 말씀해주신
슁글과 각종 지붕 관통배관, 굴뚝이 만나는 지점을 말씀하시는거죠?

말씀해주신 내용에 대해 답을 드리자면
1. 옥상으로 진입은 가능합니다. 어제 간략하게 찍은 사진을 본문에 업로드 하겠습니다.
2. 일전에 업로드 드린 도면 내 지붕 상세도가 있긴 합니다.
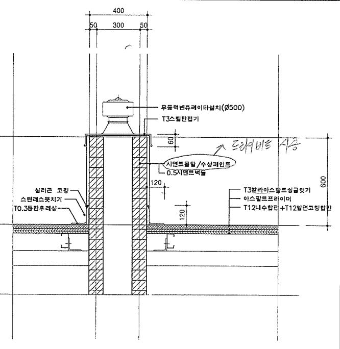
    본문에 업로드 하겠지만, 지붕 굴뚝 벽은 시멘벽돌+몰탈 처리 되있고
    상부는 스틸판+무동력 벤추레이터가 설치된 상태입니다.
    (아마 https://www.apvent.kr/71 이런 제품이 설치되었을 것으로 추정됩니다)
G 윤성진 2022.01.19 11:35
원글 수정이 불가하여 부득이하게 댓글로 사진/도면 첨부 드립니다!
M 관리자 2022.01.19 11:37
알겠습니다. 살펴 볼 것이 많아서. 저녁 늦게 까지 답변 드리겠습니다.
G 윤성진 2022.01.24 09:33
안녕하세요, 관리자님. 월요일 이른 시간부터 업무로 바쁘실텐데
위 공사 보수방안에 대해 다시 한번 조언 부탁드릴 수 있을까요?

디테일한 보수 방법 확정 후 2월 안에는 착공하려고 합니다 :)
M 관리자 2022.01.24 14:50
아. 죄송합니다. 잊고 있었습니다. 8시 전까지 챙겨서 올려 드리겠습니다.
M 관리자 2022.01.24 20:24
도면 상에는 내수합판+프라이머 위에 슁글 시공으로 되어져 있는데, 실제 시공은 샌드위치 판넬 위에 슁글 시공이 된 것 같습니다.

조금 애매한 것이.. 만약 샌드위치판넬+방수시트+슁글이면 전체적으로 손을 볼 필요는 없지만, 샌드위치 판넬 위에 바로 아스팔트 슁글이 시공되어 있다면..
가. 경사지붕 보수를 포기하고 평지붕 방수에 집중
나. 경사지붕 슁글을 모두 걷어 내고, 시트방수부터 재 시공

중에 하나를 선택하셔야 할 수도 있습니다.

그게 아니라면..
전체적으로 아래 붉은 색 표시된 경사지붕의 골 부분 쪽을 전수 조사를 하셔서, 누수가 있다면.. 이 골선으로 부터 좌우로 600mm 폭까지 슁글을 걷어 내고, 아스팔트 쉬트방수를 한 후에 다시 슁글을 보수 해야 합니다.

그리고 환풍기 부분인데요..
아마도 가장 누수가 심한 부분이 아래 파란색으로 박스를 친 부분일 것 같습니다.
M 관리자 2022.01.24 20:31
이 부분 역시 도면과 실제 상황이 다를 수 있을 텐데요.
환기구 벽면과 지붕이 만나는 면은.... ㄴ자 동판후레싱 - 시트방수 - 슁글  순서여야 합니다.

이 부분은 아래 영상을 보시면 도움이 되실 것 같습니다.
https://youtu.be/7G9z5aI0gMg
G 윤성진 2022.01.24 22:51
늦은 시간에 회신 감사 드립니다.

저도 사진 상으로 다시 확인해보니 도면(내수합판+프라이머)과 상이하게,
높은 확률로 샌드위치 판넬+슁글 시공이 된 것으로 보입니다.

전년도 여름에 누수가 가장 심하게 발생한 곳은 도면 상 203호로,
가운데 무동력 벤츄레이터가 설치된 부분인데 생각보다 보수가 골치가 아프네요...

말씀해주신대로 경사지붕 보수를 포기하고 평지붕 방수도 고려해볼 만 한 듯 한데,
현재 Con'c 슬라브 지붕은 어떠한 방수처리도 되지 않은 상태입니다.

이 경우, 면정리 후 아스콘 방수를 진행을 고려할 수 있겠는데
각관 구조+샌드위치 판넬이 설치된 상태에서 원활한 작업이 가능할까 고민되네요
이 부분은 전적으로 시공사의 시공 능력에 맡겨야 할까요?
G 윤성진 2022.01.24 23:00
추가로, 자꾸 번거로운 질문을 드리는 것 같아 죄송한데 한 가지 더 여쭤뵙고 싶은 것이 있습니다.

도면 상 204/104호에서 하루 종일 세탁기를 돌리는 것과 같은 웅웅 소리가 난다고 합니다.
처음에는 보일러 소리가 의심되어 보일러 가동을 일시적으로 중단했으나
동일한 소리가 계속되고 있어 도면을 다시 확인해보니 벤추레이터가 원인으로 의심됩니다.

동절기 실내 따뜻한 공기의 배기와, 외부 찬공기의 흡기가 만나는 과정에서 소음이 발생하는 듯 한데
소음 정도가 심해 거주자들이 잠을 못자는 수준이라고 하네요.

이건 방수공사 진행하며 고정식 벤추레이터로 교체하면 해결될까 싶은데 어떤지 조언을 구하고 싶습니다 :)

* 고정식 벤추레이터 예시 (http://dyair75322.cafe24.com/product/%EB%B2%A0%EB%A5%B4%EB%88%84%EC%9D%B4-%EB%AC%B4%EB%8F%99%EB%A0%A5%ED%9D%A1%EC%B6%9C%EA%B8%B0-600%C3%98/31/category/1/display/2/)
M 관리자 2022.01.25 01:20
평슬라브 위에 각관이 어떻게 올라가 있느냐에 작업성이 달려 있는 것 같습니다.
나중에 그 사진도 올려 주시면 말씀드리겠습니다.

벤츄레이터는 말씀하신 고정식으로 변경하시면 좋을 것 같습니다.
G 윤성진 2022.02.03 13:57
안녕하세요, 관리자님. 늦었지만 새해 복 많이 받으시기 바랍니다 : )
도움주신 덕에 갈피를 못잡던 공사 방향을 어느 정도 설정할 수 있게 되었습니다, 감사합니다.

최종 과업 선정 전 한번 더 도움을 구하고자 평슬라브 각관구조사진을 첨부 드립니다.

작업이 다소 어렵긴해도 충분히 슬라브 우레탄방수가 가능할 듯 한데
전문가분의 판단은 어떠신가 조언 부탁드릴 수 있을까요?

간단한 공사임에도 여러모로 많은 도움 주신 점 다시한번 진심으로 감사 드리며
즐거운 오후 보내시기 바랍니다!
Category