타일지붕 디테일 및 매립거터 디테일 문의

설계/시공관련 질문

질문 전에 먼저 검색을 해주세요.

 

타일지붕 디테일 및 매립거터 디테일 문의

G 이성환 7 9,460 2022.01.12 15:23

 

안녕하세요. 건축설계사무소 2년차 직원입니다.

기능적으로 금속지붕마감이 가장 안전한 방법인줄 알지만, 

미관적 성취를 고려하다보니... 협회가 추천하지 않는 방식으로 

디테일을 만들게 되었습니다. 

그럼에도 피드백 부탁드리겠습니다^^ (꾸벅)

 

지역 : 중부2지역 (충남)

용도 : 떡 공장

건축물 길이 : 20m ( 홈통 5m 간격으로 설치)

건축물 폭 : 9m 

건축물 높이 : 4m(외벽) + 2.2m(지붕경사) 총 6.2m

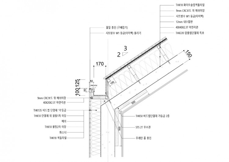
궁금점 : 파벽돌 지붕 외관 마감에 매입거터 설치 시 생기는 각종 문제점 해결 혹은 최소화 

지붕타일마감 및 매립거터.jpg

 


Comments

4 재섭 2022.01.12 17:26
먼저 질문이
1. 지붕을 굳이 압출법으로 할 필요는 없을듯 싶습니다. 압출법이 온도차에 따른 부피변화가 좀있어서요
2. 내수합판바로위로 시트방수가 붙고 그위에 CRC보드를 뭐로 붙인다는건지 잘 모르겠네요...
그냥 접착제부착같은데.....
3. CRC보드위에 타일은 역시 몰탈로 붙인다는거겠죠?
G 이성환 2022.01.12 18:03
재섭님 질문 및 조언감사합니다.
1. 네 ~
2. 접착제를 생각했는데, 시트방수에 접착제 부착은 어려울까요?
3. crc 보드 위에 타일 역시 몰탈 혹은 파벽부착용으로 나온 본드가 있다고 해서 그걸 생각했습니다.

추가로 말씀드리면...대부분 타일 마감을 한 건축사사무소는 내단열을 했던데, 거터부분처리와 외단열이 더 우수한 방법이라는 협회 자료를 보다보니 이렇게 디테일을 고민하게 되었습니다.
M 관리자 2022.01.12 19:18
안녕하세요.

1. 지붕의 타일 부착시공은 불가능합니다. 꼭 해야 한다고 해도 안됩니다.
내단열로 하고, 골조 위에 타일을 직접 부착하는 것은 되나, 그 역시 장기적 하자를 피하기 어렵습니다.
그러므로 타일을 전제로 한 조언은 불가능하며, 유사한 이미지를 구현하려면, 평기와가 가장 적합합니다만 건축사의 고유권한이기에 재료를 선택해 주시면 나머지 조언을 드릴 수 있겠습니다.

2. 표기된 시트방수 W1등급(타이벡)은 시트방수재가 되지 못합니다.
해당 소재는 주된 방수층 하부에 생기는 결로수나, 통기층으로 타고 들어 오는 소량의 물에만 대응할 수 있습니다.  목조주택에서 사용되는 투습방수지라고 생각하시면 되세요.

3. 마감재 하부에 통기층이 있어야 합니다. 통기층없는 경사지붕의 표면온도는 70도까지 올라가게 되며, 이는 그대로 내부로의 전도열이 되기 때문입니다.  우리나라 모든 마지막 층이 끝없이 더운 이유가 통기층이 없어서 그렇습니다.

4. 거터의 외부 쪽 최소 높이는 150mm 입니다. 이 커터 하부로 시트방수가 타고 돌아서 외벽까지 이어져야 합니다.

5. 거터를 SST로 하면 10년 정도의 수명 밖에 되지 않습니다. 용접 부위에서의 누수가 필연적입니다. 그러므로 용접이 아닌 금속판을 접는 형식이어야 하며, 이 것은 금속지붕 회사에 같이 맡기시면 되고, 금속지붕 회사가 접는 거터를 만들지 모른다면, 그 회사는 지붕 공사를 할 자격이 없다고 보시면 됩니다.
2 ifree 2022.01.12 20:38
도면에 sts 2t라고 표기된 배수로를 거터라고 하나보죠?
리자님이 방수시트가 그 아래로 지나 건물 외벽까지 와야한다고 지적하시고 계신데요...
2년 짜리 AS기간용 처방이라면 모를까?  구조적 취약이 완전히 해결될까?  의문이 남습니다.
용접은 안 되고 접어라고 하시는데.....
이 단면만 보면 배수로(거터?)가 완전한 밀폐 구조일 것 같아 보여도 90도 돌려 단면을 자르고 보면 이걸 둘러가면 죽~~~이어 붙혀가야 할건데....그 이음 부위는 용접이 가능할 것 같지도 않고(결국은 두겁 겹쳐서 피스로 이어 붙히고 실리콘이나 쏘는),  용접이 된다해도 열팽창 변형  때문에 하면 안 되지 싶고, 배수로 기능을 유지한 채  접는 방법이 있을까? (두겁처럼 접어서는 안 될 것 같고) 접어도 신축 유격이 없어면 여름에 휘어질거고...
그 아래로 방수시트가 지나가면 낫겠지만...우수관의 연결과 관에 의한 관통부위의 밀폐가 종이에 줄그은 것처럼 그림같이 구현이 될까?  걱정이 됩니다.
M 관리자 2022.01.12 20:52
맞아요.. 제대로 하기 참 어려운 부분이어요.
전체가 용접이 전혀 없이 사방을 다 접어야 하는데.. 엄청 손이 많이 가서...
그래서 배수구 관리는 못해서 막히면 거의 100% 누수가 되는 게 우리나라 히든거터의 현실이라.. ㅎ

그림이 조금 오류가 있긴 하나, 접히는 상세는 아래와 같습니다.
유럽 얘들도 이처럼 할 수 있는 사람들이 점차 줄어들고 있다고 하더라고요.
1 이성환 2022.01.14 20:01
답변주신 모든 분들 감사드립니다.

이전 글들을 읽으면서 어느정도 예측은 했지만
막상 하자를 만드는 디테일로 판명되니 반성하게 되네요.

하자걱정 없는 검증된 디테일로
원하는 디자인을 만드는게 실력이라는 생각이
드네요.

세심한 답변 감사합니다.
M 관리자 2022.01.15 01:03
앞으로 잘 되실 거여요^^
Category