패시브하우스로 만드려고 합니다.

설계/시공관련 질문

질문 전에 먼저 검색을 해주세요.

 

패시브하우스로 만드려고 합니다.

G 박영균 9 2,518 2022.01.13 17:51

안녕하세요

여기는 전라도 광주 입니다.

저희가 사는 집을 두번째 설계하고 있습니다. 처음에는 내단열로 꼼꼼히 한다고 했는데도 살아보니 한계점을 느꼈습니다.


두번째 집은 이제 막 태어난 아들이 있어서 더 좋은 환경으로 이사하고자 설계중이고 올해 3월부터 착공하려고 준비하고 있다가 패시브협회에서 너무나도 좋고 많은 정보를 얻었습니다.

1층은 상가 2층은 저희세대 3층은 부모님 세대가 살려고 설계하고 있습니다.

 

외단열을 하고 기밀성을 높여서 열교환환기장치를 설치하기로 했습니다. 

그런데 창에서 이중창을 해야할지 3중 시스템창을 해야할지 아니면 환기 장치가 있으니 고정창으로 할지 막막한데 환기는 환기장치가 역활을 하니 고정창으로 하면 어떨까 하는 생각이 자주 들어서 조언을 듣고 싶습니다.

 

현재 지금 살고 있는 집도 창을 거의 열어서 환기를 안하고 있어서 고정창으로 해도 되지 않을까 생각이계속 듭니다. 지금 생각은 거실 큰창은 큰짐이 들어와해서 거기를 제외한 모든 창은 고정창도 괜찮을까요?

 

또한가지는 평지붕에 테두리로 두껍석을 설치하고 난간을 설치하려는데 어떤 디테일을 적용해야 열교현상이 없을지 궁금합니다.

Comments

M 관리자 2022.01.13 23:38
안녕하세요.

열리는 창은 환기의 목적도 있지만, 심리적 목적도 있습니다. 그러므로 열리는 창은 적절히 계획을 하시는 것이 좋습니다.
이중창 보다는 3중유리 시스템 창이 낫고요.

두겁이 석재라면, 그 하부에 방수시트를 돌려 주어야 합니다. 자세한 사항은 파라펫 내외의 재료 구성이 있어야 합니다.
4 재섭 2022.01.14 13:24
설마 모든 집의 창들을 전부 고정창으로 하실 생각은 아니시겠지요?

유리창들은 언젠가 안과 밖에서 한번씩 닦아줘야 합니다. 언젠가 유리창을 닦아야함을 고려하는 창호계획도 필요합니다~ 열리는 부분이 필요하다는 말이죠

그리고 모든창이 고정창이면 전열교환기로 환기가 가능한건 맞으나.... 시공중에 날리는 먼지로 시공시 너무 큰 리스크가 생깁니다. 작업자좀 고생하고 말지뭐 라고 생각할 수 있을지 모르겠지만.... 블로어라는애를 공사중에 계속 틀어서 현관등으로 계속 공기를 빼줘야하면 그것도 공사비 상승요인이 될테고, 알게모르게 내부 먼지에의해 자잘한 하자들이 생길 수도 있으니 내부청소도 굉장히 자주해야할것이구요.

정 하고자 하면 가능은하겠으나 추천은 못드리겠습니다.
G 박영균 2022.01.14 17:24
오늘 건축사와 허가신청 최종 수정 미팅을 해서 최종도면의 평지붕도 내단열에서 외단열로 변경하고 TB블럭에서 파라펫 디테일을 받아서 디테일도 그려봤습니다.

건물 구조가 필로티 구조라 주차장과 1층 건물에서 단열재로 기초를 끊어서 하려고 한다고 건축사에게 말했더니 안된다고 하더군요. 구조적으로 문제가 생긴다고 하는데 방법이 있는지와 필로티에 노출된 기둥도 열교현상을 줄일수 있는 대안이 있는지 궁금합니다.
G 박영균 2022.01.14 17:24
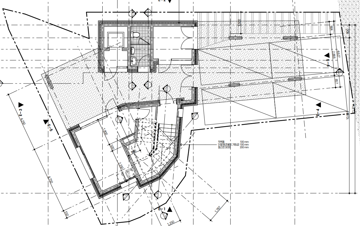
1층도면 입니다.
G 박영균 2022.01.14 17:25
단면도 입니다.
M 관리자 2022.01.15 00:23
안녕하세요.
발코니의 외단열 개념은 아래와 같습니다.

1. 파라펫의 높이가 너무 낮아서 티비블럭을 사용하는 것 보다는 일부 내단열로의 보완이 더 나아 보입니다.
2. 외단열미장마감과 두겁석은 서로 맞지 않는 조합 중 하나 입니다. 두겁석 하부로 흘러 들어오는 빗물의 양이 상당하기 때문입니다.
지금은 거의 하지 않지만, 우리 선배들이 했던 가공두겁석으로 되어야 그나마 빗물의 유입을 줄일 수 있습니다. 외단열미장마감의 끝단 마감 처리도 어느 정도 건전성을 유지할 수 있기 때문입니다.
3. 발코니의 마감 높이에 맞추어 옥탑방 슬라브를 올리는 것이 사용에 편하실 것 같습니다.
M 관리자 2022.01.15 00:29
1층이 거의 대부분 거실의 용도가 아니기에, 기초를 분리할 필요는 없을 것 같습니다.
인증을 2층부터 받으시면 될 것 같습니다.
다만 그럼에도 불구하고, 분리하고자 한다면 충분히 분리해 낼 수 있습니다. 우리나라 건축사가 그런 분리에 전혀 익숙하지 않은 탓인데, 이 부분은 안전과 관련된 것이라서, 그 분의 능력부족이 아닌.. 오히려 경험하지 못한 위험에 대한 방어심리에 가깝습니다.
어찌 보면 옳은 태도로 봐야 합니다.

기둥의 경우, 1층 천장의 마감 속에 들어가는 부분만 기둥을 감싸는 외단열을 하시면 열교는 위험 범위를 벗어날 것 으로 보이며, 정확한 것은 (인증 절차를 밟으신 다면) 인증 과정 중에 계산이 될 것입니다.
G 박영균 2022.01.15 12:42
꼼꼼한 설명과 대안을 주셔서 넘 감사합니다.
2. 외단열미장마감과 두겁석은 서로 맞지 않는 조합 중 하나 입니다. 두겁석 하부로 흘러 들어오는 빗물의 양이 상당하기 때문입니다.

외단열 미장마감과 맞는 조합의 마감과 디테일 좀 추천해 주시면 감사하겠습니다....
M 관리자 2022.01.15 16:08
외단열미장마감의 두겁은 금속 평이음 두겁이 가장 낫습니다.
Category