보일러와 열회수환기장치를 같은 공간에 두면 안되나요?

설계/시공관련 질문

질문 전에 먼저 검색을 해주세요.

 

보일러와 열회수환기장치를 같은 공간에 두면 안되나요?

G 김수연 3 2,468 2021.12.12 22:35

1안녕하세요

현재 건축사와 설계를 진행하고있는 건축주입니다.

 

열심히 공부를 하면서 설계를 하고있는데 잘 모르겠는 점들이 한두가지가 아니네요..

9월부터 설계 진행을 했고, 현재는 저희가 원하는 레이아웃이 어느정도 완성이 되어 가는 단계입니다. 

이제 한두차례 미팅을 더 한 후에 인허가를 들어가게 될 것 같습니다.

 

땅은 100평, 건폐율은 20%여서 그리 크지 않은 집이고요,

층수 제한은 4층까지 가능한 지역이어서 경량목구조로 3층으로 설계 진행 중입니다. 

 

한층 한층이 그리 크지 않다보니 제가 지금 가장 궁금한 점이

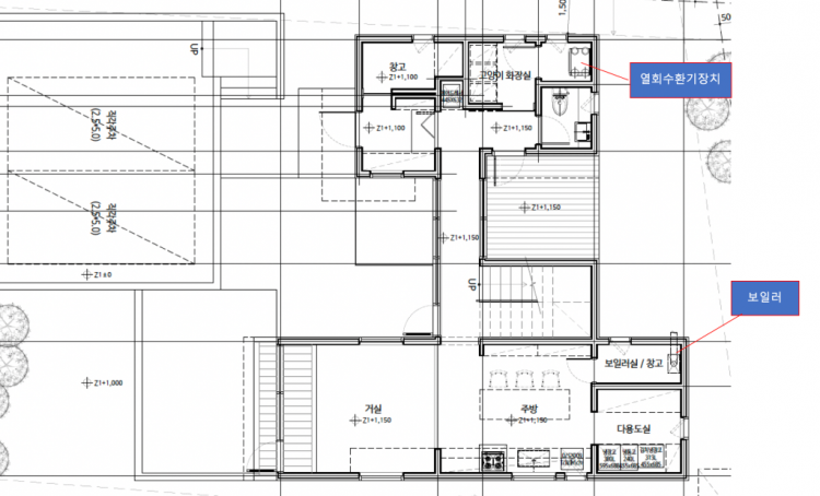
보일러실과 열회수환기장치실(?)을 꼭 따로 두어야하는지 너무 궁금합니다.

 

저희 건축사께서는 같이 두는게 좋지 않을것 같다라고 하시는데..

열회수 환기장치실을 따로 만들다보니 1층 화장실이 매우 작아서

혹시 가능하면 보일러실로 열회수 환기장치를 이동시키고 1층 화장실을 조금 더 키우고 싶은 상황이예요.

 

열회수 환기장치를 바닥에 두고 그 위 벽으로 보일러를 달면 안될까요..? 

 

보통 열회수환기장치를 어디에 두시는지 잘 몰라서..

저희 1층 도면을 보시고 한번 조언을 주시면 너무 감사할것 같애요..

열회수환기장치는 젠더사의 큐350으로 할 예정입니다!

 

Screen Shot 2021-12-12 at 10.20.01 PM.png

 

Comments

11 잡자재 2021.12.12 23:40
보일러와 열회수환기장치가 같은 공간에 있는 것은 전혀 문제가 되지 않습니다. 다만  OA가 보일러 연통인근에 있을 경우 배기가스가 유입될 수 있기에 OA와 보일러 연통은 충분한 이격거리를 확보하시는 것을 권장드립니다.
전열교환기 상부로 배관이 연결되어야해서 추후 보일러AS가 어려워집니다. 보일러와 전열교환기 모두 전면부 커버를 개폐할 수 있어야 합니다.
그리고 전열교환기의 압손실에 따른 팬의 풍량을 확인해보셔야 할 것 같습니다. 3층이면 수직배관만으로 약 10미터정도 되기에 배관의 마찰손실이 커져서 팬이 필요풍량을 확보하지 못하는 경우가 있을 수 있습니다.
M 관리자 2021.12.13 10:42
현재의 배치상... 보일러 하부에 두실 수는 없고...
환기장치는 다용도실 쪽의 벽면에 밀착한 후, 외기 급/배기를 다용도실 천장 쪽을 이용해서 외부로 나가는 것이 유리할 것 같습니다.
G 김수연 2021.12.13 21:26
두분의 답변 정말 감사드립니다.
Category