건축물 준공 후 용도변경 하고 싶을 때 절차..?

설계/시공관련 질문

질문 전에 먼저 검색을 해주세요.

 

건축물 준공 후 용도변경 하고 싶을 때 절차..?

1 데이빛 44 5,100 2021.12.13 14:00

설계 중인데 애초에 원하던 용도로 건축심의 통과가 어려울 듯 합니다.

 

두 가지 조건을 넣고 싶었는데요.

예컨대 (1)안을 넣으면 (2)안을 넣을 수 없고, (2)안을 넣으면 (1)안이 불가하답니다. 

 

그래서 일단 준공 한 뒤, 한 개 층을 용도변경할까하는데요.

 

이 경우 

1)대체로, 건축심의 등의 절차가 필요한가요? 아니면 건축허가팀 담당자의 행정적인 처리로 가능할까요?

 

2)혹시 지구단위계획 등이 적용되는 지역이라면, 용도변경 진행할 때 건축허가팀 외에 지구단위계획팀의 승인(?) 혹은 협의(?)등이 필요할까요? 

Comments

M 관리자 2021.12.13 14:06
아마도 건축심의시 불요 용도라면.. 나중에라도 변경이 될 수는 없을 거여요...
1 데이빛 2021.12.13 14:10
그럴까요? 이게..사실 건축심의기준 내용을 찾아보니, 다락 요건에서, 주택(복합건축물 제외)의 경우에 한해서 가능하다고 되어 있어요. 근데 지으려는 건물 지하가 근생이 심의 통해서 가능한 곳이긴해서요.

근생을 신청하자니, 복합건축물(단독주택+근생)이 돼서 다락을 포기해야 하고, 다락을 하려면, 건축심의기준에 따라 복합주택이 아닌 그냥 주거용 주택이 돼야하니, 일단 근생을 포기하고 지하층을 단독주택용으로 허가를 받은 뒤에, 지하층만 나중에 용도변경 신청을 할 생각이었습니다. 지하층만 놓고 보면 이 지역에서 요구하는 근생 요건을 갖추고 있거든요..
M 관리자 2021.12.13 14:29
그럼.. 근생에서 다락으로 통하는 통로가 없으면 지금도 가능할 것 같은데요. 단순히 용도로 분류를 하고 있나 보네요..
이 부분은 담당 건축사의 의견을 따르시면 문제가 없을 것 같습니다.
1 데이빛 2021.12.13 15:41
규정이 좀 특이해요. 통로 여부와 무관하게, 그냥 용도가 두 개 이상인 건물(복합건축물)이면 다락이 있으면 안 된대요. 건축사님과 상의해보겠습니다.
M 관리자 2021.12.13 15:44
^^ 독특하네요..
1 데이빛 2022.01.03 18:18
관리자님, 혹시 준공 후에 다락을 추가공사로 만드는 건 불법일까요?

건축심의에서..다락을 하고 지하층을 좀 더 단독주택에 어울리는 평면으로 바꾸거나, 아님 다락 포기하고 지하층을 근생으로 바꾸는 걸 권하는 내용이 나왔어요. 조건부 동의로 일단 심의통과는 했고요.

원래 의도는 다락을 일단 살리고 지하는 단독주택용으로 허가받아서, 나중에 지하층을 용도변경해서 근생으로 쓰려고 했는데요..

지금 생각은, 차라리 지하층을 근생으로 허가받고, 나중에 준공 후 다락을 추가로 공사할까하는 생각도 듭니다. 다만 이 경우엔, 다락 계단이 애초에 제대로 공사할 때보다는 다르겠죠. 뭔가 가구를 쌓아서 만든 계단으로 만든다거나..

어떻게 보시는지 의견 궁금합니다.

그리고 시공사 혹시 문의드리고 싶은데요. 지금 상황을 보면 애초 계획에서 크게 어긋나지 않을 것 같습니다. 3월 중에 착공이 가능하지 않을까싶은데요. 늦어도 4월엔 해야겠죠. 1,2월에 굴토심의 후 시굴조사가 잘 끝나면 시공사 선정 후 착공신고 가능할 것 같습니다.

일단 저희 건축사님은 계속 목조주택 같이 작업해오던 소장님이랑 또 다른 종건업체 한 곳(역시 목조 여러 번 해보신)에 비교견적을 받아서 결정하자고 하시네요. 적어도 건축가의 목조주택 설계를 여러 번 시공해본 경력이 있는 A급(?) 시공업체의 비교견적이 좋겠다고 하시고요. 저는 저대로 좀 알아보겠다고 말씀은 드렸습니다. 지금 건축사님이 목조건축협회 임원이셔서..대부분 목조 쪽은 어느 정도 실력 있는 시공사나 빌더분은 아신다고 하시네요. ㅎㅎ

건축심의에 필요한 골조도면은 있고 여기에 창호도면 정도 추가되면 어느 정도 견적은 받을 수 있지 않을까싶어서요. 3-4월 착공 목표면 1월엔 시공사 견적을 좀 받아야하지 않나 싶어서요.
M 관리자 2022.01.03 18:33
네.. 없던 다락의 추가는 준공 후 인테리어 사항으로 푸셔야 해요. 준공 전에 하실 수는 없을 것 같습니다.

시공사 견적은 일단 두 군데에서 받기로 하셨다니 그냥 그대로 진행하시는 것이 어떨까 싶습니다. 아무래도 담당 건축사와 일을 해본 곳에서 하는 것이 결과의 품질이 좋거든요.
책임의 소재로 분명하고요.
1 데이빛 2022.01.03 18:47
그렇군요. 그럼 혹시 준공 후 다락 설치가 불법이라서 나중에 과태료가 부과될 수 있다거나..어떤 불리한 점이 있을 수도 있을까요?

그리고, 지하층 관련해서 지난번에 토목용 eps 추천해주셨는데요, 목구조 1,2층은 뭐 어떻게든 짓더라도, 삼면이 잠기는 지하층이 있어서, 콘크리트 지하층을 얼마나 제대로 시공할 수 있을지에 대해선 좀 우려가 됩니다. 목조주택 잘 하셔도 콘크리트까지 잘 하시는 분은 거의 없다고 들었거든요..아니면 어차피 콘크리트는 외부에서 다른 팀을 섭외할지도 모르겠습니다. 두 곳 모두 대표님들이 다 시공은 가능하나, 지금은 관리자 역할이라고 들었어요. 운영하시는 시공팀 및 현장소장이 따로 있겠죠.. 문제는 이 두 시공사에서 지하층에 대해서 어느 정도 잘 해줄 수 있는지, 제가 패시브협회 기술자료 및 유투브 영상을 보고 지하층에 이런 것들을 고려해서 시공해달라고 할 때 그걸 반영해서 해줄 수 있을지 모르겠습니다. 비교견적도 중요하지만 그 전에, 지하층을 어떤 식으로 시공할 수 있는지도 미리 물어봐야하나 싶어요.
M 관리자 2022.01.03 18:58
다락이 없는 것이 허가 조건이므로, 다락을 만들어서 적발(?)되면 이행강제금을 매번 부과하게 됩니다. 원상복구가 될 때까지..

지하층의 경우, 무언가 요구사항이 있다면 건축사께 말씀드려서 도면에 특기사항으로 적어 놓는 것이 좋고, 그저 "잘"이라고 한다면, 그건 미리 예측하기는 어려운 부분 같습니다.
1 데이빛 2022.01.06 10:20
답변 감사합니다.

관리자님 혹시 발코니를 사트방수로 할 경우 설계 조언 좀 부탁드려도 될까요?

그리고 지하층을 오픈컷으로 외방수 공사가 가능하려면, 외부벽체 밖으로 어느 정도 여유 폭이 있어야 할까요?

지하층 면적을 1층이랑 비슷한 면적으로 늘릴까 하는데, 저희 건축사님은 지금 수준보다 지하층 면적이 늘어나면, 지하층 오픈컷은 어려울거라고 하시더라고요..
M 관리자 2022.01.06 15:02
외부에서 작업이 가능하려면 1.5미터 정도의 여유는 있어야 합니다.
그리고 발코니의 시트방수에 대한 것은 발코니 상세도(?)까지는 아니더라도 재료의 구성이나 두께를 알 수 있는 도면을 올려 주셔야 할 것 같습니다.
1 데이빛 2022.01.06 16:02
감사합니다..
제가 다른 글 댓글에 올린 평면도를 보시면 아시겠지만..

http://www.phiko.kr/bbs/board.php?bo_table=z4_01&wr_id=41681

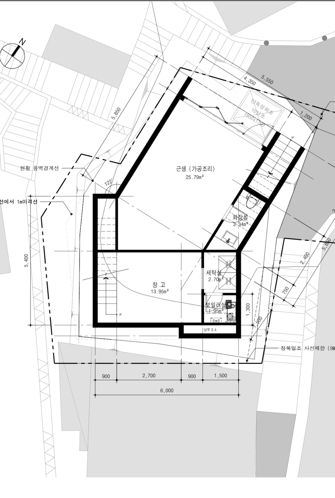
평면도에서 지하층이 1층보다 면적이 좁고, 1층이 지하층보다 외부로 더 나온 부분이 있는 쪽(평면도상 아래쪽)은 1.5미터 이상이 가능해보여요. 다만 양쪽 측면은, 1.5미터까지는 안 될 것 같고요. 이 경우에 오픈컷이 어려울까요?

그리고 토목용 eps 제안해주셨던 것에 대해서..현재 지하층 도면으로는 공사가 어렵다고 하셨는데요, 토목용 eps를 넣는 경우 공사가 어떻게 달라져서 가능하게 될까요?
M 관리자 2022.01.06 16:15
어느 한 곳이라도 공간이 없다면 오픈 컷은 공사비 절감 외에는 의미가 없습니다.
토목용 EPS를 사용하는 것은 흙을 수평으로 잘라 내기만 하면 되니까요.

지금의 도면을 공사 순서대로 상상을 해보시면...
절토 - 지하층공사 - 되메우기 를 해야 1층 슬라브 타설이 가능한데...
지금 토목용 EPS가 들어가 있는 부분을 원래 도면대로 한다면, 흙으로 채워야 하는데, 그게 제대로 된 다짐이 되기 힘든 상황이거든요. 물론 그 하부의 흙도 다짐이 되기는 어려운 상황인지라...

그래서, 구조적 안전성을 위해 지하의 크기와 지상의 크기를 맞추는 것이 가장 좋습니다.
1 데이빛 2022.01.06 16:35
댓글내용 확인
1 데이빛 2022.01.06 16:49
댓글내용 확인
M 관리자 2022.01.06 17:28
네 그럼 같게 하시는 것이 좋겠습니다.
중요도 순서가 구조-물-열-디자인 이니까요..
일단 구조를 먼저 고려하고, 물은 그 다음에 고민해도 늦지 않을 것 같습니다.
1 데이빛 2022.01.06 20:19
감사합니다. 혹시 지하층을 지금면적으로 유지한다면, 파란색 부분을 아예 콘크리트로 다 처리하는 것도 가능할까요? 그렇게 하면 흙을 다지는 것보다 좀 더 안정적일까요?

지금 마음은, 일단 다락은 포기하는 걸로 굳혔습니다. 준공 이후에도 추가로 만들지 않으려고요. 왠지 마음이 꺼림직해서요(민원 등)

근생으로 지하층을 바꾸면 되는데, 지금 관심은 지하층 면적입니다. 구조가 가장 중요하니..1층이랑 동일하게 하려고 생각을 하게 됐고요. 혹시라도 구조적으로 비슷하게 안정적으로 할 수 있는 방안으로, 파란색 부분을 아예 기초로 다 콘크리트 처리를 하면 안정적이지 않을까란 생각이 들었습니다.
M 관리자 2022.01.06 22:20
비밀글은 답변을 드리지 않는 것이 원칙입니다.
----------------
그렇게는 안되며, 아래 영상을 참고 하시되, 해당 선택은 담당 건축사가 결정을 할 부분 같습니다.
https://youtu.be/slNMglItDm0
1 데이빛 2022.01.11 00:25
관리자님, 혹시 토목쪽으로 자문을 좀 구할 수 있는 분 추천 좀 부탁드려도 될까요? 저희 건축사님은, 1층이 더 넓은 부분 아래가 설사 텅 비어도..구조적으로 문제없다고 하시네요. 1층 면적의 일부니까 마치 캔틸레버 구조처럼 생각하시더라고요.. 제가 아무리 이야기해도 안 될 듯한데..제3자이면서 좀 더 전문지식을 갖고 계신분을 좀 구해서 이야길 들어보자고 하려고 합니다. 토목쪽이어야 할지..구조기술사분을 찾아야할지 모르겠는데요. 추천 좀 부탁드릴게요. 제가 그렇다고 예산이 넉넉하진 않아서..어떤 전문적인 구조적인 작업 자문을 부탁드린다기보다..이런 정도 도면이고 시공에서 적어도 이런 우려가 있으니 이렇게 하는 게 구조적으로 안정적이다. 혹은 캔틸레버 구조와는 다르고 분명 구조적인 안정화 작업이 필요하다..등 어떤 식이건 지금 그대로 시공하는 건 아니라는 쪽으로 근거가 될 수 있는 이야기를 좀 해주실 수 있는 전문가분이  필요하다고 느꼈습니다.
1 데이빛 2022.01.11 09:16
구조기술사분을 제가 직접 알아보는게 좋다면 그렇게
하겠습니다.

한 가지만 더 여쭤볼게요
1)지하층을 1층 면적에 맞추는 경우, 흙막이 공사를 꼭 해야한다고 하는데 맞는 말일까요? 이미 어찌보면 지하가 다 파진 상태거든요. 오픈컷이 이미 된 상태라고도 할 수 있을 것 같아요.

2)흙막이 공사를 하고 지하층을 1층 면적에 맞추는 경우(1층에서 지하로 내려가는 내부계단 만들고, 지하층 추가로 생기는 면적은 단독주택 용도로 활용) 시공비 vs 현재처럼 지하층을 두되, 1층 아랫부분을 유투브 영상(기초의 기초 마지막편에서) 말씀하셨듯 c급 콘크리트로 채울경우, 시공비.  혹시 이 두가지를 대략이라도 비교하고 싶으면 어떻게 해야할까요? 구조기술사분이 이런 견적을 내주시진 않을 것 같고요. 저희 건축사님이게 이걸 대략 좀 알아봐달라고(견적을 내려고 하는 시공사에?) 해야할까요?

저는 이 두 가지 방법 시공비가 큰 차이가 없다면, 새로 생기는 지하층 주택 공간이 크지 않더라도 그냥 지하층을 1층에 맞춰서 늘리고 싶거든요.

만약 지하층 면적을 늘리는게 흙막이 공사 때문에 훨씬 비싸다면, 그냥 지금처럼 면적하고 콘크리트로 아래를 채우려고 하고요..
M 관리자 2022.01.11 09:57
제가 토목분야 자문을 하실 분을 알아봐 드리는 것을 떠나서... 제 3자가 설계에 개입하는 것은 그리 좋은 형태는 아닙니다. 물론 이를 어떻게 받아 들이는지 역시 사람마다 다르긴 합니다만, 소규모건축물 시장에서 통상적인 것은 아니라서요..

0. 해당 구조는 캔틸레버 형식으로는 불가능합니다.  예측컨데 그저 자존심 싸움하고 있는 것으로 보입니다.
지하가 빈 부분은 다짐을 제대로 하던가, 아니면 지하를 1층과 맞추던가를 해야 하는데...
설계하는 입장에서... 심의까지 끝난 도면의 변경은, 그 절차를 다시 밟아야 하는 부담이 있습니다. 부담은 곧 비용이자 시간이므로, 면적의 증가에 대해서는 기술적인 부분 만으로 볼 수 없고, 이러한 행정절차를 번복하는 것까지 논의가 되어야 합니다.
이런 종합적 논의 끝에 면적을 늘리는 것이 무리다 싶다면.. 영상에 나온 300mm 높이 마다 물다짐을 하셔도 괜찮은 부분이기도 합니다.

1. 도면에 표기한 만큼 땅이 파여져 있다면, 일부 작게나마 흙막이가 필요해 보입니다.
흙막이는 가설공사라,, 콘크리트를 채우는 것 보다 금액은 적습니다.

2. 콘크리트는 1세제곱미터당 7만원 보시면 되세요.. 대략 계산이 가능할 것 같습니다.
1 데이빛 2022.01.11 11:20
제3자가 개입하는게 통상적이지 않다는 건 저도 대략 알고 있습니다만, 이 상황에서 제가 건축사님에게 무슨 말을 해도 본인 말씀이 맞다고 확신하고 계시기에 저로서는 어쩔 수 없는 선택입니다. 제가 비용을 추가로 들여서라도 구조기술사분을 섭외해서 여쭤보고 싶습니다. 근데 사실 이런 비용을 제가 추가로 부담하는게 맞나싶기도 하고요..설계에서 해주셔야할 부분인데..건축주를 그냥 끌고 가려고 하는게 아니라 근거를 제시하고 선택지를 주셔야할텐대 많이 아쉽습니다. 오늘 중으로 이런 의견 전달하려고 해요.

0. 다행히 구청에 문의하니 지하층 면적이 지금보다 3-4평 정도 늘어나는 건 괜찮다고 하더군요. 그래서 지금 건축사님에게 행정적인 부담은 거의 없습니다.

1.흙막이 관련해서, 제가 현장사진을 아래 비밀댓글로 달겠습니다. 3년 전 사진 및 최근 1년 전 사진입니다.

2.흙막이가 대략 100-200만원이면 될까요? 가설구조물이라 비용이 많이 들지 않는다면, 저희 건축사님은 아마 지금 그대로 가는게 그 적은 비용이라도 아끼는 방법이라고 보시는 것 같은데요. 콘크리트 계산해보니, 지하층 늘어날 면적이 대략 22-23제곱미터 정도 되는 것 같고, 높이가 2미터라면 최대 50세제곱 정도이고 7만원으로 계산하면 350만원입니다. 지하층을 넓히는 식으로(+1층에서 지하로 내려가는 내부계단 만들고) 공사한다면, 흙막이 공사에 또 어느 정도 비용이 늘어난다고 볼 수 있을지 궁금합니다.
1 데이빛 2022.01.11 11:24
댓글내용 확인
1 데이빛 2022.01.11 11:26
댓글내용 확인
1 데이빛 2022.01.11 11:33
댓글내용 확인
1 데이빛 2022.01.11 11:34
대략 현장 느낌이 이런 상황이고, 이 상태에서 흙막이가 과연 필요할지는 사실 수풀을 철거하고 현장을 더 자세히 보고 결정이 되겠지만, 일단 이 정도 사진으로 판단이 될 수 있는 부분이라고 조언을 좀 부탁드리고 싶습니다.

-흙막이 공사 한다면 대략적인 비용(100-200백이면 될지?)

-흙보다는 땅이 암반이 많은 상황이고 이미 그 암반 지하층을 기존 토지주가 몇 천을 들여서 다 파 놓았습니다.(심지어 정화조도 땅 속에 묻어 놓았다고 하더군요) 원래 땅 높이는 남쪽으로 붙은 집이랑 거의 같은 레벨이었다고 합니다. 물론 북쪽으로 오면서 약간 더 낮게 경사가 지긴 했지만요.

이 상황에서 과연 굳이 지하층을 더 좁게 만들고, 남은 공간을 성토하거나 콘크리트를 채우는 시공이 합리적일지..아무리 봐도 지층을 1층에 맞춰서 시공하는게 맞는 것 같아서요. 흙막이 공사가 얼마나 든다고 지층을 늘리는 걸 반대하시는지 모르겠습니다.
M 관리자 2022.01.11 19:12
사진 상으로는, 흙이 아니라 연암 지역이라서 흙막이는 필요로 하지 않을 것 같습니다.
C급 콘크리트로 채우던가, 늘리는 것이 합리적으로 보입니다.

어떤 근거를 떠나서.. 그냥 늘려 달라고 하시는 것이 어떨까요? 면적을 더 쓰고 싶다고....
1 데이빛 2022.01.12 11:47
네..그렇게 면적을 더 쓰고 싶다고 했지만..지하로 내려가는 계단 공간을 빼면 2-3평 정도 공간이 늘어나는데 굳이 지금대로 하지 않고 변경할 이유가 되냐고 말하시더라고요.

계속 흙막이 공사를 말하시는데..
만약 흙막이 공사가 필요하게 되면, 비용보다도 그런 스타일 공사를 거의 해보지 않으셔서
뭔가 자신(?)이 없으신 건 아닌지하는 생각도 들고요.
목조주택을 주로하셨으니, 사실 지하층도 그렇고, 흙막이 공사를 하실 일은 별로 없으셨을 것도 같습니다.

여튼, 저도 잘 이해가 안 될 정도로..꽤 방어적인 태도로 강하게 반대를 하셔서
좀 당황스러웠습니다.

그래서 제가 궁금했던 흙막이 할 경우 대략 견적과
지금대로 할 경우 대략적인 견적을 제대로 물어보지도 못했고요..
1 데이빛 2022.01.12 11:51
주변에 다른 시공하시는 두 분께 물으니,

한 분은,
"지하층을 넓힌다면 골조 작업 공간이 잘 안 나올 거다. 그렇다고 합벽을 친다면 방수나 다른 공정이 문제가 되고, 실 사용 공간이 크게 넓어지지도 않을 거다."
라고 하시더군요.

또 다른 분은,
"일단 측량을 통해서 실외기가 있는 곳과 건물배치도상 계단실벽면과 얼마나 공간이 있는지 파악하는게 우선이다. 서쪽 옹벽은 수직으로 터파기가 되어 있어서, 추가로 흙막이 공사가 필요하지 않아보이지만, 실외기가 있는(남쪽) 옹벽은 어느 정도 여유가 있느냐에 따라서 지하층을 넓힐 경우 흙막이가 필요할 수도 그렇지 않을 수도 있을 것 같다...현행대로 하면 오픈컷이 가능하고 지하층을 넓히면 흙막이 공사를 해야한다.."
라고 하시더군요..
M 관리자 2022.01.12 11:57
아.. 도면을 다시 보니.. 현황 옹벽선이 표시가 되어 있네요..
그럼 두 번째 말씀하신 분이 맞을 가능성이 높아 보입니다. 단열/방수를 고려할 때, 지하층을 넓히지는 마시고, 다짐의 방법이나 C급 콘크리트로의 충진을 고려하시는 것이 맞겠습니다.
1 데이빛 2022.01.12 13:34
만약 구조적인 문제와 별도로 더 공간이 필요해서 지하층을 1층에 맞춰서 넓히고 싶다해도, 단열 방수 고려할 때..즉 외방수 외단열이 어려워지기에 지하층 넓히는 게 별로 좋지 않다고 하시려나요?

시작은 구조에 대한 불안이었지만, 어제 아내랑 이야기하다가 창고용 공간이 더 필요할 것 같다는 의견이 나왔거든요.

제가 합벽구조나, 흙막이 등에 대해 개념이 잘 안 잡혀있다보니..좀 이해가 잘 안 되는데요.

지하층을 늘리면, 합벽구조(?)로 공사를 해야해서, 거푸집 밖으로 외벽에 방수가 어려워진다고 이해가 되는데 맞나요? 그리고 합벽구조라는게 결국 흙막이와 같은 개념일까요?
M 관리자 2022.01.12 16:45
네 그럴 수 있습니다. 외단열을 고려하신 다면요..

흙막이는 외단열이 가능합니다. 외벽으로 부터 작업 공간을 남기고 흙막이를 설치하는 거라서요.
합벽구조는 그게 안됩니다. 기존 옹벽에 붙여서 외벽을 만드는 것이라 그렇습니다.
1 데이빛 2022.01.13 11:52
그럼 현재 상태에서, 지하층 면적을 늘리면서 동시에 외단열 외방수 할 수 있는 흙막이 공사가 가능할지는 어떻게 혹은 누가 판단가능할까요? 시공사 등에 문의를 해야할지..아님 토목시공하는 쪽에(흙막이 공사 전문 등) 문의를 해야할지 모르겠습니다..
1 데이빛 2022.01.13 12:13
일단 주변에 하우징 업체에 있는 분께 물어보니, 흙막이 공사는 기본장비셋팅이 비싸다며, 나중에 인발(?)까지 생각하면, 1500 정도는 나올거라고 하시네요..;;물론 보호공 길이 및 현장여건이 중요하다고는 하시고요..
M 관리자 2022.01.13 12:27
흙막이가 있는 상태에서 외단열공사가 가능하려면, 외벽으로 부터 흙막이까지의 거리가 1미터가 나와야 합니다. 즉 지금 도면과 현장 상황을 비교해 보면 비교적 쉽게 판단이 가능하세요.
이 추정을 통해서 지하층 면적을 넓힐지 말지를 먼저 결정을 하시고,

1. 만약 된다면, 나중에 시공사 견적을 받을 때 이 흙막이를 조건으로 견적을 받으시면 될 것 같고,
2. 만약 안된다면, 지금 그대로 가되 다짐을 어떻게 할 것인가만 고려하면 될 것 같습니다.

흙막이의 실제 필요한 높이가 얼마 되지 않기에, 옆 대지까지 삽입고정을 하는 방식은 하지 않아도 괜찮습니다. 아마도 지금 상황이라면, H빔을 박는 식으로 해결이 될 것 같습니다.
1 데이빛 2022.01.13 13:31
그렇군요..

일단 제가 봤을 때, 옹벽현황선에서 건물외벽까지 길이가 1미터가 안 되는 부분이 있는 것 같아요.(지하층 넓어질 남쪽으로 옆집에 면한 옹벽..) 그럼 이 부분 때문에 흙막이 해도 전체적으로 외단열이 안 된다고 보면 될까요?
M 관리자 2022.01.13 13:57
네.. 혼용은 더 좋지 않기에.. 안된다고 보시는 것이 좋겠습니다.
1 데이빛 2022.01.29 10:26
관리자님 이건 다락 및 지붕 관련 질문인데요..

다락을 하지 않을 경우, 다락으로 구상했던 부분을 설비시설(?)처럼 사용할 수 있을 것 같더라구요. 그니까, 2층에 일부를 평천장으로 마감하고 그 위를 원래는 다락으로 사용하려고 했는데, 그 대신 그 부분을 그냥 여러 설비배관(열회수환기장치 배관 및 전기배관 등)이 지나가는 곳으로 하고, 나중에 점검 및 수리 가능한 정도로 해놓으면, 그것도 좋다고 하더라고요.

그런 설비공간이 평천장 위에 없으면 그런 배관들이 지붕 속으로 들어가야한다는데요..

제가 궁금한 건
목조주택이라 벤트를 만들텐데,
지붕에 열회수배관 등이 들어간다면 도대체 지붕의 어느 공간으로 들어갈 수 있을지예요.

다락을 할지 말지 고민인데,

만약 다락을 만든다하면 배관들이 지붕에 들어갈 것 같아서 그게 기능적으로 괜찮을지가 궁금합니다.

아니면 다락을 만든다해도,
다락 한켠에 PS를 만들면, 굳이 지붕 속으로 설비관을 지나게 하지 않아도 될까요?

첨부한 도면 사진처럼
애초에 다락을 구상했을 때 한켠에 ps가 있긴했거든요.

근데 ps가 다락에 있더라도
결국 그곳을 통해 열회수환기장치관이 지붕으로 들어가는 걸까요?

만약 그렇다면
혹시 다락 내부에,
혹은 다락 바닥이나 다락 벽면을 따라서
열회수환기배관이 지나갈 수 있는 통로구조를 만들면
굳이 지붕으로 배관이 지나가지 않게 할 수도 있을까요?
1 데이빛 2022.01.29 10:27
댓글내용 확인
M 관리자 2022.01.29 10:34
우선 통기층에 대한 개념을 정립하셔야 하는데요.
아래 글의 중간 쯤에 "바. 지붕의 단열재 위치" 를 보시면 도움이 되실 것 같습니다.
http://www.phiko.kr/bbs/board.php?bo_table=z3_01&wr_id=2988
1 데이빛 2022.01.29 20:37
말씀해주신 내용을 봤습니다. 근데 단열재 위치는 알겠습니다만..지붕에 설비층 위치는 여전히 모르겠습니다..

지붕구조를

알루미늄징크-멤브레인-방수시트-OSB-2x2벤트층-투습방수지-2x10 서까래(글라스울)

이렇게 한다면,

질문1)여기서, 예컨대 열회수환기장치 배관이 어디로 들어갈 수 있을까요?


질문2)
근데..외부통기형 지붕에도 투습방습지는 필수인가요??
M 관리자 2022.01.30 20:35
지붕의 설치층은 없어도 괜찮습니다. 들어가는 설비가 전등 몇개 밖에 없어서요. 별도로 두지 않고, 기밀테잎이나 전용제품으로 전선을 마감하는 것이 더 저렴하고 편합니다.

1. 다락이 경사지붕이라면.. 지붕이 벌어지는 것을 막기 위한 칼라타이라는 것이 들어가게 되고, 박공지붕의 꼭지점에 삼각형의 공간이 생기게 됩니다.

알루미늄징크-멤브레인-방수시트-OSB-2x2벤트층-투습방수지-2x10 서까래(글라스울)-삼각형공간-가변형방습지
로 구성이 되며, 이 삼각형 공간에 배관이 들어가게 됩니다.

2. 네.. 통기층으로 들어온 빗물을 처리하기 위해 필수적으로 요구되는 사항입니다.
1 데이빛 2022.02.02 09:18
음..말씀하신 칼라타이가 들어가면, 그만큼 다락 천고가 줄어들겠죠?

안 그래도 다락 규정이 엄격해서 다락 천고가 낮거든요..최고 높이가 정해져 있다보니, 지붕 구조물 두께를 빼면 너무 낮더라고요..

혹시 칼라타이는 필수일까요?
M 관리자 2022.02.02 13:03
필수는 아닙니다. 그 것을 대체할 수 있도록 구조계산만 되면 됩니다. 예를 들어 일부 기둥을 사용해도 되고요.
Category