기존건축물에 두겁과 난간공사

설계/시공관련 질문
질문 전에 먼저 검색을 해주세요.

 

 


기존건축물에 두겁과 난간공사

1 코코서울 3 130 11.21 15:39

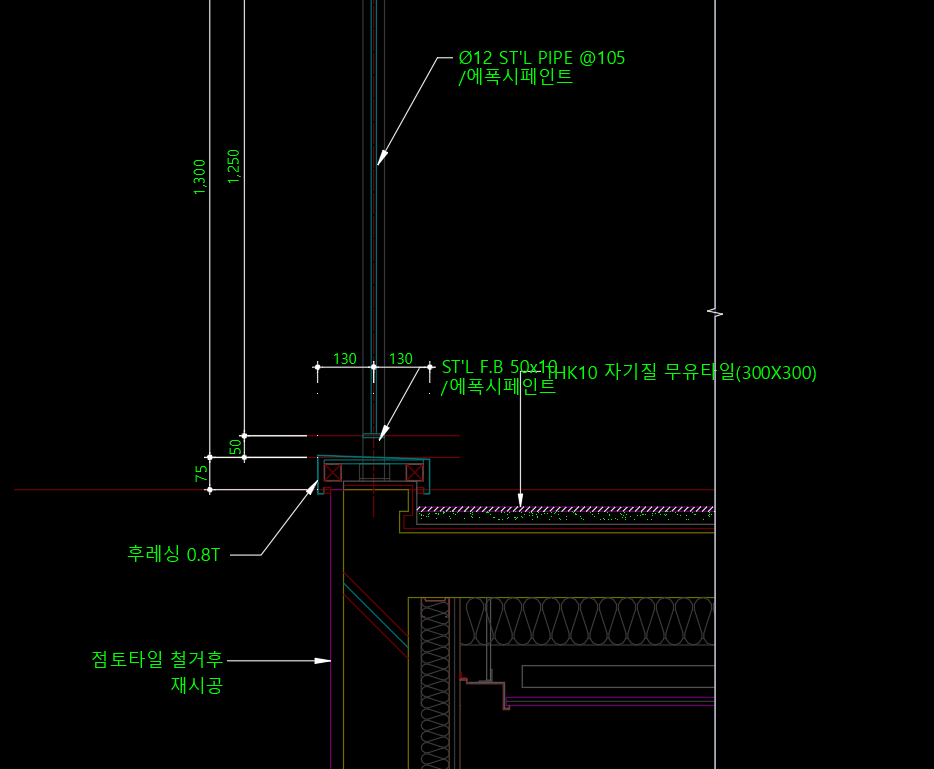
갈바후레싱관통 난간.png

 

철제두겁과난간.png

 

안녕하세요

12년된 기존건축물 베란다에 두겁과 난간을 시공하려고합니다.

누수방지를 위해 측면 난간설치 하고싶지만 파라펫 턱이 낮아 불가능합니다.

첫번째는 갈바후레싱을 관통하고 골조에 고정하는 방식,

두번째는 두겁을 스틸플레이트로 제작하여 철제두겁에 난간을 용접 고정하는 방식입니다.

가능한 계획일까요?

 

 

Comments

M 관리자 11.21 16:39
안녕하세요.
난간을 외벽에 고정하는 것은 혹시 고려해 보셨나요?
1 코코서울 11.21 21:49

외벽에 점토타일을 계획중입니다. (기존타일 철거후 재시공)
두겁과 점토타일 사이에 여백을 두고 난간설치하면
또 점토타일에 백화가 심할까봐 고민됐습니다
M 관리자 11.21 23:17
저는 서로 무관(난간과 백화)하다는 의견입니다만, 취향과도 상관이 있으니까요.
올려 주신 그림에서 첫번째가 나을 것 같습니다. 두번째는 신박하기는 하나 그 정도의 비용을 쓸 이유는 없어 보입니다. 실제 작업이 가능할지도 의문이고요. (중량)
그저 최선은 3M 760 UV 과 같은 UV저항 실란트를 사용하시는 것입니다.
Category