합벽구조, 이중벽 지하방수 문의드립니다.

설계/시공관련 질문

질문 전에 먼저 검색을 해주세요.

 

합벽구조, 이중벽 지하방수 문의드립니다.

1 데이빛 29 8,555 2021.11.27 23:32

경량목조 단독주택 설계 중인 예비 건축주입니다. 

대지가 좁아서, 

합벽구조로 지하층 공사를 한다고 건축사님이 알려주셨어요.

저는 도막방수라도 외방수를 하고 싶은데, 그것도 안 된다고 하시더군요..;;;

 

삼면이 흙에 닿고, 

한 면은 차가 바로 들어가는 일종의 벙커형 주차장 느낌의 지하입니다.

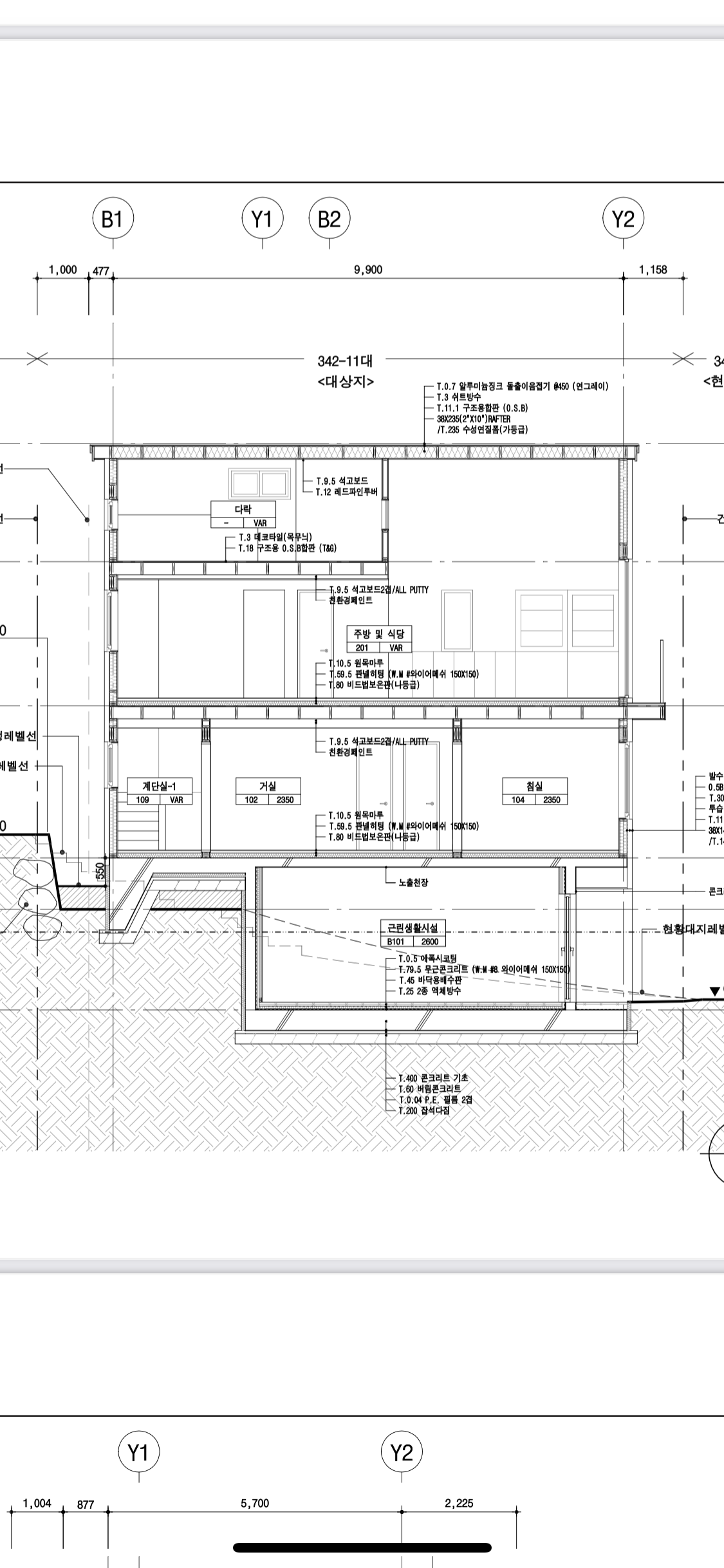
설계도면에서 캡처한 사진 올립니다.

 

 

Comments

1 데이빛 2021.11.27 23:34
긴 글 올렸는데...이게 왜 글이 짤렸을까요..ㅠㅠ 삭제도 안 되고 수정도 안 되니 일단 글을 다시 써보겠습니다.;;;
M 관리자 2021.11.27 23:38
네 ㅠ
너무 길면 그럴 수 있습니다.
댓글로 나누어 올리셔요.
G 데이빛 2021.11.28 00:34
북쪽에서 바라본 정면 사진입니다.
G 데이빛 2021.11.28 00:35
동쪽에서 본 옆면입니다. 보시다시피 경사가 있어서 흙에 잠기는 부분이 많습니다.
G 데이빛 2021.11.28 00:36
서쪽에서 본 모습입니다. 이쪽 면도 2/3 정도는 흙에 잠깁니다.
G 데이빛 2021.11.28 00:38
이건 건축사님이 제안한 이중벽 내벽의 세 가지 선택지입니다.
M 관리자 2021.11.28 00:42
도면 잘 보았습니다.
지하층 외벽의 단열은 어떻게 하시려 하나요?
G 데이빛 2021.11.28 00:45
이전 질문글을 검색해보니,

http://www.phiko.kr/bbs/board.php?bo_table=z4_01&wr_id=15477

이 글에 아래와 같은 댓글이 있더라고요.

_______________________
유영휘
(전략)
합벽 거푸집공법은 내부방수 밖에 없는 실정입니다.지하에 내부방수를 잘하더라도 지하수의 수압 에 따른 누수우려가 상존하므로 결국 유입수의 물길을 유도 집수하여 펌핑하는 방법 밖에 없습니다.

도심지 건축에서 지하층 방수와 싸움에서 결국은 해결책을 찾지 못했으며, 차선책으로 지하옹벽에서 10cm정도 공간을 띄워 벽을 형성하고 상하로 환기구멍을 설치하여 옹벽에 잔존하는 잉여수나 누수를 옹벽하부에 트렌치를 설치하여 집수정으로 유도하여 펌핑하는 실정입니다.
 
 따라서 지하실에 주택을 할 경우, 드라이 에어리어 등을 설치하는 등 조치를 취하여야  단열과 결로 곰팡이에 대한 해결을 볼 수 있을 것이라 사료됩니다.
그냥 지하옹벽을 실내벽으로 사용하면 결로와 곰팡이발생을 피할 수 없을 것입니다.
(후략)
——————————————-

2 green건축 2019.03.24 15:34

(전략)
내단열 시, 콘크리트라는 "열전도율이 높은 재질의 구조체"를 통해 들어오는 외기가 내단열재와 경계면에서 낮은 온도로 인하여 내부 결로가 발생하듯, 내방수공법이 적용된 지하실의 흙과 면하는 벽이나 T형 부재의 슬래브 또는 보와 같은 구조체는 지하수위에 따라 물속에 들어가 있을 수 있습니다. 여기서 철근은 녹슬어 단면이 훼손되고 구조 내력을 상실하게 될 것입니다.

내부로 유입되는 외부수는 침투성방수 또는 시멘트 액방과 같은 무기질계 방수재로써는 차단이 어렵기 때문에, 이중벽을 쌓고 하부 트렌치를 통해 집수정으로 모은 다음 외부로 펌핑하여 처리합니다. 차선의 최선이고, 비용과 공기를 만회하기에는 아주 good입니다. 주어진 조건에서 그렇다는 겁니다.

수년 전, 표준시방서 방수공사 집필진들께 두 가지를 제안했었습니다.
시멘트 액방과 같은 탄성이 없는 무기질계 방수공법의 폐기와, 지하실 외방수를 법제화 하는 게 좋을 것이라고...
(후략)
—————————-

관리자님께서도 댓글에 지수판의 중요성을 얘기해주셨고요.
G 데이빛 2021.11.28 00:48
네..지하층 외벽은 아직 설계도면에 명시가 안 됐습니다. 아직 초안이라서요..건축심의 전에 다른 심의를 위한 단계입니다..

합벽구조에서 지하층 단열 추천 부탁드려도 될까요?
M 관리자 2021.11.28 00:56
네.. 단열도 내단열이어야 하는데요.
외벽의 외단열과 지하의 내단열이 일정 구간, (구조체를 사이에 두고) 겹치게 하는 것이 좋습니다.

1. 외벽의 벽돌처럼 생긴 자재가 무엇인지 말씀해 주시고, 지하층 외벽의 수직선으로 된 마감재가 무엇인지도 알려 주세요.

2. 지하가 모두 주차장인지, 아니면 다른 목적의 실도 있는지.. 그리고 그 실이 냉/난방을 할 계획인지도 알려 주시어요.

정보를 주시면 답변은 내일 점심 때 쯤 드리겠습니다.
G 데이빛 2021.11.28 00:57
제가 드리고픈 질문은,

(1)이중벽을 하는 것만으로 분명 취약한 점(습기 곰팡이..)이 있을텐데, 트랜치 및 집수정을 하더라도 이런 곰팡이 문제를 어떻게 예방가능할지..입니다. 젠더사 열회수환기장치를 달 예정인데, 지하층은 제외하려고 했는데요, 이제보니 습도 조절 위해서 해야하나 싶기도 합니다. 아니면 차라리 제습기를 하나 놓고 계속 돌려야할지..
곰팡이 관련해서, 위 아래 그릴을 설치하는 내벽을 만들면, 괜찮을까요? 오히려 곰팡이가 지하층 내부로 유입되는 결과가 생기진 않을까요?

(2)건축사님이 콘크리트 액체방수를 괜찮은 방수라고 보시던데..어떻게 그게 큰 효과가 없다는 걸 이해시킬 수 있을까요? 관련 자료가 있을까요? 적어도 저는 도막방수라도 외벽에 하고 싶은데..

(3)이놈의 합벽구조때문에.. 땅이 좁아서 합벽구조 하는 건지..혹시 땅이 좁아도 합벽구조가 아닌 방식으로도 가능할까요? 어떻게든 외방수를 하고 싶어서요. 이중벽은 차선의 최선인데, 저희 건축사님은 ‘이중벽 하면 된다’고 보시더군요. 된다는 말은, 방수가 된다겠죠. 누수 및 곰팡이 걱정은 없으신 것 같아요. 저만 걱정이 많습니다..

(4) 앞으로 실시설계 단계에서 이런 시공법을 건축사님과 협의해야겠죠? 아니면 건축심의 받기 전에, 구청에  건축심의 도면 제출 전에, 혹시 이런 구체적인 시공법에 대해서 건축사님과 건축주 사이에 협의가 끝나야 할까요? 제가 알기론 심의에는 심의에 필요한 수준으로 도면을 제출한다고 들었는데 맞나요?
M 관리자 2021.11.28 00:59
마지막 질문만 먼저 답변을 드리면.. 심의 후 실시설계단계에서 협의를 하시면 되세요.
G 데이빛 2021.11.28 01:06
1. 1,2층 외벽은 지금 설계상으로는 조적입니다. 지하층 외벽은 일단 콘크리트스테인으로 해놓았어요.  며칠 내로 파벽돌이나 세라믹서이딩으로 변경해서 심의 때 제출할 예정입니다.
 지하층 외벽 수직선으로 된 건, 일종의 담장 같은 건데요, 그 안에 1층으로 올라가는 외부계단이 있습니다. 밖에서 안 보이게 가릴 목적으로 투시형 목재루버펜스를 설치합니다. (아래에 정면에서 본 입면도 사진 첨부할게요)

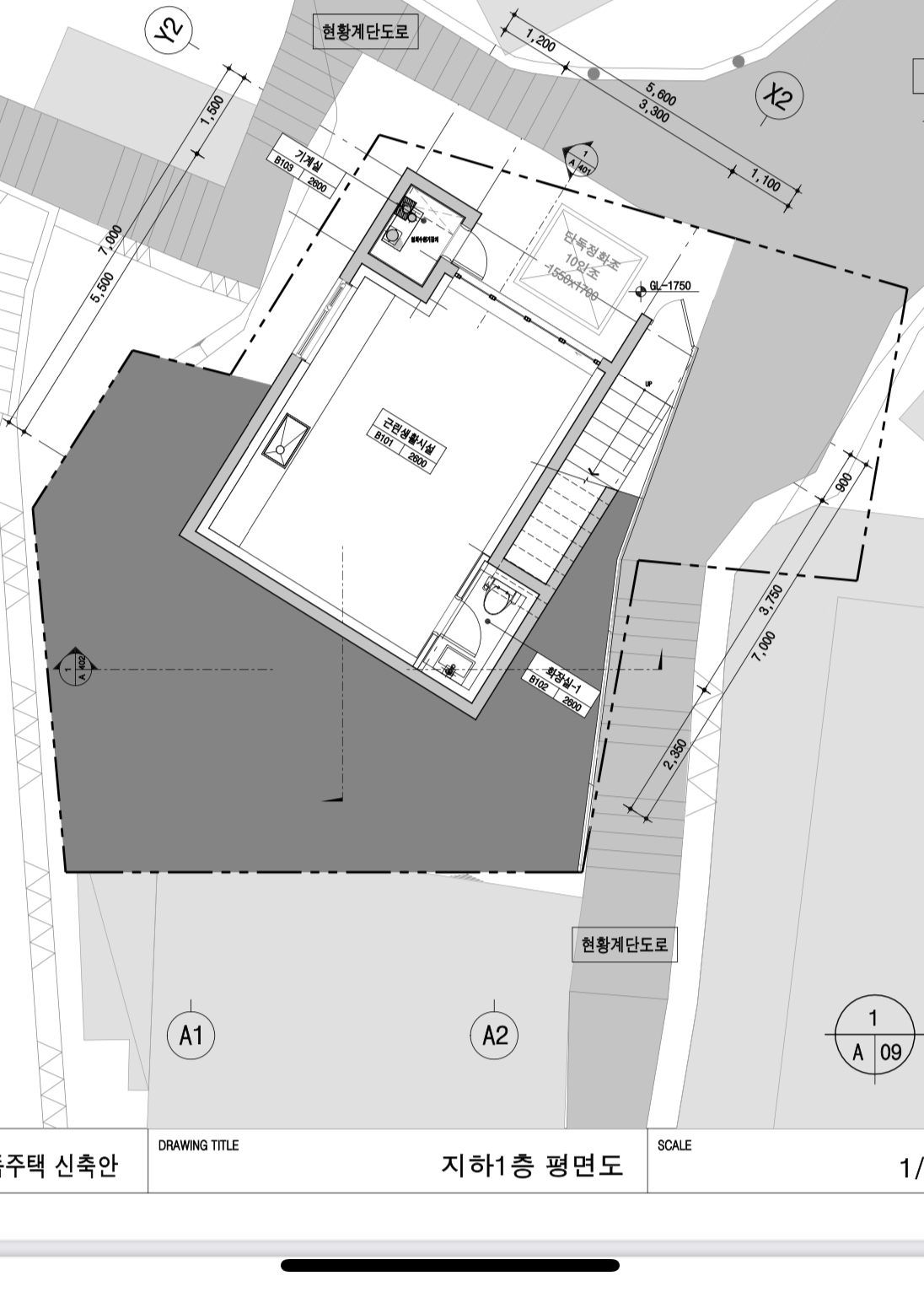
2.지하는 일단 근린생활시설로 등록합니다. 싱크대를 만들려고 하고, 화장실이 내부에 하나 있고요. 냉난방은 하려고 합니다(아마도 작업을 할 것이라서..) 주차장으로 쓸지 여부는 확실치 않습니다.(일단 집 앞에 그냥 주차할까해요) 지하층 8평 정도 근린이고, 1층이 13평, 2층도 13평 정도입니다. 그래서 지하층보다 1층 면적이 더 넓고요..
G 데이빛 2021.11.28 01:12
댓글내용 확인
G 데이빛 2021.11.28 01:13
댓글내용 확인
G 데이빛 2021.11.28 01:15
댓글내용 확인
G 데이빛 2021.11.28 01:18
네, 감사합니다 심의 후 실시설계를 하는 군요.. 저는 혹시 이런 단열재나 방수 등 시공법에 따라서, 두께 등이 달라지면 면적이나 건물 높이가 달라질 수 있어서, 그러면 심의 전에 수정해서 그걸로 제출해야할 것 같아서요. 심의 끝나고 건물 면적이나 높이에 차이가 생기면 안 된다고 들었는데 약간은 관찮은지 모르겠네요..
M 관리자 2021.11.28 12:16
심의 후 변경이 생겨서 좋을 것은 없습니다. 다만 경미한 변경의 범위가 정해져 있어서요. 아주 엄격히 적용되는 것은 아닙니다. 물론 심의 전 결정되는 것이 여러모로 좋긴 합니다.

1. 1층 목구조가 더 돌출된 상태라면, 그 하부에 콘크리트 기초가 형성되어야 합니다. 단면도를 보니 이미 그렇게 되어 있는 것 같습니다.

2. CIP 형식에서 외단열,외방수는 그냥 깨끗히 포기하시어요. 그게 좋습니다.

3. 다만 지하층의 흙에 묻히는 부분에서...
기초와 외벽 사이에 지수제나 지수판 시공을... 폼타이에 지수링은 꼭 시공되어야 합니다.

4. 그런 후, 단열배수판과 단열방습보드를 검색하시면, 배수판의 역할과 단열을 한꺼번에 할 수 있는 제품이 있습니다. 그와 같은 제품을 사용하면 벽체의 두께를 최소화할 수 있습니다. 이렇게 벽과 바닥의 침투수를 집수정에 유도배수가 되게 하면 되는데.. 다행히도 지하의 한쪽이 외부와 연결되어 있기에.. 집수정을 두지 마시고, 유도배수구를 우수관 연결하듯이, 외부로 직접 나가게 하는 것이 유지관리면에서 훨씬 나은 방법입니다.
그리고 내부 방습벽의 위아래로 통기구는 절대로 만들지 마시고, 환기장치는 꼭 하세요. 지하의 환기는 판형열교환기 보다는 환형열교환기가 좀 더 나은 선택이 될 수 있습니다.

5. 기초의 측면에도 50mm 정도 단열을 수직으로 붙일 수 있다면 최선입니다. 다만 콘크리트구조의 외부 두께와 상부 목구조의 면이,,, 최소한 일치를 하거나 콘크리트 면이 들어가는 것이 좋은 형식인데.. 만약 하부가 더 돌출되는 형식이 된다면.. 만나는 곳에 후레싱이 들어가면 빗물이 돌출면에 고이지 않게 되어야 합니다.

6. 이 정도면 심의도서를 만드는데 지장은 없을 것입니다. 추후 실시설계 단계에서 구체적인 접합부 디테일에 의문이 있다면 언제든 추가 질문 주세요.
G 데이빛 2021.11.28 14:35
답변 감사합니다.
4/이중벽 내벽 위 아래로 그릴 등으로 환기구 하는 걸 하면 안 되는 이유를 알고 싶습니다.

 지하층에서는 환형열교환기가 더 나은 선택인 이유도 궁금합니다.

그러면 1,2층은 판형열교환기가 더 나은 선택이라는 말씀일까요?

5/기초가 있는 부분(목구조가 나온 부분)은 결국 흙에 잠기는 걸로 이해했습니다. 이 경우 기초측면 단열은 이해가 되는데, 그 뒷부분 빗물, 후레슁 등 설명이 이해가 어렵네요. 땅 속으로 침투한 빗물을 말씀하시는걸까요? 수고스러우시겠지만..혹시 간략하게라도 그림으로 좀 설명 부탁드려도 될까요?

그리고 제가 댓글로 올린 설계도 캡처사진 댓글들은 혹시 비공개로 전환해 해주실 수 있을까요? 아직 시공 전이고 어찌보면 개인적인 내용일 수 있어서요.
M 관리자 2021.11.28 16:57
단열재 뒤에는 곰팡이가 생기기 쉽기 때문에 그 곳을 열어둘 이유는 없습니다.

기초 측면의 후레싱 등은 담당 건축사가 상세도를 그릴 것이므로 일단 기다려 보시고, 그때 다시 논의를 하시는 것이 좋겠습니다.
G 데이빛 2021.12.02 22:48
관리자님, 단열배수판과 단열방습보드 사용 관련해서 여쭤봅니다.

(1)이 단열배수판 단열방습보드는 이중벽체에서 내벽 바깥측면(가운데를 보는 부분)에 설치하는 걸까요?

(2)지하실 벽체 두께 최소화가 필요한 이유는, 이중벽이기에 지하실 벽체가 두꺼워질 수밖에 없기 때문일까요?
M 관리자 2021.12.03 00:21
이런 류의 제품은 이중벽을 만들고 그 위에 다시 무언가를 하지 않고, 제품 자제가 이중벽의 역할과 단열을 할 수 있도록 고안된 제품입니다.
그러므로 콘크리트 구조체에 이 제품을 대고, 마감을 하면 되세요.
바닥도 이 제품을 깔고, 무근을 치면 되는 제품입니다.
G 데이빛 2021.12.06 00:09
그렇군요. 감사합니다.
가능하면 오픈컷으로 외방수 할 수 있도록 설계를 변경해보려고 합니다. 사실 지금 설계로도, 흙으로 잠기는
세 면 중 한 면은 확실히 오픈컷 가능한데요(지하층보다 1층이 더 넓습니다) 나머지 두 면 중에 서향쪽이 좀 공간이 좁아서..현장을 확인하고 결정할 것 같습니다.
G 데이빛 2021.12.06 00:10
근데, 혹시 외방수든 내방수든, 지하층 바닥 난방을 하면 나중에 결로나 곰팡이 등이 덜 생길 수 있을까요?
M 관리자 2021.12.06 09:39
네 그렇습니다. 난방을 하면 훨씬 완화될 수 있는데요.. 여름이 문제입니다. 그래서 지하에는 대용량 제습기가 있어야 합니다.
1 데이빛 2021.12.10 06:02
관리자님, 지하층 근생 및 단독주택 면적 질문 드립니다.

1)아주 처음 설계 때는, 지하층에 단독주택 면적과 근생 면적이 함께 들어가 있었어요. 지금은 근생 부분만 남았고요. 지하층 관련 지구단위계획에서는, 근생을 최대 30제곱미터 이내로 규정하고 있어서, 일단 근생면적이 거기에 맞춰 있는데요. 만약 다시 단독주택 면적을 추가하고 싶다면, 지하층에서 단독주택 부분과 근생부분을 분리하는 구조가 돼야 하나요? 콘크리트 벽으로요..이전 초반 설계 때 그렇게 설계를 했었는데 혹시 그런 규정이 있는지 궁금합니다.

2)저희 건축사님이 국민주택규모(85제곱미터) 이하면 면세혜택이 있다고 하시면서 단독주택 면적을 이에 맞추자고 하시는데요. 저는 사실 건축사님께 드릴 돈은 이미 계약 때 정해졌거든요. 제가 어떤 혜택을 받는지..재산세나 취득세 면제가 되는 건지 모르겠습니다. 딱히 혜택이 실질적으로 없다면, 지하층에 단독주택 용도로 2-3평이라도 더 면적을 늘리고 싶은데요, 사실 또 고민이 있습니다. 이렇게 지금보다 지하층 면적이 늘어나면, 건축사님은 오픈컷은 어려울거라고 하시더라고요. 근데 제가 보기엔, 지하층 뒷쪽에 성토할 공간이 그렇게 좁지 않아보이는데요. 혹시 오픈컷이 되려면 최소 어느 정도 폭이 확보돼야할까요?
1 데이빛 2021.12.10 06:05
댓글내용 확인
1 데이빛 2021.12.10 06:07
댓글내용 확인
M 관리자 2021.12.10 21:52
1. 지구단위계획에 면적 제한이 있다면, 분리를 하는 것이 맞을 것 같습니다.
2. 종합건설회사와 계약을 하게 되면, 국민주택규모이하는 부가세의 일부를 면세 받을 수 있습니다. 물론 종건회사가 그에 맞추어 준비를 해주어야 합니다만....
3. 오픈컷 구간은 현장의 상황을 정확히 알지 못해 답변은 어렵습니다. 아마도 담당 건축사가 판단을 해야 할 것 같습니다.
Category