철골구조 지붕,벽 재료및 방수 문의드립니다.

설계/시공관련 질문

질문 전에 먼저 검색을 해주세요.

 

철골구조 지붕,벽 재료및 방수 문의드립니다.

1 archisus 8 4,236 2021.08.21 10:03

방수요청.jpg

 

열심히 공부하고 있는 건축인입니다. 

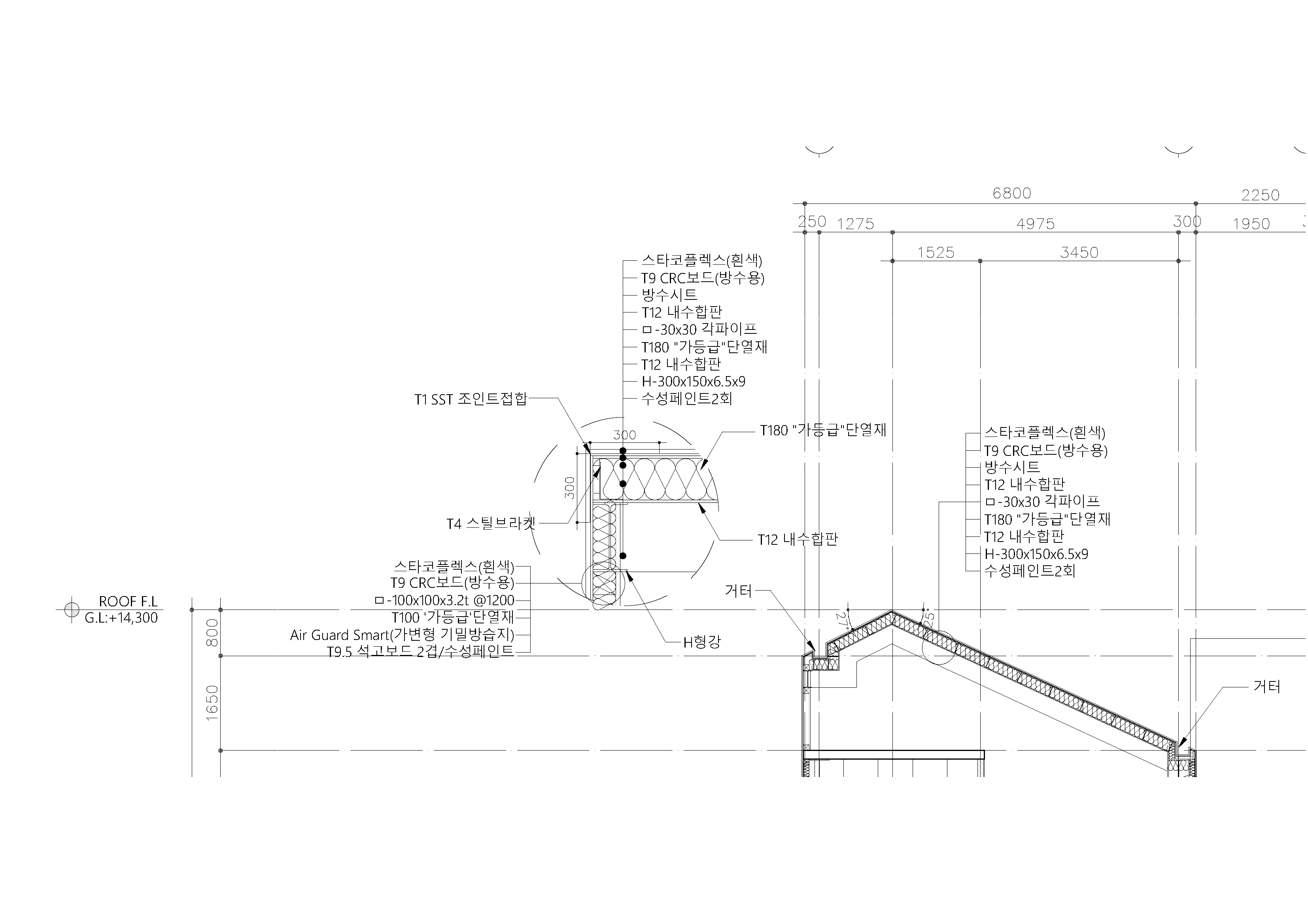
철골 구조에 박공 지붕으로 계획중인데, 지붕과 벽체에 대한 재료및 방수 문제가 궁금하여 문의드립니다.

사진과 같은 방법에서 방수문제가 없을런지요? 수정이 필요한 부분이 있다면, 어떤것이 있을까요? 

Comments

M 관리자 2021.08.22 09:55
안녕하세요..
전체가 없어서 어느 부위인지 감이 잘 오지 않습니다만...
방수의 관점으로 볼 때..
평지붕에 스타코플렉스와 같은 소재는 맞지 않습니다. 금속지붕과 같은 지붕재가 개입이 되어야 하는데, 문제는 이게 평지붕이라서요. 파라펫이 없는 것으로 보아서 보행이 가능한 평지붕은 아닐 것 같습니다만.. 그래도 금속지붕이 되려면 구배가 최소 5% 이상은 되어야 하는데.. 가능한 부분인지에 대한 감이 없습니다.

그리고 물이 그냥 외벽으로 흘러 내려오는 구조로 보이는데요.
오른 쪽의 상황을 조금 더 넓게 표현해 주시면 제가 무언가 답변을 드리기 용이할 것 같습니다.
1 archisus 2021.08.24 10:45
지붕의 경사도 포함하여 다시 올려드립니다. 확대부분은 위치가 조금 틀리나 재료의 내용은 똑같습니다. 고려하여 봐주시면 감사하겠습니다.
M 관리자 2021.08.24 13:44
죄송합니다만.. 확대된 그림이 어느 부위를 확대한 것인지를 찾지 못했습니다.
그 것을 무시하고, 지붕 전체에 대한 언급을 하면 될까요?
1 archisus 2021.08.25 16:43
네 지붕전체로 봐주셔도 됩니다. 궁금한것은 지붕과 벽체의 재료와 방수부분이 궁금한것입니다. 확대된 부분은 그냥 지붕과 벽체가 만나는 부분의 확대입니다.
M 관리자 2021.08.25 22:13
알겠습니다.
----------
위에 적어 드린 바와 같이 지붕면에 스타코플렉스를 사용할 수는 없습니다. 지붕 전용 제품이어야 합니다. (슁글/금속/기와 등등)

그리고 통기층이 만들어 져야 하며, 이를 고려한 지붕의 구성 방법은 아래 글을 보시면 도움이 되실 것 같습니다.
http://www.phiko.kr/bbs/board.php?bo_table=z3_01&wr_id=1954
1 archisus 2021.08.26 10:32
하나만 더 여쭤보겠습니다.
혹시 지붕재료를 스타코플렉스가 아닌 도막방수(쿨루프)제품을 사용하는것은 어떤가요?
지붕 - 도막방수(쿨루프),  벽면 - 스타코플렉스
M 관리자 2021.08.26 11:37
해당 자재는 콘크리트 바탕면에 유효합니다.
이러한 건식마감에서도 가능한지는 제조사가 보증을 해야 하므로, 제조사에 문의를 해보셔야 합니다.
1 archisus 2021.08.26 14:52
네 친절한답변 감사합니다!
Category