23평 아파트에 시스템창호 설치 문의

설계/시공관련 질문

질문 전에 먼저 검색을 해주세요.

 

23평 아파트에 시스템창호 설치 문의

G 늠내 5 4,384 2021.07.27 17:55

* 먼저 항상 질문에 정성스런 답변 언제나 감사 드립니다.

* 23평 24년 된 구축 아파트 리모델링을 할려는데 

  외창들을 시스템창으로 하고 싶은데, 제 생각이 가성비로 합리적인지 문의 드립니다.

  전 이중창이 번거롭고 사용이 불편하여 비용이 좀 들더라도 시스템창으로 하고 싶은 맘입니다.

 

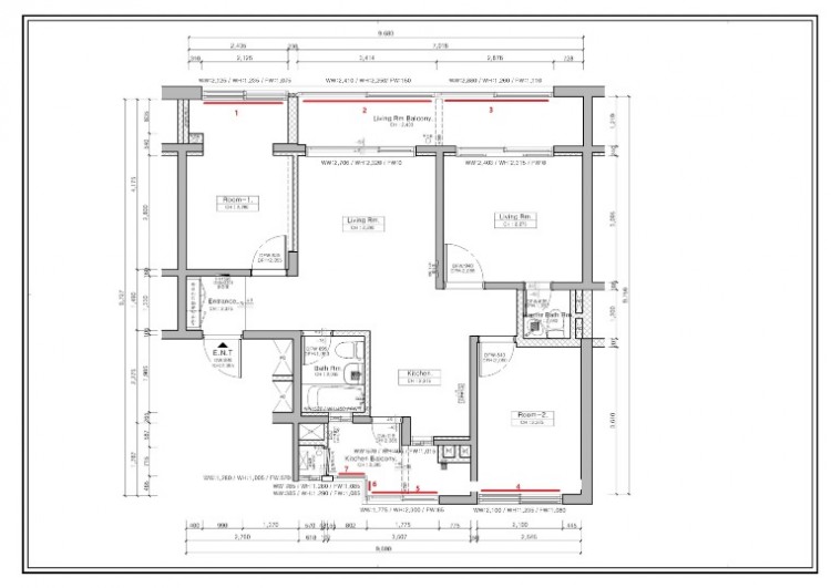
도면_창호견적용.jpg

 

 * 도면에서 1~5까지를 시스템창으로 하고 싶습니다.

    6, 7 은 조그만 픽스창으로 하고.

 * 외창들을 강력하게 하고 내 창이나 문은 단가를 낮추고 싶은 계획입니다.

Comments

M 관리자 2021.07.27 20:53
안녕하세요..
그럼.. 위쪽의 발코니 두 개는 모두 확장을 하실 계획이신가요?
G 늠내 2021.07.28 10:04
위쪽 발코니 두개는 확장(?) 안 합니다. (남향)
단높임 즉 거실, 안방과 높이로 같게 해서
거실, 안방과 같은 재질 마루를 연장해서 깔려고 합니다.
시청에서는 이것도 확장이라고 합니다.
(행위변경허가 받았구요. 화재감지기, 방화판 설치 조건)

거실과 발코니 사이는 폴딩창호 계획.
안방과 발코니 사이는 현재 있는 오래된 4쪽짜리 목유리문을 그대로 사용할 계획.
G 늠내 2021.07.28 10:50
질문 추가요.

거실 안방 발코니에 난방배관 안 깔고
단높임, 강마루 바닥만 까는데도 바닥, 천장 단열 해야하나요?
M 관리자 2021.07.28 14:41
우선.. 위아래층에서 확장을 했거나, 지금 처럼 확장(?) 비슷하게 사용하고 있는지가 중요합니다.
그것을 전제로 말씀을 드리면...

1. 발코니를 그렇게 개조를 하더라도 단열과 난방이 없는 곳이라, 창 주변의 벽과 바닥 등에 단열조치가 되면 모르겠으나 시스템창은 과해 보입니다. 즉 투자대비 효과가 크지는 않을 것입니다.
그러므로 그 쪽은 비교적 저렴한 이중창이 맞을 것 같습니다.

2. 이런 경우가 참 애매한데요. 난방을 하게 되면 단열조치가 필요하지만 그렇지 않을 경우는 마감재만 변경하는 꼴이 되므로, 단열을 하지 않으셔도 괜찮을 것 같습니다.
다만 마감재 뒤쪽으로 습기가 들어갈 수 있는 구조이므로, 습도관리는 되어야 할 것 같습니다.

3. 나머지는 시스템창을 사용하셔도 괜찮습니다.
G 늠내 2021.07.29 10:08
고민 끝.
명쾌하고 시원한 답변 감사드립니다.
Category