부분 평슬라브도 외단열 시공이 가능할까요?

설계/시공관련 질문

질문 전에 먼저 검색을 해주세요.

 

부분 평슬라브도 외단열 시공이 가능할까요?

G 건축악시리즈팬 15 6,741 2021.03.05 17:08

안녕하세요?

완전 건축초보 건축주입니다.

다름이 아니라 부모님 집을 짓는 계획을 하는 도중에 피코넷 유튜브를 보게되어 많은 도움이 되었습니다.

우선 감사의 인사와 함께 궁금한 점이 있어서 질문을 드립니다.

 

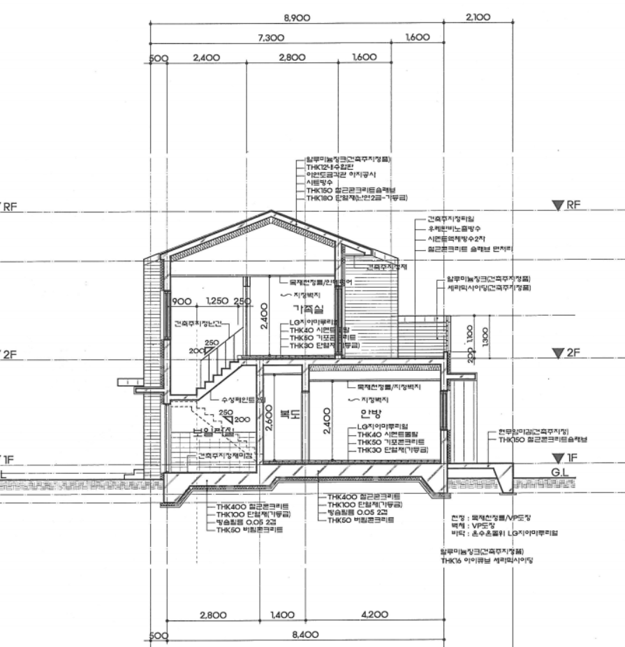
Q. 설계도면상 첨부사진상 2층 방과 베란다의 방수턱이 없습니다. 이는 방수턱을 만들어달라고 요청을 했습니다. 문제는 이 베란다 테라스 부분에 외단열을 시공해서 기술자료에 있던 방식으로 시공을 원합니다.

하지만 설계도면상으로는 천장과 지붕은 모두 내단열로 되어있더군요....

만약 전체가 평슬라브가 아닌, 평슬라브와 2층 지붕이 섞여있는 구조에서는 어떻게 외단열 공법을 적용할 수 있을까요? 혹시 하게 된다면 2층 바닥 높이와 베란다 높이차이가 높아야지 단열재, 방수지, 쇄석 등을 모두 시공할 수 있을텐데, 얼마나 단차를 두어야할까요?

시공이 가능한 것은 맞겠죠...?

Comments

M 관리자 2021.03.05 19:16
안녕하세요.
1. 외단열을 하는 것은 문제가 없습니다. 나중에 해당 부분의 단면도를 올려 주시면 스케치를 해드리겠습니다.
2. 단열재 두께를 200mm 로 보고 말씀드리면..
단열재 200mm + 투습방수지 + 배수판 30mm + 부직포 + 쇄석 60mm + 방수턱 약간
합계 : 거실바닥 보다 지붕 슬라브가 300mm 다운되면 될 것 같습니다.
3. 시공 가능합니다.
G 건축악시리즈팬 2021.03.05 19:21
헉 답변감사합니다~!
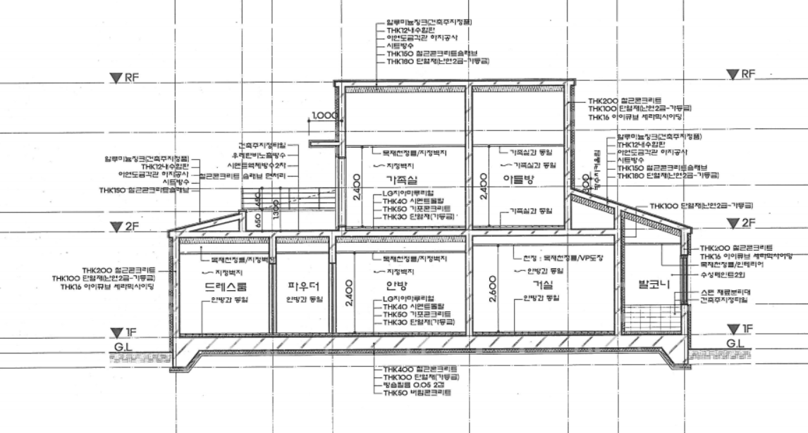
단면도라는것이 이게 맞는지 잘 모르겠네용
G 건축악시리즈팬 2021.03.05 19:22
단면2
M 관리자 2021.03.05 19:29
네.. 이게 맞습니다.
주말까지 정리해서 올려 드리겠습니다.
G 건축악시리즈팬 2021.03.05 19:31
감사합니다~!!! 좋은주말되세요!!!!
M 관리자 2021.03.05 19:32
다만 한가지 미리 말씀을 드리면.. 이 도면의 수준은 이른바 "허가방"에서 벗어나 있지 않습니다.
상세도를 그리지 않는다면, 시공 중에 후회할 확율이 매우 높은 도면입니다.
그러므로 저희가 무언가 수정을 해드리긴 하겠지만, 그 것이 도면에 반영이 되고, 또 그 것의 부분 부분에 대한 상세도가 나오지 않는다면, 실제 시공으로 이어지기는 어렵다고 보셔도 무방합니다.
그러므로 설계를 다시 하실 수도 있고, 그렇지 않다면, 원하시는 방식의 시공이 이루어 지지 않을 수도 있습니다.
M 관리자 2021.03.05 19:34
여기에 대한 내용은 아래 영상을 참고하시면 도움이 되실 것 같습니다.
https://youtu.be/__GjfA9xtVU
G 건축악시리즈팬 2021.03.05 19:37
네 감사합니다... 조언많이 얻고 다음주중으로 설계사무소를 직접 방문해서 전면 수정을 할 생각입니다!!! 조언감사드립니다!!!
G 건축악시리즈팬 2021.03.06 13:52
혹시 300mm다운시킬때, 결국 구조적 문제 때문에 2층 거실 면을 300mm높여야하는거겠죠?
M 관리자 2021.03.06 21:16
"구조적 문제"의 의미가 무엇인지를 잘 모르겠습니다만..
내린 곳의 천장 높이가 나오지 않는다면 전체적인 층고를 올려야 하는 것은 맞습니다.
G 건축악시리즈팬 2021.03.07 08:51
아하 이해했습니다. 감사합니다 ^^ 이제 문제는 외단열을 저 단면도상 단열재를 어떻게 외단열로 돌리고 어떻게 2층 처마부분을 제거하고 돌릴지 고민을 해봐야겠네요...
7 티푸스 2021.03.07 16:49
열교를 고려한 외단열을 계획하신다면 구조적 열교를 포함하는 전반적인 디테일 검토가 필요해 보입니다. 눈 딱 감고 정리를 해야 될 듯 하네요....
M 관리자 2021.03.08 04:15
우선.. 아래 체크한 모든 부위에 대해 상세도면을 그려야 합니다.
그 것 없이는.. 설계도면이 없는 것과 같습니다.
이유는 위에 링크해 드린 영상 속에 들어 있습니다.
https://youtu.be/__GjfA9xtVU
M 관리자 2021.03.08 04:15
...
M 관리자 2021.03.08 04:19
이 도면은 평지붕의 슬라브만 다운한다고 해서 해결될 도면은 아니었습니다.
경사지붕의 내단열, 모호한 단열재 표현, 벽과 바닥이 어떻게 만나는지, 경사지붕과 외벽이 사선으로 만나는 부위의 방수 처리 등
그러므로 담당 건축사가 이 모든 곳에 대한 상세도를 그리지 않는다면 최대한 빨리 손절을 하고, 이 상세도까지 그려줄 건축사를 찾으시길 권해 드립니다.

물론 이 도면으로도 시공을 할 수 있습니다. 완공도 됩니다. 그 이상의 가치는 없습니다.
냉정한 글을 적어 드려 죄송합니다만, 더 어떻게 드릴 말씀을 찾을 수 없었습니다.
Category