거주중인 환경에서 전열교환기 설치 가능한가요?

설계/시공관련 질문

질문 전에 먼저 검색을 해주세요.

 

거주중인 환경에서 전열교환기 설치 가능한가요?

G 전열교환기 5 1,441 05.28 17:28

혹시 거주중인 집에 최소한의 작업으로 실내 전체에 양압은 걸어주면서 공기는 전체적으로 순환되게 하려면 어떻게 하면 좋을까요?


잘 모르는 입장에서 2가지 생각을 해보았습니다.

 

1. 실외기실에 연결된 거실과 방을 타공 하여 각각 구멍을 1개씩 만들고 하나는 흡기구, 하나는 배기구로 씁니다. 공기가 한쪽으로 들어와서 다른쪽으로 나가면 집이 전체 환기는 되지 않더라도, 벽으로 격리된 구간까지 절반 이상은 돌게 될 것 같습니다.

2. 실외기실 쪽에 장비하나를 두고 타공을하고, 세탁실(실외기실 반대편) 쪽은 창문을 일부 막아서 배기구를 만듭니다. 역시 공기가 한쪽으로 들어와서 나가면 거실을 통과하는 주요 공간은 환기가 될 것 같습니다. 이렇게 하면 장비가 양쪽에 하나씩 있어야 할텐데, 이런식으로 한쪽은 흡기, 한쪽은 배기로 돌려도 정상적으로 전열교환기의 기능이 되는지 잘 모르겠습니다.


일단 이게 말이 되는 발상인지 궁금합니다. 포기하는게 좋을지, 혹시 가능하다면 어떤 종류의 제품들로 저런 세팅이 가능할지도 궁금합니다.


감사합니다


Comments

G 전열교환기 05.28 18:59
아이디어를 조금 더 다듬어 보았습니다.

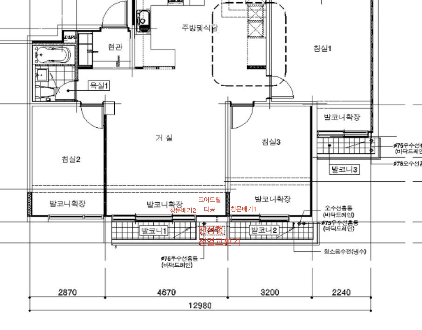
현재 구조는 첨부와 같습니다.

발코니1과 발코니2 사이는 현재 실외기가 비치되어 있습니다. 실외기 위에 천정형 전열교환기를 설치하려고 합니다.
천정형 전열교환기지만 배관이 없어서 흡배기를 천정으로 할 수 없으므로, 창문을 통해 하면 좋겠다고 생각했습니다.

창문배기1 자리는 다른 방법이 없기 때문에  창문으로 고정입니다. 다음과 같이 75mm폭이 들어가는 창문틀을 팔더군요. 덕트 변환을 해서 꽂으면 창문을 10cm정도 희생하면 창문으로 배기를 할 수 있습니다.

창문배기2 자리와 코어드릴 타공 자리는 둘 중 하나를 선택해야 합니다.
문제는 발코니2와 달리 발코니1은 벽을 한참 지나서 창문이 나오기 때문에, 창문배기를 하면 배관도 한참 돌아서 나와야할뿐더러 거실 한가운데의 창문을 가림막이 막고 있어야 합니다.

한편 안쪽의 벽에는 이미 이전에 살던 사람이 에어컨 타공을 한 흔적이 있더라고요. 구멍이 작아서 그대로 쓸수는 없겠지만, 기왕 뚫린거 좀 더 확장하면 괜찮지 않을까 싶습니다. 타공에는 2가지 고민이 있습니다.
하나는 꼭 구멍을 150mm로 뚫어야 하는가? 입니다. 아파트에 150mm타공을 얘기하니 다들 만류하시더군요. 혹시 크기를 100mm 정도로 줄여서 넣으면 크게 손해를 보는지, 소음 등이 문제가 될지 궁금합니다.
다른 하나는, 저렇게 구멍을 뚫으면 커튼 뒤에 구멍이 뚫린다는 것입니다. 제 빈약한 유체역학적 상상으로는 어차피 공기가 거실로 들어와서 침실로 나간다고 하면, 커튼이 구멍을 가리고 있는건 큰 문제가 안될거 같은데, 실제로도 그런지 모르겠습니다. 오히려 소음 관점에서는 커튼이 소음을 가려줄테니 더 유리하지 않나 생각이 됩니다.

말이 되는 생각일까요?
M 관리자 05.28 20:51
안녕하세요.

유사한 사례를 올려 드립니다. 보시면 도움이 되실 것 같습니다.
https://www.phiko.kr/bbs/board.php?bo_table=z3_01&wr_id=984
https://www.phiko.kr/bbs/board.php?bo_table=z3_01&wr_id=1003

https://www.phiko.kr/bbs/board.php?bo_table=z3_01&wr_id=2478

https://www.phiko.kr/bbs/board.php?bo_table=z4_04&wr_id=11328
https://www.phiko.kr/bbs/board.php?bo_table=z4_04&wr_id=10004
G 전열교환기 05.28 21:03
좋은 자료 감사드립니다, 열심히 읽어보겠습니다.
G 전열교환기 05.28 23:06
감사합니다. 모두 재미있게 읽었습니다.
의도하신 바이실지는 모르겠으나, 같은 공간의 위아래로 급배기 하는것으로도 환기가 된다면, 서로 다른 방을 통해 급배기하는 것은 급배기 자체에는 훨씬 유리한 환경이 되지 않을까 하고 낙관하게 되네요.
올려주신 글들처럼 훌륭하게 할수는 없고, 업체의 도움을 많이 받아야하겠습니다만, 소음기, 단열 등등 체크할 포인트를 많이 짚은 것 같습니다.
아직 급배기 밸런스 등 이해하지 못하는 부분들이 있습니다만, 업체에서는 소음기 써도 여타 설치제품에 비해 시끄러울수 있다고 생각하는것 같던데, 소음이 적은 제품으로 골라서 한번 시도해 보겠습니다.
감사합니다
M 관리자 05.29 09:58
감사합니다.
Category