환기장치 질문드립니다

설계/시공관련 질문

질문 전에 먼저 검색을 해주세요.

 

환기장치 질문드립니다

1 할거면제대로 4 2,566 2021.02.20 12:13

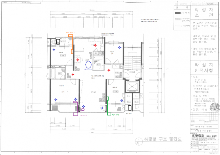
환기설계.png

파란별이 SA 빨간별이 RA입니다

원래는 옷방에 SA를 넣지 않으려다가 어떤 댓글에서 넣지않고 후회하는것을 보아 나중에 넣었습니다

준공 37년된 아파트이고 끝세대여서 왼쪽벽은 외기에 접해있습니다

화장실 두곳 모두 공사예정이며 화장실엔 전동댐퍼가 있는 힘펠환풍기 정도가 들어가지 않을까 예상됩니다 창호교체는 왠만하면 하지 않을 예정이고 외부에 덕트가 빠져나갈때 필요하다면 최소로 하는 정도로 생각중입니다

제가 CO2농도에 민감한 편이라(저만그런지 모르겠는데 환기가 안되는 공간에 오래있으면 꾸벅꾸벅 졸게됩니다) 2회/h 의 환기가 목표입니다 물론 프리필터박스, 기외정압손실, 덕트에서의 손실등을 감안하면 최종적으로 1회/h 의 환기도 만족할듯 합니다

급기 디퓨저는 Zehnder사의 코안다 디퓨저를 고려중이고 디퓨저 하나당 최대 50CMH의 스펙으로 알고있습니다 배기는 Zehnder 사의 디퓨저 당 최대 75CMH인 제품을 고려중입니다 환기장치는 Zehnder 사의 Q600을 고려중입니다(Q450과의 가격차이가 크지 않더군요 Q300보다는 꽤 비싸지만요) 서론이 길었는데 제 질문은 다음과 같습니다

1. SA의 위치가 적정한가 (주방발코니 나가기 직전에 하나 추가해야 되는지, 에어컨 앞에 디퓨저를 두어도 괜찮은지)

2. 현재 SA 7개 RA 4개인데 RA를 늘려서 SA와 갯수를 맞춰야 하는가

3. 화장실 환풍기 별도 설치 예정이더라도 화장실에 RA를 넣는것이 좋은가

4. 식당 천장은 지속적 누수로 누수유도판 설치 고려중인데 식탁위 부분 주변으로 덕트를 설치하며 천장 슬라브에 고정하는 과정에서 누수가 악화될 소지가 없는지 그렇다면 이를 피할 수 있는 고정방법이 있는가

5. 덕트설치 측면에서 1번과 2번위치중 환기 장치 본체를 설치하기 좋은곳은 어디인가

6. 2번위치에 설치한다면 아래층 실외기가 있어서 안되는 것인지 직상방만 피하면 되는지

 

저희집은 탑층의 아래층 세대입니다 북측거리뷰.PNG

 

남측거리뷰.PNG

 

한번에 너무 많은 질문을 올려 죄송합니다

아파트가 오래되어 재건축을 추진중이라 몇년을 살지 모르는 집에 많이 투자하기도 애매한 상황입니다

하지만 환기장치만은 필수라고 생각해서 질문을 드리게 됐습니다

상관없는 얘기지만 거리뷰를 보니 OA와 EA가 보이는 세대가 없어보이는데 제가 저희동에서 최초로 환기장치를 하는 것 같기도 합니다

제 질문이 나중에 비슷한 고민들을 하는 분들께 도움이 되길 바랍니다

감사합니다

Comments

M 관리자 2021.02.20 12:49
안녕하세요.

1. SA의 위치가 적정한가 (주방발코니 나가기 직전에 하나 추가해야 되는지, 에어컨 앞에 디퓨저를 두어도 괜찮은지)
▶ 괜찮아 보입니다. 다만 에어컨 바로 앞에 SA는 오히려 도움이 됩니다.

2. 현재 SA 7개 RA 4개인데 RA를 늘려서 SA와 갯수를 맞춰야 하는가
▶ RA가 적어도 괜찮습니다. 다만 한 개 정도 더 있으면 더 나을 것 같습니다.

3. 화장실 환풍기 별도 설치 예정이더라도 화장실에 RA를 넣는것이 좋은가
▶ 아닙니다. 그대로 하시어요.

4. 식당 천장은 지속적 누수로 누수유도판 설치 고려중인데 식탁위 부분 주변으로 덕트를 설치하며 천장 슬라브에 고정하는 과정에서 누수가 악화될 소지가 없는지 그렇다면 이를 피할 수 있는 고정방법이 있는가
▶ 다른 고정방법이 없긴 하나, 누수가 더 악화되지는 않을 것 입니다. 다만 슬라브 균열이 있는 부위는 피해서 고정이 되어야 합니다.

5. 덕트설치 측면에서 1번과 2번위치중 환기 장치 본체를 설치하기 좋은곳은 어디인가
▶ 1번/2번 숫자가 잘 보이지 않습니다. ㅠ
1 할거면제대로 2021.02.20 13:46
답변정말 감사합니다~ 이미지에 문제가 있었군요
1번위치는 좌측상단 검은색 네모이고 2번위치는 우측하단 검은색 네모 입니다~
M 관리자 2021.02.20 14:32
2번이 나아 보이긴 하는데요. 큰 상관은 없어 보입니다.
1 할거면제대로 2021.02.20 15:14
감사합니다~
Category