조적주택 리모델링(스타코마감, 조적벽 개구부 철거)관련해서 질문드립니다.

설계/시공관련 질문

질문 전에 먼저 검색을 해주세요.

 

조적주택 리모델링(스타코마감, 조적벽 개구부 철거)관련해서 질문드립니다.

G 이병도 6 5,992 2021.02.21 05:41

안녕하세요. ^^

피코네 통해 협회를 알게 되어 오게 되었습니다.

만나게 되어 반갑습니다.

 

조적주택을 매입 후, 리모델링을 계획 하면서 궁금함이 생겨서 질문드립니다.

 

현장은 강원도 홍천입니다.

집은 42평이며, 기존 100T 조적벽인 일자형(박공) 집에,

나중에 추가로 슬라브집을 붙여서 지은 건물입니다.

추가하면서, 외벽은 50t 단열하고, 치장벽돌로 마감되었습니다.

 

판넬지붕쪽은 외벽이 조적 90t+외단열50t+치장벽돌90t로 되어있고,

슬라브지붕쪽은 조적180t+외단열50t+치장벽돌90t로 되어있습니다.

 

매입 전(작년) 화재가 발생해서, 구옥(박공쪽)이 타고,

신옥(슬라브) 천정 단열재가 많이 그을려서 천정 단열재는 다 철거한 상태입니다. 

구옥 지붕은 철거하고 판넬평지붕으로 바꾸어 놓은 집입니다.

 

20210124_114600.jpg

 

20210124_102410.jpg

 

20210124_102409.jpg

20210212_165316.jpg

20201125_104739.jpg

 

20201125_114721.jpg

20210124_102202.jpg

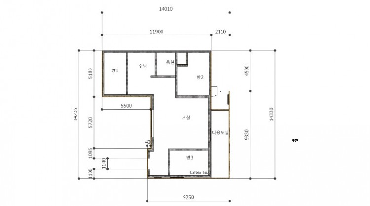
해맑은집 고쳐짓기(치수 수정본 0214)1.jpg

 

10년 전쯤 증축한 집이고, 누수 및 단열에 문제가 있다고 판단되어

외단열 및 스터코 마감을 고려중에 있습니다.

 

질문 드릴 내용은

1. 조적벽 외단열은 기존조적을 철거가 원칙임을 다른 글에서 보았습니다.

  하지만 여건상 철거 없이 그 위에 단열공사를 진행한다면 단열재 시공이 가능한

  접착면일지 궁금합니다.

 

2. 철거시와 비교하여 얼마나 그 성능이 떨어질지 궁금합니다.  

 

3. 난간과 옥상까지도 외단열을 하고 누수가 걱정되어 지붕을 덮으려고 합니다.

   이런 경우 옥상단열재도 벽면과 같은 방식으로 하면 되는지 궁금합니다.

   (단열재 손상을 막기 위해서 난간에 기둥을 세워서 단열재 손상을 최소화 함이 필요해 보입니다)

 

3. 방1과 주방 외벽에 각각 개구부를 내어서 시스템도어(대략 1000*2000)를 설치하려고 하는데,

  구조적으로 문제가 없는지, 있다면 어떤 보강을 해야 할지가 궁금합니다.

  (개구부는 각각 다른 벽면에 있습니다)

  방1(좌측벽)에 시스템도어 및 고정창(700*700)을 추가하려고 합니다.

  주방(뒷벽쪽) 시스템도어는 집의 주방창에서 700mm 정도 떨어져서 입니다.

 

4. 주방과 방 사이 내벽(200t조적벽)에 개구부를 내어 창(900*900)을 설치하려고 합니다.

   또 그 벽에 있는 문의 위치를 옆으로 800mm가량 옮기려고 하는데, 안전할지 궁금합니다.

  이런 경우는 아예 철거하고 새로 규격에 맞게 벽을 세워야 할 지 궁금합니다.

 

글을 여러개 쓰는 것 보단 이게 나을 것 같아서

한 번에 여러 질문을 드리게 되었습니다. ^^

리모델링이 처음인지라 잘 모르는 부분이 많아,

제가 고민한 상식 수준에서 질문을 드리게 되었습니다.

고맙습니다.

 

 

Comments

M 관리자 2021.02.21 09:41
1. 조적벽 외단열은 기존조적을 철거가 원칙임을 다른 글에서 보았습니다.  하지만 여건상 철거 없이 그 위에 단열공사를 진행한다면 단열재 시공이 가능한 접착면일지 궁금합니다.
-> 네. 그냥 하셔도 되고, 성능의 하락은 (제대로 한다는 것을 전제로 하면) 거의 없다고 보셔도 괜찮습니다.
다만 그 제대로 한다는 것이 쉽지는 않는데요. 특히 외벽의 하단과 상단에 공기 흐름이 생기지 않도록 하셔야 합니다.  좀 더 구체적인 사항은 아래 글에 있지만, 이 모든 것을 떠나서 지역의 건축사와 상담을 하고 설계를 하시는 것이 좋겠습니다.
제가 조언을 드릴 수는 있겠으나, 결국 누군가 책임을 지는 사람이 실행을 할 도면을 그리고 공사를 하시는 것이 시행착오를 줄여 줄 수 있기 때문입니다.
 
3. 난간과 옥상까지도 외단열을 하고 누수가 걱정되어 지붕을 덮으려고 합니다. 이런 경우 옥상단열재도 벽면과 같은 방식으로 하면 되는지 궁금합니다. (단열재 손상을 막기 위해서 난간에 기둥을 세워서 단열재 손상을 최소화 함이 필요해 보입니다)
-> 그러시면 되나, 그냥 덮으면 단열재가 뜰 수 있기에.. 무언가 덮어 두어야 합니다. 덮는 것 중에 가장 합리적인 대안은 쇄석 입니다.
 
3. 방1과 주방 외벽에 각각 개구부를 내어서 시스템도어(대략 1000*2000)를 설치하려고 하는데, 구조적으로 문제가 없는지, 있다면 어떤 보강을 해야 할지가 궁금합니다.
4. 주방과 방 사이 내벽(200t조적벽)에 개구부를 내어 창(900*900)을 설치하려고 합니다. 또 그 벽에 있는 문의 위치를 옆으로 800mm가량 옮기려고 하는데, 안전할지 궁금합니다. 이런 경우는 아예 철거하고 새로 규격에 맞게 벽을 세워야 할 지 궁금합니다.
-> 이 부분은 담당 건축사가 결정을 해야 합니다. 제가 함부로 말씀드릴 수는 없을 것 같습니다.
다만 보강은 무조건 되어야 합니다. 보강의 방법은 주로 철재를 사용하나... 큰 개구부의 경우 H-빔이 사용될 수도 있습니다.

딱히 도움을 드리지 못하는 듯 하여 죄송합니다.
다만 질문하신 사항이 안전과 연관된 부분이고, 거기에 대한 답변을 드리자면 현장을 구체적으로 알아야 가능한 부분이라서요. 모두의 안전을 위해 무책임한 답변을 피하고자 한 것이니 널리 양해 부탁드리겠습니다.
G 이병도 2021.02.22 00:15
휴일에도 이렇게 답을 주시니 참 감사하면서도
월요일에 글을 썼어야 했나라는 생각도 드네요. ^^
고맙습니다.

몇 가지 질문에 관해서 관리자님께서 답을 해 주시기 어렵다는 것도 공감이 됩니다.
상황도 조금 더 구체적이어야 하고, 말에 대한 책임이라는 부분도 크셨을 것 같습니다.

이번 공사는 제가 직영으로 진행하려고 합니다.
그래서 현장소장님 등 의논 할 분이 안계셔서 공부 해가며 준비하고 있어요.
그 와중에 만난게 피코네 영상이었구요. ^^

외단열과 지붕은 외주로 두고, 철거 포함 나머지는 직접 해볼 생각입니다.
필요한 그림을 그리다 보니 철거의 폭과 안정성에 대해서 걱정이 되더라고요.
그래서 필요한 정보를 얻고, 제가 선택하는 부분들에 대한 점검과 조언을 듣고 싶었습니다.
수렴하여 시공하고 책임은 제가 지는 것이지요. ^^
시공 방법에 대한 조금 더 깊은 이야기를 듣고 싶은 마음이 크답니다.

1번 답을 주신 부분에서는
숙성된 2종 비드법 단열재, 올바른 접착방법, 화스너 시공 등을 생각하고 있었습니다.
관리자님께서 다른 글들을 통해 모던코트시스템 대표님 연락처를 올려 주셨더라구요.
시공방법이나 견적 관련해서 제가 직접 전화를 드려도 될지,
협회를 거쳐서서 연락이 되는 것이 나은지 궁금합니다.
추가로, 중부1 지역 외단열에서는 비드법2종은 몇T를 쓰는게 좋은지도 질문 드립니다.
마감재로 스타코는 신축성이 적어서 스타코플렉스를 사용하는 것이 좋다고 보았는데
관리자님께서도 그렇게 추천하시는지 궁금합니다.

3번 질문에서는
화재가 나서 옥상 아래 내단열재를 태웠던 집이라
쇄석을 올리면 향후 하중 때문에 혹여 문제가 있지 않을까 고민이 됩니다.
바른방법으로 접착하고, 화스너 시공, 몰탈, 메쉬, 몰탈까지만 해 놓으면 생길 문제가 있을까요?

4번 조적벽 철거해서 개구부 추가하는 부분은
저도 얘기 해 주신 철제보강을 찾아서 공부해 보겠습니다.
혹여, 제가 참고할 만한 부분이 있으면 슬쩍~ 알려주시면 좋구요 ^^

주방 내벽에 추가할 개구부가 많은 부분은
조적벽을 아예 철거하고 제가 할 수 있는 구조목으로 벽을 새로 만드는 걸 생각하고 있습니다.
가벽 수준이 아닌 것 가아서 종류가 다른 두 구조재(조적, 목재)를 만나게 해도 되는지 궁금합니다.
조적벽에 칼블럭과 피스를 박아서 구조재를 고정하려고 생각하고 있습니다. 

즐거운 한 주 되시길 바랍니다!
M 관리자 2021.02.22 09:55
감사합니다.

1. 2종3호 기준으로 150mm 내외면 되세요.
모던코트 연락은 직접 하시면 되십니다.

3. 지붕에 미장마감은 불가능합니다. 1년도 채 안 가서 바로 터집니다. 그러므로 적절한 구조 보강을 한 후에 쇄석을 올리는 것이 최선입니다. 쇄석이 무근콘크리트보다 훨씬 가볍거든요.

4. 대개의 경우...
콘크리트 벽체에서, 개구부를 낼 경우, 벽길이의 1/4, 최대 900mm 이내에서 내야 하고, 개구부를 낸 후에 개구부 상부 벽높이가 최소 500mm 가 있어야 합니다. 즉 그 높이에 맞추어서 문의 높이를 맞추어야 합니다.
조적벽은 벽 길이의 1/5, 폭 900mm 이내가 가능하며, 상부에 최소 900mm 의 벽이 남아 있어야 합니다. 그 보다 작을 경우 100x100-3mm 각파이프 또는 H빔으로 보강이 되어야 합니다.
다만 이 것은 일반론일 뿐, 책임 건축사의 확인을 받으셔야 합니다.

이런 리모델링을 직영(혼자 판단, 혼자 시공)으로 하실 수도 없고, 하셔도 안됩니다.
냉정하게 말씀드려서... 평생을 혼자 사시다 돌아가시기 전에 철거까지 하신다면 가능합니다. 만약 가족이 있거나, 혹여 살다가 파실 생각이시면 안됩니다.
그건 이 홈페이지를 만든 근본 취지하고도 너무나 먼 행위이기도 하시고요.

4. 그러므로 비전공자가 공부를 해서 할 수 있는 방법이 아닙니다. 정 그러고 싶으시다면, 마이다스라는 구조계산 프로그램을 구입해서 공부를 하시길 권해 드립니다만, 프로그램 가격이 1,500만원입니다.
앞으로 "슬쩍 알려 주시라" 라는 표현을 사용하실 거면, 다시는 답변을 드리지 않겠습니다.

------
콘크리트 슬라브 건물을 목재로 구조 보강할 수 없습니다. 최소한 압축강도가 유사한 소재여야 하며, 그래서 철재를 사용하셔야 합니다.
G 이병도 2021.02.23 14:37
아직 제가 협회의 방향을 온전히 알지 못해서
사용한 말이 실례가 되었다면 사과드립니다.
필요가 있다면 직접 부탁을 드리는 것이 낫겠다 생각됩니다.

지붕 쇄석이 그리 무겁지 않군요.
1. 그럼 벽과 옥상 모두 150t로 단열 해 주면 될까요?
지부은 조금 더 두꺼워야 하나 생각이 들어서요.

2. 구옥의 경우 110mm가량의 나무보가 세워져서 보와 보 사이를 조적해서 외벽으로 쌓았는데, 이 경우의 개구부 철거는 조적벽 기준으로 생각하면 될까요?

직영시 문제가 될 상황을 이야기 해 주신 부분 잘 새겨 듣겠습니다. 저 역시 구조적 안전이 확보되고 하자가 최소화가 되어야 하니 관련하여 혼자 판단하지 않고, 함께 의논하고 필요한 부분은 맡겨야겠다 생각이 듭니다.

구체적인 정보와 필요한 조언 해 주셔서 감사합니다!
M 관리자 2021.02.23 21:11
널리 이해해 주셔서 감사합니다.
그저 무책임한 내용으로 글을 만들어 낼 수는 없었습니다.

1. 지붕은 200mm 정도면 좋으나, 150mm 도 충분히 좋습니다.

2. 네 그렇습니다. 다만 나무 보의 경우.. 조적벽과 연결되어 있을 수 있습니다.  조적벽에 하중이 걸리고 있는 상태일 수도 있으나, 말씀드린 바와 같이 정보가 부족하여 무어라 딱히 말씀드리기는 어려운 상황입니다.

비내력 벽체를 건드려서 문제가 생길 확율은 그리 높지는 않습니다. 하지만 그렇다고 "이렇게 하면 된다"라고도 말씀을 드릴 수는 없었습니다.
삼풍백화점도 "괜찮아"라는 말이 쌓이고 쌓여서 무너진 거라서요...
G 이병도 2021.02.25 07:38
네 부족한 질문에도 늘 정성껏 답변해 주심에 감사합니다.
제가 좀 더 구체적인 정보를 가지고 물어야겠어요.
관리자님도 오늘 하루도 힘 가득 받는 날 되시기 바랍니다!
Category