발코니 페데스탈 데크 마감 관련 질문

설계/시공관련 질문

질문 전에 먼저 검색을 해주세요.

 

발코니 페데스탈 데크 마감 관련 질문

G 백성인 2 5,459 2021.02.09 11:48

항상 좋은 답변 제시해주셔서 감사드립니다.

지난 번 발코니와 관련한 질문에 대하여 다음 그림과 같은 답변을 해주셨습니다.

발코니 마감.png

발코니 마감재 하부 바탕 구성을 검토하면서 페데스탈 데크로 정리하는 것이 가장 합리적이라고 판단되어 이것으로 결정하고 건축사무실에 다음 그림과 같은 방안을 제안해드렸습니다.

발코니 마감(2).png

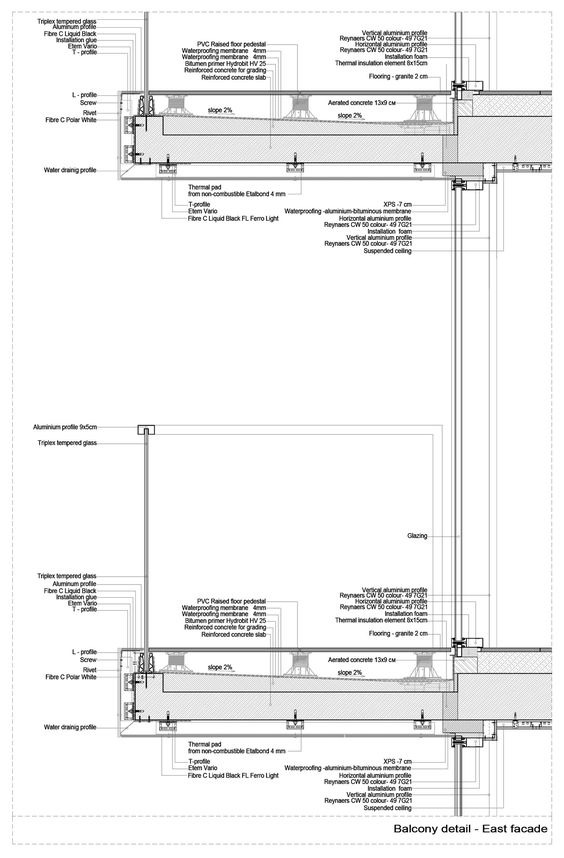
그런데 다음 그림자료에서는 발코니에 페데스탈 데크 시공시 경사몰탈 위에 시트방수처리를 하는 것으로 제시되고 있는데 이 그림대로 시공했을 때 페데스탈이 방수시트 면에 직접 접촉되므로 시트 파손이 우려되는데 상관이 없는것인지요?

페데스탈 데크.jpg

아니면 제가 제시해드린 그림이 더 나은 방안인지 궁금합니다.

적절한 조언 부탁드리겠습니다.

Comments

M 관리자 2021.02.09 12:52
네.. 몇가지로 나누어서 말씀을 드려야 하는데요..

1. 해외의 경우, 방수시트의 표면이 조금 다릅니다. 그래서 페데스탈이 직접 닿아도 될 정도의 강도를 유지하며, 시트의 두께도 조금 더 두껍습니다.
2. (구조체 열교차단재가 아닌) 문 하부 열교차단에 대한 디테일의 구현이 우리나라에서 아직은 어렵습니다.
3. 통상 우리나라 시공자에게 익숙한 방식이, 방수층 위에 무근콘크리트를 올리는 방식이기도 합니다.

그럼에도 불구하고, 방수시트 위에 페데스탈이 직접 닿아도 괜찮긴 합니다. 그 정도로 시트가 훼손되지는 않거든요.
그러므로 만약... 바탕 콘크리트의 품질이 좋지 않아서.. 시트방수를 직접 하기에 어려운 조건이라면... 구배를 잡고 시트방수를 하셔도 괜찮습니다.

ps. 제가 개념적인 그림이라서, 표현을 하지 못했지만.. 방수에서 가장 중요한 요소 중에 하나가.. 모서리가 직각이 되지 않도록 둔각처리를 해야 하는 부분입니다.
혹시 놓치실까봐 노파심에 말씀드립니다.
G 백성인 2021.02.09 17:52
답변 감사드립니다.
직각면은 자료들을 토대로 꼼꼼히 시공되도록 하겠습니다.
페데스탈 데크 설치하시는 분과 통화해보니 방수시트 위에 직접 올려서 설치하는 경우도 많다고 하니 안심이 됩니다.
역전지붕 설명하신 내용을 돌이켜 보면, 방수에 혹시 하자가 발생되어도 데크만 걷어내면 육안으로 더 쉽게 확인이 가능할것이므로 보수작업 측면에서도 더욱 바람직할걸로 보입니다.
건축사무실에 의견을 제시했더니 3번 설명처럼 말하길래 제가 노파심에서 확인을 부탁드렸습니다.
감사합니다.
Category