구축아파트 단열 보완

설계/시공관련 질문

질문 전에 먼저 검색을 해주세요.

 

구축아파트 단열 보완

G 주원수 1 5,338 2021.01.09 13:18

구축아파트(1993년) 맨 가장자리 집의 모서리에 작은 방이 여름엔 덥고 겨울엔 추워

몇 년 고민하다가 패시브협회 자료를 읽어보면서 내린 결론은 '뜯어보자'입니다.

 

단열부가 그라스울로 되어 있다는건 알고 있었지만 그 마감상태는 기대할 수 없을것이라

 생각하고 방화석고보드를 뜯었습니다

_DSC8172.JPG

한쪽벽만 뜯었구요, 기밀방습지 같은건 없습니다

_DSC8173.JPG

왼쪽에 보이는 벽과 단열재가 떠 있는 상태입니다. 그라스울의 실제 두께는 50T입니다

_DSC8177.JPG

창호는 메꿈처리 되지 않았고

_DSC8184.JPG

천정엔 스티로폼이 부착되어 있음을 확인했으나 역시 단열재와 공간이 있습니다

오른쪽에 보이는 벽은 석고보드에 수성페인트 마감입니다.


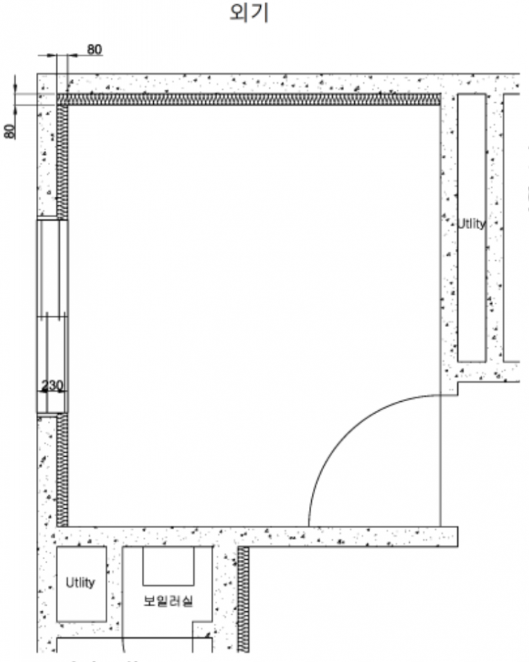
평면도 Model (1).png

오래된 아파트라 평면도가 없어 줄자로 재어서 만든 평면도 일부입니다.

'외기'라고 적인 방향이 북쪽이며 현재 서쪽벽, 남쪽벽 왼편 일부, 동쪽벽 외기와 가까운쪽이

 차갑습니다

 

석고보드를 철거하기 전 원래 계획은 서쪽벽을 콘크리트면이 나올 때까지  완전 철거하고

 각재로 틀을 짜서 그라스울 50T 그리고 다시 그라스울 50T, 난연 PE필름 0.3T, 

방화석고보드 9.5T 2장 겹쳐 설치하려고 했습니다 그라스울 100T에 석고보드 20T가

 더해지면 창호 폭 보다 증가되어 창호주변은 나무받이를 설치해 석고보드 손상을

막을 계획이며 장기적으로는 현재 창호를 고성능의 창호로 교체할 예정입니다.

 

도출된 문제점으로는

1) 창호 윗부분의 단열재 마감을 완전하게 하려고 하니 합판으로 단단히 고정된 커튼박스 철거가 쉽지 않다

2) 상당한 수준의 기밀을 위해서는 북쪽벽 석고보드도 철거하고 PE필름을 다시 설치해야 하는데 이것도 간단치가 않다


그래서 질문드립니다

1) 커튼박스, 북쪽벽 석고보드를 철거하지 않고 현재 있는 상태에서 일부 망가진,

 벌어진 그라스울만 교체하고 연질폼으로 주변 틈새를 모두 막고 각재로 틀을 짜서

 그라스울 25~50T를 보강한 다음 PE필름(0.3T)으로 기밀을 하면 좀 더 따뜻해질 수 있을까요?

2) 혹은 적정한 타협점이 있다면 안내 부탁드립니다.

Comments

M 관리자 2021.01.09 20:48
안녕하세요..
뜯어 보신 용기와 그 자료 감사드립니다. 저희가 이 시대 때의 아파트 속살의 자료가 전혀 없었거든요.
엎드려 감사드리고 싶은 마음입니다.

1. 이 당시의 글라스울은 바이오바인더를 사용하지 않았습니다. 그래서 유해하지는 않으나, 꽤 많이 따끔거릴 수 있어요. 그러므로 피부에 직접 닿지 않도록 마스크와 (가능하다면 고글이 제일 좋습니다.) 보호경을 착용하고 작업을 하시어요.

2. 글라스울은 불연에 가까운 준불연제품이어요. 그러므로 화재에 대해서는 걱정하지 않으셔도 괜찮습니다.

3. 작업의 순서와 공정으로도 상당 수준 효과를 보실 수 있으셔요. 그러므로 실행하셔도 괜찮습니다. 다만 비닐은 0.3mm 까지 사용하지 않으시고, 0.1~0.2mm 면 충분합니다.

4. 비닐만 추가되고, 면적이 다소 감소하는 것을 개념치 않으신다면, 북측벽도.. 이 상태에서 (최소 25mm) 각목을 대고, 비닐치고, 석고보드를 대어도 괜찮습니다.
Category