기초 외단열, 동결심도 및 데크 하지 접합부 관련

설계/시공관련 질문

질문 전에 먼저 검색을 해주세요.

 

기초 외단열, 동결심도 및 데크 하지 접합부 관련

4 장지훈 12 6,101 2020.12.04 20:14

 

기초의 외단열과 동결심도 관련 질문 드립니다.

 

4-05. 기초의 단열 - 다. 기초의 외단열과 동결심도http://www.phiko.kr/bbs/board.php?bo_table=z3_01&wr_id=112#c_3875

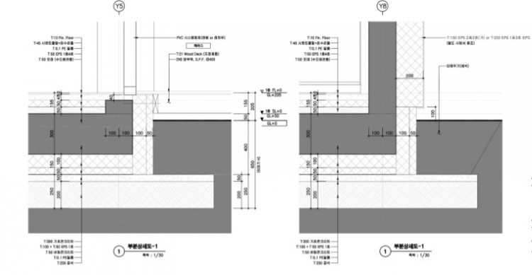
1. 합리적인? 기초단열과 동결심도라는 관점에서 현재 계획 중인 단독주택 기초를 아래 상세와 같이 계획 중에 있습니다. 상세도 기준 기초 하부 T:150 XPS 대신 기초 측면으로 수평단열재와 기초 상부 T:150 EPS 1종3호로 대체할 경우 기초 하부 레벨은 400을 확보해야 할까요?

 

2. 상세도 좌측 발코니창과 기초 측면 단열재 부분 데크를 위한 하지 2X6를 고정하고자할 때, 점형 열교를 방지를 방지하기 위한 전용 스크류는 어떤 제품이 있을까요? 혹은 데크 면적이 넓지 않음으로 이 정도 점형열교는 무시할 수 있을까요?

 

2-1. 이 경우 발코니 창 하부는 구체에서 40정도 이격거리를 두고자 하는데, 이 경우 기초 측면 단열재를 창호 하단선에 붙혀 시공하면 데크 FL이 거실의 FL보다 살짝 높게 됩니다. 만약 창호 하단선에 데크 상단선을 맞추면 측면 단열재가 일부 손상 될 것 같구요. 이 경우 어떻게 처리하는 방법이 있을까요?

 

 

동결심도와 기초단열.jpg

 

 

 

 

 

Comments

M 관리자 2020.12.04 22:44
안녕하세요..

1. 동결심도를 벗어나기 위한 단열재의 설치는 "기초측면단열재"만으로 완성이 됩니다.
그러므로 수평단열재가 없어도 동결심도와는 무방합니다.
다만, 그보다는 1층 모서리의 결로 (사실 바닥난방으로 인해 그것도 발현되지는 않습니다만...) 혹은 온도하락을 막기위한 수평단열재가 필요한데요.
수평단열재를 폭 400mm 이상 깔면 상황은 훨씬 좋아질 것으로 예상됩니다.
기초의 깊이는 350mm 가 최저 깊이가 되므로, 400보다는 줄어 들 수 있습니다.

2. 피셔의 써모앵커가 가장 좋은 선택입니다만, 여건이 안되면 스텐레스스틸 앵커를 사용하시는 것이 차선입니다.

3. 아래 그림과 같습니다. 조금 과정되게 그렸는데요..
창호 하부 결로를 막기 위한 최소한의 외단열은 30mm 정도입니다.
그러므로 단열재의 외측을 깍아 내는 방식입니다. ㄴ자로 잘라도 괜찮습니다만, 물리적으로는 사선이 낫긴 합니다.
협회 표준주택에서 채택한 디테일이기도 합니다.
4 장지훈 2020.12.04 23:13
답변 감사합니다.

3과 관련해서.... 그럼 데크와 창호 하부 틈이 30mm 정도 있다는 말씀이신가요? 이해가 잘 안..^^;
M 관리자 2020.12.04 23:24
아.. 창에서 부터 오른쪽 수평으로 30mm 이상만 단열재가 있으면 된다는 뜻입니다.
즉, 콘크리트 구조체의 외단열이 최소 30mm 가 되도록... 단열재의 나머지 오른쪽은 그림처럼 사선이든, 계단식이든 단열재가 잘려도 최악의 상황은 피할 수 있습니다.
4 장지훈 2020.12.04 23:52
아... 그럼 결국 데크 상판이 단열재에 올라탈수 밖에 없다는 말이고, 실내측 FL 보다 테크 FL이 높을 수밖에 없을 것 같군요.
M 관리자 2020.12.05 00:09
아.. 제가 그려드린 그림에서... 데크의 끝이 창문으로 부터 살짝 떨어져 있습니다. (그 30mm 만큼)
그 거리 때문에.. 실내측 FL과 데크 FL을 맞출 수 있거나, 데크가 더 살짝 내려 올 수 있습니다.
그 사이의 틈은 적절히 마감을 하면 됩니다.
협회의 경우
틈을 더 벌려서 콩자갈을 깐다거나...
타일을 잘라서 폼본드로 붙이거나,
그냥 오픈조인트용 투습방수지로 표면만 살짝 덮어서 가리는 경우로 분류될 수 있습니다.
4 장지훈 2020.12.05 00:19
아..... 같은 말이었군요.
어쨌든....
그거슨... 좀 거시기 하군요.... ㅡ"ㅡ;;
M 관리자 2020.12.05 00:21
네.. 경험을 통해서 극복해야 할 부분입니다.
이런 디테일한 구석에서 차별성이 생기는 것이니까요..
암튼 잘 해내시리라 생각하고 있습니다. ㅡㅡ;;;
4 장지훈 2020.12.05 00:29
한가지만 더 여쭙겠습니다...

앤썸창호의 경우 구체 외부로 24(5)mm 정도 돌출 가능한 것으로 알고 있습니다. 창호 하단과 구체 상부는 40~50 이격, 그 사이를 우레탄 폼으로 충진하고, 24mm 돌출되니 이론적으로 24mm 측면 단열재가 창호 하부까지 붙고, 나머지는 사선처리할 경우... 데크 상판을 5mm 정도 틈으로 창호 하단선에 맞출수 있지 않을까 하는데... 이 경우 창호 하부 결로가 생긴다고 봐야할까요?
M 관리자 2020.12.05 00:40
이 경우는 괜찮습니다. 괜찮은 생각이셔요.
4 장지훈 2020.12.05 00:50
늦은 시간까지 답변 감사합니다....^^*~
M 관리자 2020.12.05 00:51
네^^
4 장지훈 2020.12.05 01:00
꾸벅~ 언제나 감사드립니다.
Category