싱크대 냉온수관이 없습니다;

설계/시공관련 질문

질문 전에 먼저 검색을 해주세요.

 

싱크대 냉온수관이 없습니다;

6 gklee 15 2,848 2020.10.08 12:46

이 자리가 아일랜드 겸 싱크대가 들어갈 곳인데 난방분배기만있고 하수구만 있지 냉온수관이 없습니다. 이거 혹시 냉온수관 연결하려면 타일 난방배관/몰탈 단열재 다 뜯어야되는 상황일까요? 

Comments

M 관리자 2020.10.08 12:49
도면에 어떻게 되어 있는지 함 보시어요.
그리고 시공사와 대화를 시작하는 것이 좋을 것 같습니다.
6 gklee 2020.10.08 12:54
도면에는 표기가 되어있고 작업이 될것으로 이야기까지했던 부분이라 시정이 필요한 상황인데 난방배관을 일부만 들어내도 될것같지는 않아서요(그러기도 하나요?) 대화는 제가 가장 원하는것입니다. 답변과 시정이 필요한 항목 30여가지를 정리하여 이메일을 보냈으나 감감무소식인 상황에 현장은 통보도 없이 몇일째 아예 나오지도 않고있어서요. 이것 역시 마찬가지로 시정이 이런경우 어떤 방식으로 되어야하는지를 여쭤보고 싶어서 문의드립니다..
M 관리자 2020.10.08 13:07
답변의 범위가 너무 넓어서요..
이 근처에 배관이 왔있는데, 올라가 있지 않은 것인지.. 아니면 배관 자체가 없는 것인지를 알아야 합니다.
배관 자체가 없다면 일이 커지니까요...
6 gklee 2020.10.08 13:11
감사합니다. 그걸 한번 확인해보겠습니다.
6 gklee 2020.10.08 20:25
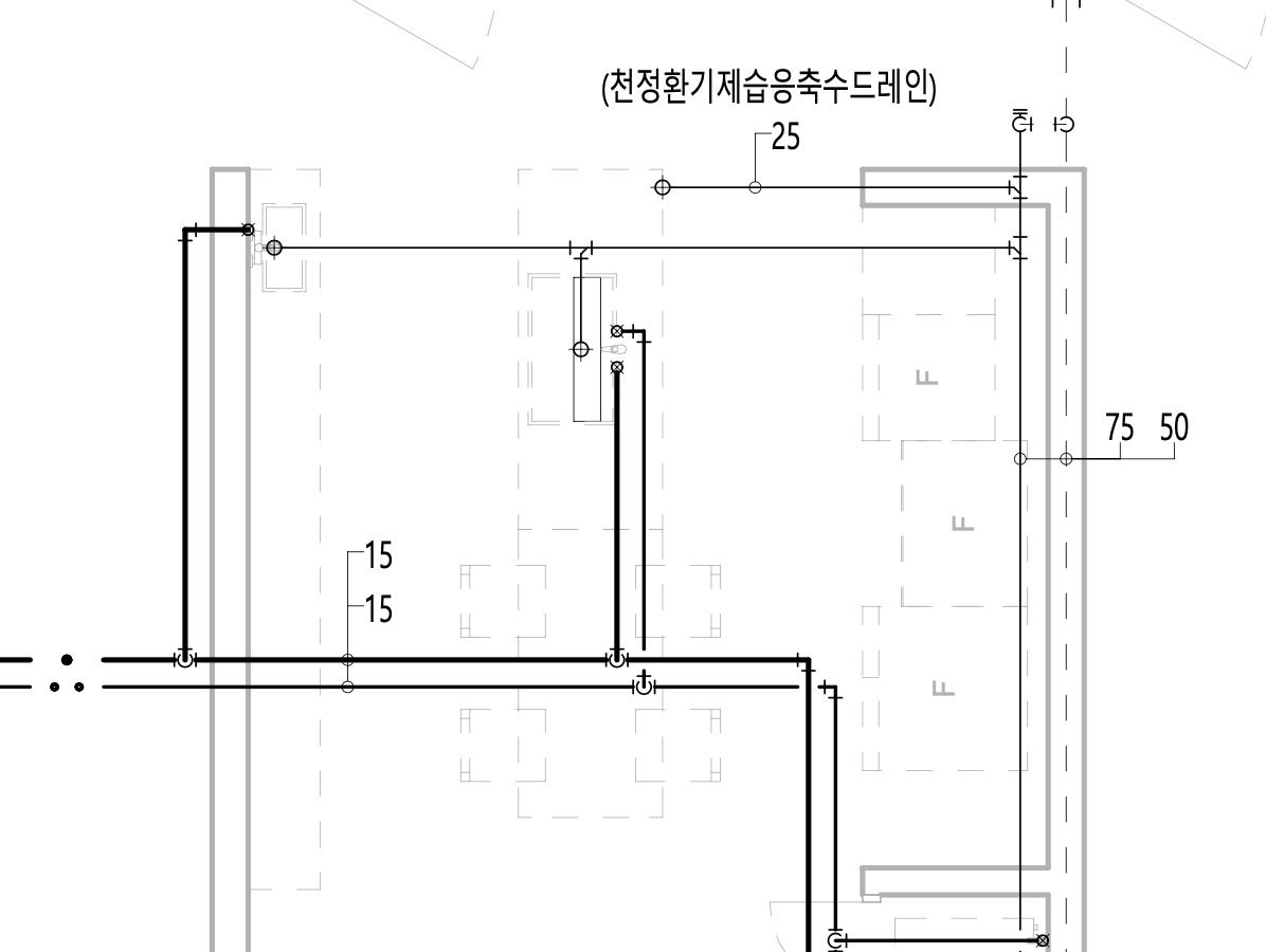
먼저 이것이 냉온수관 도면이며
6 gklee 2020.10.08 20:26
이것이 난방배관 도면이며, 본문의 사진상으로 왼쪽에 바닥의 해치처럼 생긴것이(타일로 따서 만든) 냉온수관 분배기입니다. 참고로 컵이 놓여진 그 옆은 바닥 콘센트 커버이며 감겨있는 배선은 난방 조절기의 배선입니다. (도면에는 표시되지 않음)
M 관리자 2020.10.09 09:56
도면에 있는데요..
식탁 하부에서 따들어 가는 것으로 되어 있는데....
분배기 옆에 배수구도 있는 것으로 보아서.. 타일 하부에 선이 있을 것 같습니다.
6 gklee 2020.10.09 10:43
일단 해치를 열어봤습니다. 도면에 없는걸로 생각한것은 난방 조절기의 와이어와 콘센트, 냉온수기 분배기(맞는지 모르겠습니다)였습니다. 표현이 부족했습니다.
M 관리자 2020.10.09 13:05
나머지는 다 있어 보이는데, 온수관은 사진에 없습니다.
이건 시공하신 분들에게 물어 봐야 할 것 같습니다.
6 gklee 2020.10.09 13:10
하.. 감사합니다. 암담하네요..
G 정광호 2020.10.11 02:50
사진상의 분배기가 냉온수분배기 양방향 8구/8구 인것 같습니다. 2개가 겹쳐있는대 아래있는게 각도상 보이지 않는 것 같아요. 확인 부탁드립니다.
6 gklee 2020.10.11 02:58
내일 바로 확인해보겠습니다. 감사합니다 ㅠㅠ
6 gklee 2020.10.12 08:55
글씨를 알아보기가 힘들지만 냉수라고 적혀있는것같습니다. 그 외엔 무슨 암호같아요
6 gklee 2020.10.12 08:57
이런 상태입니다. 문제는.. 어쨌건 배관이 근처까지 와있다고 한들 타일깨고 방통몰탈 깨야 위로 뽑을수있는 상황이라 걱정입니다. 난방배관이란게 부분보수가 되는것도 아니고 하필 가장 촘촘하게 얽혀있는부근을 관통해서 뽑아나와야하는데..
G 정광호 2020.10.12 09:54
냉수 온수 다 들어와있습니다.
분배기 커버를 통해서 빼시면되세요.
Category