외벽 거터 배수의 설계 문의

설계/시공관련 질문

질문 전에 먼저 검색을 해주세요.

 

외벽 거터 배수의 설계 문의

1 아라리오 7 1,194 05.15 13:43

 

안녕하세요.

 

외벽 돌출부에 우기 및 적설시를 대비해서 구배를 건물 외벽쪽으로 계획하고 거터를 설치하려 합니다.

 

하지만 유지관리상 두 가지 사항이 상충되어 고민됩니다.


집중호우 또는 눈이 많이 왔을 때,

물이 넘치거나 눈이 얼어서 배수능력을 상실하게 될 것이라 생각되고

구배를 건물 외벽쪽으로 주다보니 외벽마감(인조석) 및 커튼월을 통해 우수가 건물내로 유입되어 하자발생이 되는 것 아닐까..하는 생각이 들어서요

 

그렇다고 거터를 설치하지 않고 구배를 바깥으로 계획하자니

높이가 20m인 필로티 구간이라 하부 보행자들에게 피해(낙수 또는 고드름..)가 예상되어

어느 선택이 맞는것인지 모르겠습니다.


도면은 첨부파일에 넣어두었습니다. 

조언 부탁드리고 먼저 감사드립니다.

Comments

M 관리자 05.15 20:41
안녕하세요.
이렇게 해서 물은 어디로 빠져서 어디로 나가도록 할 계획이신가요?
1 아라리오 05.15 22:31
동일층 루프드레인-ps실 입니다
M 관리자 05.16 23:40
아.. 죄송합니다.
제 질문은.. 아래 그림 중에 배수관이 붉은 색 경로인지, 하늘색 경로인지가 궁금했었습니다.
1 아라리오 05.17 06:44
앗 제가 잘못 이해했습니다
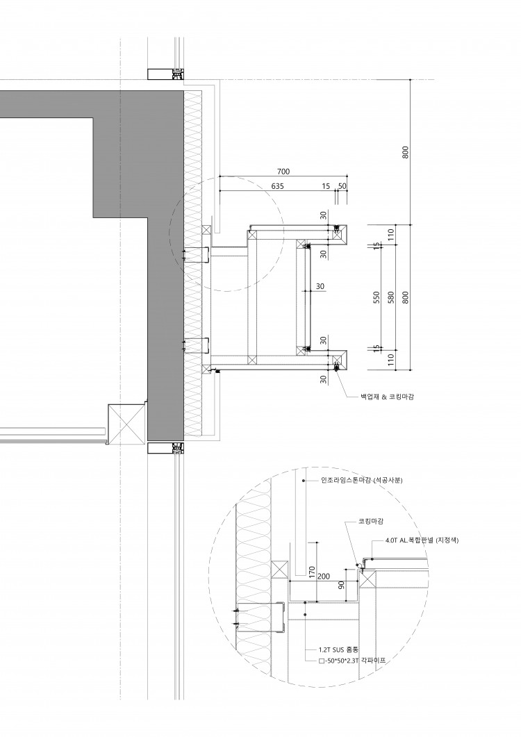
그려주신 빨간선 방향으로 벽체 천공하여 배수예정입니다
STS거터는 구배를 주지 못하니 5m마다 수직관을 계획하고 아래 그림처럼 돌출부 하지 내부에 pvc수평관을 1/100 구배로 50m마다 벽체로 배수예정입니다
M 관리자 05.18 18:34
이해되었습니다.

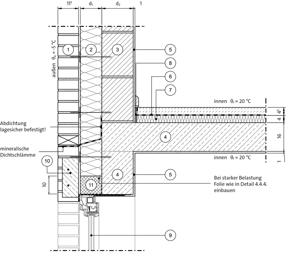
이런 경우는 아래와 같은 방식이어야 합니다.
구조체로 부터 시작하여 돌출면 상부까지 시트방수가 개입되고, 방수시트의 하부는 12mm 내수합판이 들어가는 방식입니다.
필요에 따라서 일부 단열재 두께를 줄여야 할 수도 있습니다.
M 관리자 05.18 18:51
부위는 다르지만 구조체로 부터 시트방수가 시작된 다른 예입니다.
M 관리자 05.18 18:52
이 역시 다른 예지만, 실제 시공은 이런 식입니다.
Category