욕실소음 관련하여 질문드립니다

설계/시공관련 질문

질문 전에 먼저 검색을 해주세요.

 

욕실소음 관련하여 질문드립니다

안녕하세요

 

3월에 입주한 신축아파트 부부욕실에서 발생되는 소음으로 인해 검색하다 오게됐습니다.

 

부부욕실 및 공용욕실에서 같은소리가 발생하고있습니다.

 

소리가 꼬르륵 꼬르르르륵, 따당따따따따따따당 이런소리가 반복해서 발생하고있습니다.

 

해당 문제로 하자접수하였고 욕실 천장 틈새를 폼으로 매꿔주셨으나 해당 소음 계속 발생하였고

 

내시경으로 확인하였으나 별다른 문제점을 찾지못했습니다.

 

해당소리는 계속 해서 나는중이며 간헐적으로 나는소리가 아닙니다.

 

윗층에서 물을 사용해서 물내려가는 주르르르륵, 쏴아아아아 소리와는 명확히 다른소리입니다.

 

소음의 강약만 있을뿐 상시 발생하는 소음이며 크게소리가날 경우 욕실문이 열려있으면 방까지 

 

소리가 들릴정도입니다.

 

이소리가 세면대 배관에서 나는소리인지, 세면대 와 연결되어있는 샤워부스 벽면 입상배관에서 

 

나는소리인지 모르겠습니다.

 

원인을 몰라 해결할수가없다고 오늘 연락이왔는데 답답하네요.

 

저희 옆집에서도 동일하게 소음이 발생하고 부부욕실에서 소음이 더크게나는 증상까지 똑같습니다.

 

소음 녹음파일 및 평면도와 천장배관 사진 올렸습니다.

 

고견부탁드립니다.4a3bf4b5c97650d5db64d7386b49ee99_1588054545_0678.png
4a3bf4b5c97650d5db64d7386b49ee99_1588054559_0804.png
4a3bf4b5c97650d5db64d7386b49ee99_1588054613_2065.jpg
4a3bf4b5c97650d5db64d7386b49ee99_1588054603_1311.jpg
4a3bf4b5c97650d5db64d7386b49ee99_1588054607_7984.jpg 

Comments

M 관리자 2020.04.28 20:11
먼저 질문이 있는데요..

1. 소리를 녹음하신 지점을 알려 주시어요.
2. 화장실 천장 사진은 안방인가요 아니면 공용화장실인가요?
G 욕실소음 2020.04.28 23:10
1. 소리는 세면대위에 올려놓고 녹음하였습니다.

2. 해당사진은 안방 화장실입니다
M 관리자 2020.04.30 17:38
사진 잘 보았습니다.

문제는 소음원의 위치는 어느 정도 감을 잡고 계셔야 하는데요.
벽인지 천장인지는 잘 들어 보시면 범위를 줄일 수 있으실 꺼여요.
그게 없이는 너무 광범위해서요. ㅠ

우선은 맨 마지막에 올리신 사진의 분배기를 의심해 보아야 할 것 같은데요.
그 속에 공기가 찾거나, 시공 중 이물질이 들어 있거나 하면 소리가 날 수 있습니다.
나머지 부분은 어느 정도 범위가 좁혀 져야 추측이 가능할 것 같습니다.
G 욕실소음 2020.05.03 11:55
집에와서 세면대와 샤워부스 벽면에 귀대어 들어보니 벽안쪽에서 나는소리같습니다
M 관리자 2020.05.03 12:16
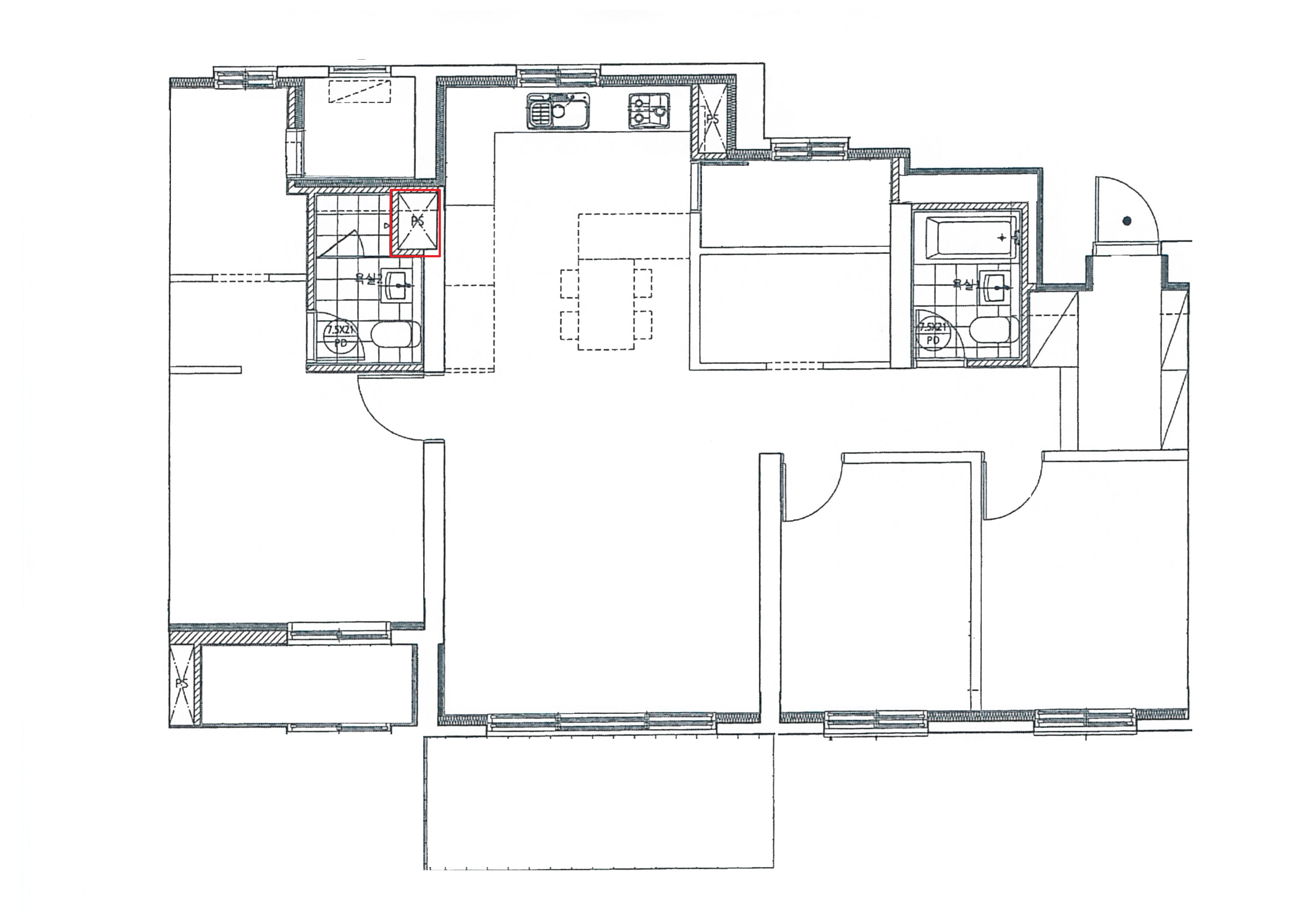
그 벽면의 위치를 도면에 표시해 주실 수 있으실까요?
G 욕실소음 2020.05.14 16:44
출장으로인해 늦게올려 죄송합니다
해당 벽안에서 소리가나는것같습니다
M 관리자 2020.05.14 21:10
네.. 그럼 세대 공용배관의 소음인데요.
이 부분은 해당 세대 내에는 점검을 위한 문이 없을꺼여요.
관리사무실에서 이 공간으로 접근할 수 있는 곳으로 속을 살펴봐 주어야 합니다.
우선 관리사무실에 이 공간 내부 입상배관에서의 소음인 것 같다고 말을 하시고요. 내부를 봐달라고 해주세요.
G 욕실소음 2020.05.19 13:54
금일 옥상에서 내시경으로 배관 내부를 확인했습니다

배관내부는 특별한 이상이없다고 합니다

입상배관이 전층 연결이되어있어서 윗층중 어느한세대에서라도 물을 사용하게되면 난다고하는데

우리집에서만 소리가난다는게 이해가되질않습니다

의심해봐야할 다른곳은 없을까요..??
G 부틸러버 2022.03.26 22:18
배관에 부틸러버 부착하면 물소리 소음진동 완화됩니다~
Category