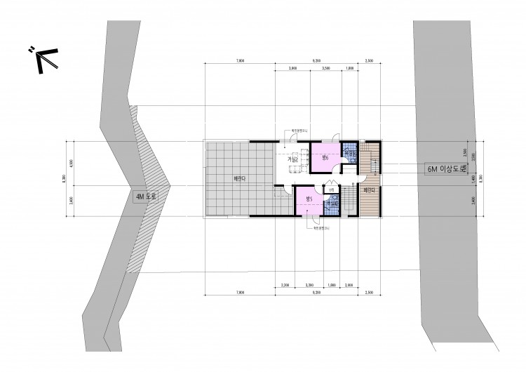
지하외벽 상세도

설계/시공관련 질문

질문 전에 먼저 검색을 해주세요.

 

지하외벽 상세도

G 다아리이 10 2,913 05.02 06:13

 소중한 답변항상 감사합니다.

공부할것도 많고 궁금한것도 많네요 .. 항상공부하게 도와주시는 협회분께 항상 감사드립니다.

 

비슷한 질문들을 읽어봤습니다.

그래도 잘하려는마음에 궁금한점 질문드립니다.

 

도로가 높은 대지 특성상 1층이면서도 한쪽면이 흙에 접하는 부분에

하자없는 시공디테일을 고민하고있습니다.

 

1. 토목옹벽을 따로 설계의뢰하고 건축물 설계를 의뢰하려다가 그냥건축과 연결하여 건축구조에서 

  일체형으로 구조설계를 하고싶은데 맞는 방향인가요?

   그래도 토목구조와 협업을해야 되나요?

2. 일체형으로 설계를 진행할시 첨부도면 디테일이 맞는 방법인지 궁금합니다.

    기분상 건축물과 토목옹벽연결부분이 먼가 취학할것 같아서 ...

3. 내부 방습벽은 필수 인거죠?

   필수라면 홈페이지 자료에서 처럼 건식과 습식 이 있다면  추후 하자발생을 예상하여 

    건식으로 하고 싶은데... 

    그럼 하부 방수턱부분 방수처리만 잘하면 되는건가요?

    아님 내벽 골조면 방수처리와 드레인보드등 시공을 해야하는지 .. 방습벽에 대한 시공원칙을

    알고 싶습니다.  

 

Comments

M 관리자 05.02 10:39
안녕하세요.

올려 주신 평면 영역에 해당하는 2층 평면도로 같이 부탁드리겠습니다.
M 관리자 05.02 17:35
본문에 올라가 있는 것을 제가 보지 못한 것인지, 새로 올려 주신 것인지...
혹시 제가 미처 보지 못한 것이라면 죄송합니다...

-------------
1,2. 취약하지는 않습니다. 건축물과 옹벽을 분리할 수도 있습니다만, 대개의 경우는 건축물과 옹벽을 이어서 하는 편입니다. 이 부분은 건축기술사가 계산을 할 수 있는 범위입니다.
옹벽을 잇는 다면, 단열은 아래와 같은 개념으로 들어가야 합니다. 옹벽 쪽에 붙은 단열재는 두께 50mm 이상이면 무리가 없습니다.
M 관리자 05.02 17:38
3. 다행이 지하 한쪽이 외기와 접하고 있어서 물처리는 어렵지 않아 보이고요.
이중벽은 지금 도면처럼 조적을 쌓아서 형성하셔도 되고, 단열재에 홈이 파여 있는 단열드레인보드라는 것을 벽에 댄 후에 석고보드 등으로 마감을 할 수도 있습니다.
바닥의 배수판은 만들어 주셔야 하고요.
M 관리자 05.02 17:38
그리고 오지랍입니다만, 2층 기초와 지하 외부 처리에 대한 추가 의견을 드립니다.
G 다아리이 05.02 19:35
정말감사합니다.
추가질문드립니다.
되메우기 부분 잡석다짐 계획으로 수정하고 그럼 옹벽 되메우기 하부에 유공관 계획하여 우수멘홀에 연결하면 괜찮은거지요
옹벽에 중간에 벽드레인용 파이프 심어야 하나요?

그리고 내부 방습벽 단열드레인 보드와 바닥배수판 연결시키면 되고 그럼 따로 물을유도하는 배수파이프 시공은해야되나요?
만약 파이프 연결하면 집수정을 만들어야 하는지 궁금합니다.
그리고 방습벽안쪽과  흙에묻이는 벽체쪽에 방수는 연결성이 떨어지므로 시공의미가 없는건가요 ? 그래도 해야되는지 궁금합니다.
M 관리자 05.02 19:49
옹벽 되메우기 하부에 유공관 계획하여 배수를 하시면 되세요.
중간에 드레인 파이프는 필요로 하지는 않습니다.

1층 바닥은 두가지로 나누어 말씀을 드려야 하는데요.

가. 기초와 외벽의 이어치기 부위에 지수판이 건전하게 시공되고, 외벽 거푸집 폼타이에 지수링이 사용되고 콘크리트 타설시 바이브레이타를 사용해서 밀실하게 탙설이 된다는 전제로 배수로와 집수정 모두 필요없습니다.

나. 위의 공정 중에 어긋나거나 건전성을 잃을 확률이 있다면 바닥의 물을 외부로 빼야 하는데, 말씀드린 바와 같이 1층이 외기와 면하여 있기에, 바닥과 외벽이 만나는 모서리에 배수로를 만들고 그 곳에 고일 수 있는 물을 1층 외부로 뺄 수 있는 작은 파이프만 매립하면 무리가 없어 보입니다.
G 다아리이 05.02 21:01
감사합니다.
하나하나 염려부분이 해결되는것같아 기분이 좋네요
그런데 위설명해주신 2층 슬라브를 끝어서 설계하라는 부분이 잘이해가 안가서요
지하 외벽단열재가 끝어지는것 때문에 그러신것같은데  끝어서 설계하면 2층 내부슬라브 는 어떻게  마감해야하는지 궁급합니다.
M 관리자 05.03 10:16
"2층 내부슬라브 는 어떻게  마감"이라는 표현을 제가 잘 이해하지 못했습니다.
G 다아리이 05.04 18:55
한번질문 하기 시작하니 너무 기본적인 부분도 확인받고 싶은마음만 생겨 죄송합니다.
 2층 기초를 분리하라는 부분은 ①번표시부분(외부데크)만 해당된다는 말씀인거죠?
전 2층 스라브 기초가 생성되는 라인전체를 생각했습니다.
그래도 기초를 끊어치는 부분은  철근이음 이나 방수처리방식은 해야하나요 ① 번 그림에 써있는것처럼 하자발생이 생길까 궁금해서요
M 관리자 05.06 14:01
네 외부출입구만 분리하는 것을 말씀드렸습니다.
침하의 걱정은 없으셔도 되세요.
그리고 벽도 끊어치는 것이 맞으나, 이 부분은 담당 건축사가 변경을 해주어야 가능한 부분입니다. 기초와 엮여져 있어서요.
외부 데크도 담당 건축사가 일종의 결심(?)을 해야 가능합니다. 그냥 끊을 수는 없습니다. 철근 이음도 없이 그냥 분리를 하는 것이니까요.
그게 어렵다면 슬라브를 많이 다운해서 상부를 단열재로 덮어 주어야 합니다.

그리고 오지랍입니다만, 2층 베라다도 슬라브 다운이 필요합니다. 지금 도면은 물이 타고 들어 올 수 있거든요.
Category