안녕하세요, 단열과 관련하여 질문드립니다.

설계/시공관련 질문

질문 전에 먼저 검색을 해주세요.

 

안녕하세요, 단열과 관련하여 질문드립니다.

1 emjay 1 4,781 2019.07.23 10:49

 

652a60cedad908ea99b70b8ba4ccec47_1563846505_184.png 

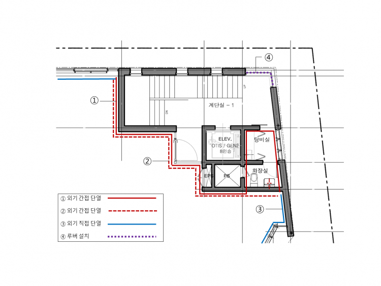
안녕하세요단열과 관련하여 질문드립니다.

 

1. 계단실 우측 코너에만 루버(완전 밀폐 가능) 설치 했을 경우

냉난방을 하지 않은 계단실을 실외가 아닌실내로   있는지 알고 싶습니다.  

 

만일 실내로 보는게 맞다면,

 번의 외기 간접 단열을 적용하는게 맞는지 알고 싶습니다.  

 

2. 만일화장실에 냉난방을 하지 않아도 된다면,

화장실 또한 실내로 볼 수 있는지 여부와

 번의 외기 간접 단열을 적용해도 되는지 알고 싶습니다


 

Comments

M 관리자 2019.07.23 12:16
아래 글을 보시면 도움이 되실 것 같습니다.
http://www.phiko.kr/bbs/board.php?bo_table=z4_01&wr_id=23193
Category