단독주택 신축공사를 앞두고 지붕과 단열부분 설계가 잘 되었는지 궁금해서 문의글 올립니다.

설계/시공관련 질문

질문 전에 먼저 검색을 해주세요.

 

단독주택 신축공사를 앞두고 지붕과 단열부분 설계가 잘 되었는지 궁금해서 문의글 올립니다.

G 이성준 22 7,744 2019.03.28 00:30

안녕하세요~ 생초보 건축주입니다.

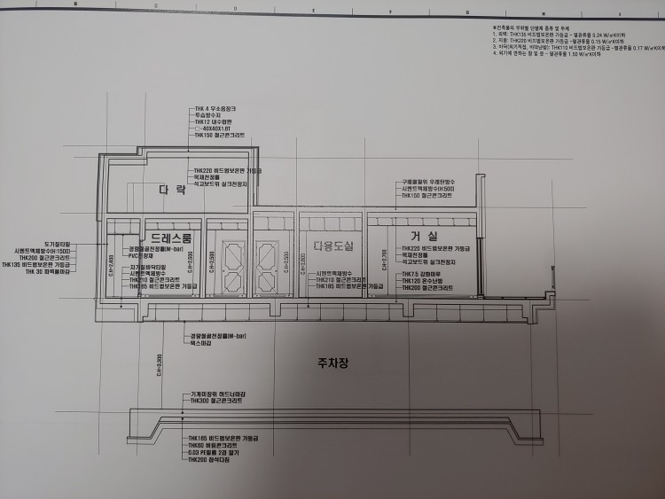
주단면도 사진 첨부합니다. 난생 처음으로 집을 지으려고 하다보니

아는것도 없고 자료들을 찾아봐도 생소한 것들이라 이해도 잘 안되더라구요.

제가 집을 지으면서 막연히 중요하다고 생각하는 부분이 단열과 방수 부분인데요. 설계도를 봐도 잘 모르겠어서 질문을 하게 되었습니다.

첨부한 주단면도에서 다용도실과 거실위쪽이 평지붕이고 다락쪽은

경사지붕입니다. 제 짧은 지식으로 봤을때 평지붕쪽이 내단열로 되있는것

같은데 이렇게 시공했을때 단열이라던지 방수에 하자가 생기지 않을지

궁금합니다. 협회에서 본 자료에 의하면 문제가 될 것 같은데 외단열로

바꾸는것이 좋겠지요..?? 

전체적으로 봤을때 외벽이나 지붕, 바닥 부위별 단열재 종류 및 두께가

적절하게 설계 되었는지 수정해야 좋을 것 같은 부분이 있다면 답변 좀 부탁 드리겠습니다. 

1층은 전체 필로티 구조이며 기둥만 있고 2층에 주거공간과 다락방이

있는 형태입니다. 

현재 건축물 설계 및 감리 계약서는 작성한 상태입니다.

기름보일러를 1층에 설치하려고 하구요 바닥재는 아무래도 강화마루보다는 난방에 좀 더 유리한 것 같은 강마루로 수정하려고 합니다.

아는것이 없다보니 질문 자체도 제대로 한건지 잘 모르겠네요..

고견 부탁드립니다.

더 첨부해야 될 것이 있다면 말씀해주세요~

Comments

G disl1@hanm… 2019.03.28 00:32
본문에 사진이 첨부가 제대로 된건지 몰라서 댓글에 추가로 첨부합니다.
G 정해갑 2019.03.28 07:42
수정이 필요한 것은 도면이 아니라 건축주의 의지로 보입니다.
허가용도면을 수정한다고 해서 최종결과물인 집이 제대로 될 가능성이 낮기때문입니다.

중요한 것은 건축주의 예산에 맞춘 목적을 달성하는 것이고,  그것이 관리자님이 말한 궁극의 패시브하우스 이고,
선택은...... 전체적으로 봤을때 현행법에 맞게 적절하게 설계된것 같습니다. 그것이 건축주가 기대하는 따뜻하고, 결로 곰팡이 없는 집과는 안드로메다 만큼 멀리 있겠지만요.
G 정해갑 2019.03.28 07:58
복사 붙여넣기에도 오류가 보이네요. 다용도실과 거실의 슬라브 두께가 달라요. 공사비가 조금이라도 더 들어가겠는데요. 거실아래는 그림과 표기가 달라서 단열재 없이 공사해도 뭐라고 못하겠네요.

1층은 전체 기둥식 필로티 구조인데, 기초의 단열재는 왜 들어갔을까요? 공사비가 남아서?
3 green건축 2019.03.28 07:58
관리자님께서 한 말씀 있을 것으로 보여 집니다만...
도대체 우리나라의 건축하는 사람들은 왜 그런지 모르겠습니다. 다는 아니고 일부가 그럴 것이라고 생각됩니다만...

발주자가 갖고 싶은 집은 의뢰를 받은 설계자가 발주자의 의도와 같은 그림을 그려야 하는 것이고, 감리자는 건축에 전문성을 갖지 못한 발주자를 대리하여 설계내용대로 집이 지어지고 있는가를 관리 감독하는 일을 하는 사람들입니다. 둘 다 전문성을 갖고 의뢰인인 발주자에게 서비스를 해야 하는 것이 당연하고요.

설계자가 그린 그림은 당연히 발주 의도가 표현되어야 할 것이며, 전문성이 부족할 수밖에 없는 발주자에게 건전한 조언을 해줄 수 있는 사람이 설계자일 것입니다.

그 다음...
감리자는 뭐 하는 사람인가요?
감리자로 선정되면 발주 의도를 확인한 후 설계도서를 검토하여, 발주자의 생각과 다른 부분이 있거나 더 나은 대안이 있다면 개선안을 제시하여, 설계자와 협의해서 설계를 변경함으로써 좋은 집의 밑그림을 완성시키는 것이 바른 순서가 아닌가요?

어찌하여 발주자가 이미 선정된 설계자와 감리자를 떠나 제 삼자라고 할 수 있는 이곳에 자문을 구하게 하는지 모르겠습니다. 그들이 제대로 일을 했다면 여기까지 오시지는 않았을 것이라는 얘깁니다. 아닌가요?

질문하신 분께는 죄송합니다만...
아닌 것 같아서 한 말씀 올렸습니다.
G disl1@hanm… 2019.03.28 09:46
정해갑님 답변 감사합니다.
현행법에 맞게 적절하게 설계는 되었으나 결로, 곰팡이 없는
따뜻한 집과는 거리가 멀다고 하셨는데 결로, 곰팡이 없는
집을 짓고 싶은게 제 마음이거든요..
어떻게 수정해야 되는지 조언을 해주시면 많은 도움이
될 것 같습니다. 말씀하신 슬라브 두께와 그림과 표기가
잘못된 부분도 수정을 해야할 것 같네요.

green건축님 답변 감사합니다.
옳으신 말씀입이니다.
제가 처음 겪는일이라 협회를 몰랐더라면 설계가 잘못된건지 제대로 된건지 아무것도 모른체 잘 되었겠지 생각하고
그냥 진행되었겠지요.
그래서 혹시나하는 마음에 무지한상태로 질문도 올리게
되었구요. 제 의도에 맞게 설계자가 잘 설계해주고 조언도
해주고 그래야 되는데 기대에 못 미치게 된 것 같아 아쉬운
부분입니다.
지금 상황에서 막연히 수정만 한다고 잘 될까라는 의구심
또한 생기구요. 어떻게 해야 좋은 선택이 될지도 잘 모르겠습니다.ㅠㅠ 염치없지만 좀 더 구체적인 조언을 해주실 수
있다면 고견 부탁드리겠습니다..;;
2 TBBlock 2019.03.28 10:00
안녕하세요.

사실 대부분의 건축주들이 선생님과 같은 상황입니다.
자기 집을 갖은 것이 꿈인 보통의 사람들이 평생에 몇 번이나 집을 짖겠습니까..

다행인 것은 건축이 시작되기 전 이곳을 찾으셨으니 그나마 다행입니다.

기술자료에 있는 글들을 천천히 읽어보시기 바랍니다.
http://www.phiko.kr/bbs/board.php?bo_table=z3_01

예산이 어느정도인지는 모르겠지만..
표준주택이 대안이 될 수도 있습니다.

http://www.phiko.kr/bbs/board.php?bo_table=z11_01
2 TBBlock 2019.03.28 10:08
green건축님

본문과는 상관없지만.. 제가 받는 대부분의 도면들이 지금 수준과 그리 다르지 않았습니다.
국내 메이져급 회사나.. 지역 건축설계사나..

그나마 협회 인증 프로젝트들만 단열을 논할 수 있는 수준이였습니다.

...

점점 나아지겠지요..
M 관리자 2019.03.28 12:46
질문주신 분께...
안녕하세요...
이 도면은 수정한다고 해서 크게 달라 질 수 없는 도면입니다. (전형적인 허가방 도면)
그렇다고 해서, 건축주가 저희의 의견을 받아서 무언가 하실 수 있으신 것도 없으셔요.
그 과정이 더 지난하기 때문입니다.
저희가 시간과 공을 들이는 것은 아무렇지도 않으나, 건축주가 중간에 있는 이 과정이 무언가 옳은 방향으로 가기가 어렵다는 의미입니다. 아무래도 비전공자이시니까요...

유사한 글이 반복되긴 합니다만... 두가지 방법이 있습니다.

한가지는 지금까지의 비용은 다 매몰비용으로 하시고, 협회 회원사와 다시 설계계약을 하시는 방법 (가장 추천)
두번째는 협회에 컨설팅을 의뢰하는 방법인데... 아마도 이 정도 도면 수준이라면... 컨설팅한 부분을 원 설계자가 수정을 해주지 않을 가능성이 높아 보입니다. 이 방법은 미리 원 설계자의 동의를 얻으셔야 합니다.

저희의 경험으로는 이 두가지 방법 외엔 없었습니다.
G disl1@hanm… 2019.03.28 23:14
관리자님 답변 감사합니다.
그정도 수준의 도면인가요..?
무지한 저로서는 이곳의 자료를 참고해서
평지붕의 내단열을 외단열로 수정 역전지붕
형식으로 하면 나아지지 않을까라는 아주 단순한
생각을 했습니다.. 사실 제가 직접 찾아가서 의뢰를
한 건축사사무소는 아닙니다. 평소 아버지께서
조립식 판넬 구조의 공장을 지으실때 계속 일을
해왔던 곳이라 아무래도 주택보다는 간단한 설계를
했었던 터라 알아서 잘하겠지라는 안일한 생각으로
의뢰를 하신것 같습니다. 제가 살집이라 제 마음
같아서는 계약철회를 하고 이곳의 회원사에
의뢰하고 싶지만 그러기엔 걸리는게 많아서 더
고민이 많습니다..ㅠㅠ
낮에 협회 본사에 전화해서 컨설팅에 대해 문의도
해봤으나 그것 역시 제 마음대로 하기엔 걸리는
것들이 있다보니 어렵네요..
지금 제 상황에서 최선의 방법은 비록 형편없는
도면일 수 있으나 조금이나마 나은 선택을 위한
조언을 해주실 수 없을지 조심스럽게 부탁드립니다.
위와같은 저의 단순한 생각은 그냥 어처구니없는
생각일 뿐일까요?
2 TBBlock 2019.03.29 09:12
관리자님께서 간단히 해결될 문제라면 답을 주셨겠죠.

결국 모든게 다 비용입니다.
설계를 다시하고 제대된 시공사를 만난다고 한들 계획한 예산보다 훨씬 넘어설 수 있습니다.

참고하세요.
M 관리자 2019.03.29 10:30
네... 저도 무언가 할 수 있는 것이 있었으면 좋겠습니다만..

질문 주신 분께서...
이런 저런 이유로 손바닥에 있는 것을 내려 놓지 못하시므로...
저희 역시 이런 저런 이유로 그 손바닥에 올라가지 못하는 것이라고 이해해 주시면 되실 듯 합니다.

많은 분들이 여기서 오고 가는 글과 그림으로 무언가 집이 크게 변할 것이라는 막연한 생각을 하시는데요.. 사실 그게 불가능합니다.
그게 가능하다면 이미 그렇게 했을 겁니다.

딱히 맞는 지는 모르겠지만, 적당한 비유를 들어 보겠습니다.
M 관리자 2019.03.29 10:31
사진과 같은 차를 주문합니다.
물론 이 차는 최소한 달리는데 문제는 없을 것이라는 막연한 믿음이 있습니다. 그 때문에 돈을 지불했으니까요.
M 관리자 2019.03.29 10:33
그런데, 이런 사람 저런 사람 이야기를 들어 보니, 무언가 불안한 거여요.
잘 모르겠지만..,, 자세히 보니..  무언가 이상해요.
마치 갈 수 있는 차가 아닐 것 같은 불길한 생각이 듭니다.
M 관리자 2019.03.29 10:37
그런데, 패시브협회라는 곳을 우연히 봤는데.. 무언가 될 것 같은 생각이 들었습니다.
그래서 도면을 올려서 문제가 되는 부분이 없는지 질문을 하게 되는데, 이 부분만 고치면 문제가 사라질 것 같은 생각이 들었기 때문입니다.

리자도 꽤 답을 잘 해 주고 있는데, 그 수많은 답변에 아무도 딴지를 거는 사람도 없어서..  뭔가 믿음이 가요.
지금까지 카페나 블로그는.. 누가 한마디 하면.. 서로 까대지 못해 안달인 곳이 대부분이었거든요.

그래서 도면을 올리고 질문을 하게 됩니다.
M 관리자 2019.03.29 10:39
리자의 답변에 그 동안 심한 딴지가 없는 것은.. 답변 전체가 그저 두리뭉실한 개념만 있기 때문인데.. 질문하시는 분은 그 것을 인지 할 수 없었던 것 뿐이거든요.
하지만, 그저 멋져 보일 수는 있었던 거죠.
M 관리자 2019.03.29 10:41
올려주신 자동차 조립도를 가지고,  도로 위에서 고장없이 갈 수 있으려면.. 아래와 같이 모든 부분에 대해 설명을 해드려야 하는데... 그 과정이 사실 불가능하거든요.
M 관리자 2019.03.29 10:42
근데, 설명만으로 끝낼 수가 없는 것이... 그림이 아니라.. 실제로 만들어 져야 하기에..
제대로 된 도면으로 구현이 되어야 합니다.

이 게시판 만을 통해서, 그 결과로 갈 수 없으리라는 것을 쉽게 아실 수 있으실 꺼여요.
M 관리자 2019.03.29 10:46
마음은... 도면 전체를 다 그려드리고 싶습니다.
그리고, 올려 주신 도면으로 "일을 다 했다"고 주장하는 그 건축사를 청부 암살하고 싶은 생각이 굴뚝같고, 이 게시판의 오고 가는 문답으로 무언가 문제가 다 해소될 수 있다면 정말 소원이 없겠어요.

하지만 그게 불가능합니다.
특히, 말씀하신 것 처럼... 이런 저런 이유로.. 본인의 상황에 전혀 어떠한 변화없이...  무언가를 얻으려 하신다면.. 더더욱 그러합니다.

진지하실 텐데.. 우스게 소리와 그림으로 답변을 드려 죄송합니다.
하지만 저도 질문하신 분 만큼 절실하다는 것을 이해해 주시면 감사하겠습니다.
1 서윤빠 2019.03.29 12:22
세세한답변 감사합니다.
저도 마음 같아서는 계약 철회하고 새로 설계하고
싶네요.어제 두가지 방법 중 컨설팅에 대해
여쭙겠습니다. 원 설계자의 동의하에 컨설팅을
진행하게 된다면 어떤식으로 진행되는지
궁금합니다. 원 설계자 설계도의 잘못된 부분들을
수정하게 되는것인지.. 아니면 새로 설계도를
만드는것인지.. 그리고 컨설팅 의뢰비용과
인증비라는 얘기를 본사 통화때 들었는데요
컨설팅 의뢰를 하게되면 두가지 비용 모두 지불해야
되는건지 궁금합니다.
M 관리자 2019.03.29 12:38
인증은 받지 않으셔도 괜찮습니다.

컨설팅은 도면을 그려드리지는 않습니다. 도면을 수정할 수 있는 도해와 설명을 해드릴 뿐입니다.
그러므로 원설계자가 도면을 완성해야 합니다.
아마도 설계비를 더 요구하실 겁니다. 그러나, 저희의 경험으로는 아예 하지 않으시려 하실 확율이 거의 100% 입니다. 그러므로 먼저 협의를 하시어요.
도면 변경에 대한 설계비를 더 청구할 만한 분이라면, 이미 잘 하실 분이기에....

허가도면만 그리는 설계사무소의 근본적인 문제는... 그 도면의 질이 아니라, 무언가 지식의 습득을 극렬히 거부한다는데 있기 때문입니다.
(건축사 취득 후 지금까지 아무런 공부를 한 적이 없지만... 더 격렬히 안하고 싶다.)

하지만, 결국 책임은 그 분께 있기에.. 그 분이 스스로 수정 도면을 그리지 않으면, 아무 것도 진행될 수 없습니다.
그리고, 그 무엇보다도.. 분명히 공사 금액이 올라갈 텐데.. 그 것을 수용할 준비가 되셨는지도 중요합니다. 좋고, 싸게는 방법이 없기 때문입니다.
1 익도롱 2019.04.05 09:50
리자님의 명쾌한 답변에 축주님이 받아들이시는 것과 계자님과의 관계에서 참 미묘한 안타까움이 있는 듯합니다.ㅎㅎ
G 이정우 2019.04.05 17:30
건축주께서 생각하시고 계신 전체 예산에서 허가용 도면 계약 금액이 어느 정도인지는 제가 알수 없으나 저의 경우를 미뤄 봤을때 전체 건축비의 1% 내외 였던거 같습니다. 그 1%를 지키기 위해서 99%를 잃지 않으셨으면 좋겠습니다. 저는 LCD 생산 장비 유지보수를 10여년 하면서 초기 투자가 얼마나 중요한지 뼈저리게 체감하고 있습니다. 집을 짓는데 근거와 데이터를 바탕으로 한다는걸 협회에서 처음 알았습니다. 집은 다시 지을수 없으니 심사숙고 하시길 바랍니다.
Category