공동주택 대피소 및 실외기실(다용도실)부분과 면한부위 단열설치관련

설계/시공관련 질문

질문 전에 먼저 검색을 해주세요.

 

공동주택 대피소 및 실외기실(다용도실)부분과 면한부위 단열설치관련

G 김태훈 10 14,659 2019.03.07 11:16

안녕하세요 본협회 자료를 통해 평소에 많은 도움을 받고 있습니다.

 

다름 아니라 .. 공동주택 설계중 외기에 면한 부분의 단열재 설치에 대해 궁금해서 문의드립니다.

 

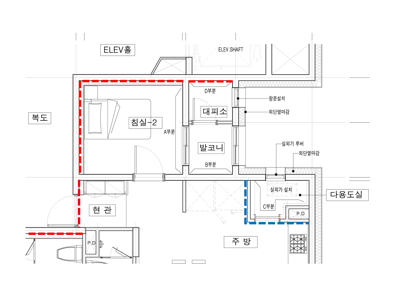
첨부파일의 A,B,C,D 부분을 어떤 부위 (간접 또는 직접 또는 단열재 설치 제외 부분) 로 적용해야 하는지 애매해서요 ( 기본적으로 건물 외벽을 둘러서 모두 외단열로 계획되어 있습니다 : 이미 외벽에 단열을 설치해서 이것때문에 좀 헷갈리네요. ^^;;)

 

1. A부분 : 대피소,발코니를 비난방공간으로 해서 침실 안쪽에 간접외기로 보고 단열재를 설치해야 하는지? 아니면 이미 외벽에 단열재를 설치했기때문에 따로 단열조치를 안해도 되는지?

 

2. B부분 : 발코니를 비난방공간으로 해서 주방과 면한부분을 간접외기로 보고 단열재를 설치해야 하는지? 아니면 이미 외벽에 단열재를 설치했기때문에 따로 단열조치를 안해도 되는지?

 

3. C부분 : 실외기실 부분에 루버설치로 주방과 접하는 부분을 직접외기 또는 간접외기로 보고 단열재를 설치해야 하는지? 아니면 이미 외벽에 단열재를 설치했기때문에 따로 단열조치를 안해도 되는지?

 

4. D부분 : 엘리베이터와 면한 대피소 부분은 비난방공간이기 때문에 단열재 설치 제외인지 아니면 간접외기로 보고 단열재를 설치해야 하는지? 이미 외벽에 단열재를 설치했기때문에 따로 단열조치를 안해도 되는지?

 

공동주택이 다양화되다보니 여러 경우가 발생하네요.

 

늘 수고해 주셔서 감사합니다. ^^ 

Comments

M 관리자 2019.03.07 11:24
몇 층짜리 공동주택인데 ... 외단열을 하셨네요?
G 김태훈 2019.03.07 11:47
네 7층짜리 나홀로 아파트네요 ^^
G 김태훈 2019.03.07 11:50
그리고 추가 질문인데요..말씀하신것처럼 보통 복도나 승강기 계단실에 면한부분 (도면에 빨간박스부분)은 외기간접으로 해서 단열을 하잖아요.. 그러나 말씀하신 것처럼 외단열을 할때 이부분 복도나 승강기 계단실에 면한 부분을 단열을 외기간접으로 하나요? 아니면 단열조치를 하지 않아도 되는지 궁금하네요?? ^^
M 관리자 2019.03.07 12:13
네. 그림을 그려야 하는데 ... 오늘 출장이라 저녁때 답변 드리도록 하겠습니다.
1 패시브아파트 2019.03.07 15:26
발코니까지 다 단열선 안에 있네요. @@ 외단열을 충실히 했다면 복도랑 발코니를 내부 취급해도 될 것 같은데 실외기실이........
M 관리자 2019.03.07 23:22
외단열 공동주택은 평면의 설계 방식 자체가 변해야 하는데, 내단열로 발전해 온 공동주택과 동일한 설계에 외단열을 적용하기에는 여러가지로 무리가 있습니다.
패시브아파트님 글 처럼.. 외단열이 충실하다면 (현관문 등등) 단열외피 내의 비난방공간은 무시해도 됩니다만.. 그러려면 외피의 건전성이 보장되어야 합니다. 협회 인증주택처럼요..
현행법에서는 아래와 같은 정도를 요구하고 있습니다.
파란색 : 외기직접
붉은색 : 외기간접
2 rHyme 2019.03.08 11:20
간단하게 말로 설명드리자면..
단열재로 연결된 라인이 띠를 두르면 됩니다.. 외단열로 외피를 전체 감싸신다면..
복도(비난방공간)와 세대(난방공간) 사이에 단열재를 설치하실 의무는 없습니다.

다만, 공동주택을 외단열로 설계하신다면, 공동주택의 출입구가 단열성능 만족 또는 방풍구조로
설치되어야 하며, 비난방공간인 계단실에 설치되는 창호도 외기 직접 수준의 단열성능을 만족해야 합니다.
아울러 패시브아파트님께서 언급하신 실외기실이 문제인데.. 실외기실 루버가 외기직접 단열성능을 만족해야합니다..

보통의 공동주택은 세대만을 내단열의 단열라인으로 띠를 두르는 형태로 가고 있기에, 관리자님이 말씀하신 것처럼 복도(비난방공간)와 만나는 곳에 외기에 간접 면하는 벽체의 단열 성능을 만족해야 합니다.
실외기실이 조금 예외의 경우인데.. 현행법상 실외기실에 설치되는 루버가 개폐가능하면 외기간접공간, 개폐불가하면 외기직접공간으로 판단합니다.

판단에 참고하시기 바랍니다 ㅎ
M 관리자 2019.03.08 12:03
감사합니다.~
G 김재경 2023.05.22 18:07
안녕하세요
외단열 공동주택 실외기실 루버가 단열성능 만족하는 시스템 루버로 사용하더라도 실외기실 내벽을 간접외기로 보고 단열재를 넣어야할까요?
M 관리자 11.24 16:57
네 그렇습니다. 그 자체가 비난방공간이라 그렇습니다.
Category