신축아파트 붙박이장뒤 곰팡이

설계/시공관련 질문

질문 전에 먼저 검색을 해주세요.

 

신축아파트 붙박이장뒤 곰팡이

G 이채아 7 9,740 2019.01.26 15:55

너무 답답한 마음에 여기에다 글을 쓰게 되었습니다

현재 저희는 신축아파트 1년 1개월 살았는데 사용하지 않는 방에 환기는 지속적으로 하여 왔었고 그럼에도 곰팡이 냄새가 계속 나서 붙박이장 환기캡을 열어 확인하여보니 거기에서 냄새가 확인 되었습니다. 

붙박이장 안은 괜찮은데 뒤와 경량벽체가 곰팡이가 핀것이 입주자과실로 몰아가지 않을까 염려스럽네요... 

환기캡이 상부에만 있어 사실 뒤 밑에까지는 확인이 어렵습니다. 

이럴 경우 시공사와 어떻게 해야하는지 조언부탁드립니다.

Comments

3 이명래 2019.01.26 18:48
일단, 사용하지 않은 방이라고 하여도 난방을 통한 일정한 온도유지가 필요합니다.

환기로만 모든 게 해결될 수는 없습니다. 환기라는 것이 수증기밀도가 높은 실내공기를 외부의 건조한 공기로 바꾸어 줌으로써 습도를 낮추어 주는 것이지, 원천적으로 결로나 곰팡이 발생을 억제하는 것은 아니기 때문입니다.

환기에 의한 내. 외부 공기의 치환도 중요하지만 적정한 온. 습도를 유지해야 할 것이란 말씀으로써, 이는 사용자가 지켜야 할 사항입니다.

결로발생이 우려되는 시기에는 붙박이장 문을 닫아두고 두꺼운 옷을 첩첩히 걸어두면,
그 자체가 방바닥으로부터 발생되는 복사 열원을 차단하는 커튼역할을 하게 되기 때문에 취약한 해당 부위는 상대습도가 올라감으로써  더욱 더 취약해질 수밖에 없습니다.

이 또한 사용자가 주의해야 할 사항입니다.

마지막으로 하자여부 판별입니다.
입주 1년이 갓 넘었다면 시공사의 C/S팀이 상주하고 있을 것입니다. 찾아가서 사실을 얘기하고 해당 부위 단열재 시공상태를 확인해서 단열재가 틈없이 시공되지 않는 등 문제가 있다면 시공하자입니다.

그 이전 실내 온도와 습도를 체크해 보시기 바랍니다. 동절기 실내 환경은 온도는 20~25도 그리고 습도는 50% 정도가 적정하다는 게 일반적 기준입니다. 참고하시기 바랍니다.


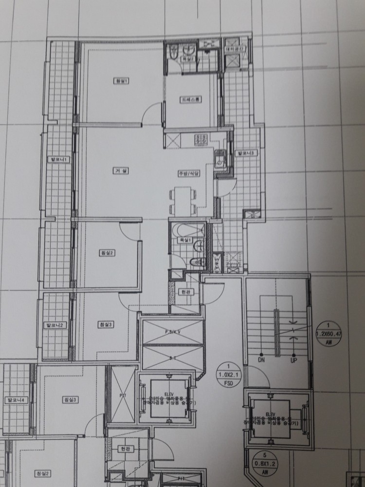
* 평면 올려 놓은신 질문을 늦게사 봤습니다.

아래 제가 붉은색으로 칠한 부분에 붙박이장이 있는 것인가요?
그 부위라면 엘리베이터 뒤 피트로 인하여 문제가 있을 것 같기도 합니다.
G 이채아 2019.01.26 21:25
답변 주심에 너무 감사합니다.
제가 그방 붙박이장안에 짐도 없는 상태이고 보일러도 한번씩 가동시켜주었고 제습기도 한번씩 가동시켜 주었는데도 소용이 없었습니다. 
붙박이 위치는 문입구 단열재 벽면쪽으로 설치되어 있어 단열재의 마감이 의심되어 보이나 이거또한 붙박이장 해체를 해서 뜯어봐야지만 알수 있을텐데 걱정이 되네요ㅠㅠ...
3 이명래 2019.01.26 21:37
평면도를 보아 발코니 출입문 주변이라면 발코니와 침실 #3 칸막이벽 단열재 설치에 문제가 있기 전에는 다른 문제는 없을 것으로 여겨집니다. 세대 칸막이벽 배면이 이웃한 집의 외벽이 아닌 칸막이벽 중간이거든요.

지금이 계절적으로 결로 발생이 많고 입주 후 첫 겨울이 지나고 있기 때문에 시공사 A/S팀에 열화상 카메라가 있을 것입니다. 하자신청과 함께 해당 부위를 점검해달라고 하십시오. 당연한 권리이오니  행사하시기 바랍니다.
1 이장희 2019.01.27 11:10
지나가다 우연히 읽게되어 한줄 남깁니다.
이명래 선생님 말씀대로 적절한 환기와 난방은 필수이고, 더불어 제습기는 '한번씩 돌려주는'것보다 희망습도 45~50% 정도로 맞춰둔 채로 2~3대를 항상 켜두시는 게 좋습니다.
희망습도에 도달하면 제습기 작동이 멈춥니다.
지금 제가 살고 있는 전세집도 신축 RC구조 아파트인데 제습기 3대를 돌리고 있습니다.
비난방 다락방은 4~5일에 한번, 1~2층은 매일 물통을 비울 정도로 습기가 많더라구요.
제주지역이라 겨울철 습도가 좀 더 높긴 하지만, 실내에 빨래 널고 국 끓이는 등의 생활방식은 비슷할테니 지속적으로 신경쓰시는 게 좋을 듯 합니다.
G 이채아 2019.01.27 11:42
제가 첨부할 내용이 있습니다.
저희집이 탑층이고 옥상에는 그자리에 소방물탱크가 있습니다.
그방에는 보일러 가동하고 제습기 돌려고 그렇게 물이 안찹니다.
참고로 현관 입구 방이다보니 주방하고도 거리가 있고 빨래너는 공간도 먼곳입니다.
의심이 되는건 소방물탱크와 아님 단열보강이 되는데 결국에는 붙박이를 뜯어서 원인을 찾는 방법밖에는 없는것인가요?
열화상카메라도 알아보니 투시ㆍ투과를 하지 못한다고 하더군요...
M 관리자 2019.01.27 19:40
일차적인 원인은...
설비 공간의 벽에 단열도 허접하게 했을 뿐더러, 그 위에 붙박이 장을 설치한 것입니다.
붙박이 장을 뜯어 내시고 빈 공간으로 두시던가, 오픈장 (옷걸이만 있는)으로 변경을 하시는 것이 좋겠습니다.
그 때, 해당 벽면의 단열을 더 보강하시면 좋으나.. 제대로 하지 않으면, 안하니만 못합니다.

여기에 대한 내용은 아래 글의 중간 쯤에 [실내 공기층에 의한 단열 효과] 부터 읽어 보시면 되세요.
http://www.phiko.kr/bbs/board.php?bo_table=z3_01&wr_id=580
1 cashew0503 09.25 21:19
붙박이장 뒤 검팡이
Category