콘크리트 vs 벽돌

설계/시공관련 질문

질문 전에 먼저 검색을 해주세요.

 

콘크리트 vs 벽돌

6 gklee 17 6,990 2018.12.09 11:32

외부마감은 슬레이트판으로 하고 내부벽을 콘크리트나 벽돌 중 하나로 하는걸 생각중입니다. 표준주택은 외부 벽돌마감을 했던데 저는 그걸 안쪽에 들이고싶습니다. 내부 마감이자 동시에 축열재로써요. 궁금한건 시공비용과 축열성능을 생각할때 어느쪽이 유리한가입니다. 목재구조보다 콘크리트구조가 2천만원가량 더 든다고 들었던것같은데 벽돌구조 비용은 콘크리트 대비 얼마나 더 비싼지, 축열성능은 대동소이한지 궁금합니다. 큰 차이가 없다면 벽돌로 하고싶거든요. 벽돌의 질이 콘크리트 타설보다 좋을것같기도 하고 선택의 폭도 넓은거같아서요. 강성은 아무래도 철근콘크리트가 낫겠지만 낮은 높이의 일반 가정주택이기도 하구요.

Comments

M 관리자 2018.12.09 22:40
현행법에 의해 모든 주택은 내진설계를 해야 하며, 이에 따라 조적구조는 불가능합니다.
6 gklee 2018.12.10 12:10
그럼 목구조로 하고 내부마감을 벽돌로 하는건 메리트가 있을까요?
M 관리자 2018.12.10 13:20
네.. 붉은 벽돌 (소성벽돌)이라면 유의미합니다. 각 방마다 한 면이나, 두 면정도 하시면 될 듯 싶습니다.
2 유리그림자 2018.12.10 14:50
ALC블럭은 축열성능이 어느 정도 인가요?
장점이 많은 목조 주택이지만 축열성능이 낮은것이 아쉽네요

요즘같은 한파에도  표준주택 19호 상황을 보면 햇볕이 잘드는 날 낮에는 보일러를 가동 안해도 27도까지 올라 가더라구요 하지만 저녁이 되면 온도가 내려가는 아쉬운 점이 있습니다.
온도가 내려가는 것을 조금이라도 늦출려면 축열성능이 높은 재료를 집안에 두어야 할것 같은데...
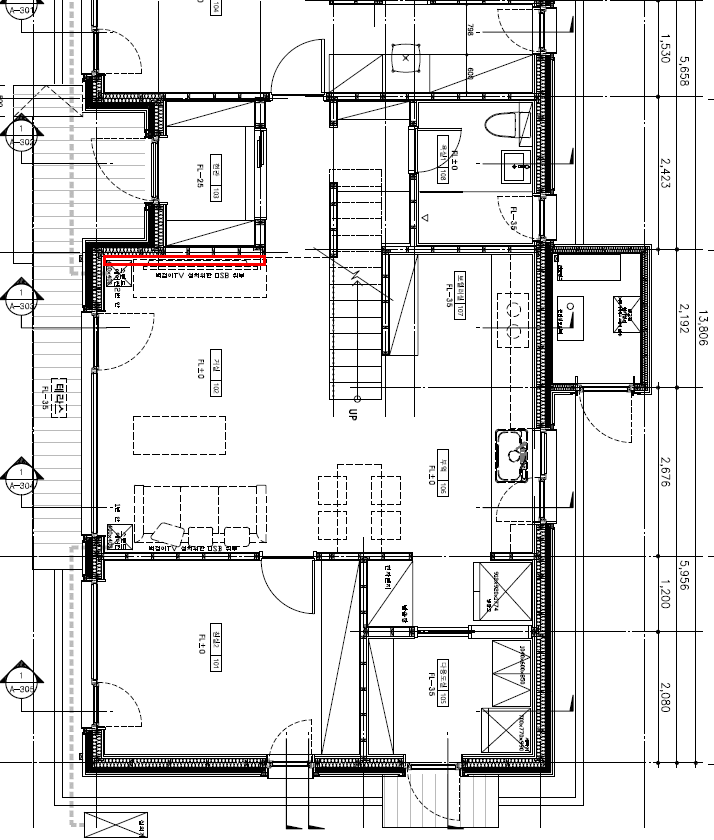
아래 그림 빨간색으로 표시한 거실 한 면을 ALC벽돌로 조적하고 부조조각을 할까 생각중입니다.
장식적인 면과 축열기능 조습기능 등 여러면에서 좋을 듯 해서요.
전체 실내온도를 유지할수 있는 유의미한 결과가 나올수 있다면 해볼까 합니다.
(ALC체적은 t150벽돌을 사용한다면 0.75m^3, t250 벽돌을 사용한다면  1.25m^3 정도)
기술적인 면에서 ALC블럭이 조적되는 부분만 마루 바닥재를 철거하고 조적하면 방통바닥이 하중를 견뎌줄지 걱정이 되기도 하구요

아직은 아이디어 수준이지만 적합하다고 생각하면 실행에 옮길까 싶습니다.
M 관리자 2018.12.10 15:17
alc 는 국내제품의 열용량 자료를 찾지 못해. 유사한 ytong 제품을 참조해 보면..
소성벽돌에 비해 약 1/4~1/5 정도의 성능이므로 큰 의미는 없어 보입니다.
2 유리그림자 2018.12.10 16:38
빠르고 간결한 답변 감사합니다.
제 전공을 살려 겸사 겸사 실내에 부조작품 넣어 볼려구 했는데...
아쉽네요 ㅠㅠㅠ
M 관리자 2018.12.10 16:41
오픈하우스 하셔야죠... ㅎ
2 유리그림자 2018.12.10 16:44
아직 작업실 완성이 안되어 내년쯤으로 연기 했습니다.
오국장님도 올해 오신다는걸 내년 봄에 오시라 했구요
시장님에게도 아직 말도 못 꺼냈어요
내년에 할때 연락 드리겠습니다.

아마 내가 구상한 초안은 3년정도 윤곽이 나온는 단계는 10년 완성은 평생이 될듯합니다.
M 관리자 2018.12.10 16:50
좋네요. 최소 10년 동안 계속 변화가 있다는 것이니... 기대 됩니다.
6 gklee 2018.12.10 17:58
확정된게 하나 생겨서 기분이 좋네요. 감사합니다. 그런데 이 축열 벽돌 내벽은 햇빛이 직접 닿는벽이어야할까요?
M 관리자 2018.12.10 20:10
그러면 좋겠지만, 그렇지 않아도 괜찮습니다.
3 이명래 2018.12.10 22:25
"현행법에 의해 모든 주택은 내진설계를 해야 하며, 이에 따라 조적구조는 불가능합니다."
이 내용에 대한 질문입니다.

ALC 블록은 조적구조가 아닌 콘크리트 구조인가요? 주택시공에 적용되는 것으로 알고 있습니다.
그리고 보강블록은 조적구조인데, 이 역시 내진성능이 없는 것으로 보는 것인지오?

제 개인적인 생각으로는 ALC 블록보다는 보강블록의 내진성능이 훨씬 우수할 것으로 여겨집니다만...

내진성능과 관련된 법규가 어떻게 적용되는지 모르겠습니다.
M 관리자 2018.12.10 22:43
ALC 나 보강블럭이나 내진설계를 하면 되는 것으로 알고 있습니다.
질문은 조적이라서 그리 답변드렸었습니다.
1 패시브아파트 2018.12.11 11:30
상변화물질을 이용한 축열 석고보드는 출시된지는 제법 오래 된 것 같은데 거의 사용이 안 되나보네요. 사용했다는 말을 들어본 적이 없네요. 특별히 인테리어 취향이 그 쪽인 것 아니면 축열을 위해 적별돌을 조적하는 것은 목구조 2층이라면 하중 부담이 있고, 부실시공시 지진 났을 때 위험할 수도 있고, 쓸데 없이 실내공간을 잡아 먹기 때문에 PCM 석고보드가 목구조에는 잘 맞겠다 싶었는데요. 인테리어로 벽돌 느낌을 원하면 벽돌 타일로 마감을 하면 되고 말이죠.
6 gklee 2018.12.11 17:07
축열 보드라는게 있었군요. 그런데 축열체의 부피가 어느정도 확보가 되어야하기때문에 보드형태보다 축열성능(?)이 떨어지지 않을까요? 두께가 10센티까지는 효과가 있다고 들었습니다. 지진이야기는 살짝 겁나네요. 콘크리트구조로 하고 노출이나 페인트마감을 하면 깔끔할것같지만 콘크리트 자체의 성분이나 시공 결과물이 복불복처럼 보여서 꺼림칙하기에 벽돌이 좋아보이는데말이죠.
1 패시브아파트 2018.12.12 09:23
두께 10센치는 콘크리트나 벽돌 기준이구요. 이런 전통적인 축열체는 기본적으로 무게가 어느 정도 있어야 됩니다. 사실 축열체로 제일 좋은 건 물이죠. 쓰기가 까다로워서 문제죠. 상변화물질은 특정온도에서 녹거나 굳으면서 막대한 에너지를 내놓거나 흡수하는 물질입니다. 그래서 무게가 가벼우면서도 축열 능력이 뛰어납니다. 현재 상용화된 것은 석고보드에 상변화물질을 섞은 것, 목조주택 빈 공간 (예를 들어 칸막이 벽이나 천장 속 등)에 뿌리는 형태가 있습니다. 가격대나 이런 건 잘 모르겠습니다. 잘 이용 안되는 걸 보면 아마 비싼 모양입니다. 국내에서는 어디 주택에 썼다는 얘기만 들어봤지 시판하는 건 본 적이 없는 것 같습니다. 그리고 생산할 때 급격히 에너지를 흡수하거나 내놓는 온도를 세팅을 하는데요. 동절기 몇 도, 하절기 몇 도 해서 두 가지 물질을 섞어 놓습니다. 그래서 그 온도에서 벗어나서 냉난방을 하게 되면 별 효과가 없겠죠.
2 ifree 2018.12.12 11:16
패시브아파트님의 지식 범위가 상당히 넓으시네요.
상전이 물질에 의한 축열기작은 일상에서는 의류에 일부 적용되고 있죠.
히터ㅌ
건축에서는 큰 의미는 없을 것 같습니다.
상전이 기작이 무엇인가?  를 생각해봐야 하겠는데요.
크게 보면 수분,  온도가 되고 이 두가지 요소가 방아쇠 노릇을 할만큼 유효한 변이값을 가져야 합니다.
물에 젖었다가 마르는 과정이 뚜렷하거나 온도가 10도 이상 변동이 있을 때 상전이 기작이 의미있는 역할 즉 가역적 변이를 반복하면서 항상성에 기여합니다.
생활 온도 범위에서 사용되는 상전이 물질은 주로 파라핀왁스 계열일 겁니다.
비교적 저온에서 분자량에 따라 상전이 온도값을 셋팅할 수 있죠.
25도의 실내에서 영하 5도의 외부로 나가는 경우나 마른 옷이 운동으로 땀에 젓거나 하는 이벤트가 있어야겠죠.
이런 다이나믹한 환경 변이가 없는 주거환경에서는 최대 일년에 딱 두번 상전이를 하게될 것입니다.
상전이 의한 에너지의 파과점(열용량)이 그리 크지 않기 때문에 자동차로 비유하면 시멘트 포장 길에서 승차감을 높혀주는 공압쇽업쇼바라고 할까요?
Category