[1] 관리자님, 설계를 준비중입니다. 본인증 신청이 가능할까요?

설계/시공관련 질문

질문 전에 먼저 검색을 해주세요.

 

[1] 관리자님, 설계를 준비중입니다. 본인증 신청이 가능할까요?

2 따뜻한세상 24 6,768 2018.05.11 01:41

1. 올해안으로 20평 + 5평(다용도실) 규모로 목조주택을 지을 예정입니다. 그동안 패시브건축협회 홈페이지를 통해 주옥 같은 글과 댓글을 읽으며 많이 배웠는데 이렇게 처음으로 글을 남기려고 하니 무엇을 질문해야 할지 머릿속이 깜깜하기도 합니다. 

 

2. 사실 표준주택으로 떡 하니 짓고 싶지만... 그리 풍족한 예산이 아니어서 패시브하우스로는 불가능하였습니다. (약 1.1억) 다만, 가능한 부분에서 패시브하우스의 디테일을 담을 수 있는 만큼 담아보고 싶은 생각을 가지고 있습니다.

 

3. 이러한 고민의 시작점에서 가장 먼저 든 생각은 설계와 시공의 품질을 어떻게 담보할 수 있는가였습니다. 정확히 말씀드리면 건축주인 제가 아무리 공부를 하더라도 경험의 시간이 절대적으로 부족하기 때문에 다른 방법으로 이를 보완하는 것이 필요했습니다.

 

4. 찾아 보니 모협회의 5스타 인증이 있었고, 익히 알고 있는 한국패시브건축협회의 패시브하우스 인증기준이 있었습니다. 이 두가지 방법을 함께 사용하면 더 나은 설계와 시공 품질을 조금이나마 담보할 수 있지 않을까 하는 생각이 들었습니다.

 

4. 전자의 5스타는 주로 목구조 시공시 발생할 수 있는 부분을 현장 체크하는 것으로 보입니다. 그리고 패시브하우스 인증기준은 컨설팅 + 예비인증 옵션을 제외하면 예비인증(설계부분), 본인증(설계부분 + 현장 기밀 테스트 + 인증서 발급) 으로 크게 나뉩니다. 가능만 하다면 본인증으로 진행하고 싶습니다. 

 

5. 다만, 한정된 예산이므로 패시브하우스 기준 인증서를 받는 것이 목표는 아닙니다. 대신 본인증을 통해 제공되는 정확한 데이터에 기반한 설계와 시공을 통해 목조주택의 품질을 기존보다 올리는 작업을 하고 싶습니다. 매우 따뜻한 집입니다 보다는 연간 난방에너지 요구량이 얼마인 집입니다처럼요.

 

6. 그리고 계약 관계에서의 대부분의 문제는 정성적인 단어의 사용에서 온다고 생각합니다. 서로 합의할 수 있는 데이터를 산출만 할 수 있다면 이를 가지고 이야기를 나누는 것이 명확하고 문제 발생시 서로 우기는(?) 대화가 사라져 훨씬 낮은 스트레스 강도로 일할 수 있을 것이라는 추가적인 생각도 있습니다. 물론...집을 지으면 10년은 늙는다고들 하지만요...

 

7. 이런 상황에서 본인증을 신청할 수 있을까요? 아직 설계와 시공사는 결정되지 않았습니다. 험난한 길을 예상하고 있습니다. 

 

Comments

M 관리자 2018.05.13 12:57
안녕하세요.

1. 질문은 두서없이 주셔도 괜찮습니다.

2. "패시브하우스"와 "패시브하우스 디테일의 적용"은 사실 금액 차이가 없어 보입니다. 1.1억에 20+5평 이면 평당 500만원이 안된다는 것인데, 이 경우는 적용이라기 보다는 "포기해야 하는 것에 우선순위"를 찾는 것이 좋을 것 같습니다.

3. 아마도 건축에 대해 뭔가 찾아 보면서 공부를 했던 거의 모든 건축주의 공통된 고민일 꺼 같습니다.
 
4. 네. 저희 협회 인증은 본인증으로만 진행해도 괜찮습니다. 다만, 도면에 어느 정도 껀덕지가 있어야 시공사가 비용 증가없이 공사가 가능하므로, 설계단계에서 패시브하우스 설계경험이 있는 곳과 진행을 하시거나, 컨설팅을 받으시는 것이 좋습니다.

5. 그러면, 설계팀을 갖춘 시공사를 먼저 찾는 것이 좋겠습니다. 그래야 시행착오를 줄일 수 있으니까요.

6. 넵 그렇습니다. 협회 회원사와 진행을 하더라도 꼼꼼한 계약의 내용을 챙기는 것은 필수적입니다.

7. 우선 포기할 것의 목록을 챙겨보셔요. 건물의 외장은 시멘트사이딩, 지붕은 아스팔트슁글, 내부마감은 벽지, 화장실 타일과 도기는 중소기업브랜드로 하시고, 가구는 최대한 살면서 채우는 것으로 하시면 어느 정도 타협이 되지 않을까 합니다만, 가까운 협회 시공사 중에서 설계인원을 갖춘 곳을 방문하셔서 상담을 받으시는 것이 가장 먼저 할 일 것 같습니다.

감사합니다.
2 따뜻한세상 2018.05.16 10:52
안녕하세요, 관리자님 주신 답글을 통해 방향을 찾는데 도움이 되었습니다.

1. 가까운 회원사에 연락을 드려봤는데 일정이 가득차 있으셔서 진행이 어려우시다고 합니다. 하여 목조주택 전문 시공업체(설계가능)로 선정하여 진행하고자 합니다.

2. 업체 사장님과 이야기를 나눠보니, 크게 2가지 방법이 있다고 하십니다. (업체 설계) 또는 (농촌주택표준설계도에서 선택 후 업체에서 설계 수정) 그래서 설계는 "농촌주택표준설계도" 중 아래의 도면을 선택하여, 수정 후 사용하려고 고민중입니다.

수정 내용은 방(3->2)과 화장실(2->1)의 갯수, 창문의 위치 변경, 그리고 관리자님께서 말씀해주신 외장과 지붕 화장실 타일과 도기 등을 적용하고자 합니다. 본인증을 아래의 도면으로 진행해도 무리가 없을런지요?
http://www.returnfarm.com/cmn/returnFarm/module/fmlgIhmSnsc/OLD_21/fmlgIhmSnscDetail.do

3. 아니면 위 표준설계도처럼 패시브주택 표준설계도를 구할 수 있는 채널이 있을까요? 말씀하신것처럼 시행착오를 줄여야 할텐데 고민입니다.

감사합니다.
M 관리자 2018.05.16 16:41
안녕하세요.
1. 어떤 회사를 선택하셔도 괜찮습니다만, 실내 기밀층(방습층) 작업 경험이 있는지를 물어 보셔요. 경험이 없다면 시공이 불가능합니다.
만약 그렇다고 판단되면 다시 알려 주세요. 저희가 수소문을 해보겠습니다.
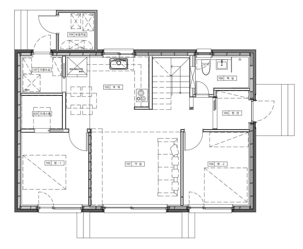
2. 방법론은 맞습니다. 하지만 살펴보니 표준주택보다 공사비가 더 나올 것 같습니다.
저희가 공사비 때문에 한 채만 짓고 포기한 24평형도면이 아래와 같습니다. 이 것으로 해보시겠습니까?
2 따뜻한세상 2018.05.17 17:33
안녕하세요, 관리자님.

1. 알려주신 "실내 기밀층(방습층) 작업 경험이 있는지" 업체에 물어본후 문의 댓글 드리겠습니다.

2. 자료 공유 감사드립니다. 보여주신 도면을 사용할 수 있다면 더욱 도움이 될 것 같습니다. 이를 기준으로 수정 사용이 가능할까요? 아래와 그림과 같이 가로로 뒤집어 배치를 해보았습니다.

감사합니다.
M 관리자 2018.05.17 22:47
네.. 표준주택은 원래 좌우를 뒤집는 것이 가능합니다.
수정해서 사용하셔도 무방하세요..
2 따뜻한세상 2018.05.21 01:23
안녕하세요, 관리자님.

1. 관련해서 이야기를 나눠오던 업체에 문의를 드리는 과정에서 협회의 인증 과정에 대해 진행 여부를 문의드렸으나 진행이 어렵다는 의사를 전해오셔서 고민입니다. 독일과 연계된(?) 타 협회의 에너지 성능 인증을 말씀주시긴 하셨는데..거긴 제가 잘 몰라서요.

2. 만약 가능하다면 관리자님을 통해서 업체를 소개를 받을 수 있을런지요? 지금 다시 그려보는 그림은 위 보여주신 표준주택 24평형 도면을 바탕으로 수정 -> 시공 입니다.

감사합니다.
M 관리자 2018.05.21 01:59
네.. 지역이 어디신가요?
2 따뜻한세상 2018.05.23 12:20
네, 관리자님.

1. 전라남도 **** 입니다.

2. 일전에 연락을 드렸던 회원사는 예감과 플랜트리였습니다. 예감은 진행이 어렵다고 전해주셨고, 플랜트리는 올해 일정이 마감되어 진행이 어렵다고 말씀주셨습니다. 위에서 협회 인증 관련 이야기 나누던 곳은 ** 였습니다.
M 관리자 2018.05.23 15:35
네.. 알겠습니다. 한번 알아 보겠습니다.
2 따뜻한세상 2018.05.23 22:39
네, 관리자님. 회신 기다리겠습니다. 감사합니다.
2 따뜻한세상 2018.05.29 15:26
안녕하세요, 관리자님. 혹시 가능한 업체 소개받을 수 있을런지요? 감사합니다.
M 관리자 2018.05.29 19:49
안녕하세요.
답이 늦고 있어 죄송합니다.

서로 불확실한 것이 있어서 결정을 못하고 있는데요...
지금 상태에서 평수를 더 줄이시던가, 예산을 더 늘리시던가, 아니면 패시브하우스 디테일을 모두 포기하시던가의 결정이 필요해 보입니다.
참고로 제가 올려드린 24평의 가격이 1억6천이 넘는 가격이거든요.
제가 지금 알아 보고 있는 것도, 20+5평을 1.1억원에 실현시켜줄 곳을 찾고 있지는 않습니다. 그저 그 지역에서 공사가 가능한 곳을 찾고 있습니다.
2 따뜻한세상 2018.05.31 01:36
안녕하세요, 관리자님. 아닙니다. 아무래도 지역이다 보니 건축업체 찾는 것이 쉽지는 않은것 같습니다.

1. 평수를 줄이는 부분 - 네 물론 이 부분 고려하고 있습니다.
2. 예산을 늘리는 부분 - 이 부분은 어려울 것 같습니다.
3. 패시브하우스 디테일을 모두 포기하는 부분 - 패시브 하우스는 아니더라도 저에너지 수준까지는 가능할까요?

감사합니다.
M 관리자 2018.06.04 22:24
죄송합니다만.. 오늘까지 알아 보았는데.. 찾질 못했습니다.
지금이 한창 바쁠 때라서 더 한 듯 싶습니다.

-----------
저에너지로 가는 부분은 결국 면적을 어떻게 하느냐에 달려 있는 것 같습니다. 불행히도 평수가 줄어 들수록 평단가는 올라가니..  참으로 어려운 문제입니다.
사용하시고자 하시는 면적도 있으실텐데.. 사실 위의 24평에서 더 줄면 방이 하나여야 하거든요..ㅠㅠ
2 따뜻한세상 2018.06.05 01:23
관리자님 바쁘신 와중에 알아봐주셔서 감사합니다. 방이 하나로 준다면 그것은 또 힘든문제네요. 제가 방향성을 바꿔 질문드리는게 좋을 것 같습니다. 저에너지와 패시브를 키워드를 일단 제외하구요.

1. 주택의 단열 성능을 측정할 때 저에너지와 패시브가 아닌 주택의 단열 성능을 몇 리터다 라고 측정하는게 가능한지요?

2. 가능하다면 제시하여 주신 24평형의 설계도면을 바탕으로 패시브, 저에너지 디테일을 포기하고 짓는다면 대략 몇 리터 정도의 주택을 지을 수 있을지 예측이 가능할까요?

3. 위에서 제시하여 주신 24평형의 설계도면을 가지고 패시브의 디테일을 포기하고 짓는다면 대략 어느 정도의 예산을 가지고 있어야 할까요?

감사합니다.
M 관리자 2018.06.05 12:37
1. 네. 가능합니다. 프로그램을 통해 계산을 하고 있습니다.
2. 저 도면으로 2x6 만 하는 일반 목구조는 약 12리터 내외 일 것으로 판단하고 있습니다. 하지만, 에너지성능이 문제가 아니라 결로와 곰팡이가 문제가 될 듯 합니다.
3. 최근 인건비 상승으로 인해 30평대 주택의 공사비가 평당 500만원을 형성하고 있습니다. 평형이 작으므로 550만원선이라고 볼 때, 1억3천2백만원 정도 일 듯 싶습니다.  그 보다 낮다면 분명 이유가 있을꺼구요.

모든 것을 접고 시작한다고 하더라고, 실내 기밀층과 환기장치, 이 두 개만 이라도 선택을 하시면 삶의 질은 월등히 좋아지실 꺼여요.
2 따뜻한세상 2018.06.05 14:01
안녕하세요, 관리자님.

1. 말씀해주신 결로와 곰팡이를 해결하는 방법이 실내 기밀층과 환기장치이겠지요? 이 부분은 적용을 하고 싶습니다.

2. 12리터 정도의 에너지 성능이면 괜찮을 것 같습니다.

3. 네, 말씀해주신 건축 시공 비용 참고하겠습니다. 시공 업체를 찾는 것이 생각보다 어렵네요 ㅠㅠ

감사합니다.
M 관리자 2018.06.05 15:02
그러게요..
7월부터 200제미 이상 건축물의 직영 공사가 금지 되니.. 더 구하기 어려운 것 같아요... 지금 막 착공하려는 건물이 너무 많아서요.. ㅠㅠ
2 따뜻한세상 2018.06.07 13:59
아 가는 날이 장날이라고...그런 이슈가 있었네요.

1. 아 그렇다면 기존 업체에도 다시 한 번 여쭤봐야겠네요.

2. 관리자님, 위의 평면도 포함한 도면(건축개요서, 실내재료 마감표, 배치도, 평면도, 입면도, 단면도, 창호도, 건축설비도(전기, 통신, 냉난방, 위생, 소방 등)도 구할 수 있을까요?

감사합니다.
M 관리자 2018.06.07 14:19
네.. 그러셔야 할 것 같습니다.

도면은 건축기본도면 (평/입/단면)만 있습니다. 그런데, 말씀드린 바와 같이.. 한 채만 짓고 포기한 것이라서요. 다른 도면을 공개해 드리기는 두가지 이유로 어렵습니다. 
1. 공사 중에 변경된 부분을 도면에 반영을 해 놓지 않은 상태라서요..  도면 상에는 잘못된 부분이 있거든요.
2. 도면의 원 저작권자께서.. 완성되지 않은 도면을 공개할 수는 없다고 정중히 말씀드려달라고 해서요..
2 따뜻한세상 2018.06.07 14:42
아..제가 무리한 부탁을 드린 것 같아 송구스럽습니다.

1. 혹시 그렇다면 다음 방법은 가능할지요.

2. 원 저작권자께 위 도면을 기준으로 설계 의뢰를 드리는 것은 힘들까요?
M 관리자 2018.06.07 14:49
가능은 하겠지만.. 설계비를 고려해 볼 때.. 지금의 공사비로는 무리스러워 보입니다.
오히려 기본도면을 가지고, 패시브하우스 시공경험이 있는 시공사를 찾으시는 것이 옳은 선택같습니다. 리스크가 있는 방법이긴 하나, 현재의 공사비 예산이 너무 모자라서요.
ㅠㅠ
믿을 수 있는 협회 회원사를 소개시켜 드리고 싶었는데.. 그게 여의치 않네요...
2 따뜻한세상 2018.06.07 15:01
관리자님, 좋은 방향을 알려주셔서 감사드립니다. 예산을 확 늘리고 싶은건 마음뿐이고 상황이 여의치 않아 더 어려운것 같습니다...

1. 기본 도면 (평/입/단면) 은 혹시 어떻게 받아볼 수 있을까요?
2. 제 마음도 협회 회원사를 소개 받으면 정말 좋을 것 같은데..위에서 언급해주신 이슈도 겹쳐서 상황이 여의치 않아 아쉽습니다 ㅠㅠ
M 관리자 2018.06.07 15:16
도면은 오늘 중으로 여기에 올려드릴께요..
Category