한옥 수선시 벽체 단열계획

설계/시공관련 질문

질문 전에 먼저 검색을 해주세요.

 

한옥 수선시 벽체 단열계획

1 liukuns 57 19,298 2017.03.02 17:37

안녕하세요.

현재 서울에 한옥을 구입해서 고치려고 설계하는 과정입니다.

가능하면 기능, 경제, 친환경(장단기)의 요소들을 생각해서 적용하려고 합니다.

 

1. 20평 한옥의 기둥들이 150 혹은 160mm의 각재라 벽을 새로 보강하는 것이 관건입니다.

2. "한옥위원회 한옥수선 가이드라인"에서 벽체에 대한 지침으로

"벽체는 목재기둥간 폭을 넘지 않도록 유의하며, 외벽마감은 회벽을 권장한다. 벽체는 단열 및 방습을 고려한 방식을 채택하여 시공한다."고 합니다.

3. 내부는 합지벽지마감이고 외벽은 지침대로 회벽(핸디코트+발수제)입니다.

 

지금까지는 마감포함 150mm를 기준으로

합지벽지마감+t9.5석고보드+t5차음시트+t9.5석고보드+목제스터드100mm+t75유리섬유단열재64k+t9.5방수석고보드2겹+t3외부용퍼티(핸디코트등)+발수제

​인데요 어떻게 생각하시는지요? ("알기쉬운 신한옥 시공 가이드"에서 단열재를 바꿨습니다.)

​셀룰로오스가 대안이 될까요? (비싸다고 하니 장기적인 관점에서)

첨부한 기둥과 벽체 사이의 기밀방법은 인터넷에서 찾았습니다만 소규모 공사에서 적용가능한지는 의문입니다.

 

Comments

M 관리자 2017.03.02 19:44
안녕하세요..

현재의 구성에서는 셀룰로우즈가 좋은 대안이 될 수 있습니다.
100mm 를 다 채우면 벽체의 성능 면에서는 대동소이할 수 있으나, 구조체 내부의 곰팡이,결로에 대한 하자가 현저히 줄어 들 수 있습니다.

t5차음시트가 방습층 역할을 해 줄만 있다면 좋겠습니다. 형상으로 보아서는 그럴 수 있다는 생각입니다만...

기둥과 벽체가 만나는 면에 올리신 사진 보다는 "팽창밴드"를 사용하시길 권해드립니다.
저에너지 한옥 구축 방법론으로 오래 전부터 구상하고 있던 것이기도 하구요.
가장 얇은 제품을 사용해도 되니, 가격적으로도 전혀 부담이 안되실 꺼여요..
누기과 방수를 한꺼번에 할 수 있다는 장점도 있구요. 아래 링크를 보시면 되실 듯 합니다.
링크 중간 아래 쯤에 있습니다.

http://phiko.kr/bbs/board.php?bo_table=z8_04&wr_id=6&sca=%ED%94%84%EB%A1%9C%ED%81%B4%EB%A6%AC%EB%A7%88+%3A+%ED%94%84%EB%A1%9C%ED%81%B4%EB%A6%AC%EB%A7%88%EC%BD%94%EB%A6%AC%EC%95%84
M 관리자 2017.03.02 19:45
그리고, 만약 팽창밴드를 사용하신 다면.. 공사 후 저희가 기밀성시험을 해드려도 될까요?
물론 무료이고, 데이타 축척의 목적입니다.'
7 티푸스 2017.03.02 20:28
외부에 방수석고보드로 시공해도 괜찬은가요?
처마가 있어 물이 직접 닿지는 않겠지만 바닥에 접한 부위에는 빗물이 튀어 좋지는 않을것 같은데요.
방수석고보드 단면부는 일반 석고보드와 별 차이는 없을것 같은데, 이럴경우 빗물이 많이 튀는 최 하단부 마무리를 어떻게 해야 할지.... 굼굼해서요.
M 관리자 2017.03.02 21:06
사실 별 대안이 없어요..
처마가 워낙 기니까.. 버티는 수 밖에요..
1 liukuns 2017.03.03 12:09
답변 감사합니다. 성능, 시공번잡도에 있어서 테이핑이 적합해 보입니다.
외부 방수석고보드 단면부에 대한 걱정은 이해합니다. 은평구 시범한옥 도면을 보니 하부에 전체적으로 방수석고보드 1겹+t8낙엽송합판+t15머름(판재)로 보강하는 것도 가능하겠네요.
다른 부위에 대한 단열계획도 진행하면서 질문을 드리겠습니다.

기밀성시험요? 당연하죠. 해주시면 저도 좋습니다. 연락 드리겠습니다.
G 정병은 2017.03.03 19:59
안녕하세요
한옥(한옥문화원) 공부할때 나무의수축때문에 (사이가 벌어지는것) 기밀이 안되는 것이문제이였읍니다.
목재와이질재또는 목재 일때  사용하여보셔요
해서 관리자님이 이야기한대로 팽창밴드면 해결이될것 갔읍니다.
1 홍도영 2017.03.04 21:43
저라면  그냥 단순하게 공사를 하겠습니다. 기존건물을 고치시는 것이라면 단열기준을 준수할 필요는 없을 것 같고 그렇다면 그냥 alc벽돌로 기둥 사잇공간을 채우고 외부에 미장 그리고 내부 미장도 가능할 것이고 만일 단열 성능을 올리려 한다면 내부에 각재를 덧대고 글래스 울과 방습지로 기둥을 덮는 그런 방법으로 하는 것이 더 간단하지 않은가 싶습니다. 간단한 방식이 오히려 시공성도 좋고 하자율도 적구요. alc블럭과 목재기둥 사이는 쐐기로 목재로 기둥에 설치하고 그 사이에 alc를 마찬가지로 홈을 내서 끼우면 문제가 되는 기밀같은 문제의 위험성도 상쇄가 가능하리라 봅니다. 레이어가 개인적으로 볼때 너무 복잡해 보입니다.
1 liukuns 2017.03.06 12:17
좋은 지적에 감사합니다. 사실 제가 생각하는 것도 20평의 작은 도심한옥을 고치는데 엄청난 기술자들이 올 것도 아니니 간단한 방법을 사용하자는 것입니다. 대신 제가 디테일을 잘 몰라서 알아보는 거죠.
지금 가지고 있는 좀 허무맹랑한 생각은
1. 건물외벽은 기본으로만 단열을 한다. (alc블럭이든 화재와 인체에 덜 유해한 것이 기준입니다.)
2. 하나 있는 침실의 바닥, 벽, 천장을 밀폐한다는 것입니다. 이것도 거실과 면하는 칸막이문, 욕실과 면하는 pvc새시(방에는 배기창만, 대신 일사는 욕실의 전창을 통해 하려고 합니다.)가 있으니 어떨지는 모르겠습니다. 의견을 부탁 드립니다. 사례가 있으려나요?
이유는 한옥의 지붕과 벽을 잘 단열한다는 것이 현재의 재정, 기술, 공사규모상 너무 까다롭습니다. 더군다나 저도 현장경험이 없습니다. 사실 단열을 완벽하게 한다는 것이 큰 의미는 없을지도...
1 홍도영 2017.03.07 04:36
1번은 이해했는데 2번은 도면이 없어서 그런지 이해가 어렵군요. 하지만 전체건물에서 일부만 무엇을 하는 것은 오히려 위험 합니다. 일사는 욕실의 천창이라 하시지만 그러면 욕실의 습기는 어떻게 처리하시려는지요? 따뜻하고 습한 공기는 천창으로 다 올라갈텐데요!
1 liukuns 2017.03.07 14:31
박스(한옥) 안의 박스(침실)로 생각하는데요. 우선 기둥크기가 있어 벽체를 150이상으로는 할 수 없어서 단열이 충분하지 않을 듯합니다. 보강차원에서 침실을 다시 단열하는 것을 어떨까 생각해봤습니다.
전면의 전창입니다. 지붕면의 천창이 아니고. 유일하게 햇빛이 들어오는 뒷마당을 향해 욕실 창을 크게 내고 환기, 일사를 해결하려고요.
M 관리자 2017.03.07 21:24
네.. 우선.
기존 한옥의 기동과 기초석, 외벽이 만나는 지점의 사진을 부탁드려도 될까요?
1 liukuns 2017.03.07 21:57
1. 안방(평면상의 서재입니다.)의 측벽입니다.
1 liukuns 2017.03.07 21:59
2. 안방(평면상의 서재입니다.)의 모퉁이입니다.
M 관리자 2017.03.07 22:00
네. 감사합니다.
방바닥은 어떻게 할 생각이세요?
현상유지인지.. 재시공인지? 재시공하면서 다르게 변경되었으면 한다든지....등등..
1 liukuns 2017.03.07 22:01
3. 부엌(평면에서 디딤돌 놓은 왼쪽 모퉁이입니다.)
M 관리자 2017.03.07 22:05
사진엔 없지만.. 외부의 상태로 보아..
아마도 외벽과 지붕이 만나는 부위 (한옥의 당골막이 부분)에 대한 처리가 관건이겠네요..
M 관리자 2017.03.07 22:20
현재의 목재를 재가공하는 것은 어려우므로,
전체적인 것은 직접 눈으로 봐야 겠습니다만.. 목조주택의 외벽 형성 레이어에 팽창밴드를 혼용하는 것이 타당해 보입니다.
ALC도 좋아 보입지만, 집이 너무 작아 목수가 한꺼번에 처리할 수 있도록 단일 공정으로 계획을 세우는 것이 더 맞을 듯 싶어요..
쪽지는 확인하였으며, 협회 회원사에게 문의를 해보겠습니다.
1 liukuns 2017.03.08 01:26
이 집 대청의 우물마루를 덮고 양식마루를  깔았는데 걷어내고 전체를 강마루로 깔려고 합니다.

당골막이는 두손dooson의 제품을 봤습니다. 아래 링크를 보시죠.
http://dsalc.cafe24.com/sun26/com/gallery.php?&com_board_search_code=&com_board_search_value1=&com_board_search_value2=&com_board_page=2&&com_board_category_code=&com_board_search_code=&com_board_search_value1=&com_board_search_value2=&com_board_page=1

전 이 집의 기존창호는 그대로 두려고 합니다. 바람만 좀 막아주면 좋겠다는 생각이고 복층유리를 끼우는 순간 실런트를 생각하게 될 것이고 그러다보면 끝이 없겠죠. 그저 안쪽에 pvc새시로 덧붙이는 것이 최선이라고 생각합니다. 벽단열재로 사실 이 회사의 다른 제품도 한옥박람회에서 봤는데 탄소복합단열벽체, 탄소공간단열벽체라고 해서 카탈로그는 그런대로 자세하지만 인터넷에는 자료가 없습니다. (특허번호가 10-2013-0030259, 10-2014-005215)
또한 "파교수집"에 쓰인 한보http://www.hanboeng.com의 SIP도 있습니다만 osb를 쓰고 있어서 꺼려집니다.
M 관리자 2017.03.08 02:24
당골막이는 EPS 재질인 듯 합니다. 괜찮지만 이 역시 팽창밴드가 개입되어야 할 것으로 판단됩니다. 수축은 나무가 하니까요.
나머지는 그리 특이사항이 없어 보입니다.
1 홍도영 2017.03.08 06:50
한보엔지니어링(대구)에서 한옥 신축에 보통 사용하는 간단한 시스템이 있는데 이게 보수에도 가능한지는 잘 모르겠습니다. SIP를 응용해서 만든 것으로 알고 있는데 한옥작업하는 분들에게는 간단해서 인기가 있다고는 들었습니다. 로이를 통해서건 아니면 한보에 연락을 해서 자료를 한 번 받아보시고 검토해 보시길 바랍니다. 저역시 이 시스템에는 경험이 없지만 alc같은 조적으로 가지 않을 것이라면 간단하게 레이어를 구성하는 것도 방법이겠지요.
M 관리자 2017.03.08 11:10
그렇네요.
저는 SIP의 표면과 측면으로의 수분침투에 대한 대책이 없다고 생각했는데.. 제가 제시한 것도 결국 투습방수지+팽창밴드의 결합이니.. SIP도 충분히 대응가능하겠네요..
역시~~
1 liukuns 2017.03.09 18:26
한보측으로부터 설명을 들었습니다.
올해부터는 홈페이지상의 typeB, 즉 우레탄보드 혹은 eps 단열재의 양쪽으로 루마니아산 E0등급 osb합판을 붙이고 다시 양쪽에 방수섬유시트를 붙인 제품만 생산한다고 합니다. 이유는 마감시 접착력이 더 좋아서 시장의 수요를 따른다는 설명입니다.
중부지방 열관류율을 만족시키려면 우레탄 100t, eps 130t를 쓰면 되고.
우레탄보드의 가격이 판당 16만원정도이고 시공비는 평당 20만원 정도로 예상합니다. eps는 2/3정도 가격이고요.
화장실 칸막이벽 시공시는 방수합판을 추가하면 문제없다는 설명입니다.
보통 기둥에서 10mm 띄우도록 시방을 하고 있어서 그 틈을 우레탄사출로 메우고 있다고 합니다. 기밀테이프 보충이 필요한지, 팽창밴드로 대체 가능한지, 성능이 더 좋은지에 대해서는 따로 알아봐야겠습니다.
이 정도면 가격, 시공난이도, 번잡도, 성능 등에서 경쟁력이 있는가요?
M 관리자 2017.03.09 19:01
가격은 괜찮네요..
몇가지...
우레탄폼으로 사춤하는 것은 바뀌어야 할 것 같습니다. 내부면 상관없는데 외부면 안되거든요..
또한 폼은 기밀성능과는 무관하므로 기밀테이프가 개입되어야 합니다.
즉, 연질폴리우레탄폼+기밀테이프가 팽창밴드와 유사합니다.
방수섬유시트의 재질에 따라서 위험한 구성일 수는 있으나, 최소한 그 정도는 검토되었겠죠.
1 liukuns 2017.03.19 13:42
정리하면 내부에서 외부로
합지벽지마감+t12.5석고보드+t120(t2방수섬유시트+t8osb+t100우레탄보드+t8osb+t2방수섬유시트)+t3외부용퍼티(핸디코트등)+발수제
기둥, 창과의 옆면은 팽창밴드+기밀테이프

외부 우레탄폼 사춤에 대한 설명을 부탁 드리고요.
"방수섬유시트의 재질"에 대한 말씀은 화재시의 위험을 생각하시는 건가요?
M 관리자 2017.03.21 01:57
네. 그렇긴 한데요..
먼저 이 방수섬유시트의 정체를 정확히 해야 할 듯 합니다. 그리고, 유리섬유계시트가 아니라면 외부용 퍼티가 부착은 안될 듯 싶습니다. (물론 정체를 밝혀야 명확할 듯 합니다만...)
발수제는 필요악이므로, 퍼티(메쉬포함)를 제대로 하는 것이 더 나을 듯 싶습니다.

우레탄폼은 "흡수율"이 비교적 높습니다. 그러므로 외부에 노출되거나 수분이 침투할 수 있는 디테일에는 사용할 수 없다는 것을 말씀드린 것입니다.

방수섬유시트의 위험성은 투습이냐 방습이냐에 따라서 목재에 미치는 영향이 차이가 크기 때문에, 이 것이 방습지라면.. 이미 거의 불투습층인 SIP 판넬에 다시 방습지를 덧대는 것이 위험해 보였기에 적은 글입니다.
SIP판넬을 사용한다면 실내측의 방습층(여기서는 방수섬유시트)는 불필요한 구성입니다.
1 liukuns 2017.06.02 09:41
안녕하세요.
지난 주에 서울시 심의를 무사히 통과했습니다.
최종 제안은
외벽용
t3외부용 퍼터(핸디코트), 한보Hi-Wall(t2 방수섬유시트, t8 osb, t100 우레탄보드, t8 osb, t2 방수섬유시트), 샛기둥 38x68@600, t10 석고보드, 합지벽지
화장실용
벽체용 타일, t12방수합판, t120 한보Hi-Wall, 샛기둥 38x68@600, t10 석고보드, 합지벽지
으로 정리했는데요.

방수섬유시트는 한보에서 방수할 때 쓰는 "고분자 PVC계 합성수지시트(PVC시트)와 저융점섬유(L.M.F)가 함유된 합성섬유시트를 열융착시켜 만든 H.P시트"를 써서 퍼티 부착은 문제가 없다. 오히려 섬유조직이 엉겨있어 메쉬를 대체할 수 있다고 합니다.

우레탄폼과 기밀테이프 조합을 팽창밴드로 대체할 수 있다는 말씀이시죠?

방습지를 양쪽에 붙이는 것은 공정을 단순화하고 제작단가를 낮추는 의도였다고 합니다.

기밀성시험관련해서 따로 연락을 드리겠습니다. 아마 9월은 넘어가야 준공이 될 겁니다.
M 관리자 2017.06.02 09:49
네.. 우레탄폼과 기밀테이프 조합을 팽창밴드로 대체할 수 있습니다.
무사 통과 축하드립니다.~
1 liukuns 2017.06.02 11:03
감사합니다. 하나 더 질문 드립니다.

위 도면의 ㄱ자 집은 위가 남쪽입니다.
마당에 면한, 부엌과 서재의 남향창과 표기하지 않은 아랫방의 서향창의 구성에 대해 질문 드립니다.
기존 단층유리창(비단열, 스리유리)을 존치해서 바람막이로만 쓰고 실내에 pvc단열창을 구성하려고 합니다.
하필 남쪽 골목 건너로 4층 건물이 들어서서 동지 햇빛이 대청 끝에 살짝 걸치고 맙니다. 그리고는 함석처마 밑으로 내려오지 않습니다.
햇빛은 오전에 안마당으로 왼쪽 위(동쪽)에서 쬐고 오후 서향창문을 통해 서재로 들어옵니다.
이런 경우 단열창 구성은 어떻게 하는 것이 좋을까요?
M 관리자 2017.06.05 01:16
한옥에서 실내측에 덧대는 창은 ..
창이 걸쳐질 곳의 두께와 창틀의 두께의 상관을 고려하시는 것이 우선입니다.
시공될 곳의 현재상태를 사진으로 보면 더 정확한 답이 가능할 것 같습니다.
그리고, 말씀하신 "창의 구성"이 유리 또는 프레임의 종류를 말씀하시는 것인지.. 시공의 구성을 말씀하시는 것인지 알려 주십시요.
1 liukuns 2017.06.05 10:27
기둥 크기는 160x160이고 창틀 두께는 70입니다.

'창의 구성'은 유리의 구성입니다.

언제나 우문에 성실히 답해 주시는데 정말 감사 드립니다. 저도 도와 드릴 일이 있으면 돕겠습니다.
1 liukuns 2017.06.05 10:38
참고로 창틀은 기둥 중앙에 맞춰져 있습니다.
M 관리자 2017.06.05 22:50
기둥에서 기존 창호두께를 빼면.. 실내측에 45mm 정도가 남습니다.
PVC 프레임 중에서 이 두께를 만족시키는 것은 거의 없기 때문에 아무래도 한판유리가 껴진 슬라이딩 형식의 창호가 설치되어야 할 것으로 보입니다.
최근 한판유리 프레임이 생산되는지도 확인해 봐야 하며, 유리의 종류는 이 것이 결정된 다음에 검토해야 할 듯 합니다.
1 liukuns 2017.06.06 20:53
내측으로 창호가 기둥 너머 튀어나오는 것은 어쩔 수 없다고 보고 그림에서 보듯이 단열재로 그 사이를 메우는 계획을 합니다. 단열선이 유지될 것 같기도 합니다. 상부는 인방선에서 막고 선반을 답니다.
M 관리자 2017.06.07 06:22
아.. 좋은 아이디어 입니다.
벽지 붙이기 전에 방습테잎 시공이 되면 더욱 좋겠습니다.
유리의 구성은 외측부터 6mm 맑은유리 + 12mm 공기층 (아르곤) + 6mm 로이코팅의 구성이면 좋겠고, 창호회사가 정해지면.. 그 창호회사에서 사용하는 유리회사를 알려달라고 하셔요...
유리회사를 저희에게 알려 주시면 그 회사 제품 중에서 사용가능한 정확한 제품 넘버를 알려 드리겠습니다.
1 liukuns 2017.06.19 14:26
안녕하세요. 감사합니다.
주택 남측면에 난방부하를 위한 3면코팅으로 알면 되겠죠?

하나 더 질문 드립니다. 위의 구성으로 모퉁이도 안쪽에서 기둥을 둘러싸고 단열을 한 번 더 하고 싶은데요. 이미 120밀리 sip로 기둥사이에 단열했으니까 안쪽에는 좀 얇은 단열재를 덧대고 싶은데요. 추천하실 수 있을까요?
마감은 두 종류로

t3외부용 퍼터(핸디코트), 한보Hi-Wall(t2 방수섬유시트, t8 osb, t100 우레탄보드, t8 osb, t2 방수섬유시트), 샛기둥 38x68@600, 단열재???, 각목, t10 석고보드, 합지벽지

t3외부용 퍼터(핸디코트), 한보Hi-Wall(t2 방수섬유시트, t8 osb, t100 우레탄보드, t8 osb, t2 방수섬유시트), 샛기둥 38x68@600, 단열재???, 각목, t9마감합판
M 관리자 2017.06.19 17:09
네.. 일단은 무조건 글라스울입니다.^^
얇게 하시구요. 아이러니하게도 실내측의 단열성능이 너무 높아지면 좋을 것이 없는 부위이기도 합니다.
1 liukuns 2017.07.18 22:42
안녕하세요.
지금까지 기와 걷어내고 단열재를 깔려고 했으나 비용이 너무 들어 원래 흙을 쓰기로 했습니다. 암키와는 새로 사고 숫키와는 가능한한 재활용. eps 당골막이 단열은 자연스레 없어졌고...
벽체 단열은 원래대로 sip. 단 고르지 않은 상인방과의 틈을 어떻게 메울지가 문제가 되었습니다. 폼류를 쓰자는 것을 잠시 생각해보겠다고는 했는데 방법이 안떠오르네요. 팽창뱅드로만 메우기는 너무 간극이 크고요.
침실은 다시 상 깔고 25mm 글라스울 매트 넣고 석고보드에 벽지 바를 것이라 안에 좀 거칠게 메워도 표는 안나겠지만 나머지 공간들은 답이 업네요. sip 속 우레탄을 눌러 홈을 파서 맞춰 넣나까지 고민합니다.
M 관리자 2017.07.18 22:57
안녕하세요..
그 당골막이부분(?)의 사진을 부탁드릴께요.
1 liukuns 2017.07.18 23:03
당골막이보다 상인방
M 관리자 2017.07.18 23:04
보 하부의 벽체를 헐고 SIP로 채울 경우의 그 틈새를 말씀하시는 거죠?
1 liukuns 2017.07.18 23:07
당골막이도 그렇고 제재목이 아닌 상인방을 정형화된 단열보드류로 막는 방법이 뭐가 있을까 고민하는 중입니다. 저도 폼을 쓰고 싶지는 않거든요.
1 liukuns 2017.07.18 23:08
예 그 틈새가 몇 센티미터 정도로 큰 곳도 생겨서요.
M 관리자 2017.07.18 23:43
가장 큰 곳의 크기를 알려 주시겠습니까?
오차가 좀 있어도 괜찮습니다.
1 liukuns 2017.07.21 15:03
3에서 5센티미터는 나옵니다. 단열보드 폭으로 나누면 그 틈도 1-2cm 정도 되지 않을까 싶습니다.
사실 크게 10cm까지 떨어진 곳도 있지만 그런 곳은 기둥 되잡으면 줄어든다고 합니다.
M 관리자 2017.07.21 15:20
5cm 까지는 팽창밴드로 가능합니다.  두꺼운 것은 가격이 제법되나, 양이 그리 많지 않으므로 시도해 보시는 것도 좋겠습니다.
1 liukuns 2017.08.15 10:54
여름의 막바지인데 비가 훼방을 놓네요.
오늘 질문 드릴 것은 한옥 천장 부위 환기를 어떻게 하느냐입니다.
기존의 고창이 있고 낮은 환기창을 몇 개 달지만 여름철 환기에는 부족할 듯해서 양쪽 합각벽에 숫키와 두 개 포개서 통기관을 설치하는 것을 검토하고 있습니다.
혹시 관련된 도움말씀을 주실 수 있을까요?
M 관리자 2017.08.16 08:20
안녕하세요..
그 통기관이라는 것이 겨울철에 닫을 수 있는 구조인가요?
제대로 닫힐 수 있는 구조 (예를 들어 전동댐퍼가 있는 통기관)이어야 할 것 같습니다.
1 liukuns 2017.08.22 12:59
너무 번거로울 것 같아서 지금 현재로는 방충망 달고 열어놓는 것을 생각합니다. 합각지붕 위쪽이고 안에서 밖으로 빠져나가는 베르누이효과를 기대합니다. 완전히 닫는다는 것이 한옥의 특성도 있어서 결정하기 어렵네요.

그리고 시공사는 LS시스템창호를 추천하시네요.
M 관리자 2017.08.22 17:13
네.. 그럼 단열의 손실이 커질텐데요... 괜찮을까요?
1 liukuns 2017.10.10 09:15
안녕하세요. 추석 잘 쉬셨나요?
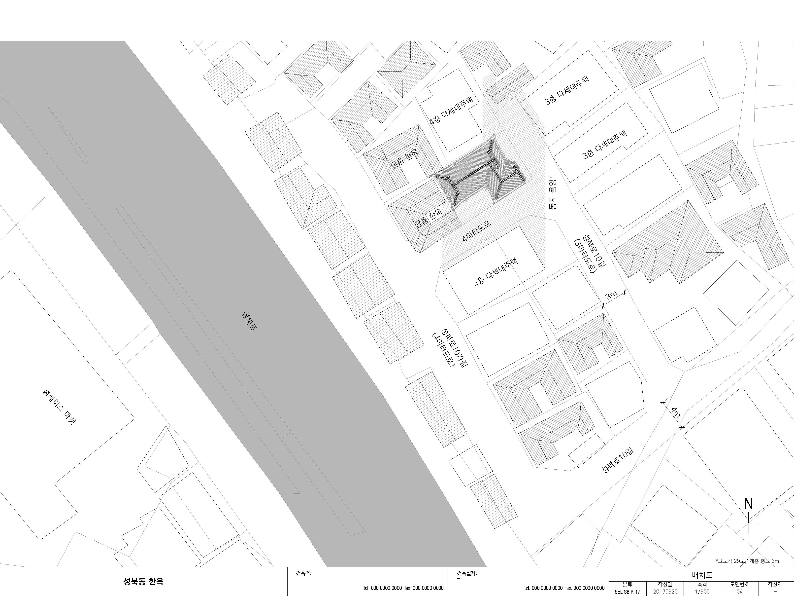
유리의 구성에 관련해서 도면을 첨부합니다.
먼저 전체 배치도이고요.
1 liukuns 2017.10.10 09:24
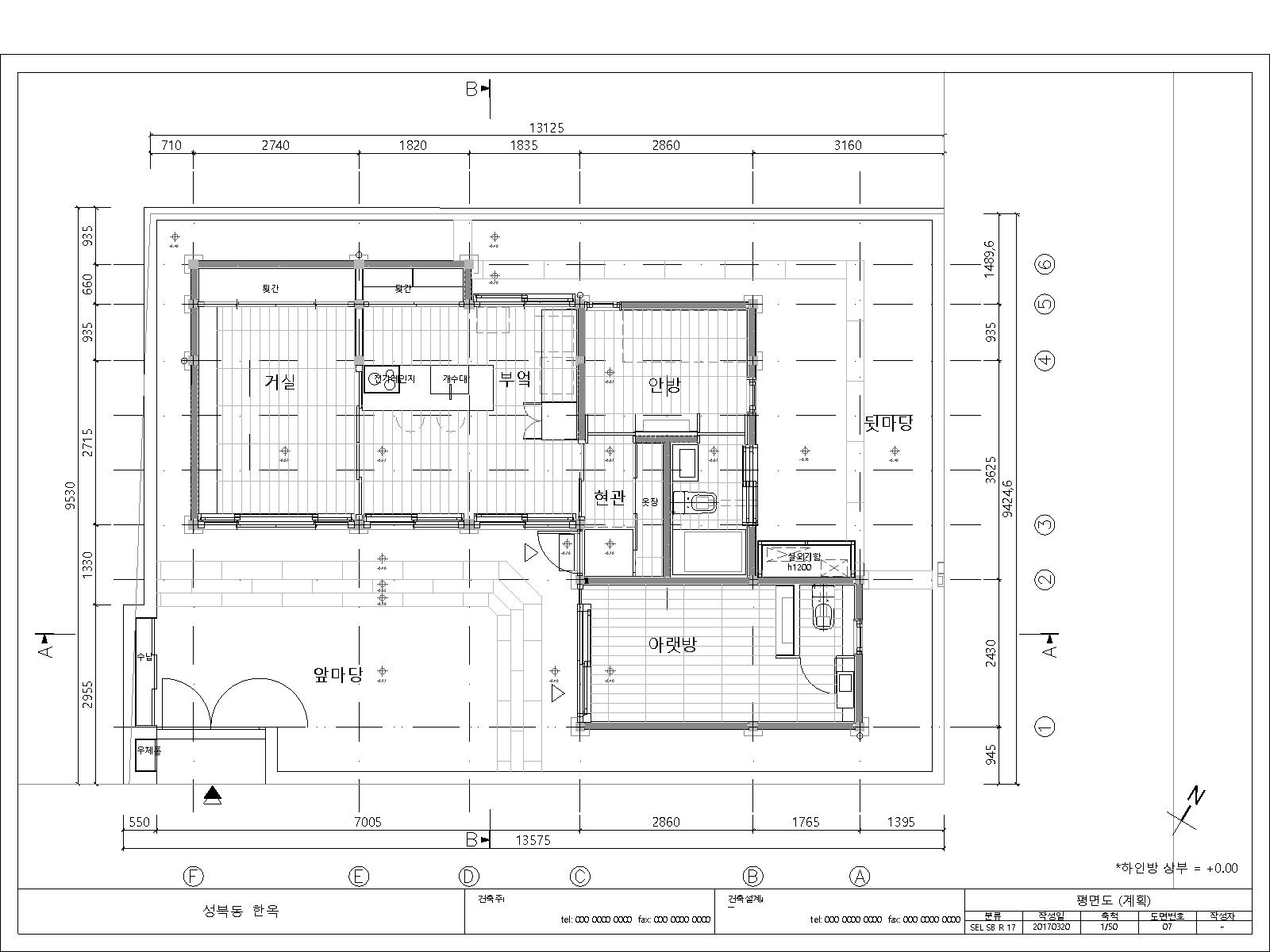
평면도입니다.
LS시스템으로 유리는 대창유리입니다.
배치도에서처럼 남쪽 건물로 인해 겨울철 일사가 대청 끝에 조금 들어오는 정도입니다만 그나마 창호 하부가 막혀 있어 대청으로 들어오지는 않습니다.
남향으로 대청에 미닫이 전창이 있지만 기존 창호 안쪽으로 단열 새시를 달았습니다.
서향으로 (햇빛이 잘 들어옵니다) 거실 기존 고창 안쪽으로 단열 새시를 달았고 아랫방에 역시나 기존 문 안쪽으로 단열 새시를,
북향으로는 새로이 부엌 여닫이 문 한짝과 안방에 작은 환기, 채광창(프로젝션)이
동향으로 (아랫방이 튀어나와 있어 햇빛을 창호로 직접 받지는 못합니다.) 새로이 안방에 작은 환기/채광창(프로젝션), 욕실에 여닫이문과 고정창이 있습니다.
M 관리자 2017.10.10 16:14
네. 유리의 종류에 대한 조언을 드리면 되는거죠?
LS 창호 회사를 알려 주시어요. 그 회사의 유리 중에서 찾아야 하기 때문입니다.
M 관리자 2017.10.10 16:15
아 그리고, 인사를 건너 뛰었네요.. ㅠ 죄송합니다.

덕분에 풍성한 휴일 보냈습니다. 감사합니다.
1 liukuns 2017.10.10 16:43
대창유리입니다.
M 관리자 2017.10.10 16:54
흠.. 불행하게도 대창유리 홈페이지를 찾지 못하겠습니다. ㅠㅠ
시공사를 통해서, 사용하게될 유리 스펙 (열관류율, 차폐계수, 가시광선투과율)을 알려 달라고 하시겠습니까?
적합성 여부를 판단해 드려야 할 것 같습니다.
1 liukuns 2017.11.14 18:55
안녕하세요.
거의 마무리 되었습니다.
유리는 “일신유리 듀오라이트 2003 b종 (u3-2) ii류”로 통일해서 설치되었습니다.
혹시 일전에 말씀하신 열화상 사진 촬영이 가능할까요?
저희는 다음 주 이후부터는 가능합니다.
M 관리자 2017.11.14 21:13
네.. 감사합니다.
내부적으로 회의를 거쳐, 연락드리겠습니다.
연락처는 메모 후 삭제하였습니다.~~
Category