단독주택 리모델링 건축주입니다. - 천정부분 단열에 대하여

설계/시공관련 질문

질문 전에 먼저 검색을 해주세요.

 

단독주택 리모델링 건축주입니다. - 천정부분 단열에 대하여

1 카즈야 15 18,531 2016.07.05 12:08
안녕하세요. 

30년된 연와조 2층 주택을 리모델링할 계획으로 인허가가 모두 완료되었고, 곧 철거를 앞두고 있습니다. 건축사와도 상의했지만, 아무래도 속시원한 답을 못얻어서 여기에 문의드립니다. 

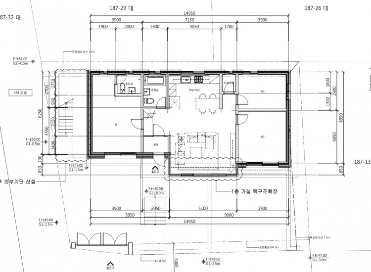
보시는 바와같이 1층 거실 부분을 확장할 예정이고(조적 또는 목구조), 1층은 모두 외단열 네오폴 120mm로 할 예정입니다. 여기까지는 문제가 없을 것 같지만 거실의 확장된 부분이 2층 테라스와 닿아있다는 것이 문제네요. 

이럴 경우 거실에 천정 단열을 해야하는 것인지 건축사에게 물어봤지만, 뜯어봐야 안다면서 좀 답답한 답변만 하고 있네요. 테라스에 단열을 할 수 있는 방법은 없을 것 같고, 결국 천정 내단열 외에는 답이 없는건데, 이 경우 실링이 낮아지는 단점이 있어 확장을 해야할지 말지 고민을 좀 하고 있습니다. 

이 부분에 대하여 조언을 주시면 감사하겠습니다.

도면 캡쳐를 잘 못해서 일부가 잘린점은 감안해주세요.

Comments

M 관리자 2016.07.05 14:17
네.. 단면도를 봐야지 정확하겠습니다만...
입면도를 보건데 2층의 면적이 1층보다 작아보이는데, 원래부터 작은건지 궁금합니다.
G 카즈야 2016.07.05 15:13
네~ 기존 건물 사이즈도 원래 작았습니다. 2층을 부분철거하고 목구조로 올리는 설계인데, 면적을 비슷하게 하기에는 정북 일조사선 등의 문제가 있습니다.
G 카즈야 2016.07.06 09:33
단면도를 추가하였으니 참고부탁드립니다.
1 카즈야 2016.07.06 09:44
저희는 1층은 조적조, 2층은 기존의 조적조를 허물고 경량목구조로 신축해서 올리는데요.
1층은 외단열 네오폴 120/ 2층은 글라스울 단열/ 이렇게 진행됩니다.

1. 일단 1층의 경우 120m정도의 외단열이면 충분하다(조적조 두께가 있어서)는 시공측의
  답변으로 또 그 이상의 단열재는 조적조에 붙일 수 없다는 지속적인 답변으로 더 두꺼운 외단열    을 포기한 상태입니다.
  1)실제로 이 정도면 충분한 단열인지?
  2)조적조에는 120m두께가 최선인지(스터코마감입니다)
  3)외단열이 부족하다면 내단열을 고려해야 하는지?
    ->그렇다면 내단열은 어느정도로
  4)사실상 1층은 천정내단열을 해야할 것 같은데 위에 말씀드린대로 (확장시) 발코니가
      거실천장과 맞닿게 됩니다. 천정내단열을 한다면 어떻게...다른 방법이 있다면 어떻게...
  5)거실천장만 내단열을 할경우 벽체는 내단열을 안해도 무리는 없겠죠?
  6)전체적으로 1층은 조적조, 2층은 목구조를 올리는 거라 1층과 2층의 연결부분의 단열과
      열교가 걱정되는데,      주의하거나 참고해야할 부분은 어떤게 있을지요.
M 관리자 2016.07.06 14:35
1. 충분하다는 표현이 애매하기는 하나, 현행법에 의한 단열두께가 그 정도입니다. 마무리만 잘 되면 추운 집처럼 느껴지지는 않으실 것입니다.

2. 단열재 두께의 한계라기 보다는 전체 하중을 보아야 합니다. 그러나, 외단열미장마감공법이라면 하중의 문제는 아닙니다. 두께를 120mm 이상 할 수 없다면 다른 이유가 있을 것입니다. 저희는 현장을 상황을 모르니.. 두께를 규정지은 이유를 시공사에게 물어보시는 것이 더 나을 듯 싶습니다.

3. 내단열 추가는 좋은 방법이 아닙니다. 또한 내단열이 된다면 그 두께만큼 외부로 돌린다고 해서 안될 것 같지도 않습니다. 다만 외단열을 충분히 감쌀 수 없는 이런 경우에는 부분적 내단열로 해결을 해야 하는데, 이 역시 불가피한 선택일 뿐입니다. 아래 설명된 방법이 다 어렵다고 느끼시면 30mm 이상의 내단열을 선택하실 수도 있습니다.

4,5,6. 사실상 벽체의 상부면에도 단열이 추가되어야 합니다. 최선은 외부의 돌출 발코니를 단열재로 다 감싸는 방법인데.. 둘 다 어렵기는 마찬가지입니다. 일산의 노인정이 비슷한 경우였는데, 여러가지를 검토한 결과 결국 돌출 발코니 (이 경우는 처마였습니다만..)를 잘라내는 것으로 결론내었었습니다.
 
두가지 방향으로 그림을 올려드리겠습니다.
G 카즈야 2016.07.06 23:48
답변 감사드립니다. 그런데. 어떤 그림 말씀이신가요?
G kimlpark 2016.07.07 00:00
벽체의 상부면에도 단열이 추가되어야 한다함은, 확장된 거실부분만 말씀하시는건가요? 아님 1층 전체 벽체의 상부면을 말씀하시는건가요?
M 관리자 2016.07.07 04:13
네.. 그림은.. 유럽에서 그림을 올리려니.. 잘 안올라가네요..ㅠㅠ
귀국한 후 주말에 올려야 겠습니다.

상상으로는 쉽지 않으시겠지만, 열교는 .. 열교가 시작되는 지점부터 약 1미터까지는 단열재로 덮어 주어야 합니다.
즉, 1층과 2층의 경계선을 따라서 열교가 발생하므로, 그 선 (슬라브와 벽체가 만나는 선)을 중심으로 1층의 천장에도 약 1미터 폭으로 50mm 이상 단열재를 덮고, 그 선에서 수직으로 1미터를 내린 지점까지 덮어야 한다는 의미입니다. 그러면 단열재가 ㄱ자 형태가 될 것입니다.
그렇지 않으면 외부에서 다 감싸는 방식이 있을 수 있습니다.

그러나, 이 모든 것은 결국 비용의 한계를 고려해야 합니다. 이 것에 의한 하자가 감당해 낼 수 있는 수준이냐의 문제이기는 하나... 실내 온습도의 조절을 잘 하면 곰팡이가 생기지 않을 수도 있기 때문입니다. (그러기에는 상황이 조금 열악하기는 하나...)

이 글을 보시는 다른 분들을 위해 첨언을 드리자면.. (예전에 이와 비슷한 내용에 대해 질문이 있었던 것을 다시 정리하는 차원에서...)

이런 유사한 질문과 답변에 대해.. 오프라인에서 어떤 분이 이런 질문을 하신 적이 있었습니다.

리모델링하기 전의 집도 춥긴 했지만, 잘만 살았는데.. 리모델링을 하면서 단열도 보강을 했는데.. 왜 리모델링을 한 후에 곰팡이가 생길 수 있다고 하느냐? 그럼 왜 리모델링을 할 때 단열 보강과 창문교체 같은 것을 왜 하나? 그냥 살지....

--->
1. 집안의 습기는 어디 가지 않습니다.
2. 집 전체가 열악할 때는.. 매우 넓은 면적에서 보이지 않는 결로와 곰파이가 있었습니다. 그러나 벽체에 단열을 하게 되면.. 차가운 부위가 줄어들어 수증기가 매우 좁을 범위에 집중하게 됩니다. 그러므로 곰파이가 필 확율은 매우 커집니다.
3. 리모델링하기 전에는 침기량이 매우 많았을 것입니다. 이는 겨울철 외부의 공기가 구석구석 틈을 통해 실내로 들어오고.. 매우 춥긴하지만, 실내의 습도를 낮추어 주는 역할도 하였습니다. 그러나, 창문을 새 것으로 바꾸고, 외벽도 새로 보강을 하게 되면.. 이 침기량이 줄어 들게 되고, 실내공기질 문제는 둘째치고라도.. 실내 습도를 낮추어 주는 요소가 사라지게 된 것입니다. 그러므로 리모델링 후에는 실내습도가 자연스럽게 높아지게 되고, 앞서 열교의 범위가 좁아지게 된 것과 맞물려.. 기존의 열악한 집에서는 볼 수 없었던 곰팡이를 볼 수 있게 되는 것 입니다.

설명이 되었으면 좋겠습니다.

감사합니다.
M 관리자 2016.07.08 19:55
일단 열교점으로부터 약 1미터를 들어와야 한다는 설명의 개념도입니다.
천장면 하부까지 위험범위(원형)이기는 하나, 현실적으로 불가능해보입니다.
M 관리자 2016.07.08 19:57
가장 좋은 것은 외측으로 다 감싸는 방법입니다.
2층 바닥레벨과 방수층 위치 등 고려해야 할 사항이 많지만, 가장 좋은 방법입니다.
모든 결정권한은 지금 설계를 진행하시는 건축사께 있으시니.. 일단 방향을 결정하시고, 두번째 방향으로 진행하실 수 있으시다면, 디테일을 풀어내는 과정을 이 게시판을 통해 도와드리겠습니다.
G 카즈야 2016.07.09 21:43
네. 감사합니다. 도면상으로는 그렇지만 실제 사진을 올려보겠습니다.

시공하시는 분과 오늘 얘기를 나눠봤는데 외단열을 제시하신 바와 같이 감쌀 경우
누수 등의 하자를 피할 수 없을 것 같다는 의견이십니다.

단열만을 생각한다면 감싸는 방법이 가장 이상적이겠지만, 여러가지 문제를 고려해
보았을때 첫번째 안이 합리적이라고 생각하는데 어떻게 생각하시는지 궁금합니다.
M 관리자 2016.07.09 22:11
네.. 항상 책임을 지는 사람이 결정을 하는 것이 맞습니다.
시공하시는 분께 화이팅!!! 이라고 전해 주십시요..^^
3 이명래 2016.07.09 23:17
위 사진을 보면 2층 베란다는 1층 천정에서 봤을 때는 지붕층과 다를 바 없습니다.

베란다를 사용할 계획이라면 제 개인적 소견으로는, 관리자님께서 제시한 내단열에 더하여 베란다 위에 XPS 단열재를 깐 다음 그 위에 무근 콘크리트를 타설하고 타일 등 마감재를 설치하는 것이 최선일 것으로 여겨집니다.

여기서 천정 내단열의 목적은 베란다 슬래브 두께를 통한 열교차단일 것으로써, 붉은 색으로 동그랗게 표시한 부분은 관리자님 의견과 같이 열교로써 역할을 필히 할 것으로 보여 지므로 단열 보강이 필요한 부위 입니다.

방수 문제라면 노출을 할 것인가 또는 비노출로 할 것인가에 따라 마감재가 달라질 수 있을 것입니다만, 베란다 바닥에 단열재를 설치하고 무근 콘크리트를 타설할 예정이라면 비노출 우레탄 방수 또는 시트방수 등이 적용 가능할 것이며, 바닥에 단열재를 설치할 경우 단열재 와 무근 콘크리트 두께를 고려하여 방수턱도 더 높여야 할 것으로 보여 집니다.

방수문제를 고려하여 그냥 지나치기에는 적정한 것이 아닌 것 같아서 한 참견하였습니다.
G 카즈야 2016.07.10 00:16
앗 이명래님 의견 감사합니다. ^^
이명래님과 관리자님께도 다시 의견을 여쭙습니다.

2층 바닥에 단열과 몰탈과정을 다시 할 예정이라, 말씀하신 부분을 반영하여
베란다 슬래브까지 같이 작업하는게 가능할 수도 있겠다는 생각이 듭니다.

1.그런데 제가 시공하시는 분과 더 얘기해봐야겠지만 베란다에 xps 단열재로를 깔 경우, 
전면부 모서리 처리는 어떻게 해야 하나요?
앞면 모서리쪽은 단열재를 붙일 경우 비바람 등에 떨어져 나가거나, 비가 들이치면 습기가
찬다거나..하는 하자를 얘기하시는데.
그리고 단열재를 기억자로 붙이는 경우(가로,세로)로 이어서 붙일때 그 사이는 열교 같은
문제는 없는건가요. 기술적으로 어찌 해야하는지, 디테일이 궁금합니다.

2. 열교는 제가 잘 몰라서 그러는데, 정확한 위치가 어디인가요?

3.만약 이처럼 슬래브에 단열재를 감싸고 외단열로 이어진다면, 천정내단열도 추가로 필요한지도 궁금합니다.
(1층 거실확장부분은 창호가 설치되고, 전체적으로 120m xps 단열재 외단열 계획입니다.)

4. 사진을 보시면, 1층 전면부는 확장을 해서 슬라브와 끝선을 맞추어 외단열로 이어질 수 있겠으나 옆의 방 같은 경우는 슬라브보다 안쪽으로 방이 들어가 있어서, 이쪽은 또 슬라브 아래까지 단열재를 대서 방의 천정까지 내단열이 들어가야 하는건가요?

궁금한 점이 많네요. 답변 기다리겠습니다. 감사합니다. ^^
M 관리자 2016.07.10 15:08
네..
먼저 질문이..
설계없이 시공을 하시는 것인가요?

만약 그렇다면 저희가 개념도 식으로 그려드리는 것은 별로 소용없습니다. 누군가가 이를 법적 효력이 있는 도면으로 바꾸어서 그려야 하기 때문입니다.
저희가 걱정하는 것은..  만약 저희의 조언대로 시공이 된다고 하더라도, 상세도는 개념도와는 완전히 다르기 때문에, 극히 세세한 부분까지 저희의 의도대로 시공된 다는 보장이 없습니다.
그런 상황에서 시공 후 무언가 하자가 생겼다면.. 시공사는 "건축주가 하라는대로 했다" 라고 이야기할 것이고, 이는 법적으로도 유효한 표현이기 때문입니다.
즉, 여기에서 오고가는 내용으로.. 바로 시공에 들어갈 수는 없습니다. 특히 시공사가 전문적인 지식이 없는 상황에서는 그러합니다. 여기서 이야기하는 "전문적"은 시공경험 또는 경력을 의미하지 않습니다. 단열,투습,방습,방수에 대한 데이타를 읽고 해석하는 설계적 측면에서의 "전문적"을 의미합니다.
제가 "시공사에게 화이팅하시라고 전해 주십시요"라고 짧게 적은 것은.. 이 일련의 오고가는 글 속에서 중간에 있어야 할 설계사무소의 부재를 인지했기 때문입니다.

그러므로, 앞으로도 계속 .. 언제나 답변을 드릴 수는 있지만, 결국 모든 책임은 시공하시는 분이 지어야 하기 때문에, 건축주께서 저희의 글만으로 작업지시 또는 방향을 정해버리면.. 그 분께서 책임을 회피하시게 됩니다.

이런 상황이 많이 우려스럽습니다.

그리고, 앞글에서 제가 질문드렸던.. 조적조에서는 외단열이 120mm 이상 붙일 수 없다라고 하신 것에 대한 이유는 여쭈어 보셨는지요? 가능하다면.. 그 이유를 듣고 싶습니다.

---------------------------------------
1. "앞면 모서리쪽은 단열재를 붙일 경우 비바람 등에 떨어져 나가거나, 비가 들이치면 습기가
찬다거나." 하는 현상은 없습니다. 그렇게 설계되고 시공되니까 그런 결과가 나오겠죠..
외단열미장마감의 옳바른 형식은 아래 글의 첨부파일을 보시면 되실 듯 합니다.
http://www.phiko.kr/bbs/board.php?bo_table=z3_01&wr_id=351

2. 열교는 단열재가 끊어져 있는 모든 부위를 이야기합니다. 현재 올려주신 도면에서 상부벽체의 단열재와 1층 벽체의 단열재가 "중간의 슬라브"에 의해 끊겨져 있습니다.  그 부분을 의미합니다.

3. 슬라브를 모두 감싼다면 천장의 단열은 필요없습니다. 그러나, 최종적인 결정은 수정된 도면이 나온면 그 때 결정할 수 있습니다.

4. 외부에 돌출된 슬라브의 하부면만 단열을 하면 됩니다. 그 단열이 "새로 추가되는 외벽의 120mm 단열" 과 이어지면 됩니다. 실내까지 단열이 들어올 필요없습니다.
Category