단독주택 외단열 시공 관련 문의

설계/시공관련 질문

질문 전에 먼저 검색을 해주세요.

 

단독주택 외단열 시공 관련 문의

G 제주단독주택 7 10,785 2016.03.25 15:25





안녕하세요 제주도에서 단독주택을 신축중인 건축주 입니다.


그동안 이곳에서 많은 정보를 얻고 있는데 이런 좋은 정보를 제공해주시는 관리자님과 한국 패시브 건축협회에  감사의 말씀을 드립니다.


다름이 아니오라 외단열 시공과 관련하여 시공자와 의견 충돌이 있어 문의 글을 올리게 되었습니다.


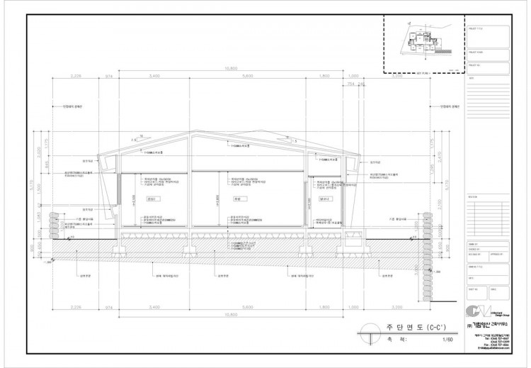
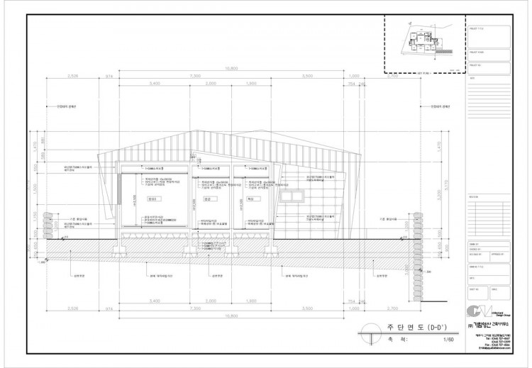
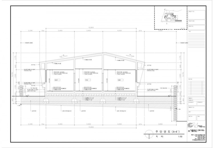
1. 도면은 내외부 양단열(외부벽체, 지붕, 바닥 50mm 스치로폴, 내부 30mm 단열재)로 되있으나 설계를 변경하여 외단열(외부벽체: 75 + 75mm 스치로폴, 지붕: 200mm 스치로폴, 바닥: 80mm 아이소핑크 + 100mm 스치로폴)만 시공하고 내부는 시멘트 미장마감으로 시공한 후 친환경 페인트를 칠하기로 하였는데 나중에 결로나 웃풍등의 한기가 생기지 않을런지요?


2. 지붕 단열재와 벽체 단열재를 맞닿을수 있게 해야 외단열이 제대로 되는게 맞는지요?

도면을 첨부 하였는데 조언 부탁 드립니다. 설계 변경을 해야될꺼 같습니다.

(제 생각은 콘크리트 양생후, 후시공으로 200mm 스치로폴을 붙혀야 될꺼 같아서요.)


3. 벽체 단열재 시공을 콘크리트 타설후, 후시공으로 150mm 스치로폴을 붙혀 달라 하였습니다.(이곳 관련 자료 사진들을 보여 주면서)

건축기사 1급 자격증이 있다는 목수가 제주도에서는 절대 할수 없는 방법 이라고 하더라구요. 하자 생긴다면서요.

그래서 제안한 방법이 75mm 스치로폴을 콘크리트 일체타설(폼에 단열재를 고정시키기 위한 못과 폼타이가 단열재를 관통 함)후에 메쉬작업을 하여 75mm 스치로폴을 덧붙힌다고 하는데 이 방법으로 시공 하여도 괜찮을지요?


4. 외단열구조.jpg


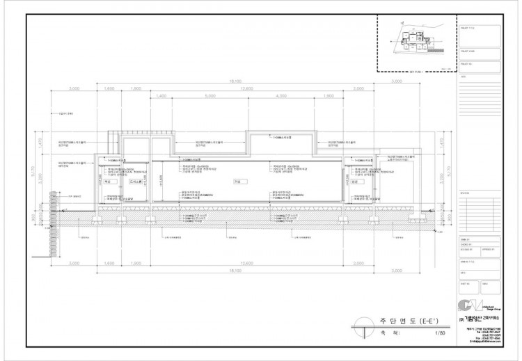
위와 같이 바닥공사를 하여 모든 단열재끼리 맞닿을수 있게 시공을 하기로 하였는데 문제점이 없는지요? 조언 부탁 드립니다.


Comments

M 관리자 2016.03.25 16:09
금일 외근 중이라,  내일까지 답변드리도록 하겠습니다.
2 ifree 2016.03.26 08:23
중요한 주제에 딴소리해서 죄송합니다.
기다리시기 지루하실까봐 농담 한마디 보탭니다.
우리가 지난한 근현대사를 겪어서 그런지 사용하는 언어도 극단적인 표현이 많은 듯 해서요.
'절대로' 라는 말을 할 때는 입에 칼을 물고 틀릴경우에는 그대로 자빠질 각오가 됐을 때나 쓰야 맞지 궁금해하는 비전문가에게 전문가가 무엇인가 설명하기 위해 사용하는 용어로는 적합지 않은 듯 합니다.
이건 제 주관적인 느낌입니다만 건축현장에서

"그런 방법은 하자가 많이 발생합니다"는 말을 쓸 경우에는 아주 가끔은 그 진짜 의미는
"난 그거 할줄 몰라요"를 의미하기도 한 것 같습니다.

 국내에서 조달 가능한 화스너 최대길이가 150mm정도였던 것 같던데요.
이런 현실에서 75mm 단열재를 두겹으로 줄눈 엇갈리게 후시공해본 경험을 가진 시공자 몇명이나 있을런지  의문이기도 합니다.
일단 흔히 외장 미단열 공사때 사용하는 공압으로 작동하는 타카 건 시공이 않될 것 같은데요.
150mm  단열재용 화스너라면 길이가 200mm가 넘을텐데  그걸 장착하고 쏴 넣을 수 있는 건이 있나요?
2 ifree 2016.03.26 09:54
김상봉님  본문에 기재하신 내용으로 작업내용은 이해를 하고 있었습니다.
제 말은 그런 상황에는 '절대로' 라는 표현이 맞지 않는다라는 뜻을 구구하게 늘어놓은 것이고요.
일체타설로 부착력과 들뜸을 방지하고(그렇죠?) 폼타이를 지지대 삼아 두번째 단열재는 본드로 부착한다는 것이잖아요.
제주도가 아닌 우리나라 전체가 그렇게 합니다.
다만 제주도에서 그래야하는 이유와 바람 한점없는 용인에서 그래야 하는 이유가 다를 뿐이지요.
그 방법외 다른 방법이 고려된 적이 없기 때문에 설명만 다르지 길은 한길인 것이지요.
틀렸다고 말씀드리는 것은 결코 아닙니다.
제가 그것을 말씀드릴 지식을 가지고 있지도 않고, 또 좋은 선택이 무엇인지를  결정하는 요인이 한가지만 있는 것은 아니니까요.
전장에서 허벅지에 난 총구멍 막아야할 때는 후방 야전병원에 있는 소독된 거즈보다는 먹다버린 나무젓가락이 나은 선택일 수 있으니까요.
M 관리자 2016.03.26 21:55
답이 많이 늦었습니다. 죄송합니다.
ifree 님이 중간에서 많이 도와주셨네요.. ㅎ 감사합니다.

다른 분들에 대한 답변으로 이미 보셨겠지만, 글로 오고 가는 벽체, 지붕, 바닥의 구성만으로 해결되는 것은 거의 없다 시피합니다.
저희 역시 그 것을 크게 기대하고 드리는 답변이 아님을 전제로 말씀드립니다.

--------------------------------------------
1. 도면은 내외부 양단열(외부벽체, 지붕, 바닥 50mm 스치로폴, 내부 30mm 단열재)로 되있으나 설계를 변경하여 외단열(외부벽체: 75 + 75mm 스치로폴, 지붕: 200mm 스치로폴, 바닥: 80mm 아이소핑크 + 100mm 스치로폴)만 시공하고 내부는 시멘트 미장마감으로 시공한 후 친환경 페인트를 칠하기로 하였는데 나중에 결로나 웃풍등의 한기가 생기지 않을런지요?
>>> 외벽을 모두 외단열로 가는 것에는 근본적으로 찬성이나, 이 것은 ifree 님도 이야기하셨다 시피, 하자가 예견된 방법입니다. 특히 바람이 많고 센 제주지역에서는 채택하기 어렵습니다.
유일한 방법은.. 일체타설 후 (일체타설 역시 권장되지는 않습니다만..), 두번째 단열재를 100% 전면접착으로 붙이고, 화스너를 박는 방법은 허용될 수 있습니다.
지붕의 경우 금속지붕이므로, 아래 기와에 대해 질문하신 분의 답변 내용과 같이 시공될 수 있습니다. 한번 참고하시면 좋으실 듯 합니다.
http://www.phiko.kr/bbs/board.php?bo_table=z4_01&wr_id=9486

2. 지붕 단열재와 벽체 단열재를 맞닿을수 있게 해야 외단열이 제대로 되는게 맞는지요?
도면을 첨부 하였는데 조언 부탁 드립니다. 설계 변경을 해야될꺼 같습니다.
(제 생각은 콘크리트 양생후, 후시공으로 200mm 스치로폴을 붙혀야 될꺼 같아서요.)
>>> 네.. 지붕의 단열재는 콘크리트가 다 굳은 다음 후시공되는 것이 맞습니다.
위의 링크를 참조하셔요..
그리고, 지금의 처마 형태는 외단열로 가기엔 품이 많이 들어 갑니다. 지금과 같은 모양을 유지하면서 외단열을 하는 방법도 있습니다.
http://www.phiko.kr/bbs/board.php?bo_table=z3_02&wr_id=241

3. 벽체 단열재 시공을 콘크리트 타설후, 후시공으로 150mm 스치로폴을 붙혀 달라 하였습니다.(이곳 관련 자료 사진들을 보여 주면서)
건축기사 1급 자격증이 있다는 목수가 제주도에서는 절대 할수 없는 방법 이라고 하더라구요. 하자 생긴다면서요. 그래서 제안한 방법이 75mm 스치로폴을 콘크리트 일체타설(폼에 단열재를 고정시키기 위한 못과 폼타이가 단열재를 관통 함)후에 메쉬작업을 하여 75mm 스치로폴을 덧붙이다고 하는데 이 방법으로 시공 하여도 괜찮을지요?
>>> 상기 답변으로 갈음하겠습니다.

4. 바닥공사를 하여 모든 단열재끼리 맞닿을수 있게 시공을 하기로 하였는데 문제점이 없는지요?
>>> 개념적으로는 맞습니다만, 기초의 경우 성토지반 때문인 듯 한데,, 기초 내부에 흙으로 되메우기를 한 것은 잘 이해가 되지 않습니다.
그럴 바엔 그냥 줄기초로 가는 것이 맞지 않을까 합니다.

------------------------------------------------------------
시공사가 정해진 지금의 시점에서 저희가 끼어 드는 것이 맞지 않을 것 같아 조심스럽습니다만, 제주지역에도 저희 협회 소속 시공사가 두 곳이 있습니다.
위에 말씀드린 화스너 등의 제품은.. 협회의 관리자가 구해주실 것이라고 말했다고 전하시면 성심성의 껏 도와주실 것입니다.
일단 오늘 드린 글에 대해 담당 시공사와 협의를 하신 후 결과를 알려 주시면 좀 더 구체적으로 조언을 드리도록 하겠습니다.

감사합니다.
M 관리자 2016.03.28 22:14
네..
한가지 집고 넘어갈 것이 있는데요..
맨 하부는 괜찮다고 하더라도.. 기초의 윗쪽 슬라브가 그 속에 있는 흙에 지지되는 경우라면. 신중하셔야 합니다.
흙은 매우 잘 다짐이 되지 않으면.. 침하가 발생하게 되고, 상부 슬라브가 이 침하량에 따라 주저앉을 수 있기 때문입니다.
그러므로 대부분의 경우 구조계산을 할 때는, 이 하부에 흙이 없다는 전제로 구조가 가능하도록 계산을 하게 됩니다. 즉, 기초 내부에 비어져 있어도 하중을 충분히 받을 수 있도록 설계가 되지 않으면.. 흙으로 이 하중을 받아 낼 수는 없습니다.
아마도 구조계산을 하지 않았을 확율이 높은데, 구조계산을 하지 않았으므로 더더욱 신중하게 접근되어야 합니다.
자갈로 100% 다 채우더라도 다짐은 필수입니다.
M 관리자 2016.03.29 10:33
1. 올려주신 방식의 기초 단열은 아래 그림과 같은 개념으로 하시면 됩니다.
이미 1미터가 성토되어 지기 때문에, 제주지역의 기후를 고려해 볼 때, 기초 저면의 단열은 생략해도 무방합니다.
이 때 1층 바닥을 기준으로, 슬라브상부는 50mm, 하부는 150mm(XPS) 를 사용하시면 되실 듯 합니다.

2. 위의 답변으로 갈음하겠습니다.

3. 지면에서 최소 150mm, 권장 300mm 올려서 EPS를 시공하시면 되십니다.

4. 저는 개인적으로 경사지붕으로 하시길 권해드립니다. 하지만, 두번째 방법보다는 비용이 더 들어갈 것입니다. 두번째 방법은 골조 평슬라브 위에 방수를 제대로 하고, XPS 단열재를 깐 다음, 그 위에 배수판(단열재보호역할)과 자갈을 덮는 방식인데..
주의 하실 것은 주된 배수가 단열재 상부에서 이루어 지므로 배수구 위치에 유의해야 합니다.
이 방식이 생소하다면.. 경사지붕으로 하시길 권해드립니다.
M 관리자 2016.04.09 22:21
1. 단열재와 단열재 사이는 경질폼으로 해주세요..
2. EPS는 안됩니다.
3. 네. 저희의 의견은.. "비닐+누름콘크리트+재물방수"가 모두 필요없는 것으로 보고 있습니다.
물론 다시 걷어 내신다는 것은 가능하겠으나, 폐기물량도 매우 많고, 쉽지 않은 작업입니다.
방수시트를 제대로 잘 하는 것이 더 나은 선택이긴 합니다.
이런 경우의 추천은 언제나 동일합니다.
"시트방수+단열재두겹+배수판(단열재보호용)+자갈" 입니다.
Category