지붕 및 바닥단열재 관련 문의

설계/시공관련 질문

질문 전에 먼저 검색을 해주세요.

 

지붕 및 바닥단열재 관련 문의

G 김응두 6 8,729 2016.01.07 15:17
안녕하세요.
지붕단열재와 바닥단열재에 대한 문의드립니다.
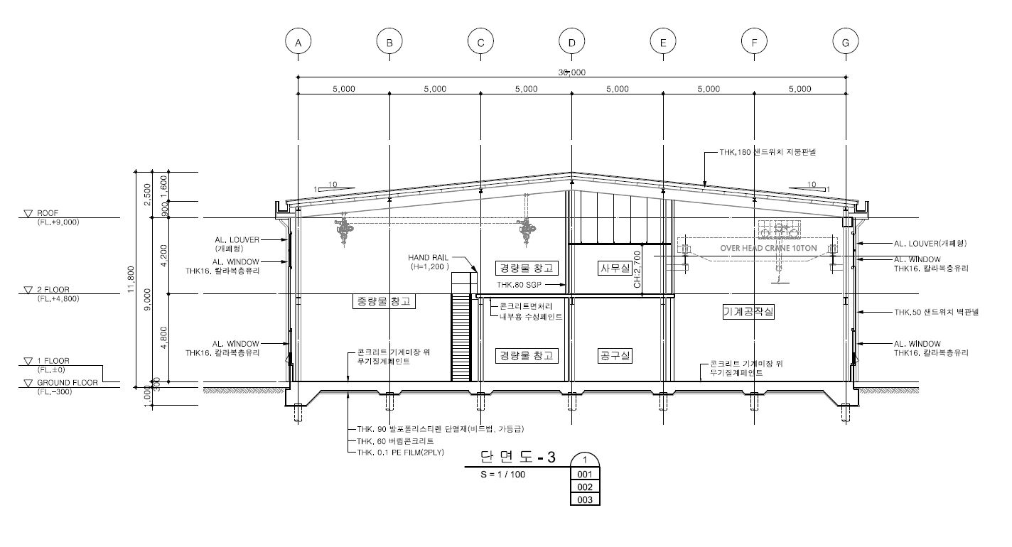
기존 압출법 (흔히 말하는 아이소핑크)을 지붕과 바닥단열재로 사용해 오다 경시변화에 관한 여러 논문을 접한 후 비드법으로 교체하여 적용하려고 준비하고 있습니다.
비드법이 휨현상이 발생할 수도 있지만 경시변화 측면에서는 압출법보다 단열성능이 오래 유지된다는 이유 때문입니다.
그런데 비드법을 지붕에 적용하는 것은 큰문제가 없을 것 같은데 바닥단열재에 비드법을 사용하기도 하는지 의문입니다. (강도자체가 압출법보다 떨어지기도 하고..쓴다면 몇호를 써야하는지..)
혹시 이와 관련하여 답변해주실 수 있는 사항이 있으시다면 부탁드리겠습니다.
감사합니다. 

Comments

M 관리자 2016.01.07 16:12
안녕하세요
금일 제가 출장이라 낼 오전에 답변드리겠습니다.
한가지 질문이. .  바닥 단열이라 하시면 기초 상부,  바닥난방하부를 말씀 하시는거죠?
G 김응두 2016.01.07 16:28
안녕하세요.
말씀하신 것처럼 바닥난방하부에 깔리는 건물도 있지만, 첨부파일처럼 기초하부에 설치되는
건물도 있습니다.
M 관리자 2016.01.08 10:51
네.. 말씀하신 것이 맞으시기는 하나, 압출법단열재의 최대 장점은 흡수율이 없다는 것입니다.
그러므로 기초하부와 같이 수분과 직접 닿는 부분은 압출법단열재만 사용 가능합니다.
나머지 부분은 비드법단열재를 사용하셔도 무방합니다.

그리고, 단면도에서 기초의 측면에도 단열재를 붙혀 주셔야 합니다. 기초가 그냥 외기에 노출되어져 있는 상황이라 지금과 같은 방식으로는 테두리를 따라서 발생되는 열손실이 막대할 것입니다.
G 김응두 2016.01.08 11:01
답변 감사드립니다. 기초 측면을 말씀해주셧는데 아래 표시한 그림에서 두군데 모두 해당되는
것인가요? 아니면 기초 외각에만 단열처리를 하면되는 것인가요?
M 관리자 2016.01.08 11:05
안쪽까지 다 하면 더 좋겠지만, 경험상 쉽지 않을 것입니다.
다만 파일기초이기 때문에. 그 부분이 하중을 받는 것이 아니라서.. 시도해 볼 수는 있습니다.

일단 협의를 해 보시고, 쉽지 않겠다 싶으시면.. 외곽을 제대로 하시는 쪽에 집중하시면 좋을 듯 합니다.
G 김응두 2016.01.08 11:15
항상 좋은 답변 감사드립니다!
Category