경사 대지에 부분 지하주차장, 그 위로 목구조 건축을 합니다. 기초 및 기초부분 단열 문제.

설계/시공관련 질문

질문 전에 먼저 검색을 해주세요.

 

경사 대지에 부분 지하주차장, 그 위로 목구조 건축을 합니다. 기초 및 기초부분 단열 문제.

1 용인목조 1 22,289 2015.06.15 10:54
안녕하세요. 
용인지역 주택신축을 하려합니다.
경사 대지에 낮은 쪽에 주차장을 두고 위로  경량목구조 2층+다락 집을 지으려 합니다.
자료실에 기초 및 단열에 관한 글을 읽어보았는데 건축사및 시공사의 도면이 자료실 글들과 차이가있는 것 같아 질문 올립니다.

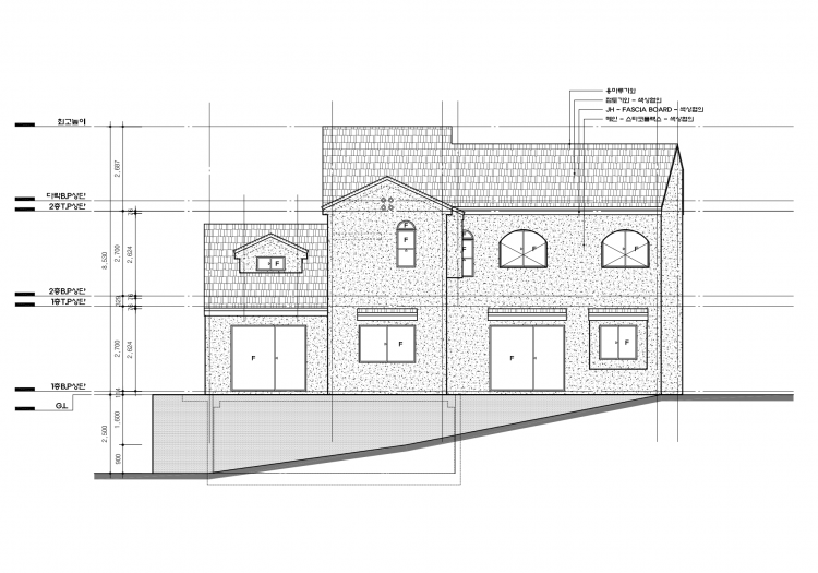
집은 아래 그림과 같이 경사면에 지어지고, 낮은 쪽에 지하 주차장이 들어갑니다.
2.PNG
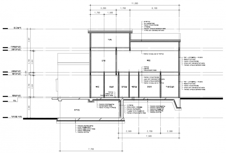
매트 기초로 설계가 아래와 같이 되었습니다.

1.PNG


기초 단면의 상세도입니다.

3.PNG



걱정되는 것은
1. 위 그림 주택의 가운데 부분의 성토된 땅에 매트기초가 들어가는 것이 괜찮은 것인지.?
2. 지하층의 테두리를 파고 기초를 하는 것으로 되어있지 않고, 성토 다짐만하고 올라가는데 문제가 없는지?

자료실의 기초 부분 설명처럼, 기초 부분의 단열재와 잡석다짐은 요구할 계획입니다만,
침하, 부동침하로 인한 문제가 추후 발생할 소지가 있는지 검토 부탁드립니다.
감사합니다.

Comments

M 관리자 2015.06.15 20:42
안녕하세요. 답이 늦었습니다. 죄송합니다.

도면을 보니, 3개층이라, 구조기술사가 개입된 주택이라 여겨집니다.
구조기술사가 관여되어져 있다면, 구조도면이 정확히 표현되었으리라 생각됩니다. 그러므로 그대로 하시는 것이 가장 옳은 방법이라 생각됩니다.

그러므로, 그저 조언만 드리면..

1. 성토의 조건이 있습니다. (작업조건)
이는 원래 시방서에 명기되어져 있으나, 단독주택에서 시방서가 있는 경우는 거의 없으므로 아마도 없으실 거라 생각듭니다.
관여하시는 구조기술사에게 문의하여 성토시의 작업조건을 달라 하시면 주실 것입니다.
(쇄석으로 다짐을 하거나, 매 300mm 성토마다 일정 하중이상의 컴팩터로 다짐을 하는 등의 조건일 것입니다.)

2. 이 질문은 위의 질문과 그 맥을 같이 하는 질문이라 답을 생략하겠습니다.

* 건축사는 구조기술사에게 성토되는 위치는 명확히 하여 전달할 의무가 있습니다. 이를 확인해 보시는 것이 가장 안전한 길입니다.

감사합니다.
Category