창호 문의드립니다. (아래글과 무관)

설계/시공관련 질문

질문 전에 먼저 검색을 해주세요.

 

창호 문의드립니다. (아래글과 무관)

G 배재현 3 6,055 2015.04.30 13:32
우선 일전에 말씀드린대로 외단열에 대해서는 디테일 3개를 요청하여 견적중입니다.
---------
창호에 대해서 왔는데...
 
1. 거실창, 베란다창등 외기와 접하는 큰(애매하지만)창들은
    이중창 (유리 2+2)구성에 단면 로이
2. 작은창인데 열리는 창들은 시스템 T/T창이나 프로젝트창으로
3. 북쪽에 있는 창들은 아르곤 충진
 
으로 견적 요청했습니다.
질문은,
 1. 이중창에 단면 로이코팅하면...외기+유리1+빈공간+유리2+유리3+빈공간+유리4+내기
    로 구성이 될터인데, 몇번유리의 어느방향(외기/내기)에 로이코팅을 하는게 좋을까요?
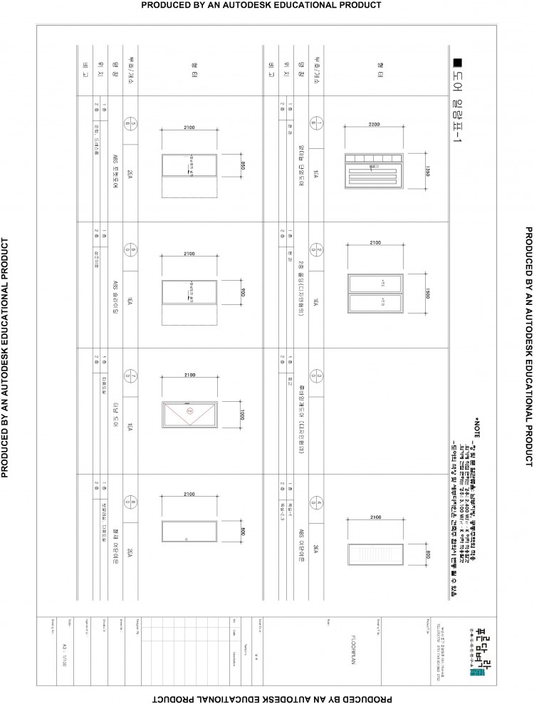
2. 첨부의 창호 위치도 및 창호/방문 도면에서 주실 조언 부탁드립니다.
 
예산은...전체 예산에서 따져야겠지만 RC구조로 약 2억(순수건축비..)정도 예상하고 있는
상황입니다.

Comments

G 배재현 2015.04.30 14:33
그리고 픽스창은 PTT70K 22T 단창이라고 하는데...어떤 창인지 잘 모르겠네요
M 관리자 2015.04.30 15:30
네 로코팅은 4번 유리 또는 2번 유리에 하는게 정석인데,  이 경우는 4번에 해야 할듯 합니다.
나머지는 외근 후 저녁에 글올리겠습니다.
M 관리자 2015.05.01 00:00
PTT70K 는 엘지하우시스 제품의 고유 식별코드 입니다. 22T 는 복층유리 전체 두께구요.
70mm 폭의 프레임입니다.

창호는 설치 디테일이 없어 현 상황에서는 추가적으로 드릴 말씀은 없으나, 다만, 시험성적서를 꼭 받아 두시기 바랍니다. 특히 시험성적서는 6~9페이지 정도로 구성되어져 있습니다. 표지만 주는 경우가 대부분이니, 시험성적서 전체를 받으셔서 올려 주시면 조언을 드리는데 도움이 될 듯 합니다.
Category