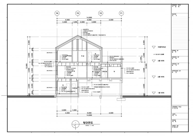
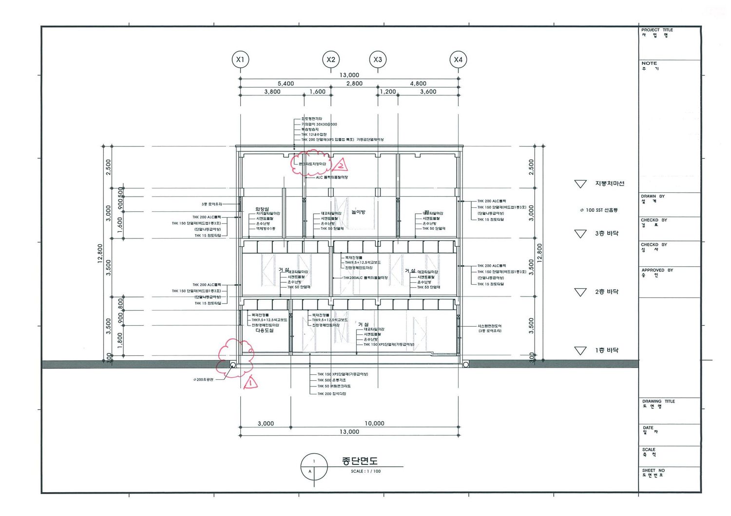
종단면도
1. 유공관 상부 마감을 어떻게 할 것인지, 기초와 단열재가 어떻게 만나는지 상세도 필요
2. 천장이 콘크리트 치장마감이라면. 환기장치는 설치하지 않으시겠다는 의미이신지, 아니면 덕트를 그냥 노출시키시겠다는 것인지 궁금하며, 어찌 되었든 노출마감이면 보가 있는 방식보다는 평슬라브로 구조방식을 풀어 내는 것이 나아 보입니다.
고민을 한 이유는
검토 내용을 다 올릴 경우 해당 건축사께 누가 될 것이 뻔하고, 올려 주신 도면이 시공을 위한 도면의 전부라면.... 사실 검토를 해 드리는 것이 너무나 무의미하기 때문이었습니다.
일단 최소한 있어야 할 상세도는 적어 놓았습니다. 이 상세도면 조차없이 시공에 들어가는 것은 매우 위험합니다. (하자의 책임 문제)
딱히 맞는 표현은 아니지만, 건축물의 도면은 귀금속 목걸이 같은 듯 합니다.
사용자 입장에서는 아름답고 거는데 이상만 없으면 되지만, 그걸 만드는 사람입장에서는 아주 세밀한 곳 까지 계획이 서 있어야 제대로 만들 수 있는 것 처럼요..
만약 이 도면이 시공도면의 전부라면, 목에 걸린 목걸이를 멀리서 찍은 사진을 기술자에게 보여주고, 똑같이 만들어 달라고 하는 것과 같습니다.
상세도면이 나오면 그 때 제대로 봐드릴 수 있을 듯 합니다.
올려 주신 도면을 즉시 꼼꼼히 보았다면 미리 이런 말씀을 드렸을 수 있었을 터인데.. 겉핱기로만 보았다가 나중에 확인하고 이런 글을 남겨 드려서 죄송할 따름입니다.
이는 신률이 0%이기 때문에 구체인 콘크리트나 벽돌에 균열이 발생하면 방수층도 따라서 균열이 발생할 수밖에 없는 방수재료로써 적정하다고 보기 어렵습니다만, 시공비가 싸고 오랫동안 사용되어 왔으며 건조바탕을 요구하지 않는다는 특성 때문에 아직도 건축공사표준시방서에 수록하고 있는 것 같습니다.
'이제 시멘트 액방 시방서에서 빼야 하는 것 아닙니까?'
제가 수 년 전, 그 부분 시방서 집필위원에게 농담처럼 한 진담이었습니다.
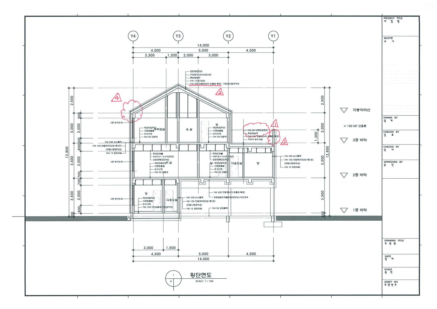
위 종단면도에 보면 화장실에 '액체방수 1종'이 표기되어 있습니다.
이는 2006년도 시방서 개정 시 삭제된 기준인데 아직까지도 이렇게 표현하는 것을 보면 좀 갑갑한 것이, 그 후 2013년도에 표준시방서는 다시 개정했는데도 변함없이 도면이나 특기사항에는 버젓이 종을 구분하고 있기 때문입니다.
종은 횟수와 두께를 구분하는 것으로써 1994년도 개정 시에는 A, B, C, D종으로 했던 것을 1999년도 시방서 개정 당시 1, 2종으로 구분했고, 이를 2006년도 개정 시에는 회수와 두께 구분없이 단지 바닥과 벽으로 구분하여 방수층 바름순서만 지정하고 있으며 방수모르타르는 한 번만 바르게 되어 있습니다.
결국 구체에 균열이 발생되면 두껍거나 얇거나 간에 탄성이 없는 무기질계 시멘트 액체방수층에 균열이 발생하는데, 굳이 종을 구분할 필요가 없다는 취지로 저는 이해하고 있습니다.
설계하는 분들께서 몰라서 그러는 것인지 모르겠습니다만 대형 현장의 특기시방서에도 이를 그대로 배끼듯 한 경우(순서까지 표기 함)를 종종 볼 수가 있는데, 표준시방서가 두 번이나 개정되었는데도 이렇게 표기한다는 것은 제 상식으로는 이해불가입니다.
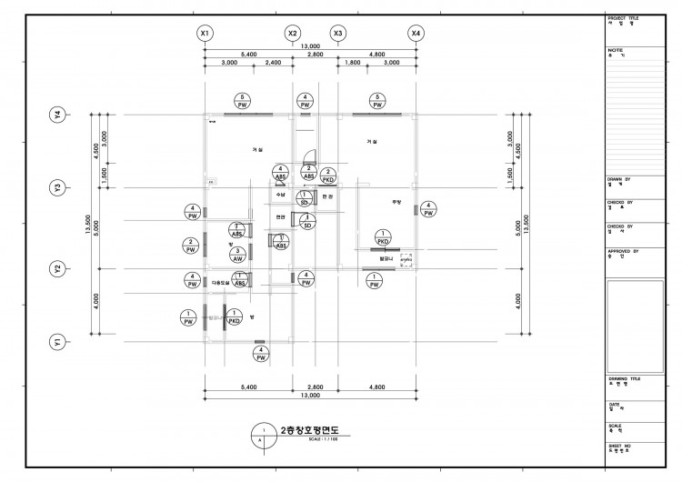
"창호일람표-1
1. 현관문이 유리문일 경우 외부쪽 유리는 강화유리 또는 망입유리를 써야 합니다."
이것도 지금도 해당되는 필수사항인가요? 딱 저희 상황입니다. (남측/북측 벽 전체가 창호로 문도 유리입니다. 모두 3중이며 총 폭은 15미터, 고정창과 유리문이 반복되는데 문이 총 4곳입니다) 그런데 경제적인 이유로 최소한 현관문에만이라도 사용하도록 권장하는것인지, 아니면 현관문처럼 움직여야하는 경우에만 강화유리를 써야할 필요가 있는것인지요?
도면에 향이 나와 있지 않는데.. 향을 알려 주시면 감사하겠습니다.
그리고, 도면에 설계사무소 이름이 나와 있어서. 혹시나 누가 되실 까봐 삭제하고 제가 다시 올렸습니다. 양해 부탁드립니다.
깊은 내용은 아니더라도 문제가 생길만한 부분에 집중해서 의견을 드리겠습니다.
하루만 시간을 주시면 감사하겠습니다.
관리자님...
망설여 질만한 일을 선뜻...
존경스럽습니다.
자세히 해 드리지도 못하는 걸요.
사실 검토는 15분 정도 밖에 안걸렸는데요.. 이 것을 올리는 것이 맞는 것인지. 올린다면 어디까지를 이야기해야 하는 것인지를 내내 고민을 하였습니다.
일단 고민의 결과를 올려 드립니다.
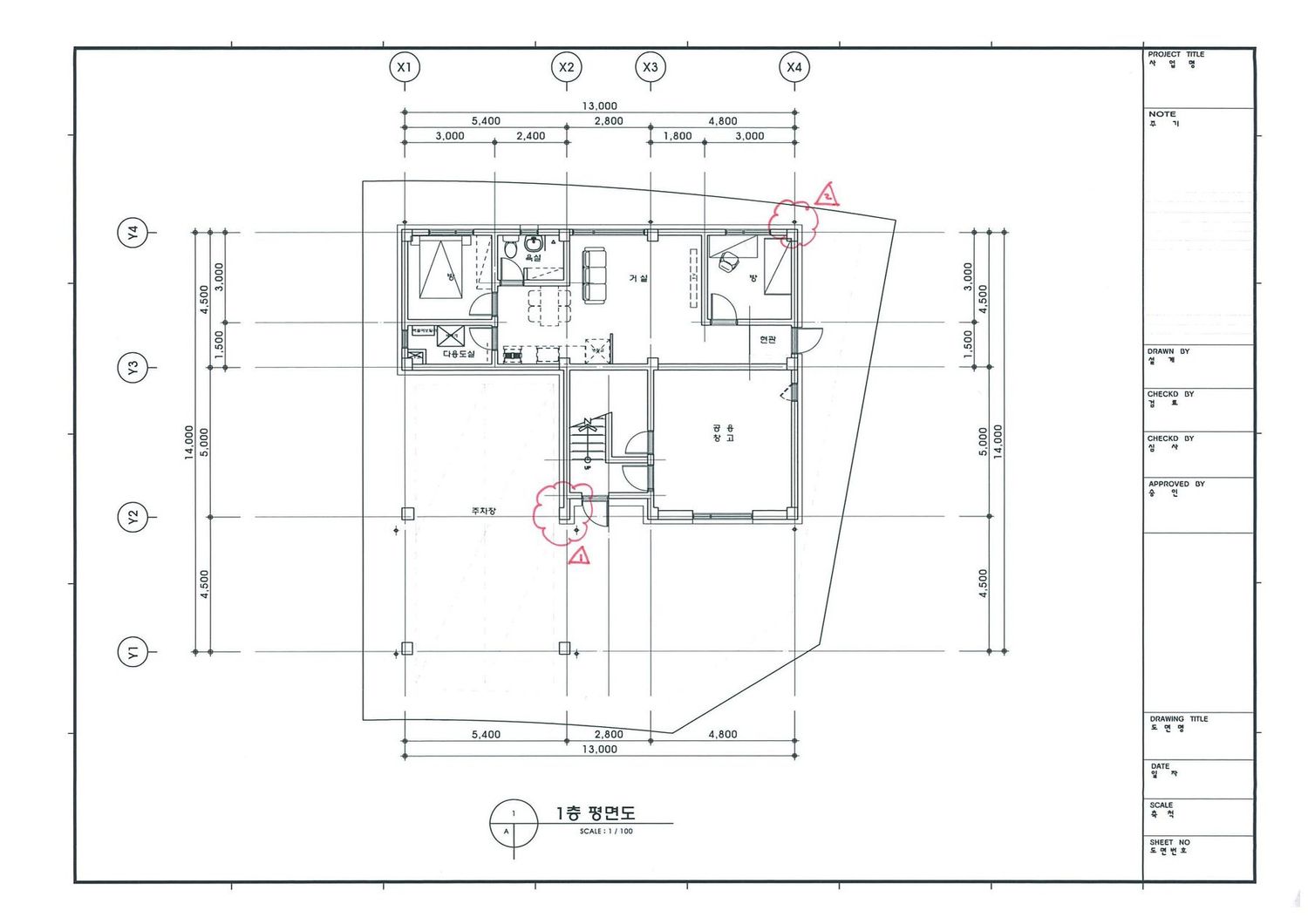
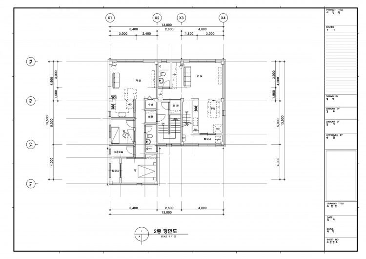
1층 평면도
1. 기둥과 계단실 사이의 벽체는 제거해도 무방합니다. 제거할 경우 기둥에 의한 열교를 끊어 낼 수 있을 듯 합니다.
2. 전체적으로 조적마감이 표현이 안되어져 있어서 우수선홈통이 조적과 어떻게 만나는 지를 모르겠습니다.
1. 화산석타일과 조적이 어떻게 만나는지에 대한 상세 필요
1. 유공관 상부 마감을 어떻게 할 것인지, 기초와 단열재가 어떻게 만나는지 상세도 필요
2. 천장이 콘크리트 치장마감이라면. 환기장치는 설치하지 않으시겠다는 의미이신지, 아니면 덕트를 그냥 노출시키시겠다는 것인지 궁금하며, 어찌 되었든 노출마감이면 보가 있는 방식보다는 평슬라브로 구조방식을 풀어 내는 것이 나아 보입니다.
1. 발코니 바닥의 재료가 이상합니다. 건축사께 확인 부탁드립니다.
2. 지붕의 단열재는 압출법보온판보다 비드법2종3호를 권해드립니다.
3. 파라펫의 재료에 따라 안 쪽면에 단열재가 있어야 합니다.
4. 조적과 지붕의 재료가 만나는 곳의 상세가 필요합니다.
1. 현관문이 유리문일 경우 외부쪽 유리는 강화유리 또는 망입유리를 써야 합니다.
1. 삼중로이유리일 경우 로이코팅이 되는 위치가 명기 되어야 합니다.
2. 계단실까지 단열구획에 포함되었으므로 알미늄창호는 불가합니다. PVC 창호를 써야 합니다.
그런데, 내용과는 다르게 창호기호는 PVC 창호로 되어져 있습니다.
검토 내용을 다 올릴 경우 해당 건축사께 누가 될 것이 뻔하고, 올려 주신 도면이 시공을 위한 도면의 전부라면.... 사실 검토를 해 드리는 것이 너무나 무의미하기 때문이었습니다.
일단 최소한 있어야 할 상세도는 적어 놓았습니다. 이 상세도면 조차없이 시공에 들어가는 것은 매우 위험합니다. (하자의 책임 문제)
딱히 맞는 표현은 아니지만, 건축물의 도면은 귀금속 목걸이 같은 듯 합니다.
사용자 입장에서는 아름답고 거는데 이상만 없으면 되지만, 그걸 만드는 사람입장에서는 아주 세밀한 곳 까지 계획이 서 있어야 제대로 만들 수 있는 것 처럼요..
만약 이 도면이 시공도면의 전부라면, 목에 걸린 목걸이를 멀리서 찍은 사진을 기술자에게 보여주고, 똑같이 만들어 달라고 하는 것과 같습니다.
상세도면이 나오면 그 때 제대로 봐드릴 수 있을 듯 합니다.
올려 주신 도면을 즉시 꼼꼼히 보았다면 미리 이런 말씀을 드렸을 수 있었을 터인데.. 겉핱기로만 보았다가 나중에 확인하고 이런 글을 남겨 드려서 죄송할 따름입니다.
검토한부분 보완하여 올렸습니다.
다시한번 검토부탁드리며,
생각나는데로 답변부탁드립니다.^^;;
이는 신률이 0%이기 때문에 구체인 콘크리트나 벽돌에 균열이 발생하면 방수층도 따라서 균열이 발생할 수밖에 없는 방수재료로써 적정하다고 보기 어렵습니다만, 시공비가 싸고 오랫동안 사용되어 왔으며 건조바탕을 요구하지 않는다는 특성 때문에 아직도 건축공사표준시방서에 수록하고 있는 것 같습니다.
'이제 시멘트 액방 시방서에서 빼야 하는 것 아닙니까?'
제가 수 년 전, 그 부분 시방서 집필위원에게 농담처럼 한 진담이었습니다.
위 종단면도에 보면 화장실에 '액체방수 1종'이 표기되어 있습니다.
이는 2006년도 시방서 개정 시 삭제된 기준인데 아직까지도 이렇게 표현하는 것을 보면 좀 갑갑한 것이, 그 후 2013년도에 표준시방서는 다시 개정했는데도 변함없이 도면이나 특기사항에는 버젓이 종을 구분하고 있기 때문입니다.
종은 횟수와 두께를 구분하는 것으로써 1994년도 개정 시에는 A, B, C, D종으로 했던 것을 1999년도 시방서 개정 당시 1, 2종으로 구분했고, 이를 2006년도 개정 시에는 회수와 두께 구분없이 단지 바닥과 벽으로 구분하여 방수층 바름순서만 지정하고 있으며 방수모르타르는 한 번만 바르게 되어 있습니다.
결국 구체에 균열이 발생되면 두껍거나 얇거나 간에 탄성이 없는 무기질계 시멘트 액체방수층에 균열이 발생하는데, 굳이 종을 구분할 필요가 없다는 취지로 저는 이해하고 있습니다.
설계하는 분들께서 몰라서 그러는 것인지 모르겠습니다만 대형 현장의 특기시방서에도 이를 그대로 배끼듯 한 경우(순서까지 표기 함)를 종종 볼 수가 있는데, 표준시방서가 두 번이나 개정되었는데도 이렇게 표기한다는 것은 제 상식으로는 이해불가입니다.
도면을 보니.. 횡단면도는 아직 수정이 다 안된 듯 합니다. 이 도면이 다 정리되면 그 때 다시 부탁드리겠습니다.
1. 현관문이 유리문일 경우 외부쪽 유리는 강화유리 또는 망입유리를 써야 합니다."
이것도 지금도 해당되는 필수사항인가요? 딱 저희 상황입니다. (남측/북측 벽 전체가 창호로 문도 유리입니다. 모두 3중이며 총 폭은 15미터, 고정창과 유리문이 반복되는데 문이 총 4곳입니다) 그런데 경제적인 이유로 최소한 현관문에만이라도 사용하도록 권장하는것인지, 아니면 현관문처럼 움직여야하는 경우에만 강화유리를 써야할 필요가 있는것인지요?
최소한 현관문에는 적용을 해주는 것이 좋습니다.
다른 창과는 다르게 현관문은 외부 길에서 잘 안보이게 들어가 있는 경우가 많고, 문 앞에서 누가 서성여도 크게 어색하지 않기 때문입니다.