해발 800미터 철근콘크리트 단독주택 신축 중입니다. 지붕 외단열 질문입니다.

설계/시공관련 질문

질문 전에 먼저 검색을 해주세요.

 

해발 800미터 철근콘크리트 단독주택 신축 중입니다. 지붕 외단열 질문입니다.

1 세발나무늘보 35 28,094 2014.09.11 02:37
먼저 이렇게 좋은 정보가 있는 홈페이지를 만들어주셔서 저 같은 비전문인이 따뜻한 집을 꿈꾸며 알차게 집을 짓게 도와주신 점 정말 감사합니다. 

이곳은 해발고도가 높아 6개월 동안 눈과 씨름해야 하는 강원도 평창입니다. 그래서 단열과 방수를 철저히 하기 위해 이 웹사이트를 즐겨 찾게 되었고 공부하게 되었습니다. 저는 다행이 경험도 많고 건축주인 저의 말을 귀담아 들으려는 성실한 시공사를 만나 현재 지하 1층(16평) 공사를 마치고 지상 1층(16평) 벽체 옹벽과 일체형으로 철근 콘크리트 경사지붕(박공지붕)을 위한 거푸집 작업을 앞으로 2~3일 이내에 끝내는 시점에 있습니다.

시공자는 현재 내단열로 철근 콘크리트 지붕을 계획하고 있지만 벽체 드라이비트 외단열과 연결되지 못하므로, 철근 콘크리트 지붕에 외단열을 하고 싶습니다. 저는 평창 오대산 국립공원 사례와 게시글 'RC 슬래브 경사 지붕에 외단열 시공이 가능한가요?', '단열에 관해'  등 모든 게시물을 읽어보았으나, 기초지식이 없어 어느 정도만 제가 이해하고 있다고 판단하기에, 확인 차 하는 중복 반복 질문일 것이라 죄송한 마음이 먼저 듭니다.

철근 콘크리트 경사지붕(박공지붕)을 할 때, 외단열 시공 공정을 어떻게 하면 최소한의 비용으로 외단열이 제대로 작동하게 할까요? 물론 싸고 좋은 것은 없다고 알고 있습니다만, 최소한의 비용을 들이기 위해서 여쭤봅니다. 예를 들어 기와보다는 아스팔트 슁글을 쓴다는 식으로 말입니다.

정말 감사합니다.
 

Comments

M 관리자 2014.09.11 10:03
안녕하세요..

3D 프로그램을 활용해서 답을 드려야 하는데. 지금 제 컴이 조금 말썽이라.. 조치를 취하고 저녁까지 답을 드리겠습니다. 늦어 죄송합니다.
G 세발나무늘보 2014.09.11 16:59
아닙니다. 질문마다 이렇게 정성껏 답변을 해 주시니 감사할 따름입니다.

오늘 아침에 협회의 <지붕 외단열>에 관한 자료를 우리 시공자님께 보여 드리고 외단열로 한번 진행해 보자고 말씀을 드렸으나, 이미 지붕 거푸집이 내단열 200미리를 감안하여 낮춰놓았기 때문에 사실상 고치는 것이 어렵다고 말씀하십니다.

평창 오대산 패시브하우스에 적용된 철근콘크리트 외단열 사진을 보여드리니, 콘크리트 슬라브와 각파이프들에 점(?선?)열교가 발생하여 결로가 생길 것이기 때문에, 원안이었던 내단열과 그다지 큰 차이를 보이지 않을 것이라고 하십니다.

그러나 저는 외단열을 하게 되면 내단열을 할 필요가 없어지고, 결로가 해결되고, 콘크리트를 축열재로 사용함으로써 높아지는 열효율에 대비하여, 내단열을 하면서 시공해야 하는 비용과 구조적인 결함을 대비하여 볼 때, 외단열을 하는 것이 더 좋지 않나 생각해 봅니다만, 시공자를 설득할만한 확신을 가지지 못한 관계로 이렇게 질문을 드리게 된 것입니다.

시공자가 원래 생각하셨던 계획은 다음과 같습니다.

만일 이것이 차선책이 될 수 있다면, 이런 방식의 내단열을 할 때에도 최선의 방식이 있을 것이라 기대합니다. 그것이 무엇일까요?
G 세발나무늘보 2014.09.11 16:59
시공 계획입니다.
M 관리자 2014.09.11 23:25
저희가 지금까지의 경험으로 찾아 낸 가장 저렴하게 지붕 외단열을 할 수 있는 방법입니다.

1. 스테인레스스틸 브라켓을 사용합니다. 반드시 스테인레스스틸이어야 합니다. 비싸긴 하지만, 몇개 들어가지 않습니다. 이를 앵커볼트로 지붕에 박아 넣습니다.
G 홍도영 2014.09.12 05:40
서로의 푸념을 듣고 웃을 시간이 있을 겁니다. 독일말에 이런게 있습니다.
"인생은 내가 원하는 콘서트는 아니다". 그런 듯 합니다.
M 관리자 2014.09.12 19:45
그러게요..
환불도 안되는...
M 관리자 2014.09.11 23:27
2. 지붕에 일정한 간격으로 삽입을 합니다.
단열재는 1200x2400 규격을 길게 반으로 잘라 사용해야 OSB와 간격이 맞으므로, SST 브라켓의 간격은 600 간격으로 들어가면 됩니다.
단열재는 브라켓 속에 꽉 끼어넣습니다. 탄성이 있으므로 일부러 작게 자르지 않아도 괜찮습니다.
1 세발나무늘보 2014.09.12 01:12
아 정말 감사합니다.

이 그림이 3d 그림이군요. 방금 급-검색을 해 보았으나, 스테인레스스틸 브라켓 L형인가요? 이런 모양은 잘 찾질 못하겠더군요. 조금 큰 철물점에 가면 있을까요?

그리고, 공사 감독님(시공사 사장님=작업 반장님???)이 주문한 단열재가 내일 온다고 하는데, XPS가 아니라 EPS 가등급 2호 240미리라고 합니다. 원래 내단열 계획에서 지붕 콘크리트 슬라브 밑에 넣고 일체타설을 하려고 했던 단열재입니다. 이 단열재를 그대로 이용해 외부단열재로 써도 될까요?

그렇게 되면, L형 스테인레스스틸 브라켓도 긴쪽(짧은 쪽은 앙카볼트로 슬라브에 고정되므로) 길이가 적어도 250은 되어야겠군요.

참 그리고 스테인레스스틸 브라켓과 각파이프에 의한 열교는 무시할만한 수준인가요? 각파이프 위에 OSB 합판 그 위에 방수쉬트 위에 아스팔트 슁글을 덮으면 열교가 무시할만한 수준으로 떨어지거나, 혹은 각파이프와 브라켓이 있는 공간으로 공기가 통하여 열교가 현저히 줄어드는 것인지요?

사실 이 부분에서 열교가 일어나고 그래서 결로가 생길 것이기 때문에 내단열을 하는 것이 더 좋다는 말씀을 하신 것입니다.

정리하면 질문은 세 가지입니다.

1) 스테인레스스틸 브라켓은 철물점에서 쉽게 구할 수 있는지요? 혹시 구할 수 있는 곳을 아신다면 가르쳐 주실 수 있는지요? 크기는 단열재 두께에 맞추면 되겠지요.
2) 외단열재를 EPS 가등급 2호 240미리로 해도 되는지요.
3) 스테인레스스틸 브라켓과 각파이프를 통해 열교가 생길텐데 이것이 무시할 수준인지요?

아 정말 감사합니다.
M 관리자 2014.09.11 23:30
그런 후 스테인레스스틸 브라켓에 100x50x2.3T 각 파이프를 용접합니다.
이 때 용접 불똥이 단열재에 티지 않도록 주의를 해야 합니다. 아래에 젖은 신문지를 깔고 하는 것도 좋은 방법입니다.
저희 협회 회원사는 용접 후에 단열재를 사이 사이에 끼워 넣는 방법을 채택하기도 합니다.
품과 단열재 사이의 틈이 있으므로 폴리우레탄폼이 더 많이 들어가지만 용접으로부터 자유스러울 수 있습니다.

처마가 있다면 처마길이 만큼 각파이프를 내어서 용접하면 됩니다.

이 각파이프와 단열재 사이의 틈이 통기층이 됩니다. 이 틈이 용마루까지 막히면 안됩니다.
M 관리자 2014.09.11 23:33
그런 후 모듈에 맞게 OSB 를 깔아주면 되며, 이 이후의 작업은 여느 지붕과 같습니다.
즉, 방수쉬트를 덮은 후 아스팔트 슁글을 깔아주면 지붕이 완료됩니다.
M 관리자 2014.09.11 23:33
감사합니다.

그리고, 손수 그리신 듯 한 그림.. 참 운치있게 잘 그리시네요.. 좋은 그림 잘 봤습니다.
G 홍도영 2014.09.12 00:26
비슷한 리노베이션을 한 건물의 사진이 있어 올립니다. 제가 스케치 한 것은 퇴근 후에 놀려 보도록 하지요. 다만 차이가 있다면 지지 철물이 알루미늄이라는 것이지요.
1 세발나무늘보 2014.09.12 01:18
아 이 늦은 시간에 정말 감사합니다. 달리 표현할 길이 없네요.... -_-;

만들어 놓은 지붕 거푸집을 모두 철거토록 반장님께 말씀을 드려야겠습니다. 그래도 그것이 미래를 위해 더 좋은 결정이 되었으면 좋겠습니다.
G 홍도영 2014.09.12 04:04
설치된 거푸집을 해체해야 할 이유가 있을지 모르겠습니다.

단열재 설치만큼 높이를 낮춘 것 말고 달라진 것은 없을 듯싶은데 말입니다.
물론 외벽과 돌출되는 처마의 경우는 고려하셔야 하지만 협회나 저의 제안에 준한다면 콘크리트 처마를 돌출시킬 필요는 없고 그렇게 하지 않는 것이 열교를 줄이는데 좋습니다.

열교나 곰팡이 그리고 기타의 습기로 인한 한자를 고려한다면 단열재는 외부에 설치하는 것이 맞습니다. 여기에는 토론의 여지가 없습니다.
즉, 지금 계획된 것은 공동주택의 내단열과 같은 현상이 되기에 항상 결로와 곰팡이 발생 위험이 큽니다. 시공사에서 외부의 열교로 인해 결로수가 걱정이 된다면 실내에 설치하는 내단열재로 인해서는 결로수가 아니라 폭포수가 흐르게 됩니다. 그런 이치입니다.

외부에 생기는 소량의 결로수는 실내환경에 그리고 곰팡이 발생에 위험을 주지는 않습니다. 위의 구조로 점형열교는 당연히 어느 정도 있습니다. 그 점형열교가 걱정이 된다면 아래의 목구조로 그리고 단열재도 경질이 아닌 모두 유리섬유나 암면으로 해야 합니다.

이런 이유에서 협회에서 "지금까지 경험에서 가장 저렴한" 이라는 언급을 별도로 한 것입니다. 더 좋은 방법은 물론 있습니다. 그것 중의 하나가 하부의 스케치입니다. 이걸 보면 시공사에선 좋은 소리를 하지 않죠! 아예 열교를 없애는 방법도 있는데 이런 경우는 고정 나사의 길이가 400mm 이상이 필요합니다. 점점 어려워지지요. 그런 여러 이유에서 줄이고 줄이고 줄여서 표현한 겁니다.

이런 경우 슬래브 하부는 실크벽지 같은 것은 설치하지 마시고 단순 투습미장이나 합지벽지등으로 실크벽지를 설치하신다면 구조체 제습을 하시기 바랍니다. 외부에 경질 단열재일수록 증발이 어려워 지기에 그렇습니다.

어찌 보면 간단한데 단열재에 따라 내부 마감에 따라 저희가 신경써야 하는 일이 많습니다. 가급적이면 외부에 경질이 아니라 투습이 되는 글래스 울이나 암면을 설치하세요. 경질도 하지만 가능은 합니다.
1 세발나무늘보 2014.09.14 02:12
네 친절한 설명 감사합니다. 시공자께서 200미리 낮춘 부분은 간단히 보수만 하면 된다고 하셔서 별 문제 없이 지붕 외단열을 할 준비가 되었습니다. 그런데 발생되는 추가 비용 때문에 방법을 강구하고 있습니다.

원래 이렇게까지 '패시브하우스' 수준으로 지으려고 한 것이 아니고, 너무 추운 곳이라 단열 방수를 알아보며 시공자님께 하나 둘 요구를 하다보니 어느새 예상 건축비가 훨씬 넘어가 버렸습니다. 그렇지만 다른 것도 다 마찬가지지만, 알면 알수록 집은 제대로 지어야 한다고 생각합니다. 덕분에 무엇이 제대로인지 배워가고 있습니다.

질문입니다. 투습이 되는 글래스 울이나 암면을 콘크리트 슬라브 위에 설치하는 것은 습기가 단열재가 있는 곳으로 스며든다는 말씀이신데, 이 습기는 혹시 아직 건조되지 않은 슬라브에서 올라오는 것입니까? 그렇다면 어느 정도 시간이 흐른 뒤에는 습기가 더 이상 올라오지 않을 것이므로 '경질도 가능'하게 되는 것인가요?
G 홍도영 2014.09.14 06:14
콘크리트 경사 슬래브이고 그 위에 목재의 서까래나 OSB등의 나무가 사용될 경우 슬래브 상부에 방습층이 형성되어 있지 않으면 단열재는 상관이 없지만 목재의 함수량의 증가로 곰팡이가 필 확율이 높아지게 됩니다.
특히 기와마감이 아니라 아스팔트 슁글 혹은 찡크마감일 경우 말입니다. 현재는 목조가 아니라 경량철골과 스테인레스와의 혼합이기에 목재 서까래가 없기에 그리 위험 하다고는 볼 수가 없습니다. 제가 암면을 사용하라 추천한 것은 분명 한겹으로 시공을 할 것이고 그렇게 되면 틈이 분명히 생기고 또 꼼꼼히 채우지 않으면 이는 열교가 되기에 이에 대한 우려에서 드린 말씀 입니다.

이런 구조에는 경질의 단열재는 좋은 궁합은 아닙니다. 더불어 장시간을 보았을 때는 개인적으로는 내구성면에서도 이런 EPS 재질이 한계가 있을 것으로 보고 있습니다. 물론 경제적인 해결 방법이지만 고려는 해 보겠습니다.
G 홍도영 2014.09.12 03:39
협회에는 이미 잘 알려진 방법이기도 하지만 선택의 차원에서 올려 봅니다. 참고 바랍니다. 여기서 표시된 방습층은 설치되는 단열재의 투습 정도에 따라 설치 여부가 달라지기도 합니다. 도움이 되길 바랍니다.
1 세발나무늘보 2014.09.14 02:28
그림까지 그려주시니 정말 감사합니다.

그런데 제가 이해를 하는데 며칠이 걸리는군요. 아직도 다 모르겠지만 계속 알아보고 있습니다.
M 관리자 2014.09.15 11:09
혹시 이 그림을 건성으로 그림만 보시는 분들이 계실까봐 노파심에 글을 적습니다.

홍선생님이 올려주신 세장의 그림을 모두 "무기질단열재"를 사용해야 하는 상세입니다.

"목상"은 "유기질단열재"와 함께 사용될 수 없습니다.
3 이명래 2014.09.12 07:51
좋은 그림들과 함께 진지한 의견 보고 갑니다.
이런 장이 펼쳐지므로써 개선안이 나오고 효율적 시공이 가능해 지리라 생각합니다.

질문하신 분이나 답변에 주신 두 분(관리자님, 홍 선생님) 모두 감사합니다.
1 세발나무늘보 2014.09.24 09:12
이명래님 감사합니다.
정말 큰 도움을 받고 있습니다. 관리자님, 홍도영 선생님 감사합니다.
17 이성원 2014.09.12 19:03
혼자 걱정하고 혼자 궁리하던 일들이 막힌 하수도 뚫리듯 시원하게 정리되었습니다.
항상 감사한 마음으로 배우고 갑니다.
2 권희범 2014.09.14 15:47
좋은 내용 공부했습니다. 고맙습니다.
콘크리트 건물도 지붕은 타설 없이 아예 목조로 간다면 좀 더 쉽게 갈 수 있을 것 같은데요,
지붕도 콘크리트 타설을 하고 위처럼 어려운 과정을 거쳐 외단열을 하는 건 그만의 장점이 있어서인가요? 구조적으로나 아니면 축열성능을 위해서 이거나..
아니면 아직 우리나라에서 콘크리트 건물의 목조 지붕이 일반적이지 않아서 그럴 뿐인가요?
G 홍도영 2014.09.15 03:36
정확히 보셨습니다. 단순히 목구조로 가는 것이 가장 좋은 방안입니다. 물론 축열로 인한 장점도 없지 않아 있지만 경제성과 투자대비 효율을 본다면 권선생님의 말씀이 맞습니다. 다만 이렇게 된 것은 콘크리트 경사 슬래브로 정했기에 이에 대해 효율적인 제안을 여러 각도에서 한 것입니다.
G 홍도영 2014.09.15 03:48
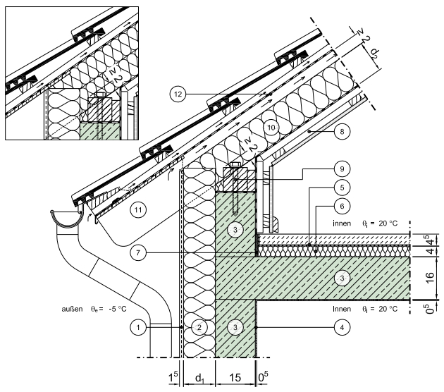
보통은 이런 식으로 철근 콘크리트의 외벽과 연결이 됩니다.
여기의 사례에서 주의할 것은 warm roof와 cold roof가 같이 병행하는 것으로 cold roof의 물성이 있기에 설치되는 단열재는 암면이면 방풍과 방수의 기능이 있는 맴브란이 부착된 단열재이며 폴리우레탄의 계열이면 알루미늄의 보호층이 설치되어 있습니다. 물론 단열성능을 높이기 위한 이유도 있습니다만 그 사잇공간으로 눈이나 빗물 유입이 있을 수 있기 때문입니다. 보통은 warm roof한 방식으로 공사가 돕니다. 참고 바랍니다.
G 홍도영 2014.09.15 03:52
출처는 http://www.planungsatlas-hochbau.de/
많은 RC조 디테일과 열교해석이 있으니 참고들 바랍니다. 좋은 사이트이지만 개개의 열교는 조금은 조심해서 이해를 해야 합니다. 그냥 고려하지 않고 계산한 것이 있습니다. 예를들어 창호고정 철물 같은 것. 도움이 되길 바랍니다. 무료입니다.
pdf, dwg기타의 포맷으로 다운이 모두 가능합니다. 단점은 독일어라는 것이지만 눈치가 빠른 분들은 충분히 사용이 가능합니다. 철근 콘크리트의 왠만한 디테일은 모두 있습니다.
1 하얀그림자 2014.09.15 11:24
정말 좋은 곳을 알려주셔서 고맙습니다.

어떤 건설회사의 홈페이지인가요?  상세도가 대단하군요
독일의 힘이 느껴집니다.
M 관리자 2014.09.15 10:38
좋은 설명과 사이트 소개 감사드립니다.
2 권희범 2014.09.15 10:56
자세히 설명해주셔서 고맙습니다.
벽체 외단열재와 지붕 단열재가 만나는 부분의 디테일이 중요하겠군요.
위와 같은 시공에서 박공 경사면의 콘크리트 면이 울퉁불퉁해서 고생해본 경험이 있는데요, 박공도 목조로 시공하는 게 가능한지 궁금합니다.
좋은 사이트일텐데 첫 화면부터 엄두가 안나네요.ㅎ 천천히 보겠습니다. 고맙습니다.
M 관리자 2014.09.15 11:07
네.. 가능합니다.

다만, 말씀하신 것과 같이 골조 상단의 레벨이 아주 좋지 않아 (정말 좋지 않더군요!!!) 시공하시는 분이 어려워 하는 것을 많이 보았습니다. 이 상단 레벨만 생각하면 ALC로 가고 싶다는 생각이 자주 들었습니다.
2 권희범 2014.09.15 13:26
답변 고맙습니다.
콘크리트 골조에 목조 박공을 세운다면 골조와 박공의 외벽면을 맞추고 EPS로 같이 덮는 방법 밖에 없겠죠? 박공이 바깥으로 더 나오고 외단열재를 따로 설치한 사례가 있을까요?
그리고 ALC 골조에 콘크리트 테두리보 없이 목재 고정이 가능한가요?
M 관리자 2014.09.15 14:11
타구조에 목조 지붕을 덮는다면.. 목구조와 똑같이 풀어내도 무방합니다. 물론 처마가 없는 것이 유리하겠지만, 있어도 괜찮습니다. 물론 열교는 고려해야 겠지만요..

그리고 측면은 벽에서 올라오는 EPS 를 덮어야 겠죠.. 서까래 사이에... 지붕면은 무기질을 사용하구요.
하지만, 고밀도 암면을 사용하면 목재 측면도 무기질로 갈 수도 있습니다.

유럽사례에 ALC의 테두리보를 글루렘을 사용하는 것을 본 적이 있습니다.  물론 적용하고자 마음먹으면 좀 더 면밀히 분석을 해야 겠지만, 앵커의 깊이만 기준을 잡는다면 외견상 충분히 가능해 보였습니다.
M 관리자 2014.09.15 14:11
타구조에 목조 지붕을 덮는다면.. 목구조와 똑같이 풀어내도 무방합니다. 물론 처마가 없는 것이 유리하겠지만, 있어도 괜찮습니다. 물론 열교는 고려해야 겠지만요..

그리고 측면은 벽에서 올라오는 EPS 를 덮어야 겠죠.. 서까래 사이에... 지붕면은 무기질을 사용하구요.
하지만, 고밀도 암면을 사용하면 목재 측면도 무기질로 갈 수도 있습니다.

유럽사례에 ALC의 테두리보를 글루렘을 사용하는 것을 본 적이 있습니다.  물론 적용하고자 마음먹으면 좀 더 면밀히 분석을 해야 겠지만, 앵커의 깊이만 기준을 잡는다면 외견상 충분히 가능해 보였습니다.
1 하얀그림자 2014.09.15 12:31
골조상단의 콘크리트 레벨을 정확히 하기 위하여
콘크리트형틀에 목적레벨선을 먹놓고 그 먹선을 따라 작은삼각형 형태의 메모드를 설치하고 타설 후 흙손 마감하더군요.
약간의 정성이 더 필요하겠지요.
콘크리트 두께가 얇을 경우 필요에 따라 레벨선에 맞추어 사전 매립철물을 묻기도 하더군요...
M 관리자 2014.09.15 14:12
네. 그렇게 하는 것을 본 적이 있습니다. 결국 목구조의 기초와 벽체가 만나는 것과 동일한 정성이 들어가야 하는 듯 합니다.
Category