창호 결로 발생 원인 상담

설계/시공관련 질문

질문 전에 먼저 검색을 해주세요.

 

창호 결로 발생 원인 상담

G 김남식 45 22,749 2013.12.27 10:59
안녕하십니까?

예비건축주로서 패시브건축에 관심을 갖고 몇차례 패시브건축과 관련하여 직접 상담을 드리기도 하고, 질문/하자와 시공사례 등을 보면서 나름대로 궁금한 사항들을 해결하고 모자란 건축지식을 얻는데 상당한 도움을 받아 감사하게 생각합니다.
다름이 아니오라,
그동안 습득한 패시브건축에 관한 정보와 지식을 기초로 금년 하반기에 아래 사양으로 저에너지주택을 건축 지난 11월14일 준공하여 현재 거주하고 있습니다.
기밀이 우수하고 단열이 잘되어 난방용 지열에너지보일러를 하루에 한차례 1시간 정도 가동해도 항상 실내온도가 21~23도를 유지하며 잘 지내고 있는데, 아침마다 창호에 결로가 발생하여 원인을 창호업체와 시공사에 문의해 보았으나 속시원한 답변을 듣지 못하고 있습니다.
창호업체에서 현장 방문을 하여 실내습도를 측정해 본 결과 60~65% 정도로 비교적 실내습도가 높은 것으로 보아 건축자재에서 방출되는 습기가 원인으로 판단되며 앞으로 1~3년 정도 지나 건조가 완료되면 자연 치유될 것 이라고 합니다.
결로발생 부위는 창호 하단프레임을 포함하여 유리하단부에서 양쪽가장자리 중간까지 "ㄷ"자 세워놓은 형태로, 천창은 유리가장자리 전체가 균일하게 "ㅁ" 형태로 발생되고 있습니다.

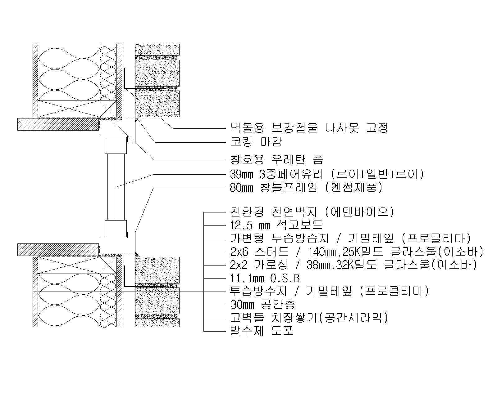
 [건축 사양]
  0. 건축구조 : 경량목구조 (이중벽체:2*6+2*2, 지붕:2*12)
  0. 단열재 : 벽체 그라스울 25K(중단열)+32K(외단열)
                  지붕  그라스울 25K(더운지붕 2*2 통기층 시공후 지붕마감)
                  * 내.외벽에 프로클리머 투습방수지 및 가변형방습지 기밀테입 시공
  0. 창호 : (주)엔썸  독일식시스템창호(패시브전용창 39m/m 3중유리)
                * 천창 - 유럽식 떼르모창호(24m/m  2중유리)
  0. 기초 : 200m/m 스티로폼 시공(방통시 150m/m 스티로폼 추가 시공)
  0. 마감재 : 외벽 - 고벽돌(투습방수지와 벽돌 사이에 통기층 30m/m 정도 확보)
                  내벽 -  친환경벽지+친환경도료(천정일체:루나우드 12m/m)
                  지붕 -  아이케이 Real zick(칼라강판)
  0. 공조시설 :  쎌파  열회수장치 설치(각방 4개소, 거실.주방 2개소, 총6개소)
  0. 현관문 : (주)엔썸  패시브전용 현관문

  충분히 검토하신 후 답변해 주시면 고맙겠습니다.
  귀협회의 노고에 늘 감사드립니다!

Comments

M 관리자 2013.12.27 13:30
평면도와 단면도 한장씩 사진을 찍어, 비밀글로 올려주실 수 있으신지요?
그리고, 설계/시공하신 분(회사) 이름도 비밀글로 올려주시겠습니까?
G 박달재 2013.12.27 18:45
게시판의 모든 질문에 언제나 빠르고 명쾌한 답을 주시는 관리자님.

새 해 복 많이 받으시고 늘 건강하시기 바랍니다.
M 관리자 2013.12.27 19:18
에구  박달재선생님 감사드립니다.

박선생님도 새해 항상 건강하시고,  가내 평안하시길 기원합니다.
항상 감사드립니다.
G 윤규훈 2013.12.29 16:26
이질문에대해 답변을기다리는 사람의하나입니다 저도 질문하신분의유형과 비슷하게 시공을생각하는 사랍입니다 혹실례가 안된다면 어떤문제점이 있고 해결점은 어떻것이 있는지 궁굼합니다
M 관리자 2013.12.30 17:23
네.. 저희도 글올려주신 분의 답을 기다리고 있습니다. (도면 자료)
자료가 올라오고 검토 결과가 나오면 다른 분도 보실 수 있도록 여기에 답변을 올리도록 하겠습니다.
예측되는 문제점은 있습니다만, 건축물이란 것이 함부로 예측을 말씀드리기에는 여러가지로 부작용이 많아 도면이 온 후에 정리해 글을 적도록 하겠습니다.
감사합니다.
G 홍도영 2013.12.30 19:14
먼저 패시브하우스 전용창호라는 표현은 아무 의미가 없습니다. 어떤 제품의 적합성을 논의하기 위해선 물성치가 필요합니다. 프레임의 성적표와 특히 간봉 더불어 유리의 값이 그 대표적인 것이지요. 이를 바탕으로 기본적인 것을 파악할 수 있고 벽 깊이를 기준으로 창호가 설치된 위치와 높이 그리고 내부에 블라인드 유무에 따라 결로를 얘기할 수가 있습니다. 마찬가지로 천창은 하늘을 바라보는 각도에 따라 결로의 정도가 달라지는데 측정시 실내상대습도가 60-65%였다면 맑은밤이 있던날은 결로가 생길 확율이 높네요. 그리고 개인적으로 보기에는 60-65%상대습도는 일시적이라 보지만 만일 평균적으로 지속적인 것이라면 공기조화기를 돌리지 않는듯 한데 맞는지요? 외부의 상대습도가 낮은 기후인데 공기조화기를 가동하고도 실내가 60%가 넘는다는 것은 좀 이해하기가 어려운 수치입니다.

한가지 제일 중요한 것은 다른 모든 것이 다 정확하다는 것을 가정하에 유리의 간봉만 알루미늄이면 패시브하우스 창으로 인증을 받은 것이라 할지라도 무용지물입니다. 간봉이 무엇인지 체크하겠습니다. 별도의 선택을 하지 않으면 기본으로 딸려오지요. 그게 몇 몇 업체들이 하는 큰 실수중에 하나 입니다.
G 김남식 2013.12.31 11:06
댓글내용 확인
M 관리자 2013.12.31 12:26
네.. 알겠습니다.
도면을 요청드린 것은 창호의 위치를 파악하기 위해서 였으며, 시공팀과 설계팀을 여쭈어 본 것은 저희 협회 소속 회원사라면 사후관리 차원에서 조치를 취해야 하기 때문이었습니다.

벽체 구성은 상황을 파악하는데 별 도움이 되지 못합니다. 창호와의 접합 디테일도면이나, 시공시의 사진이 있어야 상황을 파악가능하기 때문입니다.
잘 아시겠습니다만, "좋은 집"이라고 표현하는 것과 큰 차이가 없습니다.

도면이 없으므로, 글로써 예측가능한 것만 말씀드리겠습니다.

홍도영 선생께서도 적으셨듯이.. 현재 의심이 가는 부분은 시공 후 환기량 체크를 하지 않은 듯 보입니다.
즉, 각 실의 풍량과 들어간 공기/나가는 공기량이 전체적으로 발란스가 맞는지를 체크해야 하는데 아마도 그 체크가 누락된 듯 보입니다. 저희 쪽 용어로는 T.A.B 라고 표현합니다.

발란스가 잘 맞았다면, 실내 습도가 그 정도로 높게 지속될 수는 없기 때문입니다.

두번째는 간봉의 문제입니다. 설계 혹은 시공사가 주문시 스텐레스 간봉이나, 실리콘수지간봉 등을 지정해서 발주를 해야 하는데.. 이 역시 반영되지 않은 듯 보입니다.

만약 간봉이 알루미늄이 아니라면, 창호하단 시공 디테일이 잘못되어져 있을 수도 있습니다. 그러나 도면없이 내리는 판단은 옳지 않아 보입니다. 모르시는 분들에게 누가 될 수도 있기 때문입니다.

마지막으로 천창은 저희가 아는 범위내에서 0.8 W/㎡ 에 가까운 창은 아직 국내에 없는 것으로 알고 있습니다. 또한 알루미늄 간봉제품만 있는 것으로 파악되므로, 환기장치의 발란스를 잡아 습도를 어느정도 내리더라도 천창의 결로는 피하기 어려울 것으로 판단됩니다.

이상입니다.
감사합니다.
G 김남식 2013.12.31 13:06
구체적인 자료 없이 제한된 설명만으로 질문을 드려 정확한 진단을 구하기 어려울 것으로 사료됩니다. 그럼에도 여러가지 발생될 수 있는 근거를 주셔서 좋은 참고가 되겠습니다. 창호 간봉은 재료를 지정하여 주문하지는 않았으나, 색상으로 미루어 보아 알루미늄 간봉은 아닌 것으로 보여지며,  천창은 알루미늄 간봉이 맞는데 열관류율이 1.1W/m 정도인 것으로 알고 있습니다. 열회수장치는 평상시 하루에 3회 정도 2시간씩 가동하고 , 취침시에 블라인드는 내리고 자며 간혹 열회수장치를 취침으로 약하게 설정해 놓고 잘 경우에는 결로 정도가 많이 감소하는 편입니다. 열회수장치를 조금 더 자주 강하게 가동하면 결로가 많이 줄어 들 것으로 생각됩니다. 
고맙습니다.
M 관리자 2013.12.31 13:41
네.. 다행이네요..

아마도 환기 발란스만 체크하시면 어느 정도 안정권안에 들어 올 것 같습니다.
시공하시거나 설계하신 분께 환기발란스 체크를 해달라고 요청하시는 것이 좋아 보입니다. 아니면 환기장치 회사에서 하건.. 발란스 체크는 환기장치를 시공한 쪽에서 반드시 해야 하는 사항이기 때문입니다.

그리고, 이미 잘 하고 계시리라 생각되지만 노파심에 말씀드리면,, 환기장치는 저녁 식사 후에 반드시 강하게 돌려주시거나, 자연환기를 강하게 시켜주시는 것이 좋습니다.

아무쪼록 불편함없이 행복하시길 기원하겠습니다.

감사합니다.
G 김남식 2013.12.31 13:58
홍도영 선생님과 관리자님께서 진단하신 내용을 종합해서 나름대로 추정해 보면 실내 환기장치운영에 문제가 있는 것으로 여겨집니다. 그동안 저는 열회수장치를 단순히 환기차원에서 소극적으로 가동했으나, 기밀이 우수한 실내 습도는 간과된 듯합니다. 창호 결로는 공조시설을 적극적으로 잘 운영하면 별 문제 없을 것으로 생각되지만, 천장의 결로는 해결이 쉽지 않을 것 같습니다.  좋은 방안이 없을까요?

새해에는 협회에서 추진하는 모든 일들이 순조롭게 이루어지기를 기원드립니다!
M 관리자 2013.12.31 15:41
실내측 창틀 표면에 검정색 시트지를 바르면 조금은 개선되기는 하나 근본적 해결책은 없습니다.
환기장치를 개선시킨 후 상태를 지켜보고, 물기가 떨어질 정도로 맺히는 것이 아니라면 그냥 두어도 될 듯 합니다.
나중에 상태를 다시 알려주시면 저희가 앞으로의 방향을 설정하는데 있어 도움이 될 수 있을 듯 합니다.

감사합니다.
G 김남식 2014.01.01 10:33
창호업체에서 말하는 패시브전용창호의 개념은 유리창은 물론이고 프레임내부의 단열구조를 보강한 제품으로, 저희집 창호시공업체의 말로는 PVC프레임 내부 구조를 챔버(벌집모양의 실구조)형태로 하여 단열효과를 극대화 하면서 챔버공간을 최소화하여 내부에서의 대류작용으로 인한 결로 방지 효과를 거둘수 있도록 제작되었다고 합니다.
홍도영 선생님께서 말씀하신대로 어제 블라인드를 내리지 않은 상태로 아침에 확인해 보니 확연히 결로 현상이 줄었습니다. 방창호 결로는 열회수장치의 효율적 운용과 블라인드의 개폐로 개선될 여지가 있는데, 다만 거실 평천정에서 박공지붕까지 깔대기 모양의 박스형태로 이어진 천창의 결로를 방지하거나 줄일수 있는 방안이 없어 고민입니다. 천창으로 이어지는 박스내부에 환기시설을 지선으로 설치하는 방법도 고려중 입니다. 외기온도가 많이 내려가면 새벽~오전10시경 까지 낙수량이 많지는 않지만, 가끔씩 맺힌 물방울이 마루바닥에 떨어져 다소 불편함이 있습니다.
현재 국내에 유통되고 있는 천창의 성능과 설치시 정밀시공을 요하는 문제점이 있어 망설이다가 내부구조상 채광이 꼭 필요하여 부득이 천창을 설치했고, 일반적으로 많이 시공되는 미국식 천창보다는 단열효과가 3배 정도 우수하다고 하여 어느 정도 안심하고 설치했는데 아쉬운 점이 있습니다. 날씨가 온화하거나 환기시설을 많이 가동하는 날에는 천창 결로현상이 많이 줄어들기는 하지만, 근본적인 결로 방지 방안이 없는지 검토해 주시면 고맙겠습니다.
여러모로 감사합니다!
M 관리자 2014.01.01 12:31
낙수까지 되는 상황이네요..
천창은 야간의 천공복사 효과로 인해 이론적으로는 외벽 창호 성능보다 1.2배 이상 더 좋아야 합니다. 그러므로 해결책은 야간에 천공으로 빠져나가는 복사열을 차단해 주거나, 천창 주변 온도를 내려 주는 방법이 근본적인 해결방법입니다.

첫번째 방법은 천공복사를 감소시키기 위해 천창 외부에 전동 블라인드 (천 또는 알루미늄) 제품을 달아 주는 것이나 그 비용이 만만치 않습니다.
두번째 방법은 말씀하신데로 천창 바로 하단에 환기장치의 급기구를 만들어서 천창 주변의 온도와 습도를 낮추는 방법입니다. 이 방법이 현실적이긴 한데.. 급/배기구의 발란스가 더 흩어질 가능성이 있으므로 발란스 체크를 병행하여 시공하셔야 합니다.
발란스가 완전히 무너질 경우 천창의 결로는 막을 수 있으나 천창 아래쪽 벽면에 결로가 발생할 수도 있습니다.

감사합니다.
G 홍도영 2014.01.01 22:14
천창이 설치된 곳이 천정과 지붕층 구조 모두를 고려하면 높이가 1미터이상이 될 것이고 이 공간은 습기가 계속 공급이 되는 취약지구이고 표면의 온도가 게속 내려가는 상황이라 배기가 어려운 상황이면 일정기간 후에는 곰팡이 발생도 생길수 있습니다.

문제를 연관된 혹은 줄일수 있는 관련 부분:

1. 천창의 간봉 과 단열정도
2. 실내의 습기발생
3. 천창주위 배기(습기배출)
4. 지속적으로 공기조화기 가동
5. 창호주위 열선설치
6. 창호주위 작은 난방장치 설치
7. 겨울철은 천창외부를 아예 협회에서 말한 것으로 차단하는 경우 (목재 혹은 플라스틱 기타등등)
오픈형 부엌이라면 힘이듭니다. 부엌의 습한 공기가 계속 유입이 될 확율이 높기에 그렇습니다.

전에 노출콘크리트 건물에 생긴 내단열의 곰팡이와 결로발생 사례를 기억하실 겁니다. 그건물의 화장실이 그렇습니다. 일반창은 없고 단지 천창을 했는데 배기구도 보지를 못했습니다. 이와 유사한 경우입니다. 천창주위로 까맣게 곰팡이가 피게 됩니다. 지금 진행중 입니다. 제가 보기에 천창문제는 시급히 해결을 해야 할 겁니다.
일단 공기조화기의 밸런스를 보시고 24시간 가동을 해서 테스트 해 보시지요!
G 김남식 2014.01.02 10:49
여러방안을 소상히 검토해 주셔서 고맙습니다.
천정과 천창간 높이는 하단80~상단120cm 정도 됩니다. 가능하면 거리를 줄이려고 지붕아래쪽에 천창을 설치하고 천정입구 부분을 천창보다 2배이상 넓게 깔대기 모양의 개구부를 만들었습니다. 다행히 몇일간 날씨가 온화하고 환기장치 가동을 전보다 늘려서 인지 오늘은 낙수도 없고 결로 현상도 많이 줄었습니다.
저의 일천한 의견으로 생각되지만, 혹시 천정과 천창사이에 벤트를 설치하여 지붕(더운지붕)속으로 온.습도를 분산시키는 방안은 어떻런지요?
바쁘신 중에 자꾸 상담을 드려 송구합니다.
M 관리자 2014.01.02 11:38
네.. 불가합니다.
가뜩이나 상부 습도가 높은데.. 거기에 통기가 되버리면.. 모든 습기가 그 주위로 몰릴 것입니다.
1 우드진 2014.01.05 12:59
지금 위의 상담중에 있는 주택을 시공한 업자입니다.
늘 좋은 정보와 전문지식을 전해 주는 협회와 특히 상담에 애쓰시는 관리자님께 감사합니다.
 건축주께서 상담진행중임을 알려주시어 뒤늦게내용을 훝어보았습니다. 
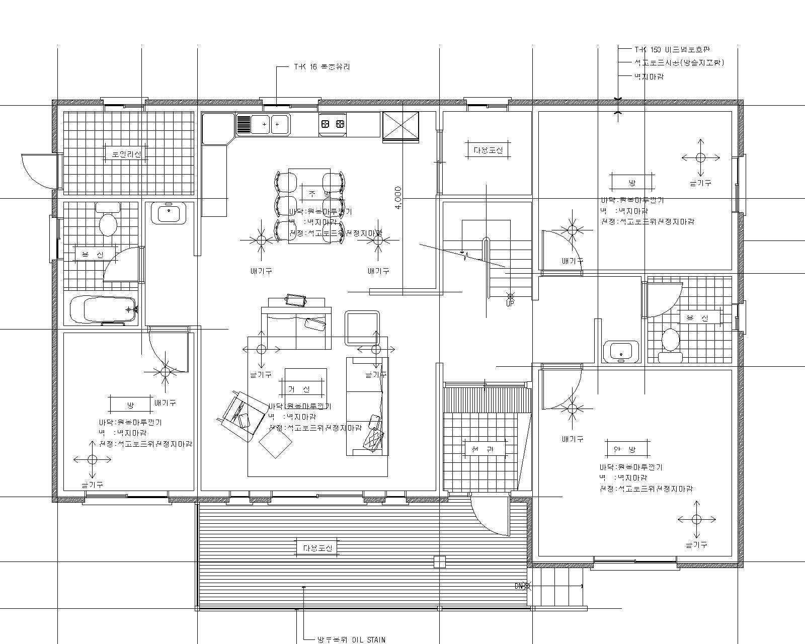
도면이 없어 문제파악에 어려움이 있으신거 같아 상세도면을 시공한 내용을 토대로 그려올립니다. 아쉽게도 창호단면상세는 자료를 챙기지 못해 약식으로 표현했습니다.
 그리고 천창의 결로해소 방안으로 전열환기시설을 설치하거나 유리(단유리 또는 페어유리)를 덧붙히는 방안에 대해 의견을 여쭈고 싶습니다. 많은 답변 주셨지만 한번더 살펴보시고 좋은 처방 안내해 주시면 꼭 참고 반영토록 하겠습니다.
 좋은 주택을 시공할 기회를 주신 건축주께 이런 아쉬움을 드려 송구스럽습니다. 늘 칭찬해 주시고 격려해 주셔서 감사합니다.
1 우드진 2014.01.05 13:00
첨부파일이 하나씩 올려지네요
1 우드진 2014.01.05 13:03
평면도입니다. 급배기위치도 표현했습니다.
1 우드진 2014.01.05 13:13
시공된 사진입니다.
M 관리자 2014.01.06 13:10
안녕하세요..

일단.. 천장 상세도가 없으시니. 거기에 대한 언급은 생략하구요..

환기는.. 설계가 잘못되어 있습니다.. 발란스 체크는 안해보셨죠?
기외정압이 나오기 힘든 구조입니다. 위치도 잘 못되어져 있구요..
잘못되었다는 의미는 일반적 구조에서의 이야기가 아니라.. 고효율 주택을 기준으로 보았을 때 잘못되었다는 의미입니다.. 물론.. 일반적 구조로 생각했을 때도.. 발란스체크의 결과를 봐야 겠지만요...

올려주신.. 그림 중.. 양방향에서 급기를 하는 것은 어려워 보입니다..
단방향 급기도 양이 충분하리라 생각되어지고...왼쪽의 급기구는 관이 급격히 꺽여야 하므로. 좋지 않아 보입니다.
그리고.. 급기를 하는 것이 중요한 것이 아니라.. 얼마큼의 압력이 나올 수 있냐가 더 중요합니다.
현재 환기 배관이 그림 처럼 깔려 있는 상황에서 천창까지 분기를 할 경우 실내 상황이 더 좋지 않아 질 것입니다.

환기는 전반적으로 재 확인 하시기를 바랍니다.

감사합니다.
1 홍도영 2014.01.07 01:36
천창의 경우는 천장하부에 투명 아크릴 아니면 유리로 착탈이 가능하나 기밀하게 시공하는 시스템을 제안해 봅니다. 창호디테일은 따로 언급을 하지요.
G 우드진 2014.01.07 01:36
사실 입주전에 건축주입회하에 업체에서 기기작동설명과 압력및 밸런스체크는 했었습니다. 그부분에 전문지식이 미흡하여 업체관계자의 양호라는 말에 의존하고 믿었구요. 지금 짐작해 주시는 정황으로 보아 그당시 체크가 좋았는지 정확했는지는 모르겠습니다만, 일단  발란스 체크및 천창부분 환기시설 문제로 일정을 업체와 약속해 놓은 상태입니다.
 그전에 위치설계도 문제가 있다하시니 미리 집어보게되어 다행입니다. 고효율주택 기준으로서 좋은 배치는 어떤 배치를 말씀하시는 건지, 무엇이 잘못된걸로 판단되시는지 궁금합니다.
 
 천창부분 그림에서 하단은 급기, 상단은 배기를 계획했던것입니다. 그렇게 생각했던이유는 결로를 발생시키는 습기를 제거하기위해 하단은 히터바람을 불어 건조시키는 역할로서 전열급기를하고 상단은 좁은공간에 갇혀서 정체되어있는 덥고 습한공기를 외부로 배출시켜버릴려는 구상으로 배기를 계획한것입니다.  한편 추가 분기로 인한 부하가 걱정되어 관경을 작은 규격으로 생각해보았구요.
 
혹시 이러한 구상이 밸런스부분이 해소가 되면 긍정적인 작용을 하지 않을까요?  업체와 구체적 상담을 하기전에 미흡한 관련지식들을 가지고자 자꾸 귀찮게합니다.
G 홍도영 2014.01.07 02:28
일단 공기조화기를 자꾸 여기서 언급하는 이유는 지속적인 겨울철 환기는 실내 상대습도를 낮추기에 현재의 문제를 줄이는 하나의 방안이라는 의미이지 공기조화기로 인해 생긴문제는 아닙니다.
유럽식 일반 천창은 현재의 거실과 같은 곳이 아니라 경사지붕 아래에 창문이 없는 곳에 주로 설치하고 습기의 발샹이 높지 않은 공간에 시공을 합니다.

다른 의미로 말하면 현재 어느회사 어느제품이 시공되었는지는 모르겠지만 공기조화기를 통한 환기나 혹은 자연환기를 하지 않으면 현재위치의 천창은 결로가 생길 확율이 높습니다. 간봉의 표면온도도 10도에서 어니면 그 이하가 될 것으로 추측합니다.

그리고 많은 토론이 진행이 되었지만 여전히 무슨제품이고 무슨 물성치를 가진 숫자적 표기는 없습니다. 위에서 언급한 것처럼 저는 천정면에 투명하고 기밀한 시스템을 추가적으로 하는것이 좋을듯 합니다.

그리고 일반창호의 연결디테일안 아쉽네요 내부로 조금 더 들어가서 시공을 하고 외부의 프레임을 단열재로 덮었더라면 상황이 훨 좋았을텐데 조금 아쉽네요.
G 홍도영 2014.01.07 02:49
화장실 배기는요? 배기구가 설치되어 있지 않기에 화장실의 공기가 방으로 부엌으로 유입이 되는 구조입니다. 습기를 배출한다면 습기가 많은 공간에 배기를 해야지요! 침실은 그에 비하면 습기의 발생량이 많지는 않습니다.
심한경우는 냄새가 역류되겠지요. 급배기 계획은 현재 상황에선 공기조화기 전문가의 조언을 받으셔야 할 듯 합니다. 현재로선 경제적인 방법은 보이질 않습니다.
일단 결로 때문에 공조기를 개선하려고 하신다면 발란스만 보시고 천창아래 추가적으로 유리나 아크릴을 시공하는게 제일 경제적으로 보입니다. 
전체적 시스탬이나 컨셉을 모르기에 이는 건축가나 시공사에 불이익을 초래할수가 있기에 개인적으론 조심스럽고 무엇보다 저에너지에 대한 개념이 모호하기에 패시브하우스와 일대일로 비교하는 것은 무리가 있습니다. 일단 드러난 문제에 집중을 하는 것이 좋을듯 합니다.
M 관리자 2014.01.07 10:08
네.. 저도 같은 의견이면서 조금은 다른 의견입니다. (본질적으로는 같겠습니다만...)

논의를 다시 처음으로 돌리면..
겨울철에 만약 환기장치가 정상적으로 작동을 한다면... 실내습도가 높아질 확율은 낮습니다.
만약 정상작동 함에도 습도가 지속적으로 높다면 다시 원인을 찾아야 겠죠.

그리고 그 연장선인지 아닌지는 봐야 겠습니다만... 여러 요인의 결과물로써 천창의 결로라는 형태로 발현된 것입니다.
즉, 이리 말씀드리는 것은 실내의 환경을 정상적 상태로 만들어 두고서 원인을 하나 하나 해결해 나가는 것이 합리적이라 생각했기 때문입니다.

만약 급배기구를 천창 주변에 설치하고서도 문제가 해결되지 않으면... 배기구를 시공하는 시간과 비용 등 ...많은 수고가 무용지물이 되기 때문입니다. 그래서 하나 하나 해결을 하는데 있어서 일단 전체적인 영향을 미치고 있는 환기장치부터 손을 보고 천창의 문제에 매달리자.... 라고 생각한 것입니다.

하지만 홍선생님께서 천창의 문제를 별도로 떼어서 해결하자고 하신 것은 천창의 설치 개념도? (물론 창호의 성능은 아직도 오리무중이긴하지만...)로 볼 때 실내 습도가 안정적일지라도 결로가 생길 수 밖에 없는 구조로 보이기 때문일 것입니다. 즉, 충분히 별개로 생각해도 될 만한 근거가 있다고 판단하신 것이고. 그래서 천창에 덧대는 방식을 거론하신 것일테구요..
비록 환기장치 발란스에 문제가 있다고 하더라도, 어차피 천창은 해결되어야 하고... 급/배기구를 설치하는 것은 말씀드린 바와 같이 우려스럽기 때문에 최소한의 방법으로 문제를 해소하고 환기 발란스는 별도로 해결하자는 의미로 적으셨고...  그 점은 저도 전적으로 동의하고 있습니다.

다만.. 조금 다른 의견이라고 표현한 것은 홍선생님께서 "기밀"시공이라는 표현을 써주셨는데.. 여기에는 사실 많은 의미가 들어 있습니다.
실내 측에 유리 등을 덧대면.. 천창의 온도는 더 많이 내려가기 때문에.. "기밀"하지 않으면.. 그 역시 그 사이에 결로가 생길 수 밖에 없기 때문입니다. 만약 이 방식을 채택하신다면.. 꽤 신경을 써서 "기밀"하게 시공해 주시거나.. 아니면.. 언제든 닦아 낼 수 있게 확실히 쉽게 열리는 구조로 하셔야 할 것입니다. (기밀시공을 한다면.. 내부에 제습제 같은 것도 일부 넣어야 할 듯 합니다.)
저의 생각은 이 역시 꽤 오래 고민을 해야하는 문제이므로... 몇일 더 불편하게 생활하더라도...환기부분을 먼저 살피고.. 그래도 문제가 전혀 개선될 여지가 없다면.. 천창에 덧대는 방식을 고려하되 그 기능이 제 역할을 할 수 있도록 잘 만들어야 한다는 의견입니다. 이 점이 조금 다른 의견이라 생각했습니다.

아니면.. 그저 일단 저렴하게 덧댄 후 지켜보는 것도 한 방법일 듯 합니다.
(주택을 두고 무슨 실험하는 듯 이야기해서 건축주께는 죄송합니다.)

그리고 말씀하신 것처럼 급기와 배기를 동시에 두는 것도 좋은 방법은 아닙니다. 이는 현재의 실내 다른 곳의 환기설계와 같은 개념인데요.. (각 방마다 모두 급/배기를 둔 것을 의미합니다.) 그 좁은 공간에 일방향의 지속적인 공기흐름이 생기면.. 급기는 상관없지만.. 배기구 주위로 먼지등에 의한 오염이 쉽게 나타날 것이기 때문입니다. 또한 어느 날 여러가지 요인으로 급기 풍량보다 배기 풍량이 많아 지면.. 실내의 다습한 공기가 더 빠른 속도로 천창 주변에 몰리게 되므로 불가한 방법입니다.

환기 발란스를 언급한 것은 .. 집안 어느 한쪽으로 나온 공기가 집의 다른 쪽 배기구를 통해서 나가게 함으로써 실내 전체를 천천히 순환되는 구조로 설계가 되는 것이 맞기 때문입니다. 그러므로.. 천창도 역시 천창 주변으로 나온 급기가 바로 마주보는 곳으로 빠져 나가는 것이 아닌.. 실내 쪽으로 천천히 나가도록 하는 것이 옳은 방향입니다.
그러므로.. 환기구를 설치하더라도 급기만 설치해서 천창 부분은 항상 +압이 걸리게 하는 것이 맞습니다.

전체 환기 발란스는 앞서 해결하나 뒤에 해결하나 별도로 해결되어야 하구요...

다만.. 제가 앞선 글에서 죄송스럽게 생각하는 것은... 홍선생님이 이야기하신 것 처럼 설계나 시공의 컨셉을 알지 못하는 상황에서 환기장치의 급배기구의 배열만으로 문제점을 지적한 것입니다.
현재처럼 배열을 해도 괜찮은 시스템이 있습니다. 저는 그 정도로 비싼 시스템은 적용하지 않았을 꺼라는 것으로 지레짐작 결론을 내고. 문제가 있다고 지적한 점입니다.
비록 제 생각이 맞더라도 성급한 결론이 아니었나 생각합니다. 그 점 깊이 사과드립니다.
G 김남식 2014.01.07 10:19
몇일전 부터 야간(PM10:00~AM06:00)에 환기시설을 취침으로 설정해 놓고 운전을 하고 나서  아침에 창호와 천창을 확인해 보면 결로현상이 거의 없어졌습니다. 물론 낮에는 2회(1.5~2시간/회) 정도 환기장치를 일반환기로 가동하는데,  결로 현상이 전혀 없습니다.

 당초 환기장치의 시공이 잘못되었다면, 위와 같이 환기장치를 가동해도 개선효과가 적어야 하는데 ... 상당히 개선되는 것을 보면 설계시공의 오류 보다는 사후 운용의 문제가 크지 않았나 하는 생각도 듭니다.

여러차례 지적된 환기 발란스 문제는 이번 기회에 다시 한번 점검해 보는 것이 좋을 것으로 사료됩니다. 결로방지 방안으로 천창 아래 유리나 아크릴 추가 설치는 기밀하게 시공되어야 한다고 하셨는데, 유리접합 부위만 기밀시공 하면 되는지 아니면 천창과 추가 설치되는 유리 사이 공간이 진공에 가까운 기밀을 유지해야 되는지 또 천창과의 간격은 어느 정도가 적정한지 궁금하며, 죄송하지만 약식으로라도 상세도면을 올려 주시면 고맙겠습니다.

참고로 천장과 천창까지 이어지는 채광통로 벽체는 루나우드(12m/m)로 시공되어 있습니다. 관심을 갖고 성의있게 여러 방안을 말씀해 주셔서 감사드립니다!
M 관리자 2014.01.07 11:16
네..다행입니다.
조금 더 지켜보시죠... 요즘 야외 기온이 꽤 높은 편이니..

운용의 문제가 있었던 것도 맞습니다. 환기장치는 주무시는 동안 트시는 것이 환기장치를 넣는 주요 이유입니다. 다만.. 잘 때 찬기운을 느낄 수 있기 때문에 환기설계를 맞게 해야 한다는 의미입니다.

어차피 자연상태에서 진공이라는 상태는 근처까지 가지도 못합니다. 그러므로 통상적인 기밀시공을 이야기하는 것이구요... 창호와의 간격은 이 곳에서 딱잡아 내기 불가능합니다. 어차피 그 사이에 있는 벽체로 투습이 되기 때문에.. 제 생각은.. 더 추운 날에도 결로가 없다면.. 덧대지 않는 것도 좋은 방안일 것입니다. 즉, 직접적인 시공은 좀 더 지켜본 뒤에 행동으로 옮기시길 권해드립니다.
감사합니다.
G 홍도영 2014.01.07 16:04
퇴근하면서 올린글의 목적어가 생략되면서 엉뚱한 방향으로 흘러 아침에 많이 당황했습니다. 전 협회의 제안 의견에 동의하고, 같습니다.
제 글은 사실은 건축주에게 드리는 글이었습니다.
저의 짧은 소견으로 불필요한 문제가 시공사와 생길수 있다고 보았기 때문이고 이는 처음의 결로문제를 벗어나 공기조화기 배관으로 이어졌기에 원래의 가장 기본적인 것은 잊고 다른것에 문제가 옮겨가는 것은 아닌가? 자칫 다른 시공상의 문제까지 논의 되는 것은 아닌가? 라는 노파심에 그리 건축주에게 드린 말씀이었습니다.
저에너지라 표현속에 성능도 모르고 거기에 건축주가 패시브까지 혹 원하는 것은 아닌지? 기타의 조바심이 생겨서 중간에 한 번 언급한 것임을 알려드렸습니다. 그리고 약식이라는 상세도면 역시 시공자나 건축가가 작성을 하면 검토해 드릴수는 있습니다. 그게 바른 순서입니다.
다른 사람의 일을 제가 하면 건축주에겐 바로 검토에 있어 도움이 되겠지만 장기적인 면을 본다면 올바른 발전방향은 아닙니다. 이에 대한 이해를 바랍니다.
M 관리자 2014.01.07 21:38
제가 못한 이야기를 홍선생님이 마저 해 주셨네요...

맨 마지막 문단이 저희가 고민해야할 숙제인듯 합니다. 신뢰의 균형이라고 생각합니다.
사실 건축주나 이 집을 시공하신 시공사나 또 이렇게 이야기를 하고 있는 저희나.. 모두 잘 되기위한 노력을 한 것인데.. 그 영역의 모호함으로 인해 자칫 다른 분께는 상처가 될 수도 있어 항상 조심스럽기 그지 없습니다.

저 역시 전적으로 동감합니다.
약식 상세도 라는 것도 없거니와.. 그 범위까지 들어갈 경우 장기적으로는 결국 모두에게 짐이 될 가능성이 높아 보입니다.

항상 좋은 의견 감사드립니다.
M 관리자 2014.01.08 11:06
김남식선생님
좋은 상담과 여러가지 좋은 의견 감사드립니다.
의견주신데로 열심히 정진하도록 하겠습니다.
시공하신 분도 이렇게 글을 올리기가 쉽지 않으신데. . .  모든 분들이 이렇듯 좋은 가르침을 주시니 항상 감사드립니다.
1 우드진 2014.01.09 00:42
홍도영님과 관리자님의 의견감사합니다. 이번 상담을 계기로 부족한 지식을 더 채울수 있어서  상황을 긍정적으로 봅니다. 업체와의 상담도 하고 건축주님과 함께 충분한 관찰을 더하고 의견을 함께 나누어 상황을 처리해야 하겠습니다.
 이렇게도 적극적인 상담 감동이네요...
G 김남식 2014.01.09 10:13
다양하고 복잡한 질문과 의견을 전문가 관점에서 균형감 있게 답변을 주시기가 매우 어려울 것으로 짐작이 되며, 오직 사명감을 가지고 협회를 운영하는 분들의 애로와 고충이 크리라 생각됩니다.
한가지 개인적인 제안을 드린다면,
패시브(저에너지)건축의 주요 공종(지붕,창호,벽체,기초 등)에 대한 표준시방서와 상세도면, 하자사례 등을 담은 소책자를 만들어 유료로 배포하면 많은 분들에게 좋은 지침서가 될 것 같습니다.
물론 책을 출간하는 데에는 많은 노력과 경비, 전문인력이 소요되는 일이지만,
그동안 협회에서 수집.보유하고 있는 자료와 정보 그리고 전문가의 협조를 받으시면 가능할 것으로 여겨집니다.
감사합니다!
M 관리자 2014.01.09 22:18
네.. 안그래도 하나씩 준비하고 있습니다.

시방서는 좀 더 시간이 걸릴 듯 한데.. 상세도와 하자사례는 아마도 올해 상반기 안에 준비가 될 것입니다.
다 되면 협회 홈페이지에 공지토록 하겠습니다.
조언 감사드립니다.
G 김남식 2014.01.11 10:40
혹한이 몇일째 이어지는 야간에 환기장치를 취침으로 설정하고 운전한 후 아침에 창호를 확인해 보니 다행히 결로가 전혀 발생되지 않았습니다.
다만 천창에는 가장자리에 약간 결로 현상이 남아 있었지만 해가 뜨면 그마저 말끔하게 사라져 버립니다. 생활에는 거의 지장이 없는 정도여서 금년 겨울에는 별 다른 조치없이 지내려고 합니다. 환기의 중요성을 다시 한번 절감하며 그동안 여러가지 방안과 문제점을 다각도로 검토해 주신 관리자님과 홍선생님께 진심으로 감사드립니다.
그리고 어려운 여건 속에서 주택을 최선을 다해 정성껏 시공해 주신 "우드선"님과 "엔썸"창호, "쎌파"열회수장치 등 자재공급업체에도 깊이 감사드립니다.
M 관리자 2014.01.11 21:45
네.. 일단 결과가 좋아서 다행입니다.
그 동안 여러가지 조치를 하시느라 고생하셨습니다.
감사합니다.
G 김남식 2014.01.23 10:30
어제 환기장치 공급업체(셀파씨앤씨)에서 방문하여 전반적인 환기밸런스를 체크해 보았는데, 다행히 이상이 없었습니다.
다만 위에서 지적하신 내용중에는 패시브건축을 기준으로 시공상 문제점을 말씀하신 것으로 이해되는데, 저에너지 주택내에서도 어느 정도의 쾌적성을 원하는 이중적인 건축주 입장에서 보면 그 기준을 다소 벗어나더라도 큰 무리가 없다고 생각됩니다.
현재 주택의 단열성능이나 쾌적성 모두 개인적으로 만족할 만한 수준입니다.
창호결로는 환기장치 적정 가동으로 해결되었고, 약간의 천창결로 문제는 천창 바로 아래에 급기구만 분기(65m/m) 설치하는 방안을 공급업체와 상담했는데, 압력과 밸런스 등 전반적인 환기시설 운용에 문제점이 없는 것으로 검토되어 시공 준비중에 있습니다.
M 관리자 2014.01.23 11:57
네.. 다행입니다.
신경쓰시고 다시 글을 올려 주시니 감사합니다. 안그래도 궁금해 했었습니다.

위의 지적은 건축주의 쾌적감과는 별게로 엔지니어가 지켜야 하는 원칙을 벗어났기에 말씀드렸던 것입니다.
이는 사실 독일과 같이 건축주와 공급사가 첨예한 대립에 섰을 때, 원칙에서 누가 벗어났느냐가 중요한 판단기준이 되기 때문입니다.

지적할 수 있을 때 지적을 해두어야 해당 회사의 발전이 있다는 생각에 그리하였습니다.
놀라게 해드려 송그스럽니다.

해당 회사와 오래 대화를 나누었습니다. 점차 개선되리라 희망하고 있습니다.
사실 그 회사만의 실수도 아닐 것입니다.. 시장 전반에서 저희같이 전문가라고 주장하는 사람들이 제 역할을 못하는 탓일겁니다.

암튼.. (말이 쓸데없이 길어 졌네요...)

정리해서 다시 글 올려주셔서 감사드리고, 지속적으로 안정적 실내환경이 유지되었으면 하는 바램입니다.
건축주분을 비롯하여 ..관계하신 다른 모든 분들께도.. 공부하게 해 주셔서 감사드립니다.
G 김남식 2014.01.23 15:29
지속적인 관심에 감사드립니다!
고단열과 쾌적성은 서로 상충되는 개념이면서 두가지 모두 완벽하게 구현하기는 기술적인 한계가 있다고 봅니다.
건축주의 요구를 다 수용하기는 어렵지만, 기본적인 공법을 유지하면서 두가지 요소를 적절히 반영하는 방안을 도출하는 것이 현실적인 과제인 것 같습니다.
위에서 언급하신 말씀들은 엔지니어로서의 역할과 책임에서 볼때 당연히 지적해야 할 전문가 의견으로 많은 분들에게 도움이 되었고 개인적으로도 고맙게 생각합니다.
여러모로 감사합니다!
M 관리자 2014.01.23 17:06
넵.. 감사드립니다.
G 임태규 2016.03.02 22:47
오랜전 논의됐던 문답이지만, 내용을 보다보니 의아한 점이 생겨서요.
관리자님의 답변 중에,
'... 천공복사를 감소시키기 위해 천창 외부에 전동 블라인드 (천 또는 알루미늄) 제품을 달아 주는 것이나 ... ' 라는 내용이 있는데요,
제가 듣기로 외벽에 설치된 창에 블라인드를 설치할 경우 실외에 설치하는 이유는 복사열이 실내로 유입되기 전에 차단하는 것이 효율적이기 때문으로 압니다. 그렇다면, 밤에 실내의 열기가 천공복사를 통해 외부로 빠져나가는 것을 방지하려면 천창의 경우는 내부에 블라인드를 설치해야 하는 것 아닌지요?
M 관리자 2016.03.02 23:14
아.. 네..
요는.. 실내 열을 뺏기는 것이 아니라. 창호 외부 표면의 온도가 급격히 떨어지는 것을 막아 창호의 결로가 생기는 것을 방지하고자 하는 조치이기 때문입니다.
만약 실내측에 블라인드를 하면, 창호는 실내 측으로 부터 기존 보다 열을 받지 못해 창호의 온도는 더 내려갈 것입니다.
1 사토 2016.03.04 11:17
아~ 그렇군요...
자꾸 주목적을 까먹네요 --;
그런데, '창호 외부 표면의 온도'가  아니라 '창호 내부 표면의 온도'가 맞는 거죠?
자꾸 헷갈려서요^^
고맙습니다~
M 관리자 2016.03.04 11:25
ㅎ 네
원인은 외부지만 결과는 실내측에 나타나니. .  결국 맞습니다. ^^
Category