지붕 외단열 공사시 난간 고정후 단열재 부착에 관한 질문

설계/시공관련 질문

질문 전에 먼저 검색을 해주세요.

 

지붕 외단열 공사시 난간 고정후 단열재 부착에 관한 질문

지붕 외단열 공사시에 난간을 파라펫의 구체 부분에 지지철판과 볼트조임 등으로 고정한 후 압출법 보온판으로 단열재 시공을 할 경우에 지지철판이나 볼트, 연결 철물의 요철이 단열재와 접합되는 부분이 기밀하게 시공되기 어려울 것 같은데요 어떻게 기밀하게 시공하나요? 

첨부된 이미지는 인터넷 검색하던 중 독일의 한 웹사이트에 발견했습니다. 압출법 보온판을 일단 주사위 형태로 파내고 파라펫에 부착후 보온판과 연결 철물간의 틈새는 우레탄폼으로 메우나요? 아니면 그 정도의 간극은 무시해도 되나요? 

이경우 뿐만 아니라 외단열 공사를 할 시에 가설물 등을 ( 난간,실외기 받침대, 도시가스관이나 선홈통 등등) 벽체 또는  지붕의 구체에 고정시켜야 하는 경우 시공방식이 궁금하여 질문해봅니다. 

역시 독일 업체에서 제공하는 제품의 사례들을 첨부할께요. (모두다 독일어 들이라서 좀 그렇지만 그림으로도 어느정도 어떻게 시공하는지 알 수 있을거 같아서 첨부합니다) 

Comments

M 관리자 2014.01.04 23:03
안녕하세요..

질문이 조금 이상합니다만... 목표가 패시브하우스이신지.. 아니면.. 최소한의 하자를 막자는 것이신지 궁금합니다.
G 박달재 2014.01.05 08:53
외단열적용 시 선홈통이나 난간 등 선시공된 시설물 부위는 단열재를 파내야 할 것이고, 이의 열손실을 최소화 하기 위해 우레탄 폼 등으로 단열재 손실부분을 채우는 것이 일반적이지 않을까요?

이런 시설물을 거치하기 위한 지지용 철판이나 앵커에 의한 열교는 피할 수 없을 것입니다.

언제나 그놈의 열교가 문제인 것 같습니다.
엔지니어들의 숙제죠.
1 아파랏체 2014.01.05 09:54
패시브 하우스 수준은 아니구요 외단열을 하되 하자(건축물리적으로나 미적으로나)가 최소화된 건물을 목표로 하고 있습니다. 박달재님 답변 감사해요.
6 오대석 2014.01.05 11:21
안녕하십니까

저도 아직 공부중이라 정확한 도움이 될지는 모르겠지만

목표가 꼭 패시브하우스가 아니시라면 파라펫 난간의 경우는 올려주신 도면으로 시공하여도 큰 문제는 없지 않을까 생각합니다.

1. 기밀층 파괴
    기밀층은 예상컨테 구조체 하부에서 생성될것 같아 무관할것 같습니다.

2. 열교 문제
    (먼저 외단열 건출물에서 외부 등이나 CCTV등과 같은 부착물을 설치하기 위한 전문 열교차단용 제품이 있습니다.)
    올려주신 방법에서 열교를 최소화 하기 위해서는
    단열패드를 브라켓과 구조체 사이에 설치하고 브라켓과 앵커를
    열전도율이 비교적 적은 스텐네스스틸로 사용하면 더 좋으 것 같습니다.
    그러나 설치되는 부위가 파라펫 부분이고, 꼭 패시브하우스가 목표가 아니라면
    경제성 면에서는 고민을 해봐야 할것 같습니다.

    (실외기처럼 무게가 많이 나가는 것은 벽에 받침대를 붙여서 고정하는 방법은 가능하면 피하고
    선홈통의 경우 현장에서 쉽게 적용할 수 있는 방법으로는
    단열재를 고정할때 쓰는 열교 차단용 패스너를 사용해서 고정하는 것이 좋을것 같습니다.)
   
3. 하자 예방
  가장 눈에 들어오는 문제점은 일단 난간 브라켓이 방수층을 통과하는 것이 아닐까 합니다.
  그리서 사례 도면에서 처럼 파라펫 상부를 덮는 철판을 가능한 접하부에서 내밀어 설치하여
  빗물이 스며들지 않도록 하는것이 중요할것 같습니다.

혹 잘못된 내용이 있으면 선배님들의 돌직구 부탁드립니다. ^^
1 아파랏체 2014.01.05 14:43
오대석님 답변 감사해요. 구조가 철근콘크리트라서 슬래브 구체 위에 하는 첫번째 방수로 방습까지 가능하지 않나 싶습니다. 그래서 실내 쪽 기밀층이 추가로 더 필요하지 않을 것도 같습니다만. 지금하고 있는 계획안에서 파라펫에 철제 난간이 고정되는데 파라펫의 측면이든 상부든 어느 면을 이용하더라도 방수층이 뚫리게 되네요. 만약 아스팔트 시트 방수나 PVC 방수를 사용한다면 브레킷을 하나하나 추가적으로 방수를 덧대줘야 할텐데 현장에서 가능할런지, 그리고 하자 위험성이 얼마나 될런지 경험이 없어서 걱정하고 있습니다.
3 이명래 2014.01.06 00:49
제시된 도면과 같이 시공을 하실 건가요?

즉, 단열재 위에 방수층이 형성된다면 단열재는 어떤 것이고 적용되는 방수재는 어느 것이냐가 관건일 수 있을 것으로 보여 집니다.

단열재가 암면이나 유리섬유같은 섬유계라면 흡습에 문제가 있을 것이고, 유기질계 판상형(EPS 또는 XPS)이라면 그 위에 어떤 방수공법이 적용되어야 할 것인지부터 고민은 시작되어야 할 것으로 여겨집니다.

바닥은 누름 층이 있으나 치켜 올림 부분에 별도의 방수 보호층이 설치되지 않는 이해하기 어려운 형상의 도면입니다.

독일에서는 단열재나 방수재를 우리와 달리하면서 그렇게 시공하는지 모르겠으나 우리나라에서 일반적으로 적용되는 단열재나 방수재료로는 마감이 쉽잖을 것으로 보여 집니다.

그리고 방수와 단열이 선시공인지 아니면 거치대가 선시공인지 여부에 따라서도 마무리하는 방법이 달라질 수도 있을 것입니다.

저렇듯 복잡부위는 방수보강에 대한 디테일이 필요할 것이며 마감재 입면을 우레탄이나 변성실리콘 등 내후성이 우수한 실란트로 틈을 채운 후 금속캪으로 막아주는 것도 하나의 방법일 수 있습니다.

다시 말씀드리지만 도면에서 치켜 올림부분을 노출방수공법으로 표현한 것이 익숙하지 않습니다.
독일 사람들이 기본에 충실한 것을 인정하지만 우리와는 환경이나 습성이 다를 수 있다는 뜻입니다.

아무리 우수한 방수재라도 외기에 노출되면 대기 중 여러 인자들에 의해 열화(파손)하기 쉽고, 틈이 발생되면 물은 스며들어 중력에 의해 옮겨다니면서 누수되기 때문에 가능하다면 방수층의 노출은 피하는 것이 상책이라고 할 수 있을 것입니다.

훼손된 단열재는 우레탄 foam으로 보강하는 방법 이외 별다른 방법이 없을 것으로 보여 집니다.
M 관리자 2014.01.06 10:23
안녕하세요..
독일의 경우 파라펫의 노출 방수에 사용되는 아스팔트쉬트는 표면에 돌가루가 포함된 코팅이 되어져 있는 것을 사용합니다. (러시아에 있는 건물 은 지붕 전체를 노출방수하기 때문에 독일 보다 더 쉽게 볼 수 있습니다.)
그게 우리나라에는 없습니다. 우리는 땅이 좁아...지붕을 사용하는 공간으로 생각하는 경향이 높은데 기인하는 듯 한데... 그러므로 쉬트 노출의 경험이 없다고 보시면 될 듯 합니다.

그러므로,, 올려주신 디테일은 이명래선생님이 말씀하신 것처럼 우리나라에 직접 적용하기에는 무리가 있어 보입니다.

--------------------------------

파라펫의 난간 상세에 대해서는 협회 내부적으로..여러가지 시도를 해 보았었는데...

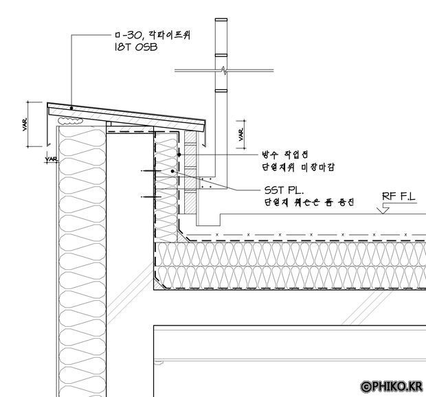
일단... 올려주신 그림 중 아래 그림처럼 단열재 위에 설치되는 것은 독일에서도 단열재가 두꺼워 질 경우 시공을 안하고 있는 방법입니다. (그림에서 처럼 최대 120mm 이나.. 전용 슬리브가 있는 경우에만 가능)

가능한 방법은 위 쪽의 그림처럼 미리 앵커링을 하고 나서.. 단열공사를 하는 방법인데... 이 경우 외방수층에 대한 고려에서 상당히 여러가지 디테일이 나올 수 있습니다.

일단 이 글을 보시는 다른 분들을 위해 그림을 번역해서 올려 놓습니다.
.
M 관리자 2014.01.06 12:23
철물로 인한 단열재 훼손은 폼으로 충진합니다.

외단열 공사 시에 가설물은

난간 : 기본적으로 SST 볼트와 플레이트를 사용, 접합방식은 특별한 것이 없음
실외기 받침대 : 무조건 지면이나, 옥상에 놓음
도시가스관이나 선홈통 : 올려주신 Brillux 제품과 같은 것이 국내에 들어와 있습니다. 자재정보란에 가시면 엔섬이라는 회사에 연락하시면 됩니다.

아마도.. 실현 가능한 범위내에서 최선은 아래와 같을 듯 합니다.
.
1 아파랏체 2014.01.06 14:22
이번에도 많은 도움주셔서 감사합니다. 1층이 주차, 근린시설인 다세대에서 4층 지붕테라스 부분의 난간에 대한 고민을 하던 중에 드린 질문들이었습니다. 정북일조사선제한 때문에 슬래브 구체의 윗면에서 파라펫 최종 마감재 레벨까지를 가능한 컴팩트하게 할 수 있는 파라펫 구성을 고민중인데 조만간 정리가 되면 올려보도록 하겠습니다.
1 아파랏체 2014.01.06 14:24
그래야지만 안 그래도 높지 않은 2,3층의 원룸 층고를 조금이라도 더 확보할 수 있으니까요.
아.. 그리고 앞으로는 번역되어진 상태로 업로드를 해야겠습니다.
M 관리자 2014.01.06 14:27
만약.. 파라펫 높이가 문제가 된다면..

저같으면.. 파라펫에 난간을 달지 않고.. 파라펫 높이를 최소화한 후에.. (FL+200 정도만..)
하부 무근 콘크리트에 일부 배근을 하고.. 그 배근에 난간철물을 고정하고 무근을 치는 방법을 택할 듯 합니다.

그게.. 더 쉽고 안전한 방법으로 보여집니다.
1 아파랏체 2014.01.06 15:04
그런데 지구단위계획으로 옥상녹화가 의무화되어 있어서 외단열 + 옥상녹화 내지는 자갈 마감까지 생각하면 450-500mm 높이의 파라펫은 불가피할 듯 합니다. 말씀하신 방법은 아래층부터 슬래브 + 구배몰탈 + 1차방수 + 지붕외단열 + 2차방수 + 무근콘크리트로 할 시에 마지막 무근콘크리트에 일부 배근을 하고 난간을 고정하라는 말씀이시죠?
1 아파랏체 2014.01.06 15:05
아참. 그리고 저번에 가입할 때 닉네임으로 아파랏체를 썼었는데 실명으로 바꾸려고 마이페이지 정보수정에 가도 닉네임을 새로 변경할 수는 없던데 글쓴이가 어떻게 하면 실명으로 보이게 하나요?
M 관리자 2014.01.06 15:15
네. 그렇습니다..
그게 가장 합리적으로 보입니다.. 파라펫은 최소화하구요...
만약.. 난간철물 부분에 옥상녹화가 들어가야 하고.. 난간이 일반 철 이라면..
난간 주변에는 자갈을 설치해 주시면.. 오랫동안 깨끗함을 유지할 수 있을 듯 합니다.

질문란을 제외하고는 실명으로 보여집니다만...가입 후 한달 후엔 변경가능합니다.
1 아파랏체 2014.01.06 15:18
답변 감사합니다.
3 이명래 2014.01.06 15:38
파라펫(방수턱) 벽면에 난간거치대를 설치하여 잘못된 사례 두 가지를 사진으로 올려 드리겠습니다.

방수층이 파단되어 누수가 발생한 현장입니다.
M 관리자 2014.01.06 15:41
ㅎ.. 네.. 좋은 사진 감사합니다.
공사를 무모하게 했네요.. 역시 방수는 그 기술과 소재의 문제라기 보다는 사람의 문제임을 다시금 느낍니다.
3 이명래 2014.01.06 15:45
아래 사진은 위 사진과 다른 현장인데,  노출방수 시트 위 거치대 틈을 우레탄 실란트로 봉쇄하여 누수 메카니즘의 하나인 틈을 차단시켜 외부수의 유입을 막았습니다.

정성이죠.
밀실하게 시공하려는 노력 말씀입니다.

참고하시기 바랍니다.
1 아파랏체 2014.01.06 15:53
사진 감사드립니다. :)
3 이명래 2014.01.06 16:03
위에서 관리자님께서 거론하신대로 방수와 직접적 관련 있는 부분에 난간 거치대를 설치하는 것 저도 찬성하지 않습니다.

맨 처음 질문자께서 말씀하신 바와 같이 방수나 단열 모두 세심한 시공이 필요한 부분이고, 부재에 외력 작용 시 방수층 파단우려가 매우 높으며 보수가 아렵다는 특성을 갖고 있습니다.

허나 조건이 피할 수 없다면, 단열이나 방수공사에 우선하여 거치대를 앵커링하는 것이 바른 순서일 것으로 여겨 집니다. 곧 거치대가 선시공된 이후 방수를 하고 단열재를 설치한 다음  마무리를 하는 것을 말씀드리는 것입니다.
1 아파랏체 2014.01.07 11:02
지붕테라스와 각 세대마다 발코니까지 있어 벌써부터 난간공사, 단열/방수 공사 관련해서 걱정이네요. ㅠㅠ
좋은 조언 잘 듣고 반영해서 계획해보도록 해야겠습니다. 감사해요.
1 아파랏체 2014.01.11 15:38
관리자님, 위의 파라펫 도면에서 방수공사 전 단열재 위에 미장마감을 해야한다고 표기되었는데 어떤 이유에서인가요?그리고 위 도면에서 무근콘크리트 하부에 있는 방수층은 시트방수 계열이겠지요? 만약 무근콘크리트 위에 우레탄 도막방수를 주된 방수층 (구체 위의 방수층은 백업용으로 간주한다면)으로 시공한다면 파라펫의 측면 외단열재에 바로 시공은 못할테니 결국 도면에서 그려진 조적에 미장을 하고 바닥의 우레탄방수를 끌어올려 시공하는게 옳은 건가요?
M 관리자 2014.01.11 22:29
안녕하세요..
이유는 시트와의 접착을 확실히 해주기 위해서 입니다. 이는 생략해도 무방합니다만, 시공자와 상의를 하셔야 합니다.
우레탄 방수는 그래야 할 듯 합니다. 다만 위에 언급했듯이 수증기압을 버틸 무근층이 없으므로, 통기층은 확실히 계획에 반영되어야 합니다.
1 아파랏체 2014.01.12 10:39
네. 감사합니다.
Category