시스템 창호 관련 조언을 구하고 싶습니다

설계/시공관련 질문

질문 전에 먼저 검색을 해주세요.

 

시스템 창호 관련 조언을 구하고 싶습니다

안녕하세요 관리자님! 언제나 노고에 정말로 감사드립니다.

 

늘 로그인도 안한 채로 글만 읽고 지내다가 처음으로 질문드려봅니다.

그간 해외에서 지내다가 한국에서 정착해 아파트에 살게 되었는데..

 

리모델링 엄두를 못내다가 정대표님의 글들을 읽고 용기를 내게 되었습니다 ^^;;

 


1. 현상황

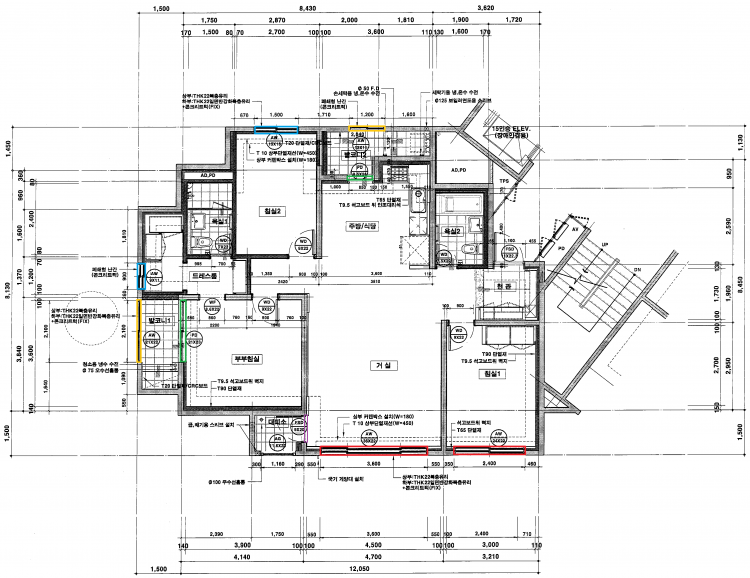
상기 도면에서 보시다시피 아파트임에도 불구하고 3면이 외기와 직접으로 면하는 구조입니다.

오로지 동쪽 면만 계단실을 통해 외기와 간접으로 면하고 있습니다..

그나마 다행인건 발코니를 추가로 확장시공한 것이 아닌, 07년 당시에 확장형 타입으로 분양이 되었습니다.

(그래서 난방배관을 기본적으로 깔아놓고 방통을 친 것으로 판단됩니다)

아파트다보니 내단열이긴 하지만 확장형으로 분양되어 추가단열 공사의 필요성은 낮다고 생각중입니다.

문제는 창호가 이중창이긴 하나 AL재질에 슬라이딩 형식이다보니 단열에 상당한 손해를 보고있습니다.

특히 보라색으로 표기한 방화문의 경우 철제다 보니 근처에 가면 한기가 으슬으슬 느껴질 정도입니다.

가장 큰 문제는, 빨간색으로 표기한 거실/침실1 창문이 남향이라 여름만 되면 찜통 더위로 고생중입니다. 

이 문제들의 해결책들을 몇가지 생각해보았는데 혹시나 미비한 점이 있으면 조언 부탁드립니다.

 

2. 대책(안)

  가. 파란색 + 빨간색 창호들을 시스템 창호로 교체

  나. 빨간색 남향 창호들에 EVB? 롤링셔터를 설치하거나 블라인드 내장형 창호로 설치

  다. 초록색 외기 간접 도어들을 터닝도어(?)로 교체

  라. 보라색 방화문은 대피소라 철거가 불가능할 것으로 예상되니 추가적인 도어를 실내에 덧문으로 설치

  마. 노란색 창호는 그대로???

 

3. 질문

  가. 이 정도면 괜찮은 대책이 될까요? 건설현장에서 일해보긴 했지만 주거용은 처음이라 모든 것이 생소합니다 ㅠㅠㅠㅠ

  나. 남향 창호들을 일반 시스템창호로 교체 후 EVB나 롤링셔터를 설치하거나, 혹은 블라인드 내장형 시스템창호로 교체하는 것 둘중 어떤 것이 더 경제적인 선택일까요?

집 위치는 2층이며, 외부 블라인드 설치에 대한 허락은 관리사무실에 미리 얘기하여 받아둔 상태입니다.

혹시 설치 공간이 부족하려나 싶어 상/하단 사진도 찍어두었습니다.

3_거실창호_상단.jpg

 

3_거실창호_하단.jpg

 

  다. 발코니에 접하는 초록색 도어들과 방화문에 덧문으로 설치할 도어는 어떤 스펙으로 교체하는 것이 효율적일까요? 일단은 다른 창호들을 시스템창호로 교체하면서 같은 업체의 시스템도어를 설치해야하는 것인가 생각중입니다.

 라. 위 질문에 연결되는 내용입니다만, 굳이 외기에 접하는 발코니의 노란색 창호들도 교체필요성이 있을까요? 추가적인 발코니 확장공사는 계획에 없기 때문에 이대로 두어도 되지 않나.. 짐작만 하고 있습니다.

 

4.

늘 자료실의 방대한 자료들과 유튜브 영상들을 보며 언젠가는 패시브하우스 주택을 지어살겠다는 꿈을 꾸긴 했지만, 현실이 아파트라 스스로도 안타깝습니다 ㅠㅠ

날씨 추운데 건강 조심하시고, 늘 감사드립니다!!

Comments

11 잡자재 01.16 11:48
안녕하세요.
제가 한 것을 보시고 용기를 얻으신 분에게 이런 말씀을 드려 죄송합니다만 창틀을 뜯어내고 재시공시 외부 마감재(석재)를 뜯지 않으면 방수처리를 할 수 없어 누수의 가능성이 있습니다. ㅠㅠ

남측 창을 통한 일사를 막고자 하신다면 외부썬팅필름(고가입니다만 창문 완전 외부에 붙이는 필름이 있습니다.)시공을 하시거나 이중창의 중간에 알루미늄 블라인드를 설치하는 것이 대안이 될 수 있을 것 같습니다. 더해서 지금 설치되어 있는 창호도 독일식 시스템창호만큼은 아닙니다만 단열바가 적용된 알루미늄바로 좋은 창호입니다.

보라색 방화문과 초록색 발코니의 경우 경우 말씀하신 것처럼 내부에 터닝도어 혹은 시스템창호를 시공하면 여름과 겨울 모두 한결 나으실겁니다.
2 레스폴 01.16 14:12
아.. 역시 쉽지 않은 일이었군요 ㅠㅠ 작년 여름에 전기요금이 깜놀할 정도로 나와서 어떻게든 남향창에 외부차양을 더해보려고 했는데 참 아쉽습니다 ㅠㅠ
말씀하신대로 창문 바깥에 필름을 붙이거나 아니면 뭔가 임시적으로라도 외부에서 햇빛을 가릴 방법을 찾아보겠습니다.
방화문과 발코니쪽 도어는 기존안대로 가구요..

이건 정말 여담인데, 피코네 유튜브 볼 때마다 옆에서 집사람이 정대표님 웃음소리가 너무 유쾌하셔서 듣기좋다고 합니다 ㅎㅎㅎ
11 잡자재 01.16 17:45
감사합니다.^^;
M 관리자 01.17 00:51
텃붙이면.. 아래 글의 댓글에 알려 드린 제품은 유의미한 효과가 있습니다.
https://www.phiko.kr/bbs/board.php?bo_table=z4_01&wr_id=75423
2 레스폴 01.17 12:59
아 감사합니다 관리자님. 이런 제품이 나왔는지는 몰랐네요.
저도 쪽지로 연락처를 부탁드려도 되겠습니까?
M 관리자 01.17 16:57
네 쪽지 주세요.
Category