단독주택의 심각한 지하 누수

설계/시공관련 질문

질문 전에 먼저 검색을 해주세요.

 

단독주택의 심각한 지하 누수

G 이지현 15 4,662 2024.08.31 05:02

 

 

안녕하세요.  예전에 매수 고려중인 주택의 지하 누수 문제 한번 상담 드린적이있습니다만 (당시 이미 계약금 낸 상태) 오늘 매수 완료하고 실제 현장에 가보니 생각보다 문제가 심각해 보였습니다.

 

일단 이집은 2010년 준공에  3년전 리모델링을 마친상태입니다. ( 수도배관교체, 보일러분배기 + 보일러교체, 바닥 벽체 다 철거후 하이엔드 인테리어 )

다만 외부 방수나 옥상 방수는 안했더군요.

그리고 외부 조경도 리모델링 하는 과정에서 마당 토사 레벨을 높여서 다양한 식재를 심어둔 상태입니다.

 

 

여하튼 현재 상황은 작년부터 큰 비가 오면서 누수가 시작됐는데 비가 오지 않으면 그나마 축축한

상태이고 큰 비가 내리고 시간이 지나면 물이 발목까지 차오르는 것 같습니다.

지하 바닥에 단차가 있는 구조인데 낮은쪽은 물이 조금 고여있고 높은 쪽도 축축합니다.

벽도 좀 축축한것 같구요.

지하로 내려가는 계단은 꺽인부분까지 물이 차서 썩어 가고 있습니다. (처음 봤을때 보다 심각 )

 

집은 한쪽면이 공원 녹지와  바로 붙어 있는 구조입니다. ( 남쪽 거실창 바로 앞이 공원녹지 )   

 

그래서 방수업자분과 건축시공업하시는분 이렇게 두팀 방문 상담 요청했습니다.

 

첫번째 방수업자분께서 주신 솔루션입니다.

 

- 집 주소를 넣고 이전 네이버 거리뷰를 보았다. 이집 마당의 토사레벨이 많이 높아졌다 (이분 말 듣고 찾아보고 저도 알았습니다.) 아마 그 과정에서 외벽 방수없이 흙을 덮어서 수압이 올라가 밀고 들어왔 을 가능성이 있다. 그래서 일단 주택 외벽은 1m가량 파서 외부방수를 하고(우레아 + 드레인보드 )

유공관을 설치해서 수압을 줄여서 침투를 막아보자.

 

 그리고 내부는 바닥배수로 작업 + 배수판설치 + 수중펌프 + 벽체방수 (인젝션) + 방수미장(침투성) + 단열공간벽  (T80 비드법) +매쉬미장

 

 

두번째 건축업자 솔루션

 

-  이중벽같은건 눈가림이다. 결국 콘크리트벽에 습이 스미고 겨울이 되면 얼고 녹는 과정에서 크랙이 생기고 누수는 더욱 심해지고...그래서 외벽을 싹다 파고 방수하고 단열하고 비닐같은거 씌우고 (거의 신축수준)으로 해야한다.  집수정 겨울에 동결될 수 있으니 권하지 않는다.  지하에 보일러 설치해야한다. 심지어 같이온 사장님은 몇년 살꺼냐고 물으시길래 대충 말씀드렸더니 그럼 신축해라;;; ㅋㅋㅋ ㅠㅠ

 

 

여하튼 그런 상황입니다.

 

 

 그런데 제 생각에 지하는 나름 항온 환경이라서 겨울엔 습이 스미더라도 벽이 차가워질순 있겠지만 동결은 안될것 같은데 정말 지하콘크리트는 겨울엔 얼게될까요?  (예전 어르신들 김치 독을 얕게 묻어둬도 얼진 않았던것 같은데요;;;물론 소금물이라 빙점이 좀더 낮긴하지만요 ㅎㅎ)

 

 

이미 물을 엎질러진상황이라 가장 합리적인 방법을 찾고싶습니다. 위의 방법외에 다양한 의견 매우 환영합니다.  현장은 판교인데 혹시 인근 검증된 방수 업체추천도 대환영입니다!

 

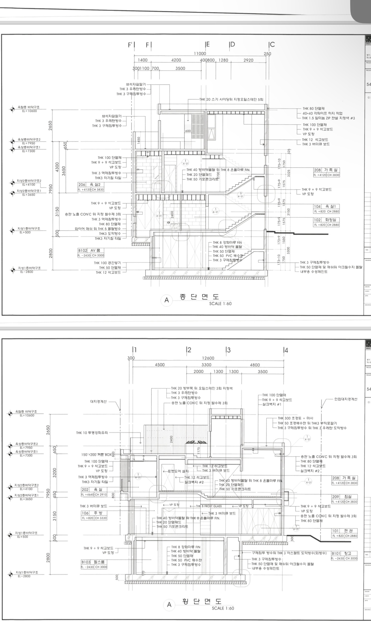
- 참고로 지하 원설계도와 선큰 구조 사진 첨부합니다.

  (도면상에는 바닥 배수판 + 자연배수로 되어있네요. 그런데 자연배수 장소가 지하보다 레벨이 1m가량 높습니다. 그부분은 이해가 안되네요. 아마 파봐야 알것 같습니다 )

 

 

 

 

 


 

Comments

M 관리자 2024.08.31 09:06
앞선 질문글을 찾아서 링크를 적어 주실 수 있으실까요?
글의 일관성을 위해서 필요합니다.
G 이지현 2024.08.31 12:02
회원가입안된 상태라 제 글을 찾기가 힘들어 다시 적습니다.
그때 관리자분꼐선 집수정이 없다면 구매하지 않는 걸 권한다고 하셨어요. 설치는 가능하지만 돈이 많이
드는 공사라고 답변해 주셨습니다!

참고해서 본 질문에 대한 의견도 부탁드립니다!
M 관리자 2024.08.31 12:23
앞선 질문글...
https://www.phiko.kr/bbs/board.php?bo_table=z4_01&wr_id=70516
M 관리자 2024.08.31 12:53
이미 구매를 하신 것을 전제로 말씀드리겠습니다.

이 부분은 기초 콘크리트를 절개해서 집수정을 만들어야 하는 거라서, 시공하시는 분을 직접 찾기 보다는 건축사를 찾아서, 도면을 제대로 그리고 접근을 하시는 것이 맞습니다.

시공을 하시는 분은.. (물론 연결이 된 분은 안그럴 확률도 있지만) .. 누수에 대해서는, 대부분 시공 전과 시공 후의 말이 다를 때가 대부분이라 그렇고, 나중에 팔 때도, 현장을 표현한 도면 조차 없는 건물이 되는 것도 문제가 될 수 있기에 그렇습니다.

적어 주신 두가지 방식 중에서...
굳이 고르자면 첫번째 방식이 맞는데...

우레아방수는 무용하고, 적합하지도 않습니다. 지하 외벽을 파면 습윤상태인데, 우레아방수는 습윤면에 성능을 내지 못하기 때문입니다. (물론 그 분은 "30년 동안 했는데..." 를 시전할 가능성이 있긴 합니다.)

그러므로 (그럴 수 있을지도 감은 없으나) 외부를 판다면 드레인보드 정도만 하는 것으로 정리되는 것이 좋겠습니다.

배수로 작업은 철근의 피복두께를 없애는 거라서, 생각보다 신중히 접근을 해야 합니다. 그래서 건축사가 개입이 되어야 합니다.

수중펌프를 넣는 다는 것은 일종의 집수정을 만든다는 것입니다. 그 것을 어디에 어떻게 만들지를 결정해야 하는데, 그 부분은 기존 주택의 구조도면이 있어야 올바른 판단이 가능합니다.
그래서 더더욱 건축사가 개입되어야 합니다.

이중벽과 배수판을 넣는다면, 벽의 인젝션은 그저 마음의 위안만 줄 뿐, 실제 성능은 없습니다. 물론 있을 수도 있지만, 없을 수도 있기에, 확률에 비용을 쓸 이유는 없습니다.

침투성 액체방수 미장은, 마음의 방수이고요.

그러므로 실제 구체적인 조언을 얻고 싶으시다면, 기초구조평면도, 지하층 구조평면도, 지하층 평면도, 지하층 단면도, 배치도를 올려 주셔야 합니다.
G 이지현 2024.08.31 17:17
답변 감사합니다. 요청하신 자료중 가지고 있는 것들 다 올리겠습니다. 번거로우시더라도 검토 부탁드립니다.
G 이지현 2024.08.31 17:29
단면도
G 이지현 2024.08.31 17:30
공간벽
M 관리자 2024.09.01 10:41
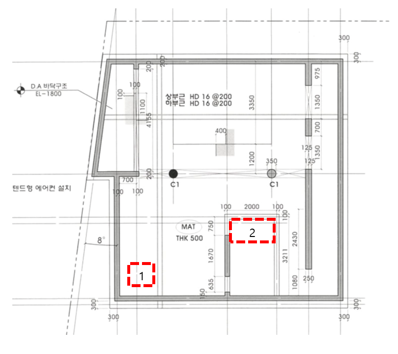
집수정을 만든다면, 아래 두 군데가 후보지로 될 수 있습니다.

1. 실내입니다. 동결의 우려는 없지만, 외벽으로 부터 최소 500mm 는 떨어져서 집수정을 만들어야 하기에 지하 실 사용면적에 영향을 줄 수 있습니다.

2. DA 를 이용하는 방법입니다.
내부면적에는 영향이 없지만 동결의 우려가 있기에, 집수정 자체와 배관단열에 유의해야 합니다.
M 관리자 2024.09.01 10:43
배수파이프는 지하 천장 마감 속에 있을 것으로 추정되는 주방 하수 파이프와 연결을 하면 무리는 없습니다.
다만 펌프압으로 인해 1층배수구로의 역류를 억제하기 위해 체크밸브를 고려해야 합니다.
G 이지현 2024.09.01 10:53
답변감사합니다. 혹시 왼쪽 상단 da에 집수정 설치하는건 문제가 있을까요?  그부분 위가 바로 주방이라 배수에 용이할것 같아서요.

그리고 지하 실내에 전열교환기 설치하려는데

1. 휴미컨 단독 설치
2. 전열교환기 + 천정형 제습기(일 제습량 65이상)

어느게 더 나을까요?
M 관리자 2024.09.01 13:33
그 쪽은 기초의 너무 외곽이라 피하는 것이 좋겠습니다.
다만 구조기술사가 검토하여 적절한 보강조치를 하면 가능하나 비용이 크게 증가할 수도 있습니다.
제시하신 1,2번 모두 가능합니다.
다만 휴미컨은 아직 협회 자체적으로 주거시설 적용을 승인받지 못했습니다.
그러나 2번도 일반적인 저렴한 전열교환기라면 동일할 것 같습니다.
G 이지현 2024.09.01 17:39
컴포벤트 생각하고 있었으나 천정형이 이제 수입이 안되는것 같아서요 (잡자재에서 구매불가 상태네요)혹시 천장형중에 고급 전열교환기 추천 가능하실까요?
M 관리자 2024.09.01 23:56
별도의 제습기를 사용한다면, 경동이나 힘펠 제품 정도가 나을 것 같습니다.
G 이지현 2024.09.02 10:13
상담해 주셔서 너무 감사하단 말 남기러 왔습니나^^  즐거운 하루되세요!
M 관리자 2024.09.03 22:24
감사합니다.
Category