욕실 바닥 타일 덧방을 위해 유가를 철거했더니……

설계/시공관련 질문

질문 전에 먼저 검색을 해주세요.

 

욕실 바닥 타일 덧방을 위해 유가를 철거했더니……

G 답변감사합니다 10 3,591 2024.08.10 19:03

안녕하세요.

 

이번에 욕실 바닥 타일 덧방을 위해 기존 유가를 철거 했습니다.

 

그런데 배관 모양이....

 

이런 배관은 주변으로 방수를 어찌해야는지 난감하여 질문올립니다...

 

제가 생각하는고 있는건

 

일단 별도 부속품을 제거한 상태에서 배관 주변에

1. 아덱스 방수액을 잘 발라준 후 건조

2. 주변에 비어있는 부분은 초속경 몰탈로 채운다.

3. 별도의 부속품을 끼운다.

4. 아덱스 방수액을 부속품위로도 잘 발라준다.

5. 부속품 위로 초속경 몰탈로 잘 채운다.

 

쓰다보니.. 구멍이 너무 커서 유가를 뭘사서 어떻게 설치해야할지 모르겠네요ㅠㅠㅠ

 

조언을 구해봅니다..!

Comments

M 관리자 2024.08.12 11:43
안녕하세요.
이건 이 자체가 유가의 일부일 수 있는데요..
가운데 부분을 힘주어 뽑아 보시겠습니까? 뽑힐 것 같거든요.
G 답변감사드립니다 2024.08.12 13:37
안녕하세요! 제가 요령이 없는건지 꿈쩍도 안하네요 ;;;
11 잡자재 2024.08.12 18:48
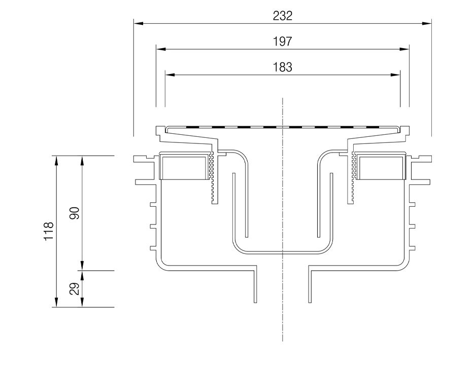
지금 매립되어 있는 제품은 이중유가 편심 슬라이드 제품으로
방수는 슬라브에 매립된 통의 조인트 부위를 중점으로 해주시면 됩니다.
상부 사진에서 빼낸 편심 슬라이드의 사이즈를 알려주시면 지금 저희가 유통하는 제품과 호환이 되는지 답변드릴 수 있을 것 같습니다.
G 답변감사드립니다 2024.08.13 08:48
확인 감사합니다!
말씀하셨다시피 원래 있던 사각 유가는 편심유가로 200x200 사이즈 였습니다.
사각유가 밑에 원형 외경은 110mm 정도 였습니다. 편심 슬라이드에 장착했을 때
여유가 충분해서 전체 크기는 한 180mm정도 되지 않나 싶습니다.
오후에 정확하게 측정해보겠습니다.
11 잡자재 2024.08.13 11:00
^^ 오래전 제품이라 맞을지는 모르겠습니다.
너무 기대는 말아주셔요^^;
요 사진 상의 원형 외경도 측정 부탁드립니다.
G 답변간사합니다 2024.08.13 17:38
슬라브에 매립된 통 내경 190
검은색 편심 슬라이드 외경 190
편심 슬라이드 내부 원형 내경 150 (가로) 둥그런부분
편심 슬라이드 내부 원형 내경 115 (세로)
사이즈는 이렇습니다!
11 잡자재 2024.08.13 18:13
넵 제가 내일 확인하여 답변드리겠습니다. 도면상으로는 긴가민가해서요 ^^;
11 잡자재 2024.08.14 14:57
안녕하세요. 저희가 제품을 실측해보니 190mm입니다. 호환이 가능할 것으로 보입니다.
다만 세트로 구성된 제품이어서 한 세트로만 판매가 가능합니다.^^;
아래 링크를 참고 부탁드립니다.
https://www.jabjaje.com/goods/goods_view.php?goodsNo=1000000343
G 답변감사합니다 2024.08.14 15:08
일부러 제품도 찾아봐주시고 정말 감사드립니다!!
11 잡자재 2024.08.14 15:57
영업의 목적으로 말씀드린 것은 아닙니다만 저희가 판매하는 제품입니다... ㅠㅠ
온라인 상에서 저희만 팔고 있는 제품이어서 저희 링크를 드릴 수 밖에 없었음을 양해 부탁드립니다.
Category