침수위험지역의 건축물설계와 일반철골구조(H빔)의 패시브하우스 건축 가능여부

설계/시공관련 질문

질문 전에 먼저 검색을 해주세요.

 

침수위험지역의 건축물설계와 일반철골구조(H빔)의 패시브하우스 건축 가능여부

G 코이코이 1 2,764 2024.07.23 15:19

 

안녕하십니까

3년 전 즈음부터 유튜브채널을 구독해온 시청자입니다.

사실 저번주 방송에 철골구조에 대해 간략하게 질문했지만 좀더 구체적으로 묻고 싶어 질문글을 씁니다.

 

제가 건물을 짓고자 하는 위치는 침수 가능성이 있는 위치이며, 그곳에 단독주택을 짓고자 고민을 하면서 기초부분과 건축물의 대략적인 레이아웃을 그려보면서 헷갈리는 부분이 많아 질문하게 되었습니다.


주변사진1.jpg

 

주변사진2.jpg

 

주변사진3.jpg

침수가능성이 있는 위치와 좁은 도로로 인하여 경량목구조와 철콘구조로는 패시브하우스를 짓기 힘들 것 같다는 생각에 h빔을 후보군으로 정하였고, 대지 서쪽 앞으로는 하천변 공원 및 산책로가 있고 그앞에 하천이 흐르고 있습니다. 대지 반경 약 4km 주변 해발고도와 도로레벨을 봤을때 대략적인 짐작일 뿐이지만, 기초레벨을 올리고 2층으로 지으면 2층은 침수를 피하면서 재해손실을 줄일 수 있겠단 추측을 했습니다.

 

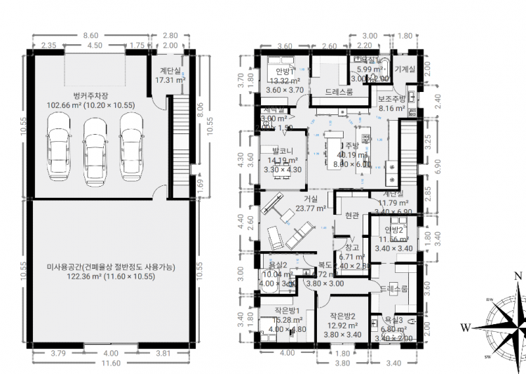
연면적이 140평이 넘고 당연히 건물의 설계는 건축사와 협의하는 것이 우선이지만 아직 계획구상의 단계이다보니 제가 먼저 그린 엉성한 그림을 보여드릴 수 밖에 없네요.

아래 평면도와 기초부분 표현이 비전공자가 대략적인 공부만 하고 그린 그림이기에 

많이 이상하리라 예상되지만 너그럽게 봐주시면 감사하겠습니다.

 

일반철골구조 

(H빔골조, 외벽단열재는 H빔과 C스터드에 합판이나 시멘트보드로 지지, 외단열미장마감 바탕에 18mm미만 두께의 밑면 요철이 있는 붉은 파벽돌 시공, 칼라강판이나 징크구성의 박공지붕, 1층 마감층고 3.4미터,2층 마감층고 2.6미터)

대지면적 475평 플러스알파 

예상 건물 총연면적 468.2m2

주거공간 면적 225.9m2    1, 2층 계단실 면적 29.1m2

벙커주차장 102.7m2       미사용공간 122.4m2(약60m2정도는 건폐율상 사용가능)

 

KakaoTalk_20240723_080353808.jpg

 

건물기초부분표현.png

 

KakaoTalk_20240723_080353808_01.jpg

 

KakaoTalk_20240723_080353808_02.jpg

공간치수면적.png

단열측면에서 H빔구조의 필로티 2층 건물은 열교차단이 불가능하다고 보는 것이 편하니, 외벽전체를 단열재로 감싸야 하고, 1층은 계단실 외엔 빈공간이 되고 건폐율의 문제도 있으니 차고지로 사용하는 것이 가장 합리적이단 판단을 했습니다. 


이렇게 건축계획을 했을때 제가 생각한 고민은

1. 경량철골과 일반철골의 열교라인을 비슷하게 보긴 하지만 혹시 H빔의 열교가 더 심할까요?


2. 차고자동문의 밀폐단열성능이 부족하더라도 전체 외단열에다 2층주택 바닥슬라브는 외기와 간접 면하는 곳이 되지 않는가? 하는 생각이 들기도 해서 패시브하우스로 짓는게 가능하지 않을까요?

안된다면 돈을 더 써서라도 차고지 내단열을 할 생각도 하고는 있습니다만... H빔구조에 양단열을 했을 때 따라오는 문제점이 생길거라 추측하는데 저는 역결로현상으로 인한 H형강의 녹발생만 떠올라서 이 예측이 맞는지도 모르겠으며 다른 문제점이 있다면 고견부탁드립니다.

 

3. 침수피해 최소화를 위해 1층부분은 물을 먹지 않는 재료를 쓰는게 최선이라 생각하는데, 1층만이라도 OSB합판대신 시멘트보드나 마그네슘보드를 사용할 수 있을까요?

 

4. 건축물 내부의 가로세로 길이가 각 21.3미터, 11.6미터 정도 되는데 기계실이 북동쪽 코너에 위치하며 복사냉방을 생각중인데 건물이 길다보니 XL파이프를 연결해서 써야 될까요?

연결해서 시공했을때 누수가 걱정이라 연결 안했으면 해서 말입니다.

 

5. H빔 바깥에 방습층을 설치할때 방수지 대신 비닐을 써도 괜찮을까요?

 

글을 쓰다보니 나름 고민하며 그림을 그리고 글을 썼지만 비전공자라 하더라도 너무 엉망인 것 같아 민망합니다. 생각해볼수록 돈 먹는 정신 나간 짓이란 생각도 듭니다....

 

이외에도 일반철골조로 패시브하우스를 지을때 생기는 문제점이나 기타 다른 문제점이 있으시면 고견 부탁드립니다. 항상 유튜브영상과 홈페이지에서의 회장님의 건축에 대한 선한 영향력에 존경심을 가지고 봐왔기에 이글을 빌어 정말 감사의 말씀올립니다.

 

급하진 않으니 천천히 답주셔도 괜찮습니다.

Comments

M 관리자 2024.07.23 15:41
안녕하세요.

1. 열교는 소재가 같다면 부재의 단면적에 비례를 합니다. 그러므로 H빔의 열교가 더 클 수 밖에 없습니다. 다만 속이 빈 각파이프는 철의 단면적보다는 각파이프 전체 단면적이므로, 계산을 해 봐야 겠습니다만 H빔이 더 크다라고 단정을 지을 수는 없습니다.

2. 이를 이유로 1층에 내단열을 추가하는 것은 무리로 보입니다. 그 보다는 2층으로 올라온 철골기둥 자체에 내단열로 감싸되 습기가 들어가지 않도록 조치를 하고, 그렇게 했음에도 바닥 자체는 열손실이 커질 수 밖에 없기에, 1층 천장 속의 높이 정도 (약 600mm)만 기둥에 외단열을 하는 것이 바람직합니다.
또한 철 구조물은 열교가 불가피할 수 밖에 없습니다. 그러므로 포기할 것은 포기를 해야 진도를 나가실 수 있습니다.

3. 외벽의 마감을 같이 말씀드려야 할 것 같은데요..
합판이나 시멘트 보드를 바탕재로 할 때 외단열미장마감에 벽돌타일 부착은 무리가 있습니다. 외단열미장마감만으로 끝내셔야 할 것 같습니다.
물론 담당 건축사가 이를 위한 구조계산을 해준다면 가능하나, 실현될 가능성은 낮아 보입니다.  구조기술자의 문제라기 보다는.. 합판에 박힌 화스너의 인장강도와 단열재의 접착강도에 대한 데이타가 없기 때문입니다.

이 연장선에서... 아쿠아보드라는 제품이 있습니다. 가격이 비싸긴 하나 구조적 강도와 함께 흡수율이 극히 낮아서 물이 차더라도 문제가 생기지는 않게 됩니다. 대안으로 락보드라는 제품도 있습니다. 무기계보드인데, 이 역시 흡수율이 거의 없습니다.

시멘트 보드 또는 마그네슘보드도 흡수율이 존재하기에 대안으로는 적절치 않습니다.

4. 분배기 위치를 잘 잡으시면 되세요. 혹은 분배기가 두 개 이상일 수도 있습니다. 그러면 집이 커도 배관을 잇지 않고 작업이 가능합니다.

-------------------------
협회를 좋게 봐주셔서 감사합니다.
Category