01년준공된 단독주택입니다. 보 철거 및 부엌 미닫이문 철거 가능여부 질문드립니다.

설계/시공관련 질문

질문 전에 먼저 검색을 해주세요.

 

01년준공된 단독주택입니다. 보 철거 및 부엌 미닫이문 철거 가능여부 질문드립니다.

1 tupeone 5 4,191 2024.07.23 14:39

항상 고생이 많으십니다.

노후 주택(3층) 1층만 리모델링을 하려고 생각하고 있어서

여쭤봅니다.

 

질의내용)

질문1) 천장 목공 보 철거 가능여부와

 

질문2) 부엌과 거실이 분리되어 있는 형태인데

부엌에 설치된 미닫이문 및 목공벽 철거가 가능한지 여쭤봅니다. 

 

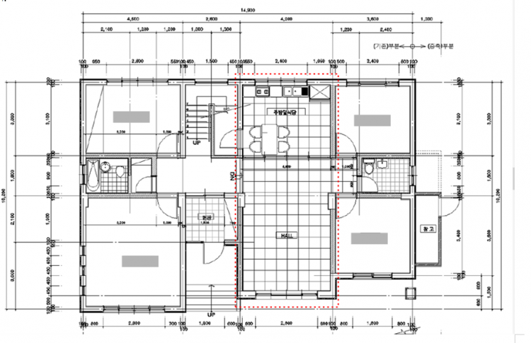
집도면)

집도면.png

2층계단 올라가는 입구.png

 

계단사진.png

 

질문1) 내부 천정 목공 보 철거 가능여부

내부천정보1.png

 

내부천정보2.png

 

내부천장보3.png

 

질문2) 거실 부엌 분리형태인 상황에서

         거실 미닫이문 및 가벽 철거 가능여부


거실부엌확장1.png

 

Comments

M 관리자 2024.07.23 16:51
안녕하세요.

기 집의 구조형식은 무엇인가요?
그리고 해당 부재가 "보"라고 판단한 근거가 있으실까요?
또한 마감재를 아직 철거하기 전인거죠?
1 tupeone 2024.07.23 17:15
철근콘크리트구조입니다.

보라고 판단한 근거는 없고

천장과 천장을 연결하여 그냥 보라고 했고

사진에 보이는 보는 목재입니다.

콘크리트는 아닙니다.
M 관리자 2024.07.23 17:19
콘크리트 구조라면, 해당 목재는 장식재일 가능성이 무척 높습니다.
그러나 건축이라는 것이 워낙 다양해서... 목재 주변의 마감재를 일부라도 절개해서 그 안을 보시면.. 목재가 콘크리트를 관통(?)해서 안으로 들어가 있다면 구조재일 가능성이 있습니다.
그런 것이 아니라면 전체를 다 철거해도 무방합니다.
1 tupeone 2024.07.23 17:59
답변 너무 감사드립니다. 잘 참고해서 공사하겠습니다. ^^
M 관리자 2024.07.23 19:24
감사합니다.
Category