구조물 열교 차단 관련 문의드립니다.

설계/시공관련 질문

질문 전에 먼저 검색을 해주세요.

 

구조물 열교 차단 관련 문의드립니다.

1 TonyG 4 3,717 2017.10.20 12:07

안녕하십니까. 철근 콘크리트 구조물 열교 차단 설계 방향에 대해 질문 드리고자 합니다. 불행하게도 저희 설계 사무소가 여기 협회 회원이 아닌 관계로 방향 설정에 조언을 얻고자 합니다. 빨리 회원 가입하라고 해야 겠습니다.

 

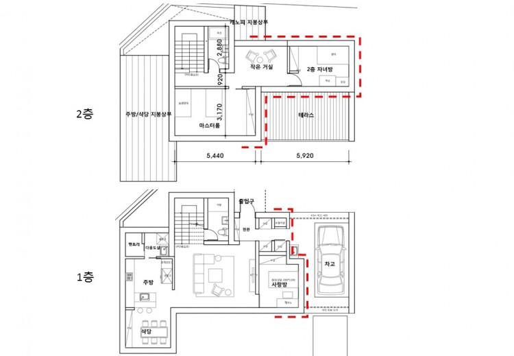
수많은 방황을 거쳐 아래 그림과 같은 1,2 층 평면 구성에 도달하게 되었습니다. 딱 여기 까지 진행된 상태이고, 현재 평면 구성을 그대로 가져 가고자 합니다.

 

걱정 스러운 부분은 1층 우측편에 차고가 있어 열교 문제 해결이 어렵다는 것 입니다. 빨간 점선으로 표시된 곳을 따라 주거 공간과 비주거 공간이 나뉘게 되고, 여기에 더하여 1층과 2층이 서로 달라 2층의 경우 차고 뒤에 2층 방이 배치됩니다. 물론 평면 구성을 변경하거나 목조로 가면 해결 될 수도 있는 문제이기도 합니다만 이 부분은 고려 대상은 아닙니다

 

열교 차단을 위해, 2층 방부분을 캔틸레버 형태로 만들어, 차고 부분 기초부터 벽까지 완전히 주거 공간과 구조물을 분리하는 방법이 막연하지만 완벽할 것 같기도 하고요. 아니면, 완전히 반대로 기존 스타일(?)로 설계하고 단열재를 중요 부위에 부착하는 방법도 생각할 수 있을 것 같습니다. 혹은, 그 중간으로 1층 차고 부분을 기초부터 벽까지 기둥/보 형태로 가서 구조물 열교 면적을 최소화 하는 방향도 생각할 수 있을 것 같습니다.

 

가성비를 고려시 어떤 방향으로 가면 좋을지 조언을 부탁 드립니다. 즉, 완벽한 구조물 분리 외에 효과적인 방법이 있는지 궁금해서 입니다.   

 

 

Comments

6 오대석 2017.10.20 13:52
안녕하십니까
혹시 표시하신 부분이 나오는 단면도 올려주실 수 있을까요?
1 TonyG 2017.10.20 15:11
죄송합니다. 사실 단면 구조를 어떻게 가면 좋을지 설계 방향에 대한 문의입니다.
M 관리자 2017.10.20 22:09
협회 회원사는 교육을 받아야 하므로, 쉽게 가입은 어렵습니다. ^^

이 경우는 별로 선택의 여지가 없네요..
일단 최선은 아래 개념처럼 해야 할 듯 합니다.
1 TonyG 2017.10.20 22:37
감사합니다. 최소한의 권고사항으로 여기고, 여기서 조금 더 절연시키는 방향으로 가닥을 잡아 보겠습니다.
Category