전열교환기 셀프시공 도전(2)

설계/시공관련 질문

질문 전에 먼저 검색을 해주세요.

 

전열교환기 셀프시공 도전(2)

G 1인셀프시공 14 11,363 2019.06.06 22:18

 관리자님이 조언해주신대로 다른 위치에 전열교환기를 넣기로 하였습니다.

 

13cc7eb4f96c26fea7daf1d4b55b1d87_1559822944_5111.jpg 

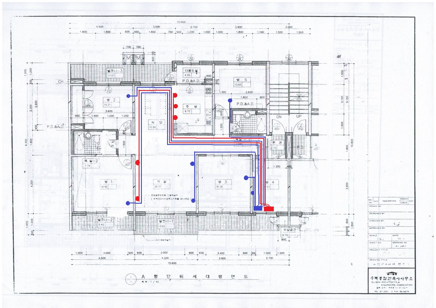
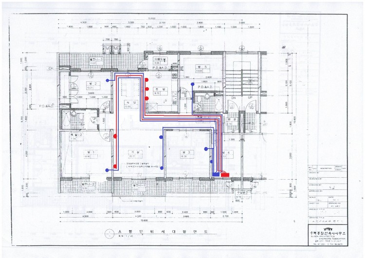
새로 만들어본 전열교환기 덕트 배관도 입니다.

ssk사 DP-5xx 넣으려고 합니다.

현재 저 위치대로 타공업체 불렀습니다.

강화마루를 살리느라 건식코어작업을 해야해서 75mm 로 내부 내력벽들 타공하고 있습니다.

 

13cc7eb4f96c26fea7daf1d4b55b1d87_1559823281_5264.jpg 

전열교환기를 설치 할 장소 입니다.

 

문 내부는 650 x 650

문 외부는 750  정도 됩니다. 엄청 좁습니다. 

기기 크기가 600x588x474 입니다. 

필터박스도 설치 할 예정입니다.

문 내부 공간 벽면에 설치하면 되겠다고 생각 하고 있습니다.

 

(외부벽면 1)

13cc7eb4f96c26fea7daf1d4b55b1d87_1559827794_0782.jpg 

(외부벽면2)

13cc7eb4f96c26fea7daf1d4b55b1d87_1559827801_2054.jpg 

아파트 외부 입니다. (외부벽면1)처럼 타공하고 싶은데, 아파트 바로 앞이 관리실이라

밖에서 하다보면  못하게 막을것 같습니다.

아파트 내부에서 하자니 650 공간이라 습식코어드릴이

들어갈지 모르겠습니다.

(외부벽면1) 처럼 타공 못하게 막으면 (외부벽면2) 처럼 타공해야 합니다.

상단토출형 전열교환기인데 흡기구 배기구가 전열교환기보다 하단에 있게 생겼습니다.

 

13cc7eb4f96c26fea7daf1d4b55b1d87_1559828173_2464.jpg 

이렇게 말입니다.

창문을 열어 틈새에 아이소핑크로 타공을하고 넣자니,

1층이라 샷시문을 상시 열어두기가 걱정이 됩니다.

방범창이 있기는하지만 말이죠;;

구축아파트에 전열교환기 설치는 여러모로 쉽지 않은것 같습니다.

 

질문

 

1. 배관도에 문제점은 없나요?

2. 흡기 배기 분배기는 방안쪽이 좋을까요. 배란다가 좋을까요.

   배란다는 2중창이며 1번째 알루미늄 2번째 하이샷시. 바닥 난방은 없고 외부 단열재도 없습니다.

   방안에 분배기 달자니 미관상 좋지 않아서요.

   분배기가 온도에 큰 영향을 받지 않는다면, 배란다에 설치 하려고 합니다.

3. 모든 창이 시스템창호가 아니라서 기밀성은 확보하지 못할것 같습니다.

   기밀성이 전제되지 않으면 전열교환기는 무의미 한가요?  진작 고민했어야 했는데;

   그래도 없는거 보단 있는게 좋겠지 라고 생각했다가,

   음압? 양압? 이런거 보니까 있는게 해가 될수도 있다고 생각했습니다. 음압이 되면 외부 먼지가

   창호 틈새로 오히려 더 많이 들어온다던가 말이죠.

4. 상부 토출형 전열교환기 흡기구 배기구가 전열교환기 밑(외부벽면2)에 있어도 되나요? 

5. (외부벽면1)처럼 타공하는데 혹시나 그안에 전선이나 배관 같은게 들어있을수도 있을까요?

   평면도에는 전혀 보이지 않으나 혹시 모르니까요;;

6. TAB 이라는 단어를 자주 보았습니다.

   얼핏보기에 양압과 음압이 걸리지 않게 잘 맞춰주는 것 같습니다.

   혼자 셀프로 기기를 구매하고 부자재를 구매해서 설치할 예정이라, 이런 TAB 같은 테스트는

  셀프로 할수가 없습니다.  위의 과정이 반드시 설치업체를 끼고 할 만큼 중요한 과정인가요?  

 

 

 

 

 

 

 


 

Comments

G 정광호 2019.06.07 13:26
1. 배관도에 문제점은 없나요?

분배기와 공조기를 거실에 붙어있는  방3 앞의 베란다 공간에 두시는 건 어떠셔요? 그럼 배관이 훨씬 짧아지고 시공이 수월할 듯 싶습니다. 그리고 화장실에 창이 없으니 배기를 하나씩 넣으시구요. 거실에는 급기만 두고요.

2. 흡기 배기 분배기는 방안쪽이 좋을까요. 배란다가 좋을까요.

소음이 발생할 수 있어서 베란다가 좋습니다.

3. 모든 창이 시스템창호가 아니라서 기밀성은 확보하지 못할것 같습니다.
  기밀성이 전제되지 않으면 전열교환기는 무의미 한가요?

그냥 구멍 몇개 뚫린 물호수 쓰신다고 생각하시면 될 것 같습니다.^^;
그래도 물 쓸 수 있잖아요. 다만 버리는 물도 좀 있고 수압도 좀 약해지고 이런저런 손실이 생긴다고 보시면 됩니다. 결코 해가 되지는 않습니다.^^ 당연히 있는게 백배났습니다.
음압이 걸리는 것은 TAB를 통해 SA의 풍량을 조금 높여서 실내를 약간 양압으로 만들어주시면 됩니다.

4. 상부 토출형 전열교환기 흡기구 배기구가 전열교환기 밑(외부벽면2)에 있어도 되나요? 

네 다만, 흡기와 배기의 간격을 최대한 띄어주시면 됩니다.
한쪽에서 뿜어내는대 옆에서 빨아들이면 EA가 다시 OA로 들어갑니다.

5. (외부벽면1)처럼 타공하는데 혹시나 그안에 전선이나 배관 같은게 들어있을수도 있을까요?

없을 것 같지만 아니 없어야 하지만 장담해드릴 수는 없습니다.
가끔씩 일반적이지 않은 건물들이 있어서요^^;

6. TAB 이라는 단어를 자주 보았습니다.
  얼핏보기에 양압과 음압이 걸리지 않게 잘 맞춰주는 것 같습니다.
  혼자 셀프로 기기를 구매하고 부자재를 구매해서 설치할 예정이라, 이런 TAB 같은 테스트는
  셀프로 할수가 없습니다.  위의 과정이 반드시 설치업체를 끼고 할 만큼 중요한 과정인가요? 

 네 꼭 하셔야합니다. 밸런스가 깨지게 되면 주방이나 화장실에 하수구냄새가 올라올 수 있으며 효율이 떨어지게 됩니다. 그건 마치 팥없는 단팥빵같은 거에요..
1 이장희 2019.06.07 14:29
기존 아파트에 코어작업을 해서 설치하는 사례의 사진을 조만간 볼 수 있겠네요.
화이팅입니다.
외부에 부착하실 급배기 디퓨저는 공기가 서로 섞이지 않도록 4미터 이격하는 게 좋다고 합니다.
한번 방법을 찾아보시면 좋을 것 같습니다.
G 정광호 2019.06.07 17:27
깜빡하고 말씀드리지 않은 부분이 있네요.
공조기는 SA와 RA의 속도가 별도로 조절이 가능해야합니다. 구매하실 제품이 그에 포함되는지 확인해보시기 바랍니다.
G 1인셀프시공 2019.06.07 18:44
1.화장실에는 별도의 배기 장치가 있습니다.또 달아야하나요?  전열교환기 화장실 배기구는 득보다 실이 많다는 답변을 어디서 본거 같습니다. 어찌할까요;;;  기존의 화장실 배기 장치가 돌아가연 굳이 거실에 전열교환기 배기구는
필요없을까요?  S사로 전화문의 드렀더니 방마다 배기구는 따로 두라는 추천이 있네요;;;  이건 논란이 있는걸로 알고있습니다.
G 1인셀프시공 2019.06.07 18:46
2. 소음기는 전열교환기 에서 급기구 분배기까지 주로 설치하는것 같습니다.  혹시나 해서 S사에 문의 했더니 분배기 자체의 소음은 업다고 하셔요. 바람이 나뉠때 소음이 나는건 아니라구 합니다. 전열교환기에서 급기분배기까지 2미터이상 거리를 주거나, 거리가 짧다면 소음기를 추천 하시네요;;;  그리고 방안에 분배기 설치를 추천하셔요. 직접 들을수도 없고 답답할 뿐입니다.  분배기 소음이 해결된다면,  낮은온도로 인한 배관및 분배기 내부 결로는 안생길까요? 켜둘땐 바람이 있으니 상관없을꺼 같은데요, 꺼두면 따뜻한공기가 좀 남아있다가 생기지 않을까 고민해봅니다. 그러면 배란다에 있는 분배기 및 65파이 내부관들도 다 보온처리 해야 하는가요?  고민만. 많습니다 ㅋㅋ
G 1인셀프시공 2019.06.07 18:53
4.생각해보니 관리상 외부벽면 2가 나을꺼 같기두 합니다.
배기구는 모르겠으나 급기구는 가끔 청소라도 해주려면 오히려 낮은데가 좋네요;; 1층이라 나가서 쉽게 볼수있겠네요;;  보통 급기가 위, 배기가 아래던데 반대로 해도 좋을지 여쭤봅니다.  4M 이격거리면 배관이 바닥으로 가니까  배란다 많이
잡아 먹겠네요. ㅜㅜ
G 1인셀프시공 2019.06.07 19:01
협회추천 SSK사면 속도조절 되지않을까요?
월요일에 물어봐야겠습니다
G 1인셀프시공 2019.06.07 19:13
협회의 프리필터박스를 쓰면 전열교환기 내부 소모품은 열교환소자 뿐 인가요? 세척해서 사용이 가능하다니까 그것도 소모품이 아니네요!!
G 정광호 2019.06.07 20:41
1. 화장실에는 별도의 배기 장치가 있습니다. 또 달아야하나요?
화장실이 기밀하다는 전제가 있다면 배기를 추가하시면 좋지만 그렇지 못할 경우 없는게 났습니다. 화장실 배기팬 주방 후드 등에 전동밸브가 필요하며 비트를 통해 침기가 없도록 기밀하게 막으셔야 합니다.

기존의 화장실 배기 장치가 돌아가연 굳이 거실에 전열교환기 배기구는 필요없을까요?

화장실 배기와 상관없이 거실에 배기구는 필요없습니다.

방안에 분배기를 설치하는 부분에 대해서는 선택의 문제인 듯 합니다.
장비의 효율을 최우선으로 고려하여 방을 포기하느냐
혹은 효율이 좀 떨어져도 방을 쓰느냐의 선택을 먼저 하시고
베란다 설치를 선택하셨을 경우 조금 떨어지는 효율을 줄이기 위해 보온조치를 해주시면 됩니다.

공조기는 항시가동이라고 생각하시면됩니다. 일반적으로 온오프 스위치가 없습니다.

급기와 배기의 이격거리는 중요한 권장사항입니다. 하지만 할 수 있는 범위내에서 최대한 거리를 두시는 것이 바람직한 듯 싶습니다. "건축물의 설비기준 등에 관한 규칙" 별표1의5 14호 사항에 의하면 -외부에 면하는 공기흡입구와 배기구는 교차오염을 방지할 수 있도록 1.5미터 이상의 이격거리를 확보하거나, 공기흡입구와 배기기구의 방향이 서로 90도 이상 되는 위치에 설치되어야 하고 화재 등 유사시 안전에 대비할 수 있는 구조와 성능이 확보되어야 한다. 라고 되어 있습니다.
Zehnder사의 메뉴얼에는 3M정도로 기재되있었던 것 같습니다.
이쁘게 설치하실 수 있는 범위내에서 최대한 멀리 다셔요 ^^;
OA는 지면에서 2M 이상의 높이를 권장합니다.

속도조절 가능여부는 제품마다 회사마다 다르기에 직접 확인해보셔야 합니다.

프리필터박스를 사용하시더라도 열교환소자의 오염을 방지하기 위한 RA쪽의 필터또한 주기적으로 교체해주셔야 합니다.
G 둥듕 2020.04.16 17:25
내력벽에 타공하는 건 법적으로는 문제가 없나요? 
(저희 지금 꿈에도 그리던 전열교환기 공사중에 아랫 집이 구청에 신고를 했어요 
턴키 맡기고 내력벽에 관해 잘 알지도 못하고 있다가 당황해서 찾아보다 님 글 보게 되었어요.)
M 관리자 2020.04.16 18:24
내력벽도 타공은 가능합니다. 그 지름이 안정 범위 내에 충분히 들어 오기 때문입니다.
다만, 공동주택에서 외벽은 법적으로 공용 면적에 들어갑니다. 그러므로 그 라인 입주자의 동의가 필요한 부분입니다.
G 동듕 2020.04.17 06:15
아 눈물날 만큼 안심이 되는 감사한 답글 감사합니다

1.외벽은 아닙니다. 그래도 동의가 필요할까요
2. 안정범위가 얼마인지요? 그 내용을 알 수 있는 법령등을 어디서 찾아볼 수 있을까요?
G 둥듕 2020.04.17 08:24
댓글내용 확인
M 관리자 2020.04.17 10:03
죄송합니다만, 원칙상 답변을 드리지 못합니다.
Category