창호랑 문 사이즈좀 봐주세요 ^^

설계/시공관련 질문

질문 전에 먼저 검색을 해주세요.

 

창호랑 문 사이즈좀 봐주세요 ^^

1 즐거운시골 3 16,904 2021.10.09 08:24

432.jpg

456.jpg

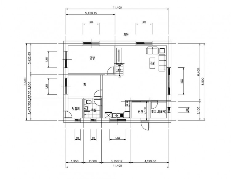
지금 대략 형태를 잡아보고 설계는 건축물대장 나오면 진행하려 합니다.

먼저 창호랑 문사이즈를 결정하고 이것을 향후 설계에 반영할려고 합니다.

** 창호랑 문사이즈는 그냥 일괄적으로 붙여넣기 한것이라 의미는 없습니다.

1) 필요 창호

거실 폭3미터 x 높이 2.1민터

아래스타일로

거실창호.jpg

안방 폭1.8미터 x 높이 1.5민터 => 2개나 필요할까요?

작은방 폭1.8미터 x 높이 1.5민터 => 방사이즈에 비해 큰가요?

세탁, 보일러, 욕실 폭0.6미터 x 높이 0.9민터 => 이사이즈가 맞나요?

부엌 폭1.8미터 x 높이 1.5민터 : 장없이 선반대체

큰 창에 간단하게.JPG

 


 

현관중문 폭1.8미터 x 높이 2.1민터

2) 필요 문

현관문 폭0.9미터 x 높이 2.1민터

발코니 폭0.8미터 x 높이 2.1민터

안방 폭0.8미터 x 높이 2.1민터

작은방 폭0.8미터 x 높이 2.1민터

욕실 폭0.8미터 x 높이 2.1민터

보일러 폭0.8미터 x 높이 2.1민터

도움 요청드려요,,,

창호는 이게 맞는지 (그냥 복사해서 붙여넣기해서, 각 방이나 실마다 필요한 사이즈를 모름)

문 이것도 그냥 복사해서 붙여넣기해서 사이즈를 모름

스트로베일하우스 벽 높이를 33cm x7단 하면 23000정도나와서 이것을 기준으로 작성

Comments

M 관리자 2021.10.09 16:55
안녕하세요...

창의 크기, 문의 크기는 담당 건축사와 상의를 하셔야 합니다.
이를 위해서는 창과 유리의 종류를 먼저 선정을 하셔야 해요. 모든 회사의 모든 창이 원하는 대로 되는 것도 아니기 때문입니다.

또한 거실의 큰 창 등은 구조와도 연관이 있습니다. 특히 콘크리트 구조가 아니라면 더욱 그러합니다.
스트로베일하우스를 지으시려는 이유가 궁금하기도 합니다만... 제가 잘 모르는 형식이라서요.
그 구조 형식의 구조계산과 병행이 되어야 하므로.. 결국 담당 건축사의 몫으로 보입니다.

다만, 몇가지만 말씀을 드리면... (단위는 mm)
창의 경우 방바닥 면적의 10% 정도가 기본 적인 크기입니다.
문의 경우
현관은 1000~1100 정도의 폭이 되어야 합니다.
방문은 900 입니다. (가구가 이 것을 기준으로 만들어 지거든요.)
화장실 문은 750 부터 시작됩니다.

별 도움이 되어 드리지 못해 죄송합니다.
1 즐거운시골 2021.10.13 20:32
답변주신 것을 반영해서  우선  창호를 사이즈 정했고,,,주문을 했습니다.

창호사이즈를 반영하여  설계를  하려 합니다. ^^ 통상적인것과 반대죠 ㅎㅎ (중고 창호를 쓰기위해서요)

다시한번 감사드립니다.
M 관리자 2021.10.13 23:09
감사합니다.~
Category