계단, 안방 창문, 창문 높이 좀 봐주세요 ^^

설계/시공관련 질문

질문 전에 먼저 검색을 해주세요.

 

계단, 안방 창문, 창문 높이 좀 봐주세요 ^^

1 즐거운시골 4 8,439 2021.10.16 20:21

창호, 문, 구조목등의 사이즈를 반영하여 그렸는데 해결할것이 아래와 같습니다. 도움 주셔요 ^^

 

(경량목구조로 벽은 스트로베일 충진재 사용, 벽 마감은 흙마감 입니다.)

1) 다락방 (중앙 높이가 1.6미터가 안되 거의 보관창고 및 사람 많이 올때 잠만 자는곳 ^^)\

올라갈때 계단을 만들어 놓을까요 아니면 접이식 다락방 사다리로 할까요? (현관들어오는 곳 천장에 설치)

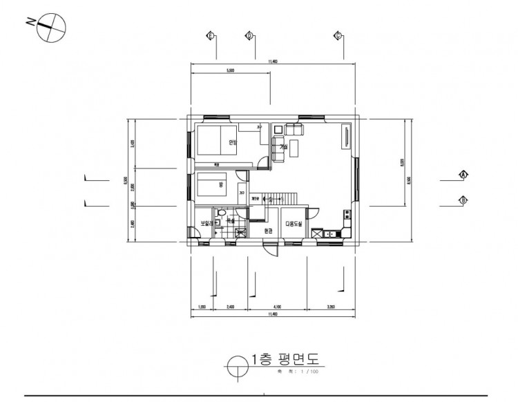
2) 안방의 창문을 2개 했는데 이게 맞을까요 아니면 1개로 줄일까요 (북쪽것을 없애고 동쪽것만 남긴다)

3) 창호를 높이를 어떻게 일괄적으로 적용할까요, 현재는 바닥에서 900mm 정도 위에 창문틀이 오게 하였는데

전체 밸런스 안 맟주어도 될지

4) 콘크리트 기초 위에 단열재 150T만 깔고 작업이 되는데 현관이 단열재가 얇아지네요 ㅠ

콘크리트 기초 치기전에 100T 정도에 스트로폼 단열재를 깔까요?

5) 지붕은 그냥 2X10구조목으로 지붕을 만들고 최종마감을 칼라강판(샌드위치판넬 설치후)이냐, 징크판넬이냐 고민입니다.

.

또한 다락방 바닥을 현재는 구조목으로 생각하는데 이것을 고재 써가래로 하고 상판을 송판등으로 할것인데 이게 가능한것인지 ㅠㅠ

우선은 이정도의 질문을 드립니다.

즐거운 주말 되셔요 ^

기초상세도.jpg

 

다락방.jpg

 

단면도.jpg

 

정면도 배면도.jpg

 

지붕평면도.jpg

 

측면도.jpg

 

평면도.jpg

Comments

2 숀리 2021.10.16 20:55
목구조에서 흔하지 않은 이중벽체로 보이네요.  단열재도 특이하구요 ^

1. 취향의 문제 같아요

2. 방위를 보니 동향창이라 해도 어차피 해가 오전에 잠깐만, 그리고 방의 극히 일부분만 비출거 같습니다.  북향창은 동향창과 크기가 같아 보이는데, 둔다면 동향창보단 크기를 줄이시는게 좋을 거 같습니다.  북향창을 크게 낼 만큼 갖고 싶은 풍경이 없다면 말이죠.  일단 창호 유리와 프레임 단열 성능은 높은걸 쓰시고 단열 및 기밀 시공또한 철저히 하시는걸 추천 드립니다.

3. 이것도 취향일 듯 합니다

4. 토대목 3개라서 방통하부 단열이 120T면 될 거 같은데요.  이중벽체로 토대목과 스터드 열교가 없어 보여서 120이하 두께로도 충분할거 같으므로 방통하부 법적 최소 단열두께의 2/3만 맞추시면 될 듯요.  기초 하부 단열은 글쎄요.....기초 단면도로 봤을때 제 생각입니다만 기초하부보다는 기초측면 수평단열을 하시는게 나을 거 같습니다.

5. 지붕의 마감재 보단 지붕 단열 설계가 중요할거 같습니다.  지붕 단열재가 이중벽체의 중단열재와 기밀하게 연결되게 해야할텐데...이 부분은 집 전체의 단열성능을 위해 건축사의 디테일이 필요한 매우 중요한 사안일거 같네요.  서까래의 열교 차단, 지붕과 벽체가 만나는 부분의 열교 차단이 중요할테니까요.

그나저나 2x4 이중벽체....맞죠? 처음보는데 인상적이네요 ^^
그나저나 철근 단배근이고 바닥슬라브 두께가 얇은데...이거 구조계산이 된 건가요?
실내부분 기초하부에 잡석을 충분히 두껍게 깔고, 다짐도 롤러로 충분히 오래 단단히 하는게 좋을 거 같네요

좋은 집 지으시길요.
M 관리자 2021.10.17 22:59
숀리님 감사합니다.

------------
모든 질문에 대한 답변 전에.. 기초가 바뀌어야 합니다.
구조계산은 하지 않으신 결과인데요.. 거래하시는 건축사에게 구조계산을 해서 기초를 그려 달라고 요청을 하시는 것이 좋겠습니다.
만약 그 것이 안되면, 벽체 하부에 지중보가 있던가, 전면적으로 두께를 300mm 이상의 복배근으로라도 바꾸셨으면 좋겠습니다.

이대로 라면.. 2년이 안가서 문이 잘 안 열리는 현상과 타일에 균열이 가기 시작하면서 돌이킬 수 없는 상태까지 갈 수 있거든요.
10 신범석 2021.10.18 08:02
관리자님 내용에 덧붙여 적어봅니다.

단독주택은 "건축법시행령 제32조 2항에 의거" 구조 안전의 확인을 해야 하는 건축물입니다.
1층이든 상관하지 않습니다. 무조건 착공신고전까지 확인서류를 제출해야 하는 의무 용도입니다.

---------------------------------------------------------------------------------------------
1)  다락계단을 설치하실 수 있는 공간이 있으시다면, 계단을 설치하는 것이 사용상 편하실거예요. (접이식 사다리로 짐을 올려보시면, 혼자하시기 힘드셔요)

2) 특별한 조망이 필요하지 않으면, 북측창은 최소화 하시는것이 좋으실 거 같아요.

3) 일반적으로 목구조에서 창호높이는 천정고과 개구부상부의 해더의 크기에 의해 결정이 됩니다.
  그거와 별개로 높이는 조절 가능하시니, 각 방마다 보고자하는 전망을 기준으로 고민해보세요.

4) 최하층단열재는 법적으로 단열재등급, 지역별로 두께가 정해져 있습니다.
  또한, 난방공간이냐 비난방공간이냐에 따라서도 두께가 달라지죠.
  신축건물은 무조건 건축사가 설계하는 건축물이기에, 건축사님과 상의하시어요.
1 즐거운시골 2021.10.20 09:23
^^  소중한  답변 정말로 감사드립니다.
 이렇게  코멘트 달아주시니  뭐라 감사의 말씀을 드려야 할지
바로 바로 지적해주신거 수정해서  검토하도록 하겠습니다.
Category