탑층 외벽쪽 붙박이장 설치가 가능할지 문의드립니다.

설계/시공관련 질문

질문 전에 먼저 검색을 해주세요.

 

탑층 외벽쪽 붙박이장 설치가 가능할지 문의드립니다.

G 어렵네요 5 1,709 2021.12.13 19:05

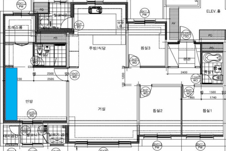
안녕하세요?

 

아래와 같은 구조의 집으로 입주를해야하는데요, 

파란색 박스 공간쪽에 붙박이장 설치를 해야 어느정도 수납이 될 거 같습니다.

 

다만 고민이 되는 부분은 높지는 않지만(17층) 꼭대기 층이구요, 건물 외벽쪽이라

결로나, 곰팡이가 생길까봐 걱정이 됩니다.

신축에 속하는 편이라 단열은 괜찮을거라 하는데 , 그 부분에 대해서 찾아보고 또 찾아봐도

판단이 안되어 문의드리오니 의견 부탁드리겠습니다.

( 건설사 쪽 확인을해보니 단열재는 천장부는 비드법 보온판 2종 1호 170T , 측벽은 비드법 보온판 2종 1호 130T 적용이라 합니다. )

 

감사합니다.

 

20211213_190444.png

 

 

Comments

M 관리자 2021.12.13 17:55
사진이 누락된 것 같습니다.
G 어렵네요 2021.12.13 19:06
다시 수정하여 사진 추가하였습니다.
M 관리자 2021.12.13 19:31
이 조건이면 설치하시면 안되시는데...  붙박이장 중에서 오픈장에 문만 달린 형식은 가능해 보입니다.
G 어렵네요 2021.12.14 10:48
답변 감사합니다.
말씀하신대로 오픈장에 문만 달린형식으로 설치가능한지 확인해봐야겠습니다.
M 관리자 2021.12.14 11:45
네 감사합니다.
Category