외단열로 해야할지 내단열로 해야할지 고민 중 입니다.

설계/시공관련 질문

질문 전에 먼저 검색을 해주세요.

 

외단열로 해야할지 내단열로 해야할지 고민 중 입니다.

G 단열 고민 1 4,328 2022.03.06 13:51

 

안녕하세요 외단열과 내단열 사이에서 고민 중인 건축주 입니다.

저희 건물은 풀빌라이며 기존에 노출 콘크리트 컨셉으로 건축을 구상 중이었습니다.

하지만 평지붕의 내단열은 건축의 악이라는 내용의 영상을 보고 외단열 또한 고려 중입니다.

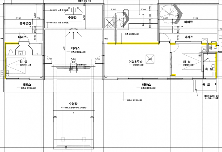
먼저 도면을 도면 노란색 친 부분이 기존 내단열재가 붙어야 하는 부분입니다.

보시다시피 대부분의 면적이 창호입니다. (아무래도 냉,난방비는 많이 깨질 것 같습니다 ㅠㅠ)

지역은 사천 남해쪽이고 현재 외단열과 내단열을 고민 중인데요

 

*내단열의 경우 유로폼 노출 또는 시멘트 뿜칠로 콘크리트의 원 질감을 살려보고자 하며

 

*외단열의 경우는 스타코플렉스에 에이징 효과를 넣거나 시멘트 뿜칠 또는 마이크로 시멘트를 시공하여 유럽미장의 질감을 살려보고자 합니다.

 

도면을 보고 어떤 단열이 더 좋을 지 의견 주시면 참고하겠습니다.

감사합니다 :)

 

화면 캡처 2022-03-06 134211.png

Comments

M 관리자 2022.03.06 17:59
안녕하세요.
저희는 항상 외단열이긴 합니다만, 건전한 외단열은 도면에서 준비가 되지 않으면 실현이 어렵습니다. 안그러면 비싼 댓가를 치루어야 하니까요.

풀빌라와 같은 시설은 내부가 건조한 시간이 훨씬 길기 때문에, 결로나 곰팡이의 위험이 비교적 적습니다. (물론 이 역시 너무 정성적인 표현이지만...)
그러므로 내단열을 하셔도 되며, 다만 평지붕의 경우 단열의 문제라기 보다는 방수와 연관된 것이라서, 방수상부외단열공법(역전지붕)으로 하시는 것이 오랜 세월 동안 누수걱정없이 지내실 수 있으세요.
Category